埼玉県所沢市大字下富 新所沢駅 中古一戸建て・中古住宅
3LDK / 新所沢駅
- 情報提供元
- SUUMO
価格2780万円
-
外観
-
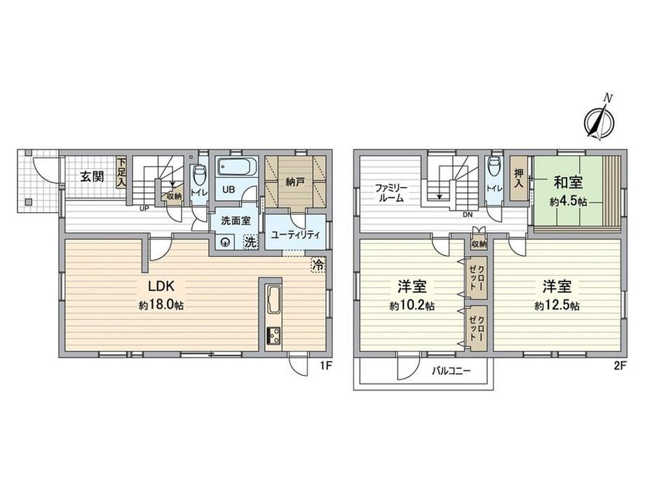
2780万円、3LDK、土地面積167.77m2、建物面積142.3m2 間取図
-
リビング
-
リビング
-
風呂
-
キッチン
-
2階約10.2帖洋室
-
洗面室
-
トイレ
-
リビング
-
キッチン
-
2階約10.2帖洋室
-
洗面化粧台
-
LDK
-
キッチン
-
2階約10.2帖洋室
-
LDK
-
2階約12.5帖洋室
-
リビング
-
LDK
-
この物件が気になりましたか? 物件や周辺施設などの詳しい情報は
問合せをすることで確認できます
- お問い合わせ先
- 三井のリハウス所沢センター三井不動産リアルティ(株)
閑静な分譲地「所沢ネオポリス」内敷地約50坪・前面道路5m内外装メンテナンスの行き届いた平成10年築の建物3LDK+納戸+ファミリールーム+ユーティリティ駐車スペース2台分有(車種による)180°回転する木製サッシ3層ガラス窓採用暖かな日差しが差し込む約18帖のLDKカウンターキッチン(食洗機付)1階ユーティリティは収納や趣味部屋など、使い方様々約12.5帖の洋室は防音仕様2階ファミリールームはリモートワーク、勉強スペース等多目的に利用可1階納戸、階段下収納等収納豊富2方向からアクセスできる2way洗面室ガーデニングも可能なお庭スペース
-
価格返済シミュレーション 2780万円
-
土地面積167.77m2(50.75坪)(登記)
-
建物面積142.3m2(43.04坪)(登記)
-
間取り3LDK
-
建物構造・規模木造2階建
-
築年月1998年3月
(築27年8ヶ月) -
駐車場-
-
物件
タイプ中古住宅 -
住所埼玉県所沢市大字下富 地図
-
交通西武新宿線 新所沢駅 バス16分/「富岡」バス停 停歩14分
| 私道面積 | - |
|---|---|
| 接道状況 | 南西5m接面12.1m |
| 用途地域 | 無指定 |
| 建ぺい率 / 容積率 | 60% / 200% |
| 地目 | - |
| 土地権利 | 所有権 |
| 借地期間・地代 | - |
| 都市計画 | 調整区域 |
| 現況 | - |
| 引渡可能時期 | 相談 |
| 情報提供元 | SUUMO [030Z76646849] |
| 情報公開日 | |
| 情報更新日 | |
| 次回更新予定日 | 随時 |
地図
設備など
設備
| バス・トイレ | トイレ、温水洗浄便座、トイレ2ヶ所 |
|---|---|
| キッチン | 対面K、食器洗浄乾燥機 |
| 建物設備 | 庭、LPガス |
| その他 | 上水道、本下水 |
備考
<物件名>大字下富 2780万円/<土地権利>所有権/<間取り>3LDK/<特徴>【三井のリハウス所沢センターおすすめ物件】スウェーデンハウスの注文住宅、土地50坪以上・LDK18畳以上・市街地が近い・陽当り良好・閑静な住宅地
販売戸数:1戸
続きを見る
販売戸数:1戸
特記事項
日当り良好・閑静な住宅街
省エネ性能
| エネルギー消費性能 | - |
|---|---|
| 断熱性能 | - |
| 目安光熱費 | - |
- お問い合わせ先
- 三井のリハウス所沢センター三井不動産リアルティ(株)
不動産会社情報
お問い合わせ先
商号: 三井のリハウス所沢センター三井不動産リアルティ(株)
免許番号:国土交通大臣(15)第000777号
所在地:埼玉県所沢市日吉町14-3 朝日生命所沢ビル1階
TEL:00786-01794056
取引態様:専任媒介
管理コード:F45AAA03 この会社の他の物件情報を見る この不動産会社に相談したい
免許番号:国土交通大臣(15)第000777号
所在地:埼玉県所沢市日吉町14-3 朝日生命所沢ビル1階
TEL:00786-01794056
取引態様:専任媒介
管理コード:F45AAA03 この会社の他の物件情報を見る この不動産会社に相談したい
この地域の暮らしデータ
所沢市の人口などの統計情報
| 世帯数 | 152510世帯 |
|---|---|
| 人口総数 | 343529人 |
| 転入者数 |
15623人 転入率(人口1000人当たり) 45.48人 |
| 転出者数 |
14079人 転出率(人口1000人当たり) 40.98人 |
| 土地平均価格 |
住宅地 177192円/m2 商業地 416667円/m2 |
所沢市の結婚・育児の助成金
| 出産・子育て | |
|---|---|
| 子育て関連の独自の取り組み | (1)大学との連携による「ところっこ・親子で楽しむ運動遊び」を実施。(2)「ところっこ子育てガイド」を配布。 |
| 出産祝い |
なし
|
| 公立保育所数 |
19ヶ所 0歳児保育を実施 10ヶ所 |
| 私立保育所数 |
36ヶ所 0歳児保育を実施 36ヶ所 |
| 保育所入所待機児童数 | 6人 |
| 認定こども園数 | 9園 |
| 預かり保育実施園数-公立 | 1園 |
| 預かり保育実施園数-私立 | 18園 |
| 学校給食 | 【小学校】完全給食【中学校】完全給食 |
| 公立中学校の学校選択制 | 未実施(所沢市区域外就学・指定校変更承認基準により、特例を認める場合あり)。 |
| 子ども・学生等医療費助成<通院>対象年齢 | 18歳3月末まで |
| 子ども・学生等医療費助成<入院>対象年齢 | 18歳3月末まで |
所沢市の治安・ごみ収集情報
| 公共料金・インフラ | |
|---|---|
| ガス料金(22m3使用した場合の月額) | 東京瓦斯株式会社(東京地区等)3926円 武州瓦斯株式会社4281円 大東ガス株式会社4335円 |
| 水道料金(口径20mmで20m3の月額) | 所沢市2332円 |
| 下水道料金(20m3を使用した場合の月額) | 所沢市1639円 |
| 下水道普及率 | 95.2% |
| 安心・安全 | |
| 建物火災出火件数 |
37件 人口10000人当たり 1.08件 |
| 刑法犯認知件数 |
1944件 人口1000人当たり 5.68件 |
| ハザード・防災マップ | あり |
| 医療 | |
| 一般病院総数 | 20ヶ所 |
| 一般診療所総数 | 225ヶ所 |
| 小児科医師数 |
62人 小児人口10000人当たり 16.41人 |
| 産婦人科医師数 |
36人 15~49歳女性人口1万人当たり 5.34人 |
| 介護保険料基準額(月額) | 5634円 |
| ごみ | |
| 家庭ごみ収集(可燃ごみ) |
無料
|
| 家庭ごみの分別方式 | 4分別12種〔燃やせるごみ 資源物(容器包装プラスチック、ペットボトル、びん・かん・スプレー缶、新聞、雑誌、雑がみ、段ボール、小型家電製品、古着・古布) 破砕ごみ類 有害ごみ〕集団資源回収:新聞、雑誌・雑がみ、段ボール、布類、スチール缶、アルミ缶、紙パック、生きびん |
| 家庭ごみの戸別収集 | 一部実施(【ふれあい収集】毎週1回/要支援2以上の65歳以上の高齢者のみ及び障害者手帳2級以上の方のみの、身近な人の協力を得ることができない世帯が対象) |
| 粗大ごみ収集 |
あり
|
| 生ごみ処理機助成金制度 |
なし 上限金額 - 上限比率 - |
所沢市の住まいの給付金
暮らしデータ提供元:生活ガイド.com
※行政機関により公表していない地域及びデータがございます。東京23区以外の政令指定都市は、市全体のデータとして表示しています。
※提供データには細心の注意を払っておりますが、調査後に変更がある場合があります。 最新の情報につきましては各市区役所までお問い合わせいただくか、自治体HPなどをご確認ください。
※提供データには細心の注意を払っておりますが、調査後に変更がある場合があります。 最新の情報につきましては各市区役所までお問い合わせいただくか、自治体HPなどをご確認ください。
この物件を見た人はこんな物件も
見ています
住宅ローンシミュレーション
月々の返済額からの購入額の計算と、購入額からの返済額の計算ができます。
住宅ローンをお考えの方へ
最もおトクであなたにぴったりな
住宅ローンをみてみよう!
お気に入りの物件を見逃さない!
プッシュ通知で最新の物件情報が届く






