群馬県前橋市川原町1 群馬総社駅 中古一戸建て・中古住宅
4SLDK / 群馬総社駅
- 情報提供元
- SUUMO
価格2500万円
-
シャッター付き
-
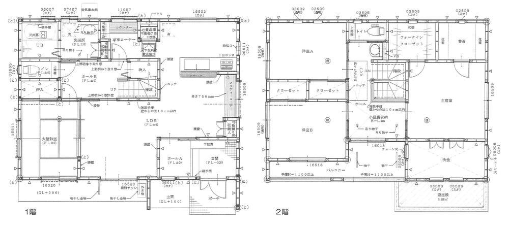
2500万円、4LDK+2S(納戸)、土地面積207.19m2、建物面積130.83m2
-
ダイニングスペース+スタディコーナー
-
LDK20畳(シャッターあり)
-
LDK20畳(玄関からリビング通って階段へ)
-
玄関+自転車置きスペース
-
吹き抜けある玄関
-
和室(内障子とシャッターあり)
-
和室(押入あり)
-
対面キッチン
食洗器+IHコンロ -
キッチン背面に明り取り窓
-
家事室
-
シャワー付き洗面化粧台
-
洗浄機能付き
-
1坪ユニットバス
-
2Fに洗面台
-
主寝室(引渡し前に家具撤去します)
-
2階洋室
-
2F洋室
-
東道路、駐車3台OK
-
この物件が気になりましたか? 物件や周辺施設などの詳しい情報は
問合せをすることで確認できます
- お問い合わせ先
- にこにこ不動産 中央ホームセンター(株)
ローソン前橋川原店まで190m、JAファーマーズ前橋川原まで510m。住宅購入後、転勤のため、使用感少なく綺麗な室内。
-
価格返済シミュレーション 2500万円
-
土地面積207.19m2
-
建物面積130.83m2(登記)
-
間取り4SLDK
-
建物構造・規模木造2階建
-
築年月2007年10月
(築18年1ヶ月) -
駐車場有
-
物件
タイプ中古住宅 -
住所群馬県前橋市川原町1 地図
-
交通JR上越線 群馬総社駅 徒歩38分
上毛電鉄 中央前橋駅 徒歩5.4km
| 私道面積 | - |
|---|---|
| 接道状況 | 東7.8m 北6m 二方道路 |
| 用途地域 | 1種低層 |
| 建ぺい率 / 容積率 | 40% / 80% |
| 地目 | - |
| 土地権利 | 所有権 |
| 借地期間・地代 | - |
| 都市計画 | - |
| 現況 | - |
| 引渡可能時期 | 相談 |
| 情報提供元 | SUUMO [030Z73881005] |
| 情報公開日 | |
| 情報更新日 | |
| 次回更新予定日 | 随時 |
地図
設備など
設備
| バス・トイレ | 浴室乾燥機、風呂、トイレ2ヶ所 |
|---|---|
| キッチン | システムキッチン、対面K、IHクッキングヒータ、食器洗浄乾燥機 |
| 収納 | 収納スペース、ウォークインクローゼット、床下収納、グルニエ |
| セキュリティ | モニタ付インターホン |
| 室内設備 | 洗面所、シャンプードレッサ、衣類乾燥機 |
| 建物設備 | バルコニー |
| その他 | 上水道、本下水 |
備考
<物件名>川原町1(群馬総社駅) 2500万円/<駐車場>カースペース/<土地権利>所有権/<間取り>4LDK+2S(納戸)/<特徴>広々とした延床面積130.83㎡の居室空間で、その上閑静な住宅街立地の物件、駐車3台以上可・LDK20畳以上・土地50坪以上・南向き・システムキッチン
販売戸数:1戸
法令等制限:景観法
続きを見る
販売戸数:1戸
法令等制限:景観法
特記事項
閑静な住宅街・バリアフリー・駐車場3台分以上・オール電化・角地・整形地・浴室1坪以上
省エネ性能
| エネルギー消費性能 | - |
|---|---|
| 断熱性能 | - |
| 目安光熱費 | - |
- お問い合わせ先
- にこにこ不動産 中央ホームセンター(株)
不動産会社情報
お問い合わせ先
商号: にこにこ不動産 中央ホームセンター(株)
免許番号:群馬県知事(11)第002762号
所在地:群馬県前橋市上小出町2-40-1 あじさいハイツ11
TEL:027-233-3324
取引態様:一般媒介 この会社の他の物件情報を見る この不動産会社に相談したい
免許番号:群馬県知事(11)第002762号
所在地:群馬県前橋市上小出町2-40-1 あじさいハイツ11
TEL:027-233-3324
取引態様:一般媒介 この会社の他の物件情報を見る この不動産会社に相談したい
この地域の暮らしデータ
前橋市の人口などの統計情報
| 世帯数 | 141556世帯 |
|---|---|
| 人口総数 | 329860人 |
| 転入者数 |
13057人 転入率(人口1000人当たり) 39.58人 |
| 転出者数 |
12197人 転出率(人口1000人当たり) 36.98人 |
| 土地平均価格 |
住宅地 46714円/m2 商業地 76300円/m2 |
前橋市の結婚・育児の助成金
| 出産・子育て | |
|---|---|
| 子育て関連の独自の取り組み | 市内に住所を有し、同一世帯で18歳に達する日以後の最初の3月31日までの間にある子を3人以上養育し、かつ学校給食費に未納がない人を対象に、小中学校等に在籍している第3子以降の学校給食費を無料化し、子育て世帯の経済的負担を軽減し、安心して子育てできる環境整備を図り、もって少子化対策を推進するもの。 |
| 出産祝い |
あり
|
| 公立保育所数 |
16ヶ所 0歳児保育を実施 2ヶ所 |
| 私立保育所数 |
20ヶ所 0歳児保育を実施 19ヶ所 |
| 保育所入所待機児童数 | 0人 |
| 認定こども園数 | 50園 |
| 預かり保育実施園数-公立 | 2園 |
| 預かり保育実施園数-私立 | 1園 |
| 学校給食 | 【小学校】完全給食【中学校】完全給食 |
| 公立中学校の学校選択制 | 未実施 |
| 子ども・学生等医療費助成<通院>対象年齢 | 18歳3月末まで |
| 子ども・学生等医療費助成<入院>対象年齢 | 18歳3月末まで |
前橋市の治安・ごみ収集情報
| 公共料金・インフラ | |
|---|---|
| ガス料金(22m3使用した場合の月額) | 東京瓦斯株式会社(群馬地区)3648円 |
| 水道料金(口径20mmで20m3の月額) | 前橋市2882円 |
| 下水道料金(20m3を使用した場合の月額) | 前橋市2156円 |
| 下水道普及率 | 72.0% |
| 安心・安全 | |
| 建物火災出火件数 |
61件 人口10000人当たり 1.84件 |
| 刑法犯認知件数 |
2449件 人口1000人当たり 7.37件 |
| ハザード・防災マップ | あり |
| 医療 | |
| 一般病院総数 | 18ヶ所 |
| 一般診療所総数 | 340ヶ所 |
| 小児科医師数 |
113人 小児人口10000人当たり 30.18人 |
| 産婦人科医師数 |
65人 15~49歳女性人口1万人当たり 10.66人 |
| 介護保険料基準額(月額) | 6450円 |
| ごみ | |
| 家庭ごみ収集(可燃ごみ) |
無料
|
| 家庭ごみの分別方式 | 7分別17種〔可燃ごみ 不燃ごみ プラ容器 資源ごみ(びん[無色透明のびん、茶色のびん、その他の色のびん]、缶、ペットボトル) 危険ごみ 有害ごみ 紙・衣類等(紙[新聞紙、段ボール、雑誌、紙パック、雑古紙、シュレッダーした紙]、衣類等)〕 |
| 家庭ごみの戸別収集 | 一部実施(高齢者・障害者等のうち、家族や知人の協力を得られない人で、介護認定や障害者手帳等の一定の要件を満たしている人が対象。同居人がいる場合も同じ要件を満たすこと) |
| 粗大ごみ収集 |
あり
|
| 生ごみ処理機助成金制度 |
あり 上限金額 10000円 上限比率 50.0% |
前橋市の住まいの給付金
暮らしデータ提供元:生活ガイド.com
※行政機関により公表していない地域及びデータがございます。東京23区以外の政令指定都市は、市全体のデータとして表示しています。
※提供データには細心の注意を払っておりますが、調査後に変更がある場合があります。 最新の情報につきましては各市区役所までお問い合わせいただくか、自治体HPなどをご確認ください。
※提供データには細心の注意を払っておりますが、調査後に変更がある場合があります。 最新の情報につきましては各市区役所までお問い合わせいただくか、自治体HPなどをご確認ください。
この物件を見た人はこんな物件も
見ています
住宅ローンシミュレーション
月々の返済額からの購入額の計算と、購入額からの返済額の計算ができます。
住宅ローンをお考えの方へ
最もおトクであなたにぴったりな
住宅ローンをみてみよう!
お気に入りの物件を見逃さない!
プッシュ通知で最新の物件情報が届く






