福島県須賀川市森宿字安積田 須賀川駅 中古一戸建て・中古住宅
4DK / 須賀川駅
- 情報提供元
- SUUMO
価格1980万円
-
フルリフォーム済みで即入居可。南側庭も駐車場に変更し3台以上駐車可。森宿エリア郡山・須賀川方面への通勤便利、ベニマル車3分!
-
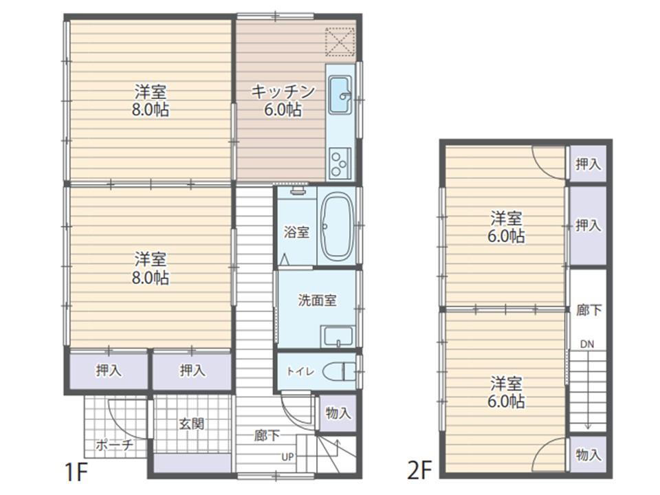
1980万円、4DK、土地面積220.18m2、建物面積86.94m2
-
外観
-
外観
-
画像
-
画像
-
画像
-
画像
-
画像
-
画像
-
画像
-
画像
-
影
-
画像
-
画像
-
画像
-
ヨークベニマル 須賀川森宿店まで1200m
-
サンドラッグ 須賀川森宿店まで1200m
-
DCM 須賀川店まで1200m
-
須賀川市立西袋第一小学校まで2900m
-
須賀川市立西袋中学校まで3200m
-
この物件が気になりましたか? 物件や周辺施設などの詳しい情報は
問合せをすることで確認できます
- お問い合わせ先
- (株)ダイエーホーム
フルリフォーム済みのきれいな住まいで、購入後すぐに新生活を始められます。玄関位置の変更と外水道の移設により、南側の庭も駐車場として利用でき、3台以上の駐車が可能です。日当たりの良い南向きで、明るく開放的な住空間が広がります。人気の森宿エリアにあり、須賀川・郡山方面への通勤にも便利。ヨークベニマル、サンドラッグ、スターバックスが車で約3分圏内に揃い、日々の買い物や外食も快適です。徒歩圏内にはセブン‐イレブン(徒歩10分)やバス停(徒歩6分)もあり、車を使わない移動にも安心。閑静な住宅地で、ゆったりとした時間が流れる住環境。利便性と快適性を兼ね備えた、バランスの良い一戸建てです。
-
価格返済シミュレーション 1980万円
-
土地面積220.18m2(登記)
-
建物面積86.94m2
-
間取り4DK
-
建物構造・規模木造2階建
-
築年月1983年11月
(築42年2ヶ月) -
駐車場有
-
物件
タイプ中古住宅 -
住所福島県須賀川市森宿字安積田 地図
-
交通JR東北本線 須賀川駅 徒歩34分
| 私道面積 | - |
|---|---|
| 接道状況 | 北東6m接面3.5m |
| 用途地域 | 工業地域 |
| 建ぺい率 / 容積率 | 60% / 200% |
| 地目 | - |
| 土地権利 | 所有権 |
| 借地期間・地代 | - |
| 都市計画 | - |
| 現況 | - |
| 引渡可能時期 | 即時 |
| 情報提供元 | SUUMO [020Z77978178] |
| 情報公開日 | |
| 情報更新日 | |
| 次回更新予定日 | 随時 |
地図
設備など
設備
| バス・トイレ | トイレ、温水洗浄便座、風呂 |
|---|---|
| キッチン | システムキッチン |
| セキュリティ | モニタ付インターホン |
| 室内設備 | 洗面所、シャンプードレッサ |
| 建物設備 | 庭、LPガス |
| 特徴 | リフォーム |
| その他 | 上水道、本下水 |
リフォーム履歴
2025年9月完了
水回り設備交換:キッチン・浴室・トイレ
内装リフォーム:壁・床・全室
2025年9月完了
その他リフォーム:外壁・屋根
※年月は一番古いリフォーム箇所を表します
続きを見る
水回り設備交換:キッチン・浴室・トイレ
内装リフォーム:壁・床・全室
2025年9月完了
その他リフォーム:外壁・屋根
※年月は一番古いリフォーム箇所を表します
備考
<物件名>森宿字安積田(須賀川駅) 1980万円/<駐車場>カースペース/<土地権利>所有権/<間取り>4DK/<リフォーム>●リフォーム:2025年9月完了(水回り設備交換:キッチン・浴室・トイレ、内装リフォーム:壁・床・全室)、2025年9月完了(その他リフォーム:外壁・屋根)※年月は一番古いリフォーム箇所を表します/<特徴>フルリフォーム済み即入居可。3台以上駐車可。郡山・須賀川方面への通勤便利♪、駐車3台以上可・即引渡可・土地50坪以上・内装リフォーム・システムキッチン
販売戸数:1戸
続きを見る
販売戸数:1戸
特記事項
日当り良好・閑静な住宅街・駐車場3台分以上
省エネ性能
| エネルギー消費性能 | - |
|---|---|
| 断熱性能 | - |
| 目安光熱費 | - |
- お問い合わせ先
- (株)ダイエーホーム
不動産会社情報
お問い合わせ先
| 商号 | (株)ダイエーホーム |
|---|---|
| 免許番号 | 国土交通大臣(1)第010583号 |
| 所在地 | 福島県郡山市亀田1-48-11 |
| TEL | 0120-501920 |
| 取引態様 | 売主 |
| 管理コード | - |
| 所属協会など | - |
この地域の暮らしデータ
須賀川市の人口などの統計情報
| 世帯数 | 27081世帯 |
|---|---|
| 人口総数 | 73828人 |
| 転入者数 |
2111人 転入率(人口1000人当たり) 28.59人 |
| 転出者数 |
2298人 転出率(人口1000人当たり) 31.13人 |
| 土地平均価格 |
住宅地 23879円/m2 商業地 35550円/m2 |
須賀川市の結婚・育児の助成金
| 出産・子育て | |
|---|---|
| 子育て関連の独自の取り組み | - |
| 出産祝い |
なし
|
| 公立保育所数 |
2ヶ所 0歳児保育を実施 2ヶ所 |
| 私立保育所数 |
4ヶ所 0歳児保育を実施 4ヶ所 |
| 保育所入所待機児童数 | 0人 |
| 認定こども園数 | 14園 |
| 預かり保育実施園数-公立 | 1園 |
| 預かり保育実施園数-私立 | 1園 |
| 学校給食 | 【小学校】完全給食【中学校】完全給食 |
| 公立中学校の学校選択制 | 未実施 |
| 子ども・学生等医療費助成<通院>対象年齢 | 18歳3月末まで |
| 子ども・学生等医療費助成<入院>対象年齢 | 18歳3月末まで |
須賀川市の治安・ごみ収集情報
| 公共料金・インフラ | |
|---|---|
| ガス料金(22m3使用した場合の月額) | - |
| 水道料金(口径20mmで20m3の月額) | 須賀川市3951円 |
| 下水道料金(20m3を使用した場合の月額) | 須賀川市3190円 |
| 下水道普及率 | 54.6% |
| 安心・安全 | |
| 建物火災出火件数 |
8件 人口10000人当たり 1.07件 |
| 刑法犯認知件数 |
367件 人口1000人当たり 4.89件 |
| ハザード・防災マップ | あり |
| 医療 | |
| 一般病院総数 | 5ヶ所 |
| 一般診療所総数 | 52ヶ所 |
| 小児科医師数 |
22人 小児人口10000人当たり 25.03人 |
| 産婦人科医師数 |
4人 15~49歳女性人口1万人当たり 2.99人 |
| 介護保険料基準額(月額) | 6470円 |
| ごみ | |
| 家庭ごみ収集(可燃ごみ) |
無料
|
| 家庭ごみの分別方式 | 3分別12種〔可燃ごみ 資源物(びん類[無色ビン、茶ビン、その他のビン]、金属類、ペットボトル、発泡スチロール容器、古紙類[紙パック、ダンボール、古新聞、雑誌類・包装紙・紙箱]) 不燃ごみ〕 |
| 家庭ごみの戸別収集 | 未実施 |
| 粗大ごみ収集 |
あり
|
| 生ごみ処理機助成金制度 |
あり 上限金額 20000円 上限比率 50.0% |
須賀川市の住まいの給付金
暮らしデータ提供元:生活ガイド.com
※行政機関により公表していない地域及びデータがございます。東京23区以外の政令指定都市は、市全体のデータとして表示しています。
※提供データには細心の注意を払っておりますが、調査後に変更がある場合があります。 最新の情報につきましては各市区役所までお問い合わせいただくか、自治体HPなどをご確認ください。
※提供データには細心の注意を払っておりますが、調査後に変更がある場合があります。 最新の情報につきましては各市区役所までお問い合わせいただくか、自治体HPなどをご確認ください。
住宅ローンシミュレーション
月々の返済額からの購入額の計算と、購入額からの返済額の計算ができます。
住宅ローンをお考えの方へ
最もおトクであなたにぴったりな
住宅ローンをみてみよう!
お気に入りの物件を見逃さない!
プッシュ通知で最新の物件情報が届く






