北海道名寄市字徳田 名寄高校駅 中古一戸建て・中古住宅
6LDK / 名寄高校駅
- 情報提供元
- SUUMO
価格2750万円
-
西前面道路に16m接道しており、車庫、カーポートあり。車庫はロングタイプでタイヤ等の収納可能。
-
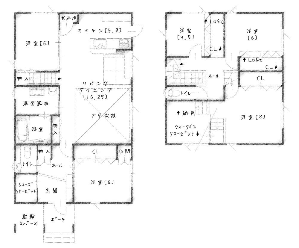
2750万円、6LDK、土地面積321.99m2、建物面積139.11m2 22畳のLDKで広々しており、二階ウォークインクローゼットは蔵収納、その上部が書斎として利用可能。4.5畳、6畳洋室にはロフトがあり、その下はクローゼットになっております。素敵な…
-
南側に庭があり日当たり良好です。
-
画像
-
画像
-
画像
-
画像
-
画像
-
画像
-
画像
-
画像
-
画像
-
画像
-
画像
-
画像
-
画像
-
画像
-
画像
-
画像
-
この物件が気になりましたか? 物件や周辺施設などの詳しい情報は
問合せをすることで確認できます
- お問い合わせ先
- (株)Rim
車庫、カーポート、青空、3台は駐車可能。
-
価格返済シミュレーション 2750万円
-
土地面積321.99m2(登記)
-
建物面積139.11m2(登記)
-
間取り6LDK
-
建物構造・規模木造2階建
-
築年月2010年7月
(築15年6ヶ月) -
駐車場有
-
物件
タイプ中古住宅 -
住所北海道名寄市字徳田 地図
-
交通JR宗谷本線 名寄高校駅 徒歩14分
| 私道面積 | - |
|---|---|
| 接道状況 | 西14.5m接面16.7m |
| 用途地域 | 工業地域 |
| 建ぺい率 / 容積率 | 60% / 200% |
| 地目 | - |
| 土地権利 | 所有権 |
| 借地期間・地代 | - |
| 都市計画 | - |
| 現況 | - |
| 引渡可能時期 | 相談 |
| 情報提供元 | SUUMO [010Z78686536] |
| 情報公開日 | |
| 情報更新日 | |
| 次回更新予定日 | 随時 |
地図
設備など
設備
| バス・トイレ | トイレ、温水洗浄便座、風呂、トイレ2ヶ所 |
|---|---|
| キッチン | システムキッチン、対面K、IHクッキングヒータ |
| 室内設備 | ロフト |
| その他 | 上水道、本下水 |
備考
<物件名>字徳田(名寄高校駅) 2750万円/<駐車場>車庫/<土地権利>所有権/<間取り>6LDK/<特徴>日当たり良好!ロフトや、書斎、収納があり機能的な住宅です。、年内引渡可・駐車3台以上可・LDK20畳以上・スーパー 徒歩10分以内・南向き
建築確認:有/NO.確認済番号第SKK211932号
販売戸数:1戸
続きを見る
建築確認:有/NO.確認済番号第SKK211932号
販売戸数:1戸
特記事項
日当り良好・駐車場3台分以上・浴室1坪以上・オール電化
省エネ性能
| エネルギー消費性能 | - |
|---|---|
| 断熱性能 | - |
| 目安光熱費 | - |
- お問い合わせ先
- (株)Rim
不動産会社情報
お問い合わせ先
| 商号 | (株)Rim |
|---|---|
| 免許番号 | 北海道知事上川(1)第001302号 |
| 所在地 | 北海道名寄市西四条南6-4 |
| TEL | 01654-8-8915 |
| 取引態様 | 専任媒介 |
| 管理コード | - |
| 所属協会など | - |
この地域の暮らしデータ
名寄市の人口などの統計情報
| 世帯数 | 12725世帯 |
|---|---|
| 人口総数 | 25376人 |
| 転入者数 |
1143人 転入率(人口1000人当たり) 45.04人 |
| 転出者数 |
1592人 転出率(人口1000人当たり) 62.74人 |
| 土地平均価格 |
住宅地 9975円/m2 商業地 21600円/m2 |
名寄市の結婚・育児の助成金
| 出産・子育て | |
|---|---|
| 子育て関連の独自の取り組み | お祝い用誕生もち助成事業(名寄市民として1歳の誕生日を迎えるお子さんへ、もち米作付および生産量日本一の名寄産もち米で作られた誕生もち[一升もち]を健やかな成長を願い贈呈する)。 |
| 出産祝い |
あり
|
| 公立保育所数 |
1ヶ所 0歳児保育を実施 1ヶ所 |
| 私立保育所数 |
0ヶ所 0歳児保育を実施 - |
| 保育所入所待機児童数 | 0人 |
| 認定こども園数 | 5園 |
| 預かり保育実施園数-公立 | - |
| 預かり保育実施園数-私立 | 1園 |
| 学校給食 | 【小学校】完全給食【中学校】完全給食 |
| 公立中学校の学校選択制 | 一部実施(制度を利用して特認校に通い始めたら、自校区の学校への再転校はできない) |
| 子ども・学生等医療費助成<通院>対象年齢 | 18歳3月末まで |
| 子ども・学生等医療費助成<入院>対象年齢 | 18歳3月末まで |
名寄市の治安・ごみ収集情報
| 公共料金・インフラ | |
|---|---|
| ガス料金(22m3使用した場合の月額) | - |
| 水道料金(口径20mmで20m3の月額) | 名寄市5750円 |
| 下水道料金(20m3を使用した場合の月額) | 名寄市3870円 |
| 下水道普及率 | 87.6% |
| 安心・安全 | |
| 建物火災出火件数 |
4件 人口10000人当たり 1.47件 |
| 刑法犯認知件数 |
93件 人口1000人当たり 3.41件 |
| ハザード・防災マップ | あり |
| 医療 | |
| 一般病院総数 | 4ヶ所 |
| 一般診療所総数 | 10ヶ所 |
| 小児科医師数 |
7人 小児人口10000人当たり 26.58人 |
| 産婦人科医師数 |
5人 15~49歳女性人口1万人当たり 11.36人 |
| 介護保険料基準額(月額) | 5400円 |
| ごみ | |
| 家庭ごみ収集(可燃ごみ) |
有料
|
| 家庭ごみの分別方式 | 7分別15種〔炭化ごみ(生ごみ類・衛生ごみ・紙くず等) 炭化ごみ(衛生ごみ・紙くず等) 埋立ごみ 有害ごみ・スプレー缶類(有害ごみ、スプレー缶、ライター) プラスチック容器包装類 資源ごみ(缶、びん、ペットボトル) 古紙類(新聞類、雑誌類、段ボール、紙パック、紙製容器包装類)〕 拠点回収:廃食用油 古着 小型家電 |
| 家庭ごみの戸別収集 | 一部実施(【名寄地区】個別収集【風連地区】ステーション方式) |
| 粗大ごみ収集 |
あり
|
| 生ごみ処理機助成金制度 |
なし 上限金額 - 上限比率 - |
名寄市の住まいの給付金
暮らしデータ提供元:生活ガイド.com
※行政機関により公表していない地域及びデータがございます。東京23区以外の政令指定都市は、市全体のデータとして表示しています。
※提供データには細心の注意を払っておりますが、調査後に変更がある場合があります。 最新の情報につきましては各市区役所までお問い合わせいただくか、自治体HPなどをご確認ください。
※提供データには細心の注意を払っておりますが、調査後に変更がある場合があります。 最新の情報につきましては各市区役所までお問い合わせいただくか、自治体HPなどをご確認ください。
住宅ローンシミュレーション
月々の返済額からの購入額の計算と、購入額からの返済額の計算ができます。
住宅ローンをお考えの方へ
最もおトクであなたにぴったりな
住宅ローンをみてみよう!
お気に入りの物件を見逃さない!
プッシュ通知で最新の物件情報が届く






