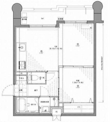
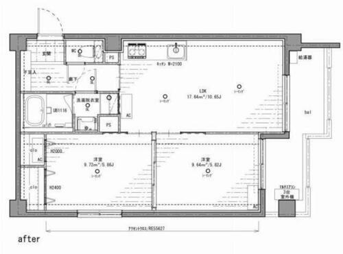
東海道本線(兵庫県)の初期費用クレジットカード対応の賃貸物件(賃貸マンション・アパート) 物件一覧(1373ページ目)
引越しでポイントゲット!
初期費用にクレジットカードが利用できる物件
東海道本線(兵庫県)の初期費用クレジットカード対応の賃貸物件(賃貸マンション・アパート) 物件一覧(1373ページ目)
引越しでポイントゲット!
初期費用にクレジットカードが利用できる物件
ページ上部の「保存した条件」から確認できます。
ページ上部の「保存した条件」から確認できます。

ページ上部の「お気に入り」から確認できます。
ページ上部の「お気に入り」から確認できます。
