一社駅(愛知県)の新婚・カップル・同棲向けの賃貸物件(賃貸マンション・アパート) 物件一覧(22ページ目)
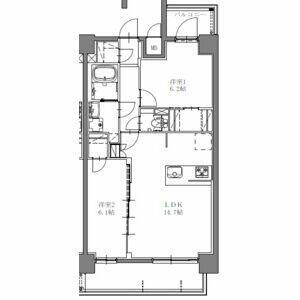
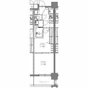
2人で新生活を始める方におすすめの新婚・カップル・同棲向けの物件を紹介します。2人で暮らすのなら、ゆとりのある間取りを選ぶことがおすすめ。ゆっくりくつろげるリビングのほか、寝室や収納スペースを確保できる物件を選べば、長く快適に暮らせるでしょう。物件別に備える設備が異なるので、間取りとあわせてチェックしてみてくださいね。
