上野駅(東京都)の7万円以下の賃貸物件(賃貸マンション・アパート) 物件一覧
賃料を見直して新生活をスタート!
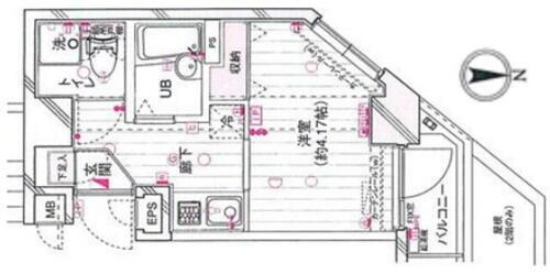
7万円以下のお部屋をセレクト
上野駅(東京都)の7万円以下の賃貸物件(賃貸マンション・アパート) 物件一覧
賃料を見直して新生活をスタート!
7万円以下のお部屋をセレクト
ページ上部の「保存した条件」から確認できます。
ページ上部の「保存した条件」から確認できます。

ページ上部の「お気に入り」から確認できます。
ページ上部の「お気に入り」から確認できます。
