関西本線(愛知県)の一人暮らし(ワンルーム~1LDK)の賃貸物件(賃貸マンション・アパート) 物件一覧(11ページ目)
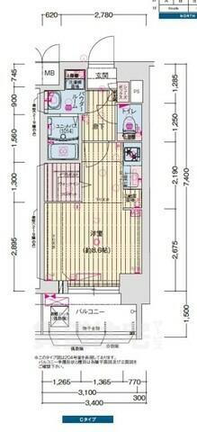
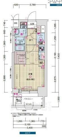
1人で快適に暮らせるお部屋を探している方におすすめのワンルーム~1LDK物件を紹介します。お部屋を選ぶときは、間取りや広さ、設備をチェックすることがおすすめ。女性の方はモニター付きインターホンやオートロックの有無も見ておきましょう。セキュリティが整っていて、間取りや家賃に納得できる物件を見つければ、自分だけのくつろぎの空間を手に入れられますよ。
