千代田・常磐緩行線(茨城県)のアパートの賃貸物件(賃貸マンション・アパート) 物件一覧(188ページ目)
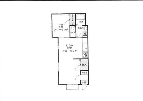
家賃をできるだけ抑えたいけれど、いい物件が見つからないとお困りではありませんか?家賃を抑えたい方におすすめなのが、賃貸アパートです。マンションに比べて家賃の安い物件が多いので、月々の支出を抑えられますよ。ここでは、おすすめの賃貸アパートを紹介します。間取りや家賃が異なるため、いくつかの物件を見比べてみましょう。
