UR高座台 高蔵寺駅 2DK 賃貸(賃貸マンション・アパート)
2DK / 高蔵寺駅
- 情報提供元
- LIFULL HOME'S
          賃料4.68万円 / 管理費等4100円        
        
      - 
        
        外観
- 
        
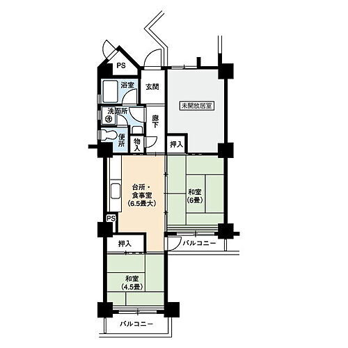
        間取り
- 
        
        幼稚園・保育園「高座保育園まで300m」
- 
        
        ショッピングセンター「アピタまで1200m」
- 
        
        小学校「高座小学校まで200m」
- 
        
        中学校「高蔵寺中学校まで634m」
- 
        
        病院「名古屋徳洲会総合病院まで885m」
- 
        
        スーパー「Aコープ高蔵寺店まで1400m」
- 
        
        画像
- 
        この物件が気になりましたか? 最新の空室状況は
 問合せをすることで確認できます
- お問い合わせ先
- 独立行政法人都市再生機構 UR高蔵寺営業センター
      UR賃貸住宅は、礼金・仲介手数料・更新料・保証人不要!
    
    - 
          交通中央本線 高蔵寺駅 徒歩10分
| 敷引・償却 | - | 
|---|---|
| 更新料 | 更新料なし | 
| 契約期間 | 1年 | 
| カード決済 | - | 
| 建物名 | UR高座台 | 
| 建物構造 | SRC | 
| 駐車場 | 有 4,620円 | 
| 現況 | 空 | 
| 入居可能時期 | 即時 | 
| 住宅保険 | 不要 | 
| 情報提供元 | LIFULL HOME'S[1269610008110] | 
| 情報公開日 | |
| 情報更新日 | |
| 次回更新予定日 | 2025年11月7日 | 
地図
 
        設備など
- バス・トイレ別
- 2階以上
- ペット相談可
- 
          
          駐車場
 (近隣含)
- 
          
          室内洗濯機
 置き場
- エアコン
- 洗面所独立
- 追焚機能
- オートロック
設備
| バス・トイレ | バス・トイレ別、追焚機能 | 
|---|---|
| セキュリティ | 防犯カメラ | 
| 室内設備 | エアコン、洗面所独立、室内洗濯機置き場 | 
| 建物設備 | 給湯、バルコニー、エレベーター、都市ガス | 
| 駐車場・駐輪場 | 駐輪場 | 
| テレビ・通信 | CATV、BS端子、光ファイバー(ブロードバンド) | 
備考
          家族の誕生や成長等にあわせてお部屋を増やすことができます。詳しくはURの営業窓口へ。 【設備・特記事項備考】単身者希望・全居室収納/賃貸戸数:143戸 
        
        続きを見る
      特記事項
          駐車場3台分以上・見学予約可・保証人不要/代行 ・最上階 
        
      省エネ性能
| エネルギー消費性能 | - | 
|---|---|
| 断熱性能 | - | 
| 目安光熱費 | - | 
- お問い合わせ先
- 独立行政法人都市再生機構 UR高蔵寺営業センター
※0037で始まる電話番号に携帯電話からお問合せいただいた方には、ショートメッセージ(SMS)によるお問合せ完了通知をお届けする場合があります。
不動産会社情報
お問い合わせ先
        商号:独立行政法人都市再生機構 UR高蔵寺営業センター
免許番号:-
所在地:愛知県春日井市中央台1丁目2-2 「サンマルシェ南館」内
TEL:0568-91-6112
取引態様:貸主
管理コード:8110
所属協会など:所属団体未加入 会社情報 この会社の他の物件情報を見る
      
    免許番号:-
所在地:愛知県春日井市中央台1丁目2-2 「サンマルシェ南館」内
TEL:0568-91-6112
取引態様:貸主
管理コード:8110
所属協会など:所属団体未加入 会社情報 この会社の他の物件情報を見る
この地域の暮らしデータ
春日井市の人口などの統計情報
| 世帯数 | 130809世帯 | 
|---|---|
| 人口総数 | 307473人 | 
| 転入者数 | 11823人 転入率(人口1000人当たり) 38.45人 | 
| 転出者数 | 11950人 転出率(人口1000人当たり) 38.87人 | 
| 土地平均価格 | 住宅地 115091円/m2 商業地 141000円/m2 | 
春日井市の結婚・育児の助成金
| 出産・子育て | |
|---|---|
| 子育て関連の独自の取り組み | (1)妊産婦ケア事業(デイサービス)を専用施設で実施。妊娠中から1歳未満の子どもがいる母親が、育児で疲れた時等に利用し、専門職による相談も受けられる。(2)妊娠中から生後6ヶ月(多胎は3歳)未満の児童を養育している保護者に対して、家事や育児の援助を行う、産前・産後ヘルパー派遣事業を実施。(3)小児科医、産婦人科医、助産師が、LINEやウェブサイトを活用し、毎日24時間体制で、妊娠中から産後の悩み等の相談に応じる母子保健オンライン相談を実施。(4)市民病院では、産後2ヶ月までのお母さんと赤ちゃんを対象に、産後ケア入院を実施している。産後ケア入院では、育児に不安を持つ母親に対し、助産師が中心となり24時間体制で母子の健康チェックや授乳等の育児支援・相談が受けられる。 | 
| 出産祝い | なし 
 | 
| 公立保育所数 | 29ヶ所 0歳児保育を実施 28ヶ所 | 
| 私立保育所数 | 22ヶ所 0歳児保育を実施 20ヶ所 | 
| 保育所入所待機児童数 | 0人 | 
| 認定こども園数 | 8園 | 
| 預かり保育実施園数-公立 | - | 
| 預かり保育実施園数-私立 | 16園 | 
| 学校給食 | 【小学校】完全給食【中学校】完全給食 | 
| 公立中学校の学校選択制 | 未実施 | 
| 子ども・学生等医療費助成<通院>対象年齢 | 18歳3月末まで | 
| 子ども・学生等医療費助成<入院>対象年齢 | 18歳3月末まで(ただし、学生の場合は24歳3月末まで※学生については、市民税が課せられない者、地方税法に規定する扶養親族である者などの条件あり) | 
春日井市の治安・ごみ収集情報
| 公共料金・インフラ | |
|---|---|
| ガス料金(22m3使用した場合の月額) | 東邦瓦斯株式会社5307円 | 
| 水道料金(口径20mmで20m3の月額) | 春日井市2519円 | 
| 下水道料金(20m3を使用した場合の月額) | 春日井市2915円 | 
| 下水道普及率 | 69.8% | 
| 安心・安全 | |
| 建物火災出火件数 | 45件 人口10000人当たり 1.46件 | 
| 刑法犯認知件数 | 1694件 人口1000人当たり 5.49件 | 
| ハザード・防災マップ | あり | 
| 医療 | |
| 一般病院総数 | 11ヶ所 | 
| 一般診療所総数 | 205ヶ所 | 
| 小児科医師数 | 90人 小児人口10000人当たり 23.09人 | 
| 産婦人科医師数 | 25人 15~49歳女性人口1万人当たり 4.14人 | 
| 介護保険料基準額(月額) | 5580円 | 
| ごみ | |
| 家庭ごみ収集(可燃ごみ) | 無料 
 | 
| 家庭ごみの分別方式 | 3分別13種〔燃やせるごみ 燃やせないごみ 資源物(雑誌・雑がみ、新聞紙、段ボール、牛乳パック類、古着、飲料缶、ガラスびん、ペットボトル、プラスチック製容器包装、金属類[小型家電を含む金属類、発火性危険物])〕 拠点回収:廃食用油 使用済乾電池 蛍光管 | 
| 家庭ごみの戸別収集 | 一部実施(さわやか収集) | 
| 粗大ごみ収集 | あり 
 | 
| 生ごみ処理機助成金制度 | あり 上限金額 20000円 上限比率 50.0% | 
      暮らしデータ提供元:生活ガイド.com
    
    
      ※行政機関により公表していない地域及びデータがございます。東京23区以外の政令指定都市は、市全体のデータとして表示しています。
      
※提供データには細心の注意を払っておりますが、調査後に変更がある場合があります。 最新の情報につきましては各市区役所までお問い合わせいただくか、自治体HPなどをご確認ください。
  ※提供データには細心の注意を払っておりますが、調査後に変更がある場合があります。 最新の情報につきましては各市区役所までお問い合わせいただくか、自治体HPなどをご確認ください。
お気に入りの物件を見逃さない!
プッシュ通知で最新の物件情報が届く


 
           
           
           
           
           
           
           
           
          





 
           
           
           
           
           
          