シャーメゾン令和 庭瀬駅 2LDK 賃貸(賃貸マンション・アパート)
2LDK / 庭瀬駅
- 情報提供元
- SUUMO
賃料8.1万円 / 管理費等3000円
-
外観
-
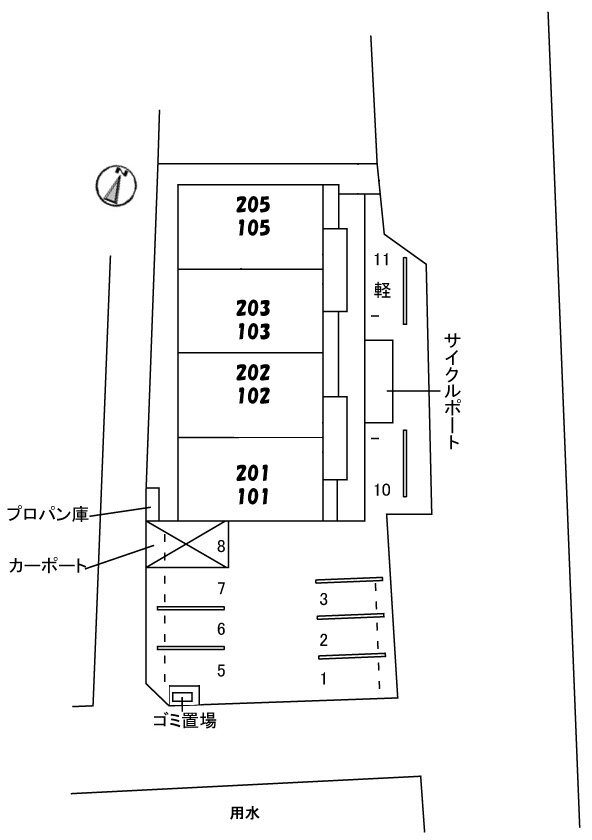
間取り
-
室内
-
室内
-
室内
-
室内
-
室内
-
室内
-
室内
-
室内
-
わたなべ生鮮館 庭瀬店(スーパー)まで252m
-
ローソン 岡山平野店(コンビニ)まで645m
-
マツモトキヨシ 庭瀬店(ドラッグストア)まで252m
-
笛木内科医院(病院)まで189m
-
中国短期大学(大学・短大)まで648m
-
中国学園大学(大学・短大)まで648m
-
画像
-
画像
-
画像
-
画像
-
この物件が気になりましたか? 最新の空室状況は
問合せをすることで確認できます
- お問い合わせ先
- ホームメイトFC大元店(電話番号→お問い合わせ係)(株)後楽不動産
駅から徒歩7分に立地する物件です 生活する上でも不便を感じにくい築6年の物件です♪駅より徒歩7分で帰宅できる、快適な環境が魅力的な物件です(^^)
-
交通JR山陽本線 庭瀬駅 徒歩7分
JR吉備線 吉備津駅 徒歩3.6km
JR山陽本線 北長瀬駅 徒歩3.8km
| 敷引・償却 | - |
|---|---|
| 更新料 | - |
| 契約期間 | |
| カード決済 | 初期費用カード決済可 |
| 建物名 | シャーメゾン令和 |
| 建物構造 | 軽量鉄骨 |
| 駐車場 | 有 3,300円 |
| 現況 | |
| 入居可能時期 | 2026年1月上旬 |
| 住宅保険 | あり 2年 20000円 |
| 情報提供元 | SUUMO[080H100475291324] |
| 情報公開日 | |
| 情報更新日 | |
| 次回更新予定日 | 随時 |
地図
設備など
- バス・トイレ別
- 2階以上
- ペット相談可
-
駐車場
(近隣含) -
室内洗濯機
置き場 - エアコン
- 洗面所独立
- 追焚機能
- オートロック
設備
| バス・トイレ | バス・トイレ別、トイレ、追焚機能、浴室乾燥機、温水洗浄便座、風呂、浴トイレ別、オートバス |
|---|---|
| キッチン | カウンターキッチン、対面K、IHクッキングヒータ、コンロ2口以上 |
| 収納 | 収納スペース、ウォークインクローゼット、クローゼット、シューズボックス |
| セキュリティ | モニタ付インターホン |
| 室内設備 | 冷房、暖房、エアコン、洗濯機置場、洗面所、フローリング、シャンプードレッサ、衣類乾燥機、洗面所独立、室内洗濯機置き場 |
| 建物設備 | 給湯、プロパンガス、複層ガラス |
| 駐車場・駐輪場 | 駐輪場 |
| テレビ・通信 | インターネット無料、インターネット対応 |
備考
鍵交換代1.65万円 クリーニング費1.232万円/更新料 30000円 シャーメゾンライフSUPPORT24 月額1320円/保証会社利用必:初回事務手数料33,000円(税込)+月額賃料等相当額2%/仲介手数料1.100ヶ月/普通借家02年0ヶ月/平置駐/どこの不動産会社にお願いしようか迷っている方☆お部屋探しはホームメイト後楽不動産へ♪当社スタッフはお客様に寄り添った提案を心がけております♪女性スタッフ対応の要望や、初めてのお引越し時のアドバイス、初期費用についてや、保証人について、などなど何でもお気軽にご相談いただけたらと思います!お客様の条件に合う物件を納得いくまで一生懸命お探します♪”後楽不動産 ホームメイト”で検索して下さいね♪/バストイレ別/エアコン/クロゼット/フローリング/シャワー付洗面台/TVインターホン/浴室乾燥機/室内洗濯置/陽当り良好/シューズボックス/追焚機能浴室/温水洗浄便座/脱衣所/洗面所独立/洗面化粧台/駐輪場/閑静な住宅地/最上階/敷金不要/3口以上コンロ/対面式キッチン/IHクッキングヒーター/全居室収納/オートバス/全居室洋室/ウォークインクロゼット/24時間緊急通報システム/全居室フローリング/ネット専用回線/駅まで平坦/ネット使用料不要/24時間換気システム/複層ガラス/クロゼット2ヶ所/平坦地/耐震構造/駅徒歩10分以内/24時間ゴミ出し可/敷地内ごみ置き場/全居室6畳以上/プロパンガス/洗面所にドア/縦型照明付洗面化粧台/エコジョーズ/玄関収納/年度内入居可/礼金1ヶ月/IT重説 対応物件/初期費用カード決済可/通風良好/巡回管理/中国短期大学(大学・短大)まで648m/中国学園大学(大学・短大)まで648m/わたなべ生鮮館 庭瀬店(スーパー)まで252m/ローソン 岡山平野店(コンビニ)まで645m/マツモトキヨシ 庭瀬店(ドラッグストア)まで252m/笛木内科医院(病院)まで189m/賃貸戸数:8戸
続きを見る
特記事項
管理人巡回・最上階・日当り良好・閑静な住宅街・初期費用カード決済可
省エネ性能
| エネルギー消費性能 | - |
|---|---|
| 断熱性能 | - |
| 目安光熱費 | - |
- お問い合わせ先
- ホームメイトFC大元店(電話番号→お問い合わせ係)(株)後楽不動産
不動産会社情報
お問い合わせ先
| 商号 | ホームメイトFC大元店(電話番号→お問い合わせ係)(株)後楽不動産 |
|---|---|
| 免許番号 | 国土交通大臣(2)第8826号 |
| 所在地 | 岡山県岡山市北区西古松1-12-1 |
| TEL | 086-250-3666 |
| 取引態様 | 仲介 |
| 管理コード | 429244 |
| 所属協会など | 中国地区不動産公正取引協議会加盟、(公社)岡山県宅地建物取引業協会会員 |
この地域の暮らしデータ
岡山市の人口などの統計情報
| 世帯数 | 326986世帯 |
|---|---|
| 人口総数 | 698671人 |
| 転入者数 |
35771人 転入率(人口1000人当たり) 51.20人 |
| 転出者数 |
35292人 転出率(人口1000人当たり) 50.51人 |
| 土地平均価格 |
住宅地 61077円/m2 商業地 222130円/m2 |
岡山市の結婚・育児の助成金
| 出産・子育て | |
|---|---|
| 子育て関連の独自の取り組み | (1)心豊かな岡山っ子応援団で、出生児とその保護者に絵本を提供する事業を実施。(2)子育て情報のポータルサイト「こそだてぽけっと」を運用。(3)外遊びを通じた児童健全育成と地域で子どもの遊びを見守る環境づくりを進めるために、地域住民をプレーリーダーとして養成し、プレーパークを開催する事業を実施。(4)シルバー人材センターと連携し、産前産後の家庭へ、家事・育児支援を行う支援者を派遣する事業を実施。(5)「おかやまし子育てアプリ」を導入し、妊娠中や子育て中の市民に対してイベント、お知らせをプッシュ型で配信する事業を実施。 |
| 出産祝い |
なし
|
| 公立保育所数 |
29ヶ所 0歳児保育を実施 29ヶ所 |
| 私立保育所数 |
60ヶ所 0歳児保育を実施 60ヶ所 |
| 保育所入所待機児童数 | 0人 |
| 認定こども園数 | 70園 |
| 預かり保育実施園数-公立 | 0園 |
| 預かり保育実施園数-私立 | 8園 |
| 学校給食 | 【小学校】完全給食【中学校】完全給食 給食なし |
| 公立中学校の学校選択制 | 実施(小学校廃止後も、中学校は従来どおり隣接学区選択制を継続 ※各学校ごとに定員あり) |
| 子ども・学生等医療費助成<通院>対象年齢 | 18歳3月末まで |
| 子ども・学生等医療費助成<入院>対象年齢 | 18歳3月末まで |
岡山市の治安・ごみ収集情報
| 公共料金・インフラ | |
|---|---|
| ガス料金(22m3使用した場合の月額) | 岡山ガス株式会社6387円 |
| 水道料金(口径20mmで20m3の月額) | 岡山市3366円 |
| 下水道料金(20m3を使用した場合の月額) | 岡山市3011円 |
| 下水道普及率 | 69.2% |
| 安心・安全 | |
| 建物火災出火件数 |
96件 人口10000人当たり 1.32件 |
| 刑法犯認知件数 |
4552件 人口1000人当たり 6.28件 |
| ハザード・防災マップ | あり |
| 医療 | |
| 一般病院総数 | 50ヶ所 |
| 一般診療所総数 | 625ヶ所 |
| 小児科医師数 |
243人 小児人口10000人当たり 27.59人 |
| 産婦人科医師数 |
91人 15~49歳女性人口1万人当たり 6.44人 |
| 介護保険料基準額(月額) | 6640円 |
| ごみ | |
| 家庭ごみ収集(可燃ごみ) |
有料
|
| 家庭ごみの分別方式 | 5分別15種〔可燃ごみ 不燃ごみ プラスチック資源 資源化物(空き缶、ガラスびん[無色、茶色、青・黒・緑等]、古紙[新聞・チラシ、段ボール、紙パック、雑紙]、古布、ペットボトル、天ぷら油) 廃乾電池・体温計等〕 拠点回収:蛍光管 小型家電 |
| 家庭ごみの戸別収集 | 一部実施(市内に在住・在宅で生活し、介護保険の要介護1以上の認定を受けている方、視覚障害又は肢体不自由2級以上の身体障害者手帳の交付を受けている方のみで構成される世帯で、世帯員自らごみ等を集積場まで排出することが困難かつ排出に当たり親族又は近隣在住者等の協力が得られない世帯) |
| 粗大ごみ収集 |
あり
|
| 生ごみ処理機助成金制度 |
あり 上限金額 30000円 上限比率 50.0% |
暮らしデータ提供元:生活ガイド.com
※行政機関により公表していない地域及びデータがございます。東京23区以外の政令指定都市は、市全体のデータとして表示しています。
※提供データには細心の注意を払っておりますが、調査後に変更がある場合があります。 最新の情報につきましては各市区役所までお問い合わせいただくか、自治体HPなどをご確認ください。
※提供データには細心の注意を払っておりますが、調査後に変更がある場合があります。 最新の情報につきましては各市区役所までお問い合わせいただくか、自治体HPなどをご確認ください。
お気に入りの物件を見逃さない!
プッシュ通知で最新の物件情報が届く




