兵庫県加古川市加古川町美乃利 加古川駅 1LDK 賃貸(賃貸マンション・アパート)
1LDK / 加古川駅
- 情報提供元
- SUUMO
賃料5.4万円 / 管理費等4000円
-
外観
-
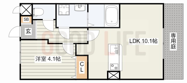
間取り
-
室内
-
室内
-
室内
-
室内
-
室内
-
室内
-
室内
-
専用庭
-
室内
-
室内
-
室内
-
マルアイ加古川駅前店(スーパー)まで950m
-
ファミリーマート 野口町坂元店(コンビニ)まで728m
-
兵庫県立加古川北高等学校(高校・高専)まで1473m
-
加古川市立氷丘中学校(中学校)まで1266m
-
加古川市立氷丘小学校(小学校)まで1074m
-
兵庫大学(大学・短大)まで3973m
-
画像
-
この物件が気になりましたか? 最新の空室状況は
問合せをすることで確認できます
- お問い合わせ先
- (株)Good Life
雨の日に便利な浴室乾燥付き物件です! モニターホン付きのお部屋です。お部屋から訪問者を確認できるので、セキュリティ面はもちろん、知らない人やセールスに対応する必要もありません。
-
交通JR山陽本線 加古川駅 徒歩17分
JR加古川線 日岡駅 徒歩28分
JR山陽本線 東加古川駅 徒歩37分
| 敷引・償却 | - |
|---|---|
| 更新料 | - |
| 契約期間 | |
| カード決済 | 初期費用カード決済可 |
| 建物名 | |
| 建物構造 | 鉄骨 |
| 駐車場 | 有 5,500円 |
| 現況 | |
| 入居可能時期 | 2025年12月上旬 |
| 住宅保険 | あり 2年 15000円 |
| 情報提供元 | SUUMO[060H100366929375] |
| 情報公開日 | |
| 情報更新日 | |
| 次回更新予定日 | 随時 |
地図
設備など
- バス・トイレ別
- 2階以上
- ペット相談可
-
駐車場
(近隣含) -
室内洗濯機
置き場 - エアコン
- 洗面所独立
- 追焚機能
- オートロック
設備
| バス・トイレ | バス・トイレ別、トイレ、浴室乾燥機、温水洗浄便座、浴トイレ別 |
|---|---|
| キッチン | ガスコンロ可、システムキッチン、カウンターキッチン、対面K、コンロ2口以上 |
| 収納 | 収納スペース、シューズボックス |
| セキュリティ | モニタ付インターホン |
| 室内設備 | 冷房、暖房、エアコン、洗濯機置場、洗面所、シャンプードレッサ、衣類乾燥機、洗面所独立、室内洗濯機置き場 |
| 建物設備 | プロパンガス、専用庭 |
| 駐車場・駐輪場 | 駐輪場 |
備考
クリーニング費40700円/退去時 消毒施工料:17050円/初回/保証会社利用必:株式会社ジャックス利用必須 初回保証料:10,000円:以降は月額総賃料の1%/毎月(入居期間中)/二人入居可/バストイレ別/エアコン/ガスコンロ対応/シャワー付洗面台/TVインターホン/浴室乾燥機/室内洗濯置/シューズボックス/システムキッチン/温水洗浄便座/洗面所独立/2口コンロ/駐輪場/閑静な住宅地/対面式キッチン/全居室洋室/保証人不要/二人入居相談/2沿線利用可/専用庭/雨戸/2駅利用可/3駅以上利用可/敷地内ごみ置き場/プロパンガス/シャッター/IT重説 対応物件/初期費用カード決済可/巡回管理/加古川市立氷丘小学校(小学校)まで1074m/加古川市立氷丘中学校(中学校)まで1266m/兵庫県立加古川北高等学校(高校・高専)まで1473m/兵庫大学(大学・短大)まで3973m/ファミリーマート 野口町坂元店(コンビニ)まで728m/マルアイ加古川駅前店(スーパー)まで950m/賃貸戸数:20戸
続きを見る
特記事項
二人入居可・管理人巡回・閑静な住宅街・保証人不要/代行 ・初期費用カード決済可
省エネ性能
| エネルギー消費性能 | - |
|---|---|
| 断熱性能 | - |
| 目安光熱費 | - |
- お問い合わせ先
- (株)Good Life
不動産会社情報
お問い合わせ先
| 商号 | (株)Good Life |
|---|---|
| 免許番号 | 兵庫県知事(1)第401725号 |
| 所在地 | 兵庫県加古川市東神吉町西井ノ口 581-1 サライブビル101 |
| TEL | 079-490-9055 |
| 取引態様 | 仲介 |
| 管理コード | 5616 |
| 所属協会など | (公社)近畿地区不動産公正取引協議会加盟、(一社)兵庫県宅地建物取引業協会会員 |
この地域の暮らしデータ
加古川市の人口などの統計情報
| 世帯数 | 107075世帯 |
|---|---|
| 人口総数 | 258691人 |
| 転入者数 |
8245人 転入率(人口1000人当たり) 31.87人 |
| 転出者数 |
7948人 転出率(人口1000人当たり) 30.72人 |
| 土地平均価格 |
住宅地 81219円/m2 商業地 138450円/m2 |
加古川市の結婚・育児の助成金
| 出産・子育て | |
|---|---|
| 子育て関連の独自の取り組み | (1)子育て支援予防接種助成事業(任意の予防接種のうち、おたふく風邪・三種混合ワクチンの接種料金の一部[2,000円・各1回限り]を助成)。(2)不妊不育症治療費助成事業(不妊・不育症の検査・治療を受けた夫婦に費用の一部を助成。一般不妊治療3万円/年、特定不妊治療5万円/回、不育症治療10万円/年を上限。所得制限なし)。(3)無料託児サービス(主に在宅で子育てをする家庭を対象に、市内2ヶ所の子育てプラザ内で加古川市在住の6ヶ月から就学前の子どもを無料で預かるサービスを実施している)。(4)育児休業からの復職に伴う利用申し込み(育児休業からの復職を予定している保護者を対象に、早期から年度途中の入園予約を受付)。 |
| 出産祝い |
あり
|
| 公立保育所数 |
3ヶ所 0歳児保育を実施 3ヶ所 |
| 私立保育所数 |
13ヶ所 0歳児保育を実施 13ヶ所 |
| 保育所入所待機児童数 | 12人 |
| 認定こども園数 | 31園 |
| 預かり保育実施園数-公立 | 16園 |
| 預かり保育実施園数-私立 | 2園 |
| 学校給食 | 【小学校】完全給食【中学校】完全給食 |
| 公立中学校の学校選択制 | 未実施 |
| 子ども・学生等医療費助成<通院>対象年齢 | 18歳3月末まで |
| 子ども・学生等医療費助成<入院>対象年齢 | 18歳3月末まで |
加古川市の治安・ごみ収集情報
| 公共料金・インフラ | |
|---|---|
| ガス料金(22m3使用した場合の月額) | 大阪瓦斯株式会社4544円 |
| 水道料金(口径20mmで20m3の月額) | 加古川市2596円 |
| 下水道料金(20m3を使用した場合の月額) | 加古川市2530円 |
| 下水道普及率 | 92.4% |
| 安心・安全 | |
| 建物火災出火件数 |
36件 人口10000人当たり 1.38件 |
| 刑法犯認知件数 |
1752件 人口1000人当たり 6.72件 |
| ハザード・防災マップ | あり |
| 医療 | |
| 一般病院総数 | 12ヶ所 |
| 一般診療所総数 | 179ヶ所 |
| 小児科医師数 |
50人 小児人口10000人当たり 16.09人 |
| 産婦人科医師数 |
18人 15~49歳女性人口1万人当たり 3.72人 |
| 介護保険料基準額(月額) | 5600円 |
| ごみ | |
| 家庭ごみ収集(可燃ごみ) |
無料
|
| 家庭ごみの分別方式 | 3分別17種〔燃やすごみ 燃やさないごみ 資源物(カン[飲食料用カン、スプレー缶・カセットボンベ]、ビン[無色びん、茶色びん、その他の色びん]、ペットボトル、紙[新聞紙・折込チラシ、段ボール、雑誌・雑がみ、紙パック]、衣類、蛍光灯、乾電池、ライター、剪定枝)〕 拠点回収:使用済小型家電 ライター インクカートリッジ 水銀使用製品 |
| 家庭ごみの戸別収集 | 一部実施(【加古川市さわやか収集】実施要綱に該当する高齢者、心身障がい者等を対象に家庭ごみ戸別収集を実施) |
| 粗大ごみ収集 |
あり
|
| 生ごみ処理機助成金制度 |
あり 上限金額 30000円 上限比率 50.0% |
暮らしデータ提供元:生活ガイド.com
※行政機関により公表していない地域及びデータがございます。東京23区以外の政令指定都市は、市全体のデータとして表示しています。
※提供データには細心の注意を払っておりますが、調査後に変更がある場合があります。 最新の情報につきましては各市区役所までお問い合わせいただくか、自治体HPなどをご確認ください。
※提供データには細心の注意を払っておりますが、調査後に変更がある場合があります。 最新の情報につきましては各市区役所までお問い合わせいただくか、自治体HPなどをご確認ください。
お気に入りの物件を見逃さない!
プッシュ通知で最新の物件情報が届く




