ピースフィールズ 赤十字前駅 2DK 賃貸(賃貸マンション・アパート)
2DK / 赤十字前駅
- 情報提供元
- SUUMO
          賃料6万円 / 管理費等6500円        
        
      - 
        
        外観
- 
        
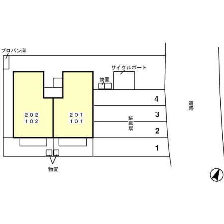
        間取り
- 
        
        室内
- 
        
        室内
- 
        
        室内
- 
        
        室内
- 
        
        室内
- 
        
        室内
- 
        
        室内
- 
        
        室内
- 
        
        室内
- 
        
        室内
- 
        
        室内
- 
        
        ローソン 福井御幸三丁目店(コンビニ)まで1336m
- 
        
        セブンイレブン 福井板垣2丁目店(コンビニ)まで1099m
- 
        
        GENKY(ゲンキー) 木田店(ドラッグストア)まで1572m
- 
        
        GENKY(ゲンキー) 勝見店(ドラッグストア)まで1117m
- 
        
        V・drug 福井御幸店(ドラッグストア)まで1806m
- 
        
        画像
- 
        この物件が気になりましたか? 最新の空室状況は
 問合せをすることで確認できます
- お問い合わせ先
- いい部屋ネット福井二の宮店(株)いい部屋ドットコム
      インターネット無料のお部屋です! インターネット無料のお部屋です!モニター越しに来訪者を確認して、インターホンを通じて室内から会話することができます!
    
    - 
          交通福井鉄道福武線 赤十字前駅 徒歩27分
 ハピラインふくい 越前花堂駅 徒歩32分
 JR越美北線 六条駅 徒歩33分
| 敷引・償却 | - | 
|---|---|
| 更新料 | - | 
| 契約期間 | |
| カード決済 | 初期費用カード決済可 家賃カード決済可 | 
| 建物名 | ピースフィールズ | 
| 建物構造 | 軽量鉄骨 | 
| 駐車場 | 有 4,400円 | 
| 現況 | |
| 入居可能時期 | 2025年10月中旬 | 
| 住宅保険 | あり | 
| 情報提供元 | SUUMO[040H100470083953] | 
| 情報公開日 | |
| 情報更新日 | |
| 次回更新予定日 | 随時 | 
地図
 
        設備など
- バス・トイレ別
- 2階以上
- ペット相談可
- 
          
          駐車場
 (近隣含)
- 
          
          室内洗濯機
 置き場
- エアコン
- 洗面所独立
- 追焚機能
- オートロック
設備
| バス・トイレ | バス・トイレ別、トイレ、追焚機能、温水洗浄便座、風呂、浴トイレ別 | 
|---|---|
| 収納 | 収納スペース、クローゼット、物置、床下収納、シューズボックス | 
| セキュリティ | モニタ付インターホン、カードキー | 
| 室内設備 | 冷房、暖房、エアコン、洗濯機置場、洗面所、フローリング、照明器具、シャンプードレッサ、室内洗濯機置き場 | 
| 建物設備 | プロパンガス、宅配BOX | 
| テレビ・通信 | CATV、インターネット無料、インターネット対応 | 
備考
          損保要/鍵交換代1.65万円/更新料 新賃料1.00ヶ月分 室内清掃費用 60500円/保証会社利用必:機関保証加入必須。初回保証料35000円、月額保証料賃料等総額の1%+800円/月(商品あり) 65歳以上の方の契約は定期借家契約(2年再契約型)、機関保証の加入が必須となります(初回保証料:月額賃料等合計額×100% 更新:2万円/1年)/仲介手数料1.100ヶ月/普通借家02年0ヶ月/バストイレ別/エアコン/クロゼット/フローリング/シャワー付洗面台/TVインターホン/室内洗濯置/シューズボックス/南向き/追焚機能浴室/温水洗浄便座/洗面化粧台/宅配ボックス/CATV/照明付/カードキー/ネット専用回線/物置/ネット使用料不要/床下収納/プロパンガス/保証会社利用可/初期費用カード決済可/家賃カード決済可/GENKY(ゲンキー) 木田店(ドラッグストア)まで1572m/GENKY(ゲンキー) 勝見店(ドラッグストア)まで1117m/ローソン 福井御幸三丁目店(コンビニ)まで1336m/セブンイレブン 福井板垣2丁目店(コンビニ)まで1099m/V・drug 福井御幸店(ドラッグストア)まで1806m/ファミリーマート 福井下馬店(コンビニ)まで1190m 
        
        続きを見る
      特記事項
          初期費用カード決済可・家賃カード決済可 
        
      省エネ性能
| エネルギー消費性能 | - | 
|---|---|
| 断熱性能 | - | 
| 目安光熱費 | - | 
- お問い合わせ先
- いい部屋ネット福井二の宮店(株)いい部屋ドットコム
不動産会社情報
お問い合わせ先
        商号:いい部屋ネット福井二の宮店(株)いい部屋ドットコム
免許番号:福井県知事(1)第1750号
所在地:福井県福井市経田1-207
TEL:0776-89-1077
取引態様:仲介
管理コード:98602 この会社の他の物件情報を見る
      
    免許番号:福井県知事(1)第1750号
所在地:福井県福井市経田1-207
TEL:0776-89-1077
取引態様:仲介
管理コード:98602 この会社の他の物件情報を見る
この地域の暮らしデータ
福井市の人口などの統計情報
| 世帯数 | 104190世帯 | 
|---|---|
| 人口総数 | 255949人 | 
| 転入者数 | 7475人 転入率(人口1000人当たり) 29.21人 | 
| 転出者数 | 7881人 転出率(人口1000人当たり) 30.79人 | 
| 土地平均価格 | 住宅地 50059円/m2 商業地 105896円/m2 | 
福井市の結婚・育児の助成金
| 出産・子育て | |
|---|---|
| 子育て関連の独自の取り組み | - | 
| 出産祝い | なし 
 | 
| 公立保育所数 | 19ヶ所 0歳児保育を実施 19ヶ所 | 
| 私立保育所数 | 5ヶ所 0歳児保育を実施 5ヶ所 | 
| 保育所入所待機児童数 | 0人 | 
| 認定こども園数 | 69園 | 
| 預かり保育実施園数-公立 | - | 
| 預かり保育実施園数-私立 | 4園 | 
| 学校給食 | 【小学校】完全給食【中学校】完全給食 | 
| 公立中学校の学校選択制 | 一部実施(特認校制。入学時のみ) | 
| 子ども・学生等医療費助成<通院>対象年齢 | 18歳3月末まで | 
| 子ども・学生等医療費助成<入院>対象年齢 | 18歳3月末まで | 
福井市の治安・ごみ収集情報
| 公共料金・インフラ | |
|---|---|
| ガス料金(22m3使用した場合の月額) | 福井都市ガス株式会社5752円 | 
| 水道料金(口径20mmで20m3の月額) | 福井市2277円 福井市(簡易水道)2277円 | 
| 下水道料金(20m3を使用した場合の月額) | 福井市2618円 | 
| 下水道普及率 | 90.8% | 
| 安心・安全 | |
| 建物火災出火件数 | 19件 人口10000人当たり 0.72件 | 
| 刑法犯認知件数 | 1281件 人口1000人当たり 4.88件 | 
| ハザード・防災マップ | あり | 
| 医療 | |
| 一般病院総数 | 23ヶ所 | 
| 一般診療所総数 | 253ヶ所 | 
| 小児科医師数 | 83人 小児人口10000人当たり 26.58人 | 
| 産婦人科医師数 | 34人 15~49歳女性人口1万人当たり 7.20人 | 
| 介護保険料基準額(月額) | 6600円 | 
| ごみ | |
| 家庭ごみ収集(可燃ごみ) | 無料 
 | 
| 家庭ごみの分別方式 | 3分別12種〔資源物(プラスチック製容器包装、空き缶、空きビン[無色、青・緑、茶色、黒]、ペットボトル、紙類[ダンボール、紙製容器]、紙パック、乾電池、スプレー缶、蛍光灯) 燃やせるごみ 燃やせないごみ〕 拠点回収:小型家電 集団資源回収:新聞 雑誌(雑がみ) | 
| 家庭ごみの戸別収集 | 未実施 | 
| 粗大ごみ収集 | あり 
 | 
| 生ごみ処理機助成金制度 | なし 上限金額 - 上限比率 - | 
      暮らしデータ提供元:生活ガイド.com
    
    
      ※行政機関により公表していない地域及びデータがございます。東京23区以外の政令指定都市は、市全体のデータとして表示しています。
      
※提供データには細心の注意を払っておりますが、調査後に変更がある場合があります。 最新の情報につきましては各市区役所までお問い合わせいただくか、自治体HPなどをご確認ください。
  ※提供データには細心の注意を払っておりますが、調査後に変更がある場合があります。 最新の情報につきましては各市区役所までお問い合わせいただくか、自治体HPなどをご確認ください。
この物件を見た人はこんな物件も
見ています
    
  お気に入りの物件を見逃さない!
プッシュ通知で最新の物件情報が届く


 
           
           
           
           
           
           
           
           
           
           
           
           
           
           
           
           
           
           
           
           
           
           
           
          





 
           
           
           
           
           
          