ビストハウスI 茨目駅 1K 賃貸(賃貸マンション・アパート)
1K / 茨目駅
- 情報提供元
- SUUMO
賃料3.5万円 / 管理費等3000円
-
外観
-
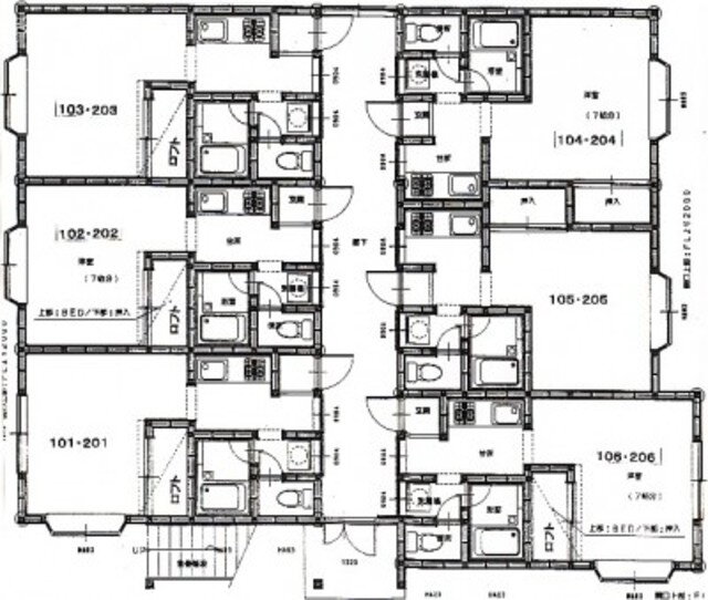
間取り
-
室内
-
室内
-
室内
-
室内
-
室内
-
ロフトベットスペース
-
室内
-
室内
-
画像
-
画像
-
画像
-
この物件が気になりましたか? 最新の空室状況は
問合せをすることで確認できます
- お問い合わせ先
- (株)リビングギャラリー柏崎店
★☆賃貸物件をお探しならリビングギャラリー柏崎店へ☆★ 家電付き!ロフトベットスペース有り! 田尻工業団地近くです♪
-
交通JR信越本線 茨目駅 徒歩15分
| 敷引・償却 | - |
|---|---|
| 更新料 | - |
| 契約期間 | |
| カード決済 | - |
| 建物名 | ビストハウスI |
| 建物構造 | 木造 |
| 駐車場 | 有 4,400円 |
| 現況 | |
| 入居可能時期 | 即時 |
| 住宅保険 | あり 2年 15000円 |
| 情報提供元 | SUUMO[040H100418270448] |
| 情報公開日 | |
| 情報更新日 | |
| 次回更新予定日 | 随時 |
地図
設備など
- バス・トイレ別
- 2階以上
- ペット相談可
-
駐車場
(近隣含) -
室内洗濯機
置き場 - エアコン
- 洗面所独立
- 追焚機能
- オートロック
設備
| バス・トイレ | バス・トイレ別、トイレ、浴トイレ別 |
|---|---|
| 収納 | 収納スペース |
| 室内設備 | フローリング |
| 建物設備 | 都市ガス |
| テレビ・通信 | BS端子 |
備考
仲介手数料38500円/駐車場契約手数料4400円/保証会社利用可:初回保証料 月額費用の50% 更新料1万円/年/仲介手数料1.1ヶ月/普通借家2年/子供不可/バストイレ別/フローリング/押入/即入居可/礼金不要/最上階/独立型キッチン/敷金1ヶ月/保証金不要/家電付/平面駐車場/都市ガス/BS/保証会社利用可/セーブオン柏崎上田尻店(コンビニ)まで884m/コメリハード&グリーン柏崎安田店(ホームセンター)まで926m/柏崎市立田尻小学校(小学校)まで1175m/柏崎市立田尻保育園(幼稚園・保育園)まで1200m/田尻郵便局(郵便局)まで1147m/JA柏崎東部田尻支店(銀行)まで1034m/賃貸戸数:12戸
続きを見る
特記事項
最上階
省エネ性能
| エネルギー消費性能 | - |
|---|---|
| 断熱性能 | - |
| 目安光熱費 | - |
- お問い合わせ先
- (株)リビングギャラリー柏崎店
不動産会社情報
お問い合わせ先
商号:(株)リビングギャラリー柏崎店
免許番号:国土交通大臣(6)第5854号
所在地:新潟県柏崎市長浜町 6-27
TEL:0800-1116301
取引態様:仲介
管理コード:65179664
所属協会など:(公社)首都圏不動産公正取引協議会加盟、(公社)新潟県宅地建物取引業協会会員 この会社の他の物件情報を見る
免許番号:国土交通大臣(6)第5854号
所在地:新潟県柏崎市長浜町 6-27
TEL:0800-1116301
取引態様:仲介
管理コード:65179664
所属協会など:(公社)首都圏不動産公正取引協議会加盟、(公社)新潟県宅地建物取引業協会会員 この会社の他の物件情報を見る
この地域の暮らしデータ
柏崎市の人口などの統計情報
| 世帯数 | 33839世帯 |
|---|---|
| 人口総数 | 77493人 |
| 転入者数 |
1764人 転入率(人口1000人当たり) 22.76人 |
| 転出者数 |
2155人 転出率(人口1000人当たり) 27.81人 |
| 土地平均価格 |
住宅地 16979円/m2 商業地 47750円/m2 |
柏崎市の結婚・育児の助成金
| 出産・子育て | |
|---|---|
| 子育て関連の独自の取り組み | (1)2023年10月から、1・2歳児の保育料を無料化。3~5歳児の幼稚園・保育園等の利用料はすでに無料化の対象。(2)3歳以下のお子さんを対象に、子育て支援サービスやベビー用品の購入等に利用できる子育て応援券を毎年支給。支給額:1万円(500円券20枚)×4年間(0歳から3歳まで毎年支給)。 |
| 出産祝い |
なし
|
| 公立保育所数 |
13ヶ所 0歳児保育を実施 13ヶ所 |
| 私立保育所数 |
13ヶ所 0歳児保育を実施 13ヶ所 |
| 保育所入所待機児童数 | 0人 |
| 認定こども園数 | 4園 |
| 預かり保育実施園数-公立 | - |
| 預かり保育実施園数-私立 | 1園 |
| 学校給食 | 【小学校】完全給食【中学校】完全給食 |
| 公立中学校の学校選択制 | 未実施 |
| 子ども・学生等医療費助成<通院>対象年齢 | 18歳3月末まで |
| 子ども・学生等医療費助成<入院>対象年齢 | 18歳3月末まで |
柏崎市の治安・ごみ収集情報
| 公共料金・インフラ | |
|---|---|
| ガス料金(22m3使用した場合の月額) | 北陸瓦斯株式会社(柏崎地区)3412円 |
| 水道料金(口径20mmで20m3の月額) | 柏崎市3102円 |
| 下水道料金(20m3を使用した場合の月額) | 柏崎市3201円 |
| 下水道普及率 | 76.8% |
| 安心・安全 | |
| 建物火災出火件数 |
21件 人口10000人当たり 2.58件 |
| 刑法犯認知件数 |
220件 人口1000人当たり 2.70件 |
| ハザード・防災マップ | あり |
| 医療 | |
| 一般病院総数 | 4ヶ所 |
| 一般診療所総数 | 55ヶ所 |
| 小児科医師数 |
10人 小児人口10000人当たり 13.28人 |
| 産婦人科医師数 |
6人 15~49歳女性人口1万人当たり 4.89人 |
| 介護保険料基準額(月額) | 5941円 |
| ごみ | |
| 家庭ごみ収集(可燃ごみ) |
有料
|
| 家庭ごみの分別方式 | 3分別16種〔燃やすごみ 燃やさないごみ 資源物(空き缶、スプレー缶、空きびん[無色・透明、茶色、その他の色]、ペットボトル、プラスチック製容器包装、紙製容器包装、新聞、雑誌・雑紙、ダンボール、紙パック、剪定枝・庭の草、廃蛍光管)〕 拠点回収:使用済小型家電 廃乾電池(店頭回収もあり) 古着・もめん 廃食用油 使用済インクカートリッジ |
| 家庭ごみの戸別収集 | 未実施 |
| 粗大ごみ収集 |
あり
|
| 生ごみ処理機助成金制度 |
なし 上限金額 - 上限比率 - |
暮らしデータ提供元:生活ガイド.com
※行政機関により公表していない地域及びデータがございます。東京23区以外の政令指定都市は、市全体のデータとして表示しています。
※提供データには細心の注意を払っておりますが、調査後に変更がある場合があります。 最新の情報につきましては各市区役所までお問い合わせいただくか、自治体HPなどをご確認ください。
※提供データには細心の注意を払っておりますが、調査後に変更がある場合があります。 最新の情報につきましては各市区役所までお問い合わせいただくか、自治体HPなどをご確認ください。
お気に入りの物件を見逃さない!
プッシュ通知で最新の物件情報が届く




