東京都大田区蒲田本町2 京急蒲田駅 ワンルーム 賃貸(賃貸マンション・アパート)
ワンルーム / 京急蒲田駅
- 情報提供元
- SUUMO
賃料11.2万円 / 管理費等5000円
-
外観もきれいです
-
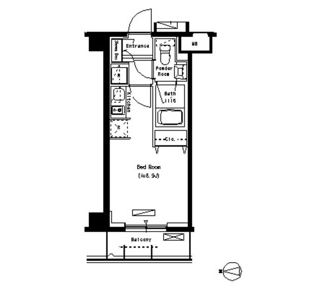
間取り
-
※写真は同タイプ住戸です。
-
※写真は同タイプ住戸です。
-
※写真は同タイプ住戸です。
-
※写真は同タイプ住戸です。
-
※写真は同タイプ住戸です。
-
※写真は同タイプ住戸です。
-
※写真は同タイプ住戸です。
-
落ち着いたエントランスです
-
画像
-
外観もきれいです
-
※写真は同タイプ住戸です。
-
画像
-
この物件が気になりましたか? 最新の空室状況は
問合せをすることで確認できます
- お問い合わせ先
- (株)DoDoNPA日暮里店
こちらはエレベーター付き物件です エントランスのオートロックと玄関の鍵で二重にロックできるので防犯対策につながります。共用部にはゴミ出し24時間OK・宅配ボックスなどが揃っております。こちらの物件にはエレベーターがあります。
-
交通京急本線 京急蒲田駅 徒歩8分
JR京浜東北線 蒲田駅 徒歩12分
京急本線 雑色駅 徒歩12分
| 敷引・償却 | - |
|---|---|
| 更新料 | - |
| 契約期間 | |
| カード決済 | - |
| 建物名 | |
| 建物構造 | RC |
| 駐車場 | 無 |
| 現況 | |
| 入居可能時期 | 2026年1月中旬 |
| 住宅保険 | あり |
| 情報提供元 | SUUMO[030H100472380882] |
| 情報公開日 | |
| 情報更新日 | |
| 次回更新予定日 | 随時 |
地図
設備など
- バス・トイレ別
- 2階以上
- ペット相談可
-
駐車場
(近隣含) -
室内洗濯機
置き場 - エアコン
- 洗面所独立
- 追焚機能
- オートロック
設備
| バス・トイレ | バス・トイレ別、トイレ、浴室乾燥機、浴トイレ別 |
|---|---|
| キッチン | システムキッチン |
| セキュリティ | オートロック |
| 室内設備 | 冷房、暖房、エアコン、洗濯機置場、衣類乾燥機、室内洗濯機置き場 |
| 建物設備 | バルコニー、エレベーター、宅配BOX |
| 駐車場・駐輪場 | バイク置き場 |
| テレビ・通信 | CATV、BS端子、CS、インターネット対応 |
備考
損保要/室内清掃費5.5万円 鍵交換費1.65万円/更新料 賃料1.00ヶ月分 口座振替事務手数料 月額110円/保証会社利用必:初回保証委託料(最低20 000円):月額賃料等の50%、 2年目以降:9 600円/年/仲介手数料1.100ヶ月/普通借家02年0ヶ月/ペット相談/楽器相談/事務所利用不可/バストイレ別/バルコニー/エアコン/浴室乾燥機/オートロック/室内洗濯置/システムキッチン/エレベーター/宅配ボックス/CATV/ペット相談/CATVインターネット/バイク置場/CS/楽器相談/24時間ゴミ出し可/敷地内ごみ置き場/BS/巡回管理
続きを見る
特記事項
ペット相談可・楽器相談・管理人巡回
省エネ性能
| エネルギー消費性能 | - |
|---|---|
| 断熱性能 | - |
| 目安光熱費 | - |
- お問い合わせ先
- (株)DoDoNPA日暮里店
不動産会社情報
お問い合わせ先
| 商号 | (株)DoDoNPA日暮里店 |
|---|---|
| 免許番号 | 東京都知事(1)第110262号 |
| 所在地 | 東京都荒川区西日暮里2-18-2 イトウビル3階 |
| TEL | 03-5604-5031 |
| 取引態様 | 仲介 |
| 管理コード | 1246952 |
| 所属協会など | (公社)首都圏不動産公正取引協議会加盟、(公社)全日本不動産協会東京都本部会員 |
この地域の暮らしデータ
大田区の人口などの統計情報
| 世帯数 | 399628世帯 |
|---|---|
| 人口総数 | 733634人 |
| 転入者数 |
55358人 転入率(人口1000人当たり) 75.46人 |
| 転出者数 |
47162人 転出率(人口1000人当たり) 64.29人 |
| 土地平均価格 |
住宅地 524720円/m2 商業地 895412円/m2 |
大田区の結婚・育児の助成金
| 出産・子育て | |
|---|---|
| 子育て関連の独自の取り組み | 区内保育施設の人材の確保・定着を支援し、また保育の質の向上を目的とする研修実施の他、若年層保育士の定着促進と中堅・ベテラン層保育士の同一施設における継続勤務を奨励することで保育士の質の向上を図る保育士応援手当を交付している。 |
| 出産祝い |
あり
|
| 公立保育所数 |
37ヶ所 0歳児保育を実施 26ヶ所 |
| 私立保育所数 |
155ヶ所 0歳児保育を実施 104ヶ所 |
| 保育所入所待機児童数 | 0人 |
| 認定こども園数 | 0園 |
| 預かり保育実施園数-公立 | 0園 |
| 預かり保育実施園数-私立 | 45園 |
| 学校給食 | 【小学校】完全給食【中学校】完全給食 |
| 公立中学校の学校選択制 | 未実施 |
| 子ども・学生等医療費助成<通院>対象年齢 | 18歳3月末まで |
| 子ども・学生等医療費助成<入院>対象年齢 | 18歳3月末まで |
大田区の治安・ごみ収集情報
| 公共料金・インフラ | |
|---|---|
| ガス料金(22m3使用した場合の月額) | 東京瓦斯株式会社(東京地区等)3926円 |
| 水道料金(口径20mmで20m3の月額) | 東京都水道局2816円 |
| 下水道料金(20m3を使用した場合の月額) | 東京都下水道局2068円 |
| 下水道普及率 | 100.0% |
| 安心・安全 | |
| 建物火災出火件数 |
118件 人口10000人当たり 1.58件 |
| 刑法犯認知件数 |
3851件 人口1000人当たり 5.15件 |
| ハザード・防災マップ | あり |
| 医療 | |
| 一般病院総数 | 24ヶ所 |
| 一般診療所総数 | 613ヶ所 |
| 小児科医師数 |
149人 小児人口10000人当たり 19.74人 |
| 産婦人科医師数 |
66人 15~49歳女性人口1万人当たり 3.96人 |
| 介護保険料基準額(月額) | 6600円 |
| ごみ | |
| 家庭ごみ収集(可燃ごみ) |
無料
|
| 家庭ごみの分別方式 | 3分別11種〔可燃ごみ 不燃ごみ 資源9品目(新聞・チラシ、雑誌・雑がみ、紙パック、段ボール、飲食用びん、飲食用かん、食品トレイ、ペットボトル、発泡スチロール)〕 拠点回収:使用済小型家電10品目(携帯電話 携帯音楽プレーヤー 携帯ゲーム機器 デジタルカメラ ポータブルビデオカメラ ポータブルカーナビ 電子辞書 卓上計算機 ACアダプター USBメモリ) 廃食用油 古着 |
| 家庭ごみの戸別収集 | 一部実施(次のいずれかに該当する者のみで構成される世帯で、自ら集積所までごみを持ち出すことが困難であり、また他の者の協力を得ることができない世帯。[1]要介護2以上に認定されていること。[2]身体障害者障害程度1級及び2級に認定されていること。[3]その他、区長が認める者) |
| 粗大ごみ収集 |
あり
|
| 生ごみ処理機助成金制度 |
なし 上限金額 - 上限比率 - |
暮らしデータ提供元:生活ガイド.com
※行政機関により公表していない地域及びデータがございます。東京23区以外の政令指定都市は、市全体のデータとして表示しています。
※提供データには細心の注意を払っておりますが、調査後に変更がある場合があります。 最新の情報につきましては各市区役所までお問い合わせいただくか、自治体HPなどをご確認ください。
※提供データには細心の注意を払っておりますが、調査後に変更がある場合があります。 最新の情報につきましては各市区役所までお問い合わせいただくか、自治体HPなどをご確認ください。
お気に入りの物件を見逃さない!
プッシュ通知で最新の物件情報が届く



