メゾンクオーレ B 山形駅 2LDK 賃貸(賃貸マンション・アパート)
2LDK / 山形駅
- 情報提供元
- SUUMO
賃料6.4万円 / 管理費等4000円
-
外観
-
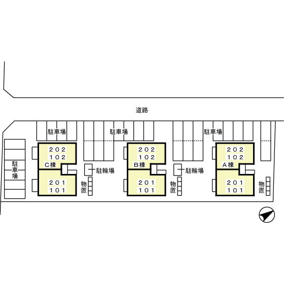
間取り
-
LDK
-
キッチン
-
浴室
-
トイレ
-
北洋室
-
北洋室
-
洗髪洗面化粧台
-
TVインターホン
-
室内物干☆
-
専用庭
-
シューズボックス
-
嶋ファッションモール(ショッピングセンター)まで727m
-
(株)おーばん 山形嶋店(スーパー)まで763m
-
ファミリーマート 山形嶋店(コンビニ)まで293m
-
(株)ダイユーエイト 山形嶋店(ホームセンター)まで847m
-
ドン・キホーテ 山形嶋南店(その他)まで535m
-
ザ・ダイソーヨークタウン嶋店(その他)まで1103m
-
画像
-
この物件が気になりましたか? 最新の空室状況は
問合せをすることで確認できます
- お問い合わせ先
- エイブルネットワーク山形ときめき通り店(株)セレサ
コチラの物件はBSアンテナ設置済みの物件となっています 室内設備は照明付き・ネット使用料不要・追い焚きなどが揃っており、とても充実しています。顔が見える安心のTVインターホン付きです。こちらの物件の家賃は6.4万です。
-
交通山形新幹線 山形駅 徒歩4.4km
JR左沢線 東金井駅 徒歩19分
JR奥羽本線 北山形駅 徒歩33分
| 敷引・償却 | - |
|---|---|
| 更新料 | - |
| 契約期間 | |
| カード決済 | - |
| 建物名 | メゾンクオーレ B |
| 建物構造 | 軽量鉄骨 |
| 駐車場 | 有 無料 |
| 現況 | |
| 入居可能時期 | 2026年1月下旬 |
| 住宅保険 | あり |
| 情報提供元 | SUUMO[020H100475283099] |
| 情報公開日 | |
| 情報更新日 | |
| 次回更新予定日 | 随時 |
地図
設備など
- バス・トイレ別
- 2階以上
- ペット相談可
-
駐車場
(近隣含) -
室内洗濯機
置き場 - エアコン
- 洗面所独立
- 追焚機能
- オートロック
設備
| バス・トイレ | バス・トイレ別、トイレ、追焚機能、温水洗浄便座、風呂、浴トイレ別 |
|---|---|
| キッチン | カウンターキッチン、対面K |
| 収納 | 収納スペース、クローゼット、物置、シューズボックス |
| セキュリティ | モニタ付インターホン |
| 室内設備 | 冷房、暖房、エアコン、洗濯機置場、フローリング、照明器具、室内洗濯機置き場 |
| 建物設備 | プロパンガス、宅配BOX、テラス |
| 駐車場・駐輪場 | 駐輪場 |
| テレビ・通信 | CATV、BS端子、インターネット無料、インターネット対応 |
備考
損保要/IC 電池(初回)0.275万円/更新料 賃料1.00ヶ月分 室内清掃費用 71500円/保証会社利用必:保証料:月額賃料等(共益費・駐車料等含む)の3.4%+800円/月 Dスマイル」●保証料:月額賃料等(共益費・駐車料等含む)の3.4%+800円/月 更新保証料無し 毎月の賃料等は 必須(お手持ち 使用可)/仲介手数料1.100ヶ月/バストイレ別/エアコン/クロゼット/フローリング/TVインターホン/室内洗濯置/シューズボックス/追焚機能浴室/温水洗浄便座/駐輪場/宅配ボックス/CATV/対面式キッチン/照明付/物置/ネット使用料不要/テラス/プロパンガス/BS/(株)おーばん 山形嶋店(スーパー)まで763m/嶋ファッションモール(ショッピングセンター)まで727m/ドン・キホーテ 山形嶋南店(その他)まで535m/ファミリーマート 山形嶋店(コンビニ)まで293m/ザ・ダイソーヨークタウン嶋店(その他)まで1103m/(株)ダイユーエイト 山形嶋店(ホームセンター)まで847m
続きを見る
特記事項
省エネ性能
| エネルギー消費性能 | - |
|---|---|
| 断熱性能 | - |
| 目安光熱費 | - |
- お問い合わせ先
- エイブルネットワーク山形ときめき通り店(株)セレサ
不動産会社情報
お問い合わせ先
| 商号 | エイブルネットワーク山形ときめき通り店(株)セレサ |
|---|---|
| 免許番号 | 山形県知事(3)第2435号 |
| 所在地 | 山形県山形市花楯2-18-71 |
| TEL | 023-625-7325 |
| 取引態様 | 仲介 |
| 管理コード | 700000244-2-10 |
| 所属協会など | 東北地区不動産公正取引協議会加盟、(公社)全日本不動産協会山形県本部会員 |
この地域の暮らしデータ
山形市の人口などの統計情報
| 世帯数 | 102101世帯 |
|---|---|
| 人口総数 | 238293人 |
| 転入者数 |
7619人 転入率(人口1000人当たり) 31.97人 |
| 転出者数 |
7908人 転出率(人口1000人当たり) 33.19人 |
| 土地平均価格 |
住宅地 57795円/m2 商業地 120291円/m2 |
山形市の結婚・育児の助成金
| 出産・子育て | |
|---|---|
| 子育て関連の独自の取り組み | (1)山形市生徒冬季通学補助事業(片道4km以上6km未満徒歩・自転車以外の交通手段で通学する中学生の保護者に対し1冬季あたり5,000円補助。登下校いづれかが条件に該当すれば対象)。(2)第3子以降の認可保育所等保育料完全無料化。(3)山形市健やか教育手当制度(市町村民税の所得割額が非課税世帯かつ義務教育中の児童を養育しているひとり親等に対する支給。手当額[月額/人]:ひとり親の児童2,500円・両親がいない児童4,000円)。(4)おやこよりそいチャットやまがた(市内在住の保護者や児童が子育て等に関する悩みをLINE上で相談。暮らしや子育てに役立つ情報も配信)。 |
| 出産祝い |
あり
|
| 公立保育所数 |
10ヶ所 0歳児保育を実施 10ヶ所 |
| 私立保育所数 |
30ヶ所 0歳児保育を実施 30ヶ所 |
| 保育所入所待機児童数 | 0人 |
| 認定こども園数 | 32園 |
| 預かり保育実施園数-公立 | - |
| 預かり保育実施園数-私立 | 7園 |
| 学校給食 | 【小学校】完全給食【中学校】完全給食 |
| 公立中学校の学校選択制 | 一部実施(特定地域選択制) |
| 子ども・学生等医療費助成<通院>対象年齢 | 18歳3月末まで |
| 子ども・学生等医療費助成<入院>対象年齢 | 18歳3月末まで |
山形市の治安・ごみ収集情報
| 公共料金・インフラ | |
|---|---|
| ガス料金(22m3使用した場合の月額) | 山形ガス株式会社5929円 |
| 水道料金(口径20mmで20m3の月額) | 山形市4345円 |
| 下水道料金(20m3を使用した場合の月額) | 山形市3355円 |
| 下水道普及率 | 97.9% |
| 安心・安全 | |
| 建物火災出火件数 |
29件 人口10000人当たり 1.17件 |
| 刑法犯認知件数 |
947件 人口1000人当たり 3.82件 |
| ハザード・防災マップ | あり |
| 医療 | |
| 一般病院総数 | 13ヶ所 |
| 一般診療所総数 | 247ヶ所 |
| 小児科医師数 |
69人 小児人口10000人当たり 25.11人 |
| 産婦人科医師数 |
53人 15~49歳女性人口1万人当たり 11.75人 |
| 介護保険料基準額(月額) | 5800円 |
| ごみ | |
| 家庭ごみ収集(可燃ごみ) |
有料
|
| 家庭ごみの分別方式 | 10分別16種〔もやせるごみ ビン・カン ペットボトル 雑貨品・小型廃家電類 プラスチック類 水銀含有ごみ(電池類、蛍光管、鏡・水銀体温計) 埋立ごみ 古紙類(新聞、雑誌、紙パック、段ボール、雑がみ) 使用済みスプレー缶・カセットボンベ ふとん類〕 |
| 家庭ごみの戸別収集 | 一部実施(【ごみ出し支援事業】ごみ出しが困難な市民に対して実施※要件あり) |
| 粗大ごみ収集 |
あり
|
| 生ごみ処理機助成金制度 |
あり 上限金額 30000円 上限比率 50.0% |
暮らしデータ提供元:生活ガイド.com
※行政機関により公表していない地域及びデータがございます。東京23区以外の政令指定都市は、市全体のデータとして表示しています。
※提供データには細心の注意を払っておりますが、調査後に変更がある場合があります。 最新の情報につきましては各市区役所までお問い合わせいただくか、自治体HPなどをご確認ください。
※提供データには細心の注意を払っておりますが、調査後に変更がある場合があります。 最新の情報につきましては各市区役所までお問い合わせいただくか、自治体HPなどをご確認ください。
お気に入りの物件を見逃さない!
プッシュ通知で最新の物件情報が届く



