グランソフィア大門 BC号棟 東川口駅 3LDK 賃貸(賃貸マンション・アパート)
3LDK / 東川口駅
- 情報提供元
- アットホーム
賃料15.5万円 / 管理費等なし
-
B号棟
-
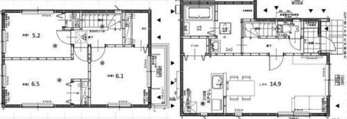
間取り
-
室内
-
室内
-
室内
-
室内
-
室内
-
画像
-
画像
-
画像
-
画像
-
画像
-
画像
-
画像
-
画像
-
画像
-
この物件が気になりましたか? 最新の空室状況は
問合せをすることで確認できます
- お問い合わせ先
- (株)東日本地所 賃貸営業事業部
-
交通JR武蔵野線 東川口駅 徒歩12分
| 敷引・償却 | - |
|---|---|
| 更新料 | 新賃料の1ヶ月分 |
| 契約期間 | 2年 |
| カード決済 | 初期費用カード決済可 |
| 建物名 | グランソフィア大門 BC号棟 |
| 建物構造 | 木造 |
| 駐車場 | 有 無料 |
| 現況 | 未完成 |
| 入居可能時期 |
相談 入居可能時期 を知りたい |
| 住宅保険 | あり 2年 20000円 |
| 情報提供元 | アットホーム[6987905730] |
| 情報公開日 | |
| 情報更新日 | - |
| 次回更新予定日 | 随時 |
地図
設備など
- バス・トイレ別
- 2階以上
- ペット相談可
-
駐車場
(近隣含) -
室内洗濯機
置き場 - エアコン
- 洗面所独立
- 追焚機能
- オートロック
設備
| バス・トイレ | バス・トイレ別、トイレ、シャワー、追焚機能、浴室乾燥機、温水洗浄便座、オートバス |
|---|---|
| キッチン | システムキッチン、カウンターキッチン、IHクッキングヒータ、3口以上コンロ |
| 収納 | 収納スペース、ウォークインクローゼット、クローゼット、床下収納、シューズボックス |
| セキュリティ | モニタ付インターホン |
| 室内設備 | エアコン、洗濯機置場、洗面所、洗面台、フローリング、照明器具、シャンプードレッサ、洗面所独立、室内洗濯機置き場 |
| 建物設備 | 給湯、プロパンガス |
備考
短期解約違約金あり(1年未満/1ヶ月分賃料)、ペット飼育時:敷金1ヶ月積み増し(頭数・種類は要相談)諸条件の変更の可能性あり、退去時クリーニング費用105,000円(税別)、町会費発生時、入居者加入と負担。・賃貸保証等:加入要(期間:2年 初回保証料:総賃料の100%、継続保証料:1年毎に賃料の15%)・維持費等:スマートキー1,650円/月・バイク置場:なし・駐輪場:なし/初回保証委託料(ジェイリース) 156650円/ホームマイスター24 16500円
続きを見る
特記事項
ペット相談可・事務所使用可・初期費用カード決済可
省エネ性能
| エネルギー消費性能 | - |
|---|---|
| 断熱性能 | - |
| 目安光熱費 | - |
- お問い合わせ先
- (株)東日本地所 賃貸営業事業部
不動産会社情報
お問い合わせ先
| 商号 | (株)東日本地所 賃貸営業事業部 |
|---|---|
| 免許番号 | 国土交通大臣免許(1)第10280号 |
| 所在地 | さいたま市中央区新都心7-2大宮サウスゲート5F |
| TEL | 048-711-7715 |
| 取引態様 | 代理 |
| 管理コード | - |
| 所属協会など | - |
この地域の暮らしデータ
さいたま市の人口などの統計情報
| 世帯数 | 581501世帯 |
|---|---|
| 人口総数 | 1345012人 |
| 転入者数 |
83362人 転入率(人口1000人当たり) 61.98人 |
| 転出者数 |
73089人 転出率(人口1000人当たり) 54.34人 |
| 土地平均価格 |
住宅地 205305円/m2 商業地 715276円/m2 |
さいたま市の結婚・育児の助成金
| 出産・子育て | |
|---|---|
| 子育て関連の独自の取り組み | (1)父親の子育て参加の推進(父親等の1日保育士・幼稚園教諭体験の実施、父親向け子育て応援冊子「父子手帖」の配布)。(2)のびのびルーム事業(3歳未満の子どもと保護者の集い・遊びの場として、放課後児童クラブの空き時間を開放)。(3)三世代子育て応援事業(「孫育て講座」の実施、祖父母と子育て世代の関係をより円滑にするため「祖父母手帳」の配布)。(4)子どもの社会参画推進事業(「子どもがつくるまち」の実施)。(5)のびのび赤ちゃん応援金、多子世帯子育て応援金の給付。 |
| 出産祝い |
あり
|
| 公立保育所数 |
59ヶ所 0歳児保育を実施 36ヶ所 |
| 私立保育所数 |
268ヶ所 0歳児保育を実施 253ヶ所 |
| 保育所入所待機児童数 | 0人 |
| 認定こども園数 | 17園 |
| 預かり保育実施園数-公立 | - |
| 預かり保育実施園数-私立 | 85園 |
| 学校給食 | 【小学校】完全給食【中学校】完全給食 |
| 公立中学校の学校選択制 | 一部実施(特定地域選択制) |
| 子ども・学生等医療費助成<通院>対象年齢 | 18歳3月末まで |
| 子ども・学生等医療費助成<入院>対象年齢 | 18歳3月末まで |
さいたま市の治安・ごみ収集情報
| 公共料金・インフラ | |
|---|---|
| ガス料金(22m3使用した場合の月額) | 東京瓦斯株式会社(東京地区等)3926円 東彩ガス株式会社(越谷・春日部地区)4893円 |
| 水道料金(口径20mmで20m3の月額) | さいたま市3498円 |
| 下水道料金(20m3を使用した場合の月額) | さいたま市2459円 |
| 下水道普及率 | 95.1% |
| 安心・安全 | |
| 建物火災出火件数 |
176件 人口10000人当たり 1.33件 |
| 刑法犯認知件数 |
8745件 人口1000人当たり 6.60件 |
| ハザード・防災マップ | あり |
| 医療 | |
| 一般病院総数 | 35ヶ所 |
| 一般診療所総数 | 1028ヶ所 |
| 小児科医師数 |
318人 小児人口10000人当たり 18.64人 |
| 産婦人科医師数 |
80人 15~49歳女性人口1万人当たり 2.82人 |
| 介護保険料基準額(月額) | 6406円 |
| ごみ | |
| 家庭ごみ収集(可燃ごみ) |
無料
|
| 家庭ごみの分別方式 | 5分別17種〔資源物1類(びん、かん、ペットボトル、容器包装プラスチック) 資源物2類(新聞、ダンボール、牛乳パック、雑誌類、その他の紙、繊維) 有害危険ごみ(蛍光管、乾電池、スプレーかん・カートリッジ式ボンベ、水銀体温計、ライター) もえないごみ もえるごみ〕 拠点回収:使用済小型家電 |
| 家庭ごみの戸別収集 | 一部実施(ふれあい収集) |
| 粗大ごみ収集 |
あり
|
| 生ごみ処理機助成金制度 |
あり 上限金額 20000円 上限比率 50.0% |
暮らしデータ提供元:生活ガイド.com
※行政機関により公表していない地域及びデータがございます。東京23区以外の政令指定都市は、市全体のデータとして表示しています。
※提供データには細心の注意を払っておりますが、調査後に変更がある場合があります。 最新の情報につきましては各市区役所までお問い合わせいただくか、自治体HPなどをご確認ください。
※提供データには細心の注意を払っておりますが、調査後に変更がある場合があります。 最新の情報につきましては各市区役所までお問い合わせいただくか、自治体HPなどをご確認ください。
お気に入りの物件を見逃さない!
プッシュ通知で最新の物件情報が届く



