岡山県総社市真壁 総社駅 新築一戸建て・分譲住宅
3SLDK / 総社駅
- 情報提供元
- SUUMO
価格2880万円
-
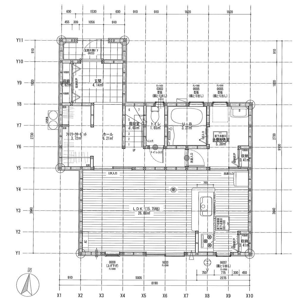
2880万円、3LDK+S(納戸)、土地面積143.38m2、建物面積111.22m2 1階の間取り図です
-
2880万円、3LDK+S(納戸)、土地面積143.38m2、建物面積111.22m2
-
2880万円、3LDK+S(納戸)、土地面積143.38m2、建物面積111.22m2 2階の間取り図です
-
2880万円、3LDK+S(納戸)、土地面積143.38m2、建物面積111.22m2
-
分譲地です@2025年11月
-
分譲中です@2025年11月
-
分譲地です@2025年11月
-
画像
-
画像
-
総社市立常盤小学校まで1100m
-
ライフガーデン総社南まで1200m
-
リブ21まで1400m
-
天満屋ハピーズ総社溝口店まで600m
-
ドラッグセイムス総社真壁店まで550m
-
総社市立常盤幼稚園まで1000m
-
DCM総社西店まで350m
-
総社市立中央保育所まで1000m
-
画像
-
この物件が気になりましたか? 物件や周辺施設などの詳しい情報は
問合せをすることで確認できます
- お問い合わせ先
- (有)ナベショウ岡山
※ご成約で4K液晶テレビ(50V型)をプレゼントしています!◆リーブルガーデン総社市真壁⑥■子育てグリーン住宅支援事業【最大100万円支援】の対象物件です♪■長期優良住宅認定物件ですので安心して長くお住まいいただけます♪※マイホーム選びで失敗したくないかたはナベショウ岡山にご相談ください♪■玄関ドアはスマホで施錠解錠が出来るスマートロックで安心です!■駐車スペース2台分以上あります!■人気の常盤小学校・総社西中学校 エリアです!■分譲住宅供給棟数14年連続全国No.1 一建設さんのリーブルガーデン!■お引き渡しから10年間の長期保証&最長35年まで保証延長が可能!
-
価格返済シミュレーション 2880万円
-
土地面積143.38m2(43.37坪)(登記)
-
建物面積111.22m2(33.64坪)(登記)
-
間取り3SLDK
-
建物構造・規模木造2階建
-
築年月2026年1月
(-)新築 -
駐車場有
-
物件
タイプ新築一戸建て -
住所岡山県総社市真壁 地図
-
交通JR伯備線 総社駅 徒歩9分
JR吉備線 東総社駅 徒歩26分
JR伯備線 清音駅 徒歩3.8km
| 私道面積 | - |
|---|---|
| 接道状況 | 北4m接面11.7m |
| 用途地域 | 1種住居 |
| 建ぺい率 / 容積率 | 60% / 160% |
| 地目 | - |
| 土地権利 | 所有権 |
| 借地期間・地代 | - |
| 都市計画 | - |
| 現況 | - |
| 引渡可能時期 | 2026年2月 |
| 情報提供元 | SUUMO [080Z78736472] |
| 情報公開日 | |
| 情報更新日 | |
| 次回更新予定日 | 随時 |
地図
設備など
設備
| バス・トイレ | トイレ、浴室乾燥機、温水洗浄便座、風呂、トイレ2ヶ所 |
|---|---|
| キッチン | システムキッチン、対面K、浄水器 |
| 収納 | 収納スペース、ウォークインクローゼット、床下収納 |
| セキュリティ | モニタ付インターホン |
| 室内設備 | 洗面所、シャンプードレッサ、衣類乾燥機 |
| 建物設備 | バルコニー、庭、LPガス、省エネ給湯器 |
| その他 | 上水道、本下水 |
備考
<物件名>■リーブルガーデン総社市真壁⑥/<駐車場>カースペース/<土地権利>所有権/<間取り>3LDK+S(納戸)/<特徴>■本日や明日のご見学も可能です!■ナベショウだけ特別開催中!!、長期優良住宅認定通知書・設計住宅性能評価書・建設住宅性能評価書(新築時)・BELS/省エネ基準適合認定書あり・フラット35・S適合証明書
建築確認:有/NO.第R07SHC118475号
販売戸数:1戸
法令等制限:景観法による規制有
続きを見る
建築確認:有/NO.第R07SHC118475号
販売戸数:1戸
法令等制限:景観法による規制有
特記事項
日当り良好・駐車場3台分以上・設計住宅性能評価取得・長期優良住宅・建設住宅性能評価取得・浴室1坪以上・フラット35S適合
省エネ性能
| エネルギー消費性能 | ★★★★(削減率30%達成) |
|---|---|
| 断熱性能 | 5段階/7段階中 |
| 目安光熱費 | - |
- お問い合わせ先
- (有)ナベショウ岡山
不動産会社情報
お問い合わせ先
| 商号 | (有)ナベショウ岡山 |
|---|---|
| 免許番号 | 岡山県知事(3)第004825号 |
| 所在地 | 岡山県岡山市北区下中野349-120 |
| TEL | 0800-888-4484 |
| 取引態様 | 媒介 |
| 管理コード | - |
| 所属協会など | - |
この地域の暮らしデータ
総社市の人口などの統計情報
| 世帯数 | 27066世帯 |
|---|---|
| 人口総数 | 69731人 |
| 転入者数 |
2928人 転入率(人口1000人当たり) 41.99人 |
| 転出者数 |
2461人 転出率(人口1000人当たり) 35.29人 |
| 土地平均価格 |
住宅地 39022円/m2 商業地 62650円/m2 |
総社市の結婚・育児の助成金
| 出産・子育て | |
|---|---|
| 子育て関連の独自の取り組み | (1)ファミリーサポートセンターにおける中高生までの送迎、病児サポート(2)子育て王国そうじゃ(産・官・学が協働してのネットワークづくりの講座やイベント等) |
| 出産祝い |
なし
|
| 公立保育所数 |
1ヶ所 0歳児保育を実施 1ヶ所 |
| 私立保育所数 |
11ヶ所 0歳児保育を実施 11ヶ所 |
| 保育所入所待機児童数 | 9人 |
| 認定こども園数 | 3園 |
| 預かり保育実施園数-公立 | 11園 |
| 預かり保育実施園数-私立 | - |
| 学校給食 | 【小学校】完全給食【中学校】完全給食 |
| 公立中学校の学校選択制 | 一部実施(教育特区は住民登録地がどこであっても就学可能) |
| 子ども・学生等医療費助成<通院>対象年齢 | 中学校卒業まで |
| 子ども・学生等医療費助成<入院>対象年齢 | 中学校卒業まで |
総社市の治安・ごみ収集情報
| 公共料金・インフラ | |
|---|---|
| ガス料金(22m3使用した場合の月額) | 岡山ガス株式会社6387円 |
| 水道料金(口径20mmで20m3の月額) | 総社市2805円 |
| 下水道料金(20m3を使用した場合の月額) | 総社市2849円 |
| 下水道普及率 | 63.5% |
| 安心・安全 | |
| 建物火災出火件数 |
12件 人口10000人当たり 1.74件 |
| 刑法犯認知件数 |
237件 人口1000人当たり 3.43件 |
| ハザード・防災マップ | あり |
| 医療 | |
| 一般病院総数 | 3ヶ所 |
| 一般診療所総数 | 46ヶ所 |
| 小児科医師数 |
9人 小児人口10000人当たり 9.29人 |
| 産婦人科医師数 |
1人 15~49歳女性人口1万人当たり 0.73人 |
| 介護保険料基準額(月額) | 6300円 |
| ごみ | |
| 家庭ごみ収集(可燃ごみ) |
有料
|
| 家庭ごみの分別方式 | 4分別15種〔可燃ごみ 不燃ごみ 資源ごみ(空きびん無色、空きびん茶色、空きびんその他、古紙新聞紙広告、古紙雑誌雑がみ、古紙ダンボール、古紙シュレッダーくず、古紙紙パック類、空き缶、ペットボトル、白色トレー、古布) 乾電池・体温計〕 拠点回収:蛍光管 水銀灯ランプ |
| 家庭ごみの戸別収集 | 未実施 |
| 粗大ごみ収集 |
あり
|
| 生ごみ処理機助成金制度 |
あり 上限金額 20000円 上限比率 50.0% |
暮らしデータ提供元:生活ガイド.com
※行政機関により公表していない地域及びデータがございます。東京23区以外の政令指定都市は、市全体のデータとして表示しています。
※提供データには細心の注意を払っておりますが、調査後に変更がある場合があります。 最新の情報につきましては各市区役所までお問い合わせいただくか、自治体HPなどをご確認ください。
※提供データには細心の注意を払っておりますが、調査後に変更がある場合があります。 最新の情報につきましては各市区役所までお問い合わせいただくか、自治体HPなどをご確認ください。
住宅ローンシミュレーション
月々の返済額からの購入額の計算と、購入額からの返済額の計算ができます。
住宅ローンをお考えの方へ
最もおトクであなたにぴったりな
住宅ローンをみてみよう!
お気に入りの物件を見逃さない!
プッシュ通知で最新の物件情報が届く






