島根県出雲市塩冶町海上 出雲市駅 新築一戸建て・分譲住宅
4LDK / 出雲市駅
- 情報提供元
- SUUMO
価格2980万円
-
完成予想図
-
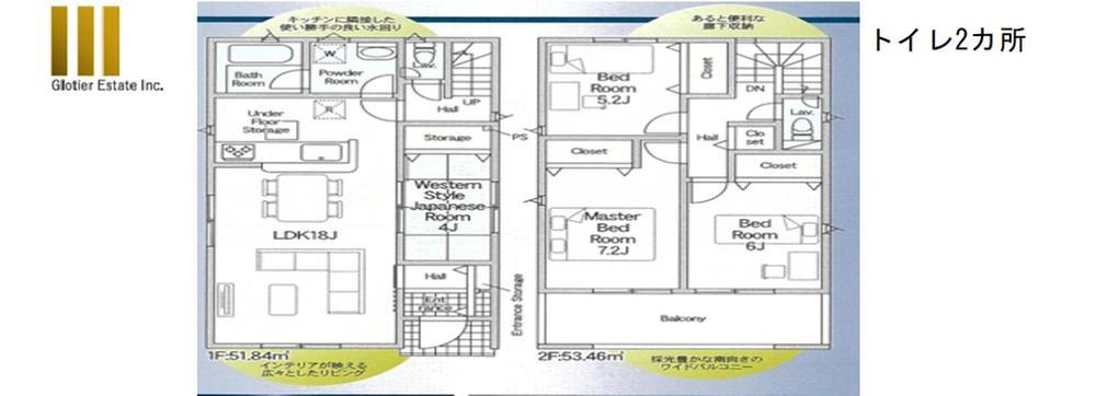
2980万円、4LDK、土地面積230.43m2、建物面積105.3m2
-
画像
-
画像
-
地図
-
この物件が気になりましたか? 物件や周辺施設などの詳しい情報は
問合せをすることで確認できます
- お問い合わせ先
- (株)グロティアエステート
物件価格2980万円、住宅ローン固定10年1.3%借入年数50年月々支払67,570円です。
-
価格返済シミュレーション 2980万円
-
土地面積230.43m2(登記)
-
建物面積105.3m2
-
間取り4LDK
-
建物構造・規模木造2階建
-
築年月2025年11月
(-)新築 -
駐車場有
-
物件
タイプ新築一戸建て -
住所島根県出雲市塩冶町海上 地図
-
交通JR山陰本線 出雲市駅 徒歩15分
一畑電車北松江線 電鉄出雲市駅 徒歩18分
| 私道面積 | - |
|---|---|
| 接道状況 | 北4m接面6m 南4.8m接面8.4m |
| 用途地域 | 1種住居 |
| 建ぺい率 / 容積率 | 60% / 200% |
| 地目 | - |
| 土地権利 | 所有権 |
| 借地期間・地代 | - |
| 都市計画 | - |
| 現況 | - |
| 引渡可能時期 | 2025年12月 |
| 情報提供元 | SUUMO [080Z78691347] |
| 情報公開日 | |
| 情報更新日 | |
| 次回更新予定日 | 随時 |
地図
設備など
設備
| バス・トイレ | 浴室乾燥機、風呂、トイレ2ヶ所 |
|---|---|
| セキュリティ | モニタ付インターホン |
| 室内設備 | 洗面所、シャンプードレッサ、衣類乾燥機 |
| 建物設備 | バルコニー、都市ガス |
| その他 | 上水道、本下水 |
備考
<物件名>塩冶町海上(出雲市駅) 2980万円/<駐車場>カースペース/<土地権利>所有権/<間取り>4LDK/<特徴>グリーン住宅支援事業40万円給付対象の新築戸建4LDK駐車場3台以上物件、フラット35・S適合証明書・駐車3台以上可・LDK18畳以上・南向き・浴室乾燥機
建築確認:有/NO.第R07SHC113265号
販売戸数:1戸
法令等制限:景観法、日影制限有
続きを見る
建築確認:有/NO.第R07SHC113265号
販売戸数:1戸
法令等制限:景観法、日影制限有
特記事項
日当り良好・駐車場3台分以上・浴室1坪以上・フラット35S適合
省エネ性能
| エネルギー消費性能 | - |
|---|---|
| 断熱性能 | - |
| 目安光熱費 | - |
- お問い合わせ先
- (株)グロティアエステート
不動産会社情報
お問い合わせ先
商号: (株)グロティアエステート
免許番号:島根県知事(1)第001369号
所在地:島根県出雲市大塚町791-1 大塚青山ビル308
TEL:0853-25-7491
取引態様:一般媒介 この会社の他の物件情報を見る この不動産会社に相談したい
免許番号:島根県知事(1)第001369号
所在地:島根県出雲市大塚町791-1 大塚青山ビル308
TEL:0853-25-7491
取引態様:一般媒介 この会社の他の物件情報を見る この不動産会社に相談したい
この地域の暮らしデータ
出雲市の人口などの統計情報
| 世帯数 | 64211世帯 |
|---|---|
| 人口総数 | 172607人 |
| 転入者数 |
5274人 転入率(人口1000人当たり) 30.55人 |
| 転出者数 |
5353人 転出率(人口1000人当たり) 31.01人 |
| 土地平均価格 |
住宅地 23765円/m2 商業地 39736円/m2 |
出雲市の結婚・育児の助成金
| 出産・子育て | |
|---|---|
| 子育て関連の独自の取り組み | - |
| 出産祝い |
なし
|
| 公立保育所数 |
4ヶ所 0歳児保育を実施 3ヶ所 |
| 私立保育所数 |
48ヶ所 0歳児保育を実施 48ヶ所 |
| 保育所入所待機児童数 | 0人 |
| 認定こども園数 | 4園 |
| 預かり保育実施園数-公立 | 25園 |
| 預かり保育実施園数-私立 | - |
| 学校給食 | 【小学校】完全給食【中学校】完全給食 |
| 公立中学校の学校選択制 | 一部実施 |
| 子ども・学生等医療費助成<通院>対象年齢 | 中学校卒業まで |
| 子ども・学生等医療費助成<入院>対象年齢 | 中学校卒業まで |
出雲市の治安・ごみ収集情報
| 公共料金・インフラ | |
|---|---|
| ガス料金(22m3使用した場合の月額) | 出雲ガス株式会社7331円 |
| 水道料金(口径20mmで20m3の月額) | 出雲市(斐川町・島村町を除く)3330円 斐川宍道水道企業団2622円 |
| 下水道料金(20m3を使用した場合の月額) | 出雲市3605円 |
| 下水道普及率 | 51.1% |
| 安心・安全 | |
| 建物火災出火件数 |
22件 人口10000人当たり 1.27件 |
| 刑法犯認知件数 |
546件 人口1000人当たり 3.16件 |
| ハザード・防災マップ | あり |
| 医療 | |
| 一般病院総数 | 9ヶ所 |
| 一般診療所総数 | 162ヶ所 |
| 小児科医師数 |
48人 小児人口10000人当たり 20.80人 |
| 産婦人科医師数 |
20人 15~49歳女性人口1万人当たり 6.24人 |
| 介護保険料基準額(月額) | 6260円 |
| ごみ | |
| 家庭ごみ収集(可燃ごみ) |
有料
|
| 家庭ごみの分別方式 | 4分別8種〔可燃ごみ 破砕ごみ 埋立ごみ 資源ごみ(使用済み筒型乾電池、使用済み蛍光管、飲料用空き缶、空きびん、ペットボトル)〕 拠点回収:古紙類(新聞 雑誌 牛乳パック ダンボール 雑誌) 使用済割りばし 廃食用油 古着 |
| 家庭ごみの戸別収集 | 一部実施(【一般廃棄物戸別[特別]収集】一部地域のみ実施) |
| 粗大ごみ収集 |
あり
|
| 生ごみ処理機助成金制度 |
なし 上限金額 - 上限比率 - |
暮らしデータ提供元:生活ガイド.com
※行政機関により公表していない地域及びデータがございます。東京23区以外の政令指定都市は、市全体のデータとして表示しています。
※提供データには細心の注意を払っておりますが、調査後に変更がある場合があります。 最新の情報につきましては各市区役所までお問い合わせいただくか、自治体HPなどをご確認ください。
※提供データには細心の注意を払っておりますが、調査後に変更がある場合があります。 最新の情報につきましては各市区役所までお問い合わせいただくか、自治体HPなどをご確認ください。
この物件を見た人はこんな物件も
見ています
住宅ローンシミュレーション
月々の返済額からの購入額の計算と、購入額からの返済額の計算ができます。
住宅ローンをお考えの方へ
最もおトクであなたにぴったりな
住宅ローンをみてみよう!
お気に入りの物件を見逃さない!
プッシュ通知で最新の物件情報が届く






