兵庫県宝塚市中山桜台4 中山観音駅 新築一戸建て・分譲住宅
5LDK / 中山観音駅
- 情報提供元
- SUUMO
価格5480万円
-
現地(2025年10月)撮影
-
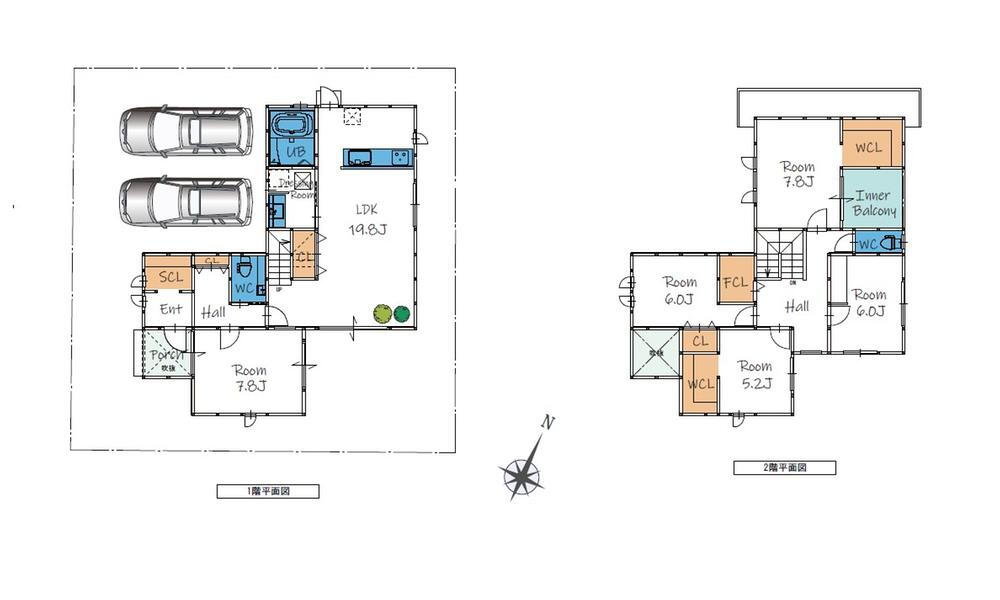
5480万円、5LDK、土地面積199.52m2、建物面積137.05m2 約60坪の広々敷地で余裕のある間取り。収納を豊富に確保しているので部屋がシンプルにまとまります。
-
現地(2025年10月)撮影
-
高級感あるキッチン。家電もなじみやすいカラーを採用しております。カップボードと前面収納ですっきり物が片付きます。
-
LDK19.8帖。アクセントに調湿タイル「エコカラット」を施工。機能性とデザイン性を持ち合わせておりクロスとは違ったタイルの質感が高級感がありおしゃれリビングに。
-
折り上げ天井のおしゃれな居室。来客時や子供の遊び場、趣味のものを置いてホビールームとして活用したり多目的に使用できます。
-
キッチンからリビング全体を見渡せる設計になっており育児中でも見守りながら家事等の作業できます。
-
1.25坪の大きめ浴槽と黒の掛け合わせでホテルライクな浴室。
-
リビングに面する部屋は間に内窓を入れて壁の仕切りを減らしより広く感じる空間になっております。
-
現地(2025年6月)撮影
-
【1階/洗面】
-
【1階/トイレ】
-
【インナーバルコニー】
天候に左右されないインナーバルコニー。外気浴をしながら読書をして過ごすなど趣味の活用場としても◎ -
現地(2025年6月)撮影
-
【2階/洋室7.8帖】
WICのあるバルコニーに面した居室。バルコニー~洋室~WICにつながる便利な家事動線。 -
コープ中山台まで1269m
-
ファミリーマート宝塚山手台店まで2575m
-
耐震の最高等級です。<耐震等級3×許容力計算>で本当に地震に強い家を提供します。
-
【シャノンウィンドウⅡs】
Nichimei Home本社にはエクセルシャノン体感ブースをご用意しております。是非一度ご体感ください。 -
構造計算には「壁量計算」と「許容力計算」2種類の計算方法があります。同じ耐震等級でも構造計算による算出方法の違いで結果が大きく変わります。
-
【エアセーブ】
給気と換気を繰り返しダクトレスなのにしっかり換気ができるシステムです。湿度も交換できる全熱型でトップクラスの温度交換効率を実現しています。 -
この物件が気になりましたか? 物件や周辺施設などの詳しい情報は
問合せをすることで確認できます
- お問い合わせ先
- (株)Nichimei Home
◎只今外構工事中▼アクセス・阪急宝塚線「中山観音」駅バス20分「桜台2丁目」下車 徒歩2分▼物件特徴・広々敷地で5LDKのゆとりのある間取り・リビングに面する部屋は内窓を入れ空間をより広く感じられます →趣味や来客の際も一体感ができ、皆で楽しく過ごせる間取り・家具家電も馴染みやすいシックなデザインで統一・インナーバルコニー~洋室~WCLと続く動線で洗濯家事効率UP***高性能なのに低価格を実現***~Nichimei Homeで理想のお家~・【耐震等級×許容力計算】地震に強い・高気密&高断熱で健康的かつ経済的・耐久性の良い素材の使用で生涯コストを削減・長期優良住宅&低炭素住宅だから税制やローン
-
価格返済シミュレーション 5480万円
-
土地面積199.52m2
-
建物面積137.05m2
-
間取り5LDK
-
建物構造・規模木造2階建
-
築年月2025年7月
(-)新築 -
駐車場有
-
物件
タイプ新築一戸建て -
住所兵庫県宝塚市中山桜台4 地図
-
交通阪急宝塚線 中山観音駅 徒歩35分
阪急宝塚線 売布神社駅 徒歩3.7km
JR福知山線 中山寺駅 徒歩3.4km
| 私道面積 | - |
|---|---|
| 接道状況 | - |
| 用途地域 | - |
| 建ぺい率 / 容積率 | 50% / 100% |
| 地目 | - |
| 土地権利 | 所有権 |
| 借地期間・地代 | - |
| 都市計画 | - |
| 現況 | - |
| 引渡可能時期 | 相談 |
| 情報提供元 | SUUMO [060Z78713964] |
| 情報公開日 | |
| 情報更新日 | |
| 次回更新予定日 | 随時 |
地図
設備など
設備
| バス・トイレ | トイレ2ヶ所 |
|---|---|
| キッチン | システムキッチン、対面K、食器洗浄乾燥機 |
| 収納 | 収納スペース、ウォークインクローゼット、床下収納、シューズインクローク |
| セキュリティ | モニタ付インターホン |
| 室内設備 | フローリング |
| 建物設備 | 太陽光システム |
| 駐車場・駐輪場 | 駐車場2台分 |
備考
<物件名>中山桜台4(中山観音駅) 5480万円/<駐車場>カースペース/<土地権利>所有権/<間取り>5LDK/<特徴>【大家族】趣味部屋が欲しいそれぞれ生活にシフトする5LDKの物件♪、太陽光発電システム・駐車2台可・LDK18畳以上・システムキッチン・対面式キッチン
販売戸数:1戸
続きを見る
販売戸数:1戸
特記事項
駐車場2台分
省エネ性能
| エネルギー消費性能 | - |
|---|---|
| 断熱性能 | - |
| 目安光熱費 | - |
- お問い合わせ先
- (株)Nichimei Home
不動産会社情報
お問い合わせ先
商号: (株)Nichimei Home
免許番号:兵庫県知事(6)第203325号
所在地:兵庫県伊丹市昆陽東3-4-9
TEL:0120-021846
取引態様:専属専任媒介 この会社の他の物件情報を見る この不動産会社に相談したい
免許番号:兵庫県知事(6)第203325号
所在地:兵庫県伊丹市昆陽東3-4-9
TEL:0120-021846
取引態様:専属専任媒介 この会社の他の物件情報を見る この不動産会社に相談したい
この地域の暮らしデータ
宝塚市の人口などの統計情報
| 世帯数 | 95366世帯 |
|---|---|
| 人口総数 | 228934人 |
| 転入者数 |
8266人 転入率(人口1000人当たり) 36.11人 |
| 転出者数 |
8704人 転出率(人口1000人当たり) 38.02人 |
| 土地平均価格 |
住宅地 172863円/m2 商業地 329500円/m2 |
宝塚市の結婚・育児の助成金
| 出産・子育て | |
|---|---|
| 子育て関連の独自の取り組み | 地域の子育て支援の拠点及び地域の子どもたちの居場所として、市内7つのブロック毎に地域児童館を整備。また、それぞれの児童館を核としてブロック内の小学校区へ出前児童館事業を実施し、きめ細やかな支援を展開。 |
| 出産祝い |
なし
|
| 公立保育所数 |
7ヶ所 0歳児保育を実施 7ヶ所 |
| 私立保育所数 |
22ヶ所 0歳児保育を実施 22ヶ所 |
| 保育所入所待機児童数 | 0人 |
| 認定こども園数 | 4園 |
| 預かり保育実施園数-公立 | 6園 |
| 預かり保育実施園数-私立 | 11園 |
| 学校給食 | 【小学校】完全給食【中学校】完全給食 |
| 公立中学校の学校選択制 | 一部実施 |
| 子ども・学生等医療費助成<通院>対象年齢 | 中学校卒業まで |
| 子ども・学生等医療費助成<入院>対象年齢 | 18歳3月末まで |
宝塚市の治安・ごみ収集情報
| 公共料金・インフラ | |
|---|---|
| ガス料金(22m3使用した場合の月額) | 大阪瓦斯株式会社4544円 |
| 水道料金(口径20mmで20m3の月額) | 宝塚市2898円 |
| 下水道料金(20m3を使用した場合の月額) | 宝塚市1848円 |
| 下水道普及率 | 98.9% |
| 安心・安全 | |
| 建物火災出火件数 |
14件 人口10000人当たり 0.62件 |
| 刑法犯認知件数 |
901件 人口1000人当たり 3.98件 |
| ハザード・防災マップ | あり |
| 医療 | |
| 一般病院総数 | 7ヶ所 |
| 一般診療所総数 | 225ヶ所 |
| 小児科医師数 |
37人 小児人口10000人当たり 13.21人 |
| 産婦人科医師数 |
14人 15~49歳女性人口1万人当たり 3.22人 |
| 介護保険料基準額(月額) | 6342円 |
| ごみ | |
| 家庭ごみ収集(可燃ごみ) |
無料
|
| 家庭ごみの分別方式 | 7分別9種〔燃やすごみ プラスチック類 紙(新聞、ダンボール、雑紙[雑誌・チラシ・包装紙等]) 布 かん・びん ペットボトル 小型不燃ごみ〕 |
| 家庭ごみの戸別収集 | 一部実施(【きずな収集】ごみ出しが困難な高齢者や障碍[がい]のある人を対象に、玄関先までごみ収集に伺う) |
| 粗大ごみ収集 |
あり
|
| 生ごみ処理機助成金制度 |
なし 上限金額 - 上限比率 - |
暮らしデータ提供元:生活ガイド.com
※行政機関により公表していない地域及びデータがございます。東京23区以外の政令指定都市は、市全体のデータとして表示しています。
※提供データには細心の注意を払っておりますが、調査後に変更がある場合があります。 最新の情報につきましては各市区役所までお問い合わせいただくか、自治体HPなどをご確認ください。
※提供データには細心の注意を払っておりますが、調査後に変更がある場合があります。 最新の情報につきましては各市区役所までお問い合わせいただくか、自治体HPなどをご確認ください。
住宅ローンシミュレーション
月々の返済額からの購入額の計算と、購入額からの返済額の計算ができます。
住宅ローンをお考えの方へ
最もおトクであなたにぴったりな
住宅ローンをみてみよう!
お気に入りの物件を見逃さない!
プッシュ通知で最新の物件情報が届く






