長野県安曇野市三郷明盛 一日市場駅 新築一戸建て・分譲住宅
4LDK / 一日市場駅
- 情報提供元
- SUUMO
価格3998万円
-
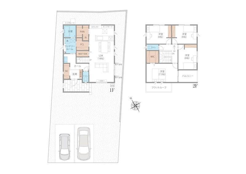
【2階間取り図】2階はすべて6帖以上の4部屋。洋室(7.5帖)にはWICを完備で、収納も充実。
-
【1階間取り図】18帖のLDKにリビング階段を採用!キッチンにはカウンターを設置し、作業にも便利。
-
3998万円、4LDK、土地面積216.36m2、建物面積114.36m2 WICやSIC、FCL、パントリーなど収納豊富な4LDK!ランドリールームと洗面スペースは別空間!
-
大糸線「一日市場駅」まで徒歩9分と毎日の通勤、通学にも便利な立地です!
-
【ヤマダホームズ】がお届けする新築戸建てが、安曇野市三郷明盛に誕生します!太陽光発電システム搭載!
-
全館熱交換型第一種24時間換気システム搭載!断熱性能の高い吹付断熱、樹脂サッシを採用!
-
直線的な18帖のLDKは、視線が抜ける開放感あふれるリビング。南向きの明るい空間です!
-
敷地面積65.44坪。周囲に高い建物がなく、視界が開けているため、圧迫感がなく開放的な暮らし!
-
教育施設や生活利便施設が揃った、暮らしやすい住環境です。周辺施設も合わせてご案内いたします。
-
スーパーやコンビニが徒歩10分圏内にあり生活利便性も良好。理想の住まいに最適な立地です。
-
分譲地全景です。前面道路幅は約5mありますので、バックの苦手な方も、車庫入れラクラクです!
-
スーパーまで徒歩6分、大糸線「一日市場駅」まで徒歩9分、買い物、電車利用も便利な立地です。
-
安曇野市立三郷小学校まで940m 学校教育目標は、「自ら学ぶ子ども 心豊かな子ども 明るくたくましい子ども」です。地域との関わりを通して自ら考え行動し、人を思いやる心や社会性を養うことを重視した教育を行っています。(HPより)
-
安曇野市立三郷中学校まで1040m 学校目標は「豊かな心をもち、辛抱強く自分をきたえ、自ら学ぶ生徒になろう」。日々の活動において、思いやりと自主性を育んでいます。HPでは日々の活動や配布文書・行事予定が確認できます。(HPより)
-
デリシア はちが店まで440m 営業時間は9:00~21:00(年末年始は除く)。旬な食材が毎日入荷!たのしさと、ときめきをお届けする「デリシア はちが店」。新鮮な食材やおいしい総菜で家族の暮らしをサポートします。(HPより)
-
The Big(ザ・ビッグ) 三郷店まで2040m 営業時間は8:00~21:00。新鮮な生鮮食品を取り扱っています。ATMやドラックストアも併設されています。お支払いセルフレジを導入しスピーディーにお買い物できます。
-
クスリのとをしや薬局 三郷店まで1940m 営業時間は9:00~20:00。月~金は処方せん受付9:00~18:30土曜は9:00~16:00、駐車場完備。品揃え豊かで日用雑貨・食品・医薬品が揃い、地域に便利な存在です。
-
ローソン 安曇野三郷店まで490m 安曇野市三郷明盛に位置する、24時間営業のコンビニエンスストア。大型駐車場完備。食料品、たばこ、まちカフェ、雑誌などの他、ATMやマルチコピー機などの設備も充実しています。
-
JR大糸線「一日市場駅」まで690m 松本と南小谷を結ぶJR東日本大糸線の駅です。北アルプスを望む木造駅舎が魅力で、通勤・通学の拠点として地域に親しまれています。静かな住宅街に位置し、日常に寄り添う駅です。
-
宮下内科循環器クリニックまで2140m 診療科目は内科・循環器科。診察時間は月・火・水・金が8:45~12:30と15:00~18:00、木・土は午前のみ8:45~12:30。予防接種や各種検査も対応しています。
-
65.44坪のゆとりある敷地。前面道路幅は5.0mあり、駐車や出入りもラクに行えます。
-
この物件が気になりましたか? 物件や周辺施設などの詳しい情報は
問合せをすることで確認できます
- お問い合わせ先
- (株)ヤマダホームズ長野支店
太陽光発電システム(7.04kw)搭載で、光熱費を低減できます!大糸線「一日市場駅」まで徒歩9分!【建物の特長】・花粉や黄砂等をカット、全館熱交換型第一種24時間換気システム搭載!・断熱性能の高い吹付断熱、樹脂サッシを採用!・ランドリールームと洗面スペースを分離、同時利用可能!・玄関ドアはスマートキー!【お電話が苦手な方でも、安心なネット予約可能!】ネット上だと不安... 「プロ目線で見る、ハウスメーカーの建売」を現地で体感しませんか。現地に足を運んでこそ感じられる安心と納得があります。「来場予約」または「下部のカレンダー」より、簡単にネット予約が可能です。
-
価格返済シミュレーション 3998万円
-
土地面積216.36m2(65.44坪)(登記)
-
建物面積114.36m2(34.59坪)(登記)
-
間取り4LDK
-
建物構造・規模木造2階建
-
築年月2026年2月
(-)新築 -
駐車場有
-
物件
タイプ新築一戸建て -
住所長野県安曇野市三郷明盛 地図
-
交通JR大糸線 一日市場駅 徒歩9分
| 私道面積 | - |
|---|---|
| 接道状況 | 南5m |
| 用途地域 | 無指定 |
| 建ぺい率 / 容積率 | 60% / 200% |
| 地目 | - |
| 土地権利 | 所有権 |
| 借地期間・地代 | - |
| 都市計画 | - |
| 現況 | - |
| 引渡可能時期 | 2026年3月 |
| 情報提供元 | SUUMO [040Z78880220] |
| 情報公開日 | |
| 情報更新日 | |
| 次回更新予定日 | 随時 |
地図
設備など
設備
| バス・トイレ | トイレ、温水洗浄便座、風呂、トイレ2ヶ所 |
|---|---|
| キッチン | システムキッチン、対面K、IHクッキングヒータ、浄水器、食器洗浄乾燥機 |
| 収納 | 収納スペース、ウォークインクローゼット、床下収納、シューズインクローク |
| セキュリティ | モニタ付インターホン |
| 建物設備 | 複層ガラス、太陽光システム、省エネ給湯器 |
| その他 | 上水道、本下水 |
備考
<物件名>FelidiaGarden安曇野市三郷明盛 全3区画 2号棟(No.1047)/<駐車場>カースペース/<土地権利>所有権/<間取り>4LDK/<特徴>【ヤマダホームズ】太陽光発電搭載!収納豊富な4LDK!駅まで徒歩9分!、太陽光発電システム・駐車3台以上可・土地50坪以上・省エネ給湯器・スーパー 徒歩10分以内
建築確認:有/NO.第ERI-25028664号
販売戸数:1戸
法令等制限:景観法による規制有、農地法届出要、宅地造成工事規制区域、日影制限有、道路斜線制限:有、隣地斜線制限:有、日影規制:有
続きを見る
建築確認:有/NO.第ERI-25028664号
販売戸数:1戸
法令等制限:景観法による規制有、農地法届出要、宅地造成工事規制区域、日影制限有、道路斜線制限:有、隣地斜線制限:有、日影規制:有
特記事項
駐車場3台分以上・オール電化・浴室1坪以上
省エネ性能
| エネルギー消費性能 | - |
|---|---|
| 断熱性能 | - |
| 目安光熱費 | - |
- お問い合わせ先
- (株)ヤマダホームズ長野支店
不動産会社情報
お問い合わせ先
| 商号 | (株)ヤマダホームズ長野支店 |
|---|---|
| 免許番号 | 国土交通大臣(16)第000382号 |
| 所在地 | 長野県長野市吉田1-21-20 |
| TEL | 0262-56-9330 |
| 取引態様 | 売主 |
| 管理コード | 1047-3212000096 |
| 所属協会など | - |
この地域の暮らしデータ
安曇野市の人口などの統計情報
| 世帯数 | 36429世帯 |
|---|---|
| 人口総数 | 96249人 |
| 転入者数 |
3302人 転入率(人口1000人当たり) 34.31人 |
| 転出者数 |
2928人 転出率(人口1000人当たり) 30.42人 |
| 土地平均価格 |
住宅地 26380円/m2 商業地 42875円/m2 |
安曇野市の結婚・育児の助成金
| 出産・子育て | |
|---|---|
| 子育て関連の独自の取り組み | (1)不妊・不育治療費の一部助成事業。(2)妊婦歯科健診費用の全額助成(1回)。(3)オプショナル新生児スクリーニング検査費用の全額助成(採血料は除く)。(4)産後ケア事業(宿泊型・通所型・訪問型)。(5)母乳相談等助成事業。(6)小児・妊婦のインフルエンザ及びおたふくかぜ予防接種費用の一部助成 (7)フッ化物洗口。(8)4~5歳児視力検査。 |
| 出産祝い |
あり
|
| 公立保育所数 |
0ヶ所 0歳児保育を実施 - |
| 私立保育所数 |
1ヶ所 0歳児保育を実施 1ヶ所 |
| 保育所入所待機児童数 | 0人 |
| 認定こども園数 | 20園 |
| 預かり保育実施園数-公立 | 1園 |
| 預かり保育実施園数-私立 | - |
| 学校給食 | 【小学校】完全給食【中学校】完全給食 |
| 公立中学校の学校選択制 | 未実施 |
| 子ども・学生等医療費助成<通院>対象年齢 | 18歳3月末まで |
| 子ども・学生等医療費助成<入院>対象年齢 | 18歳3月末まで |
安曇野市の治安・ごみ収集情報
| 公共料金・インフラ | |
|---|---|
| ガス料金(22m3使用した場合の月額) | - |
| 水道料金(口径20mmで20m3の月額) | 安曇野市4398円 |
| 下水道料金(20m3を使用した場合の月額) | 安曇野市3960円 |
| 下水道普及率 | 89.4% |
| 安心・安全 | |
| 建物火災出火件数 |
13件 人口10000人当たり 1.38件 |
| 刑法犯認知件数 |
294件 人口1000人当たり 3.12件 |
| ハザード・防災マップ | あり |
| 医療 | |
| 一般病院総数 | 3ヶ所 |
| 一般診療所総数 | 81ヶ所 |
| 小児科医師数 |
80人 小児人口10000人当たり 72.72人 |
| 産婦人科医師数 |
8人 15~49歳女性人口1万人当たり 4.77人 |
| 介護保険料基準額(月額) | 5800円 |
| ごみ | |
| 家庭ごみ収集(可燃ごみ) |
有料
|
| 家庭ごみの分別方式 | 3分別18種〔可燃ごみ 不燃ごみ(金物類、ガラス・陶器類、灰) 資源ごみ(新聞紙、ダンボール、雑誌・雑がみ、紙パック、紙製容器包装、プラスチック製容器包装、ペットボトル、缶、衣類・布類、びん[無色びん、茶色びん、その他の色びん]、電池類、蛍光管)〕 拠点回収:使用済小型家電 廃食用油 庭剪定枝 不要自転車 木くず及び木質系粗大ごみ インクカートリッジ |
| 家庭ごみの戸別収集 | 未実施 |
| 粗大ごみ収集 |
なし
|
| 生ごみ処理機助成金制度 |
あり 上限金額 30000円 上限比率 50.0% |
暮らしデータ提供元:生活ガイド.com
※行政機関により公表していない地域及びデータがございます。東京23区以外の政令指定都市は、市全体のデータとして表示しています。
※提供データには細心の注意を払っておりますが、調査後に変更がある場合があります。 最新の情報につきましては各市区役所までお問い合わせいただくか、自治体HPなどをご確認ください。
※提供データには細心の注意を払っておりますが、調査後に変更がある場合があります。 最新の情報につきましては各市区役所までお問い合わせいただくか、自治体HPなどをご確認ください。
住宅ローンシミュレーション
月々の返済額からの購入額の計算と、購入額からの返済額の計算ができます。
住宅ローンをお考えの方へ
最もおトクであなたにぴったりな
住宅ローンをみてみよう!
お気に入りの物件を見逃さない!
プッシュ通知で最新の物件情報が届く






