オーヴィジョン桜木パークサイド 11階 3LDK
3LDK / 櫛ケ浜駅
- 情報提供元
- SUUMO
価格2770万円
-
外観
-
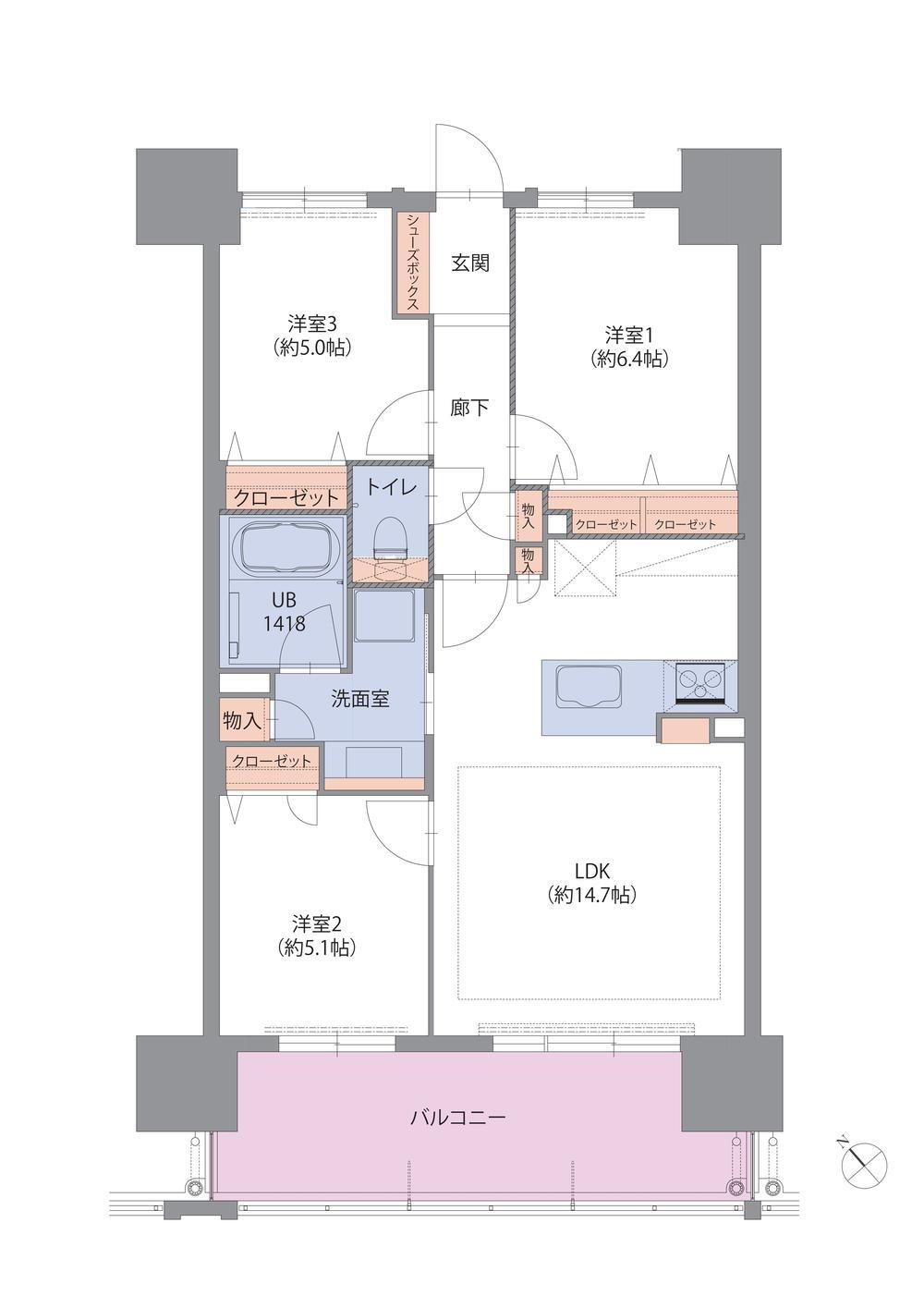
3LDK、価格2770万円、専有面積69.16m2、バルコニー面積13.3m2
-
画像
-
キッズルーム
-
画像
-
画像
-
メールボックス
-
画像
-
宅配ボックス
-
自動販売機
-
屋内駐輪場
-
この物件が気になりましたか? 物件や周辺施設などの詳しい情報は
問合せをすることで確認できます
- お問い合わせ先
- (株)エストラスト不動産販売
全100戸の大規模物件♪スケールメリットを生かしたキッズルーム、フィットネスルーム等共用設備が充実しております♪
-
価格返済シミュレーション 2770万円
-
管理費等1万1800円/月(委託(通勤))
-
修繕
積立金6,900円 -
専有面積69.16m2(20.92坪)(壁芯)
-
間取り3LDK
-
バルコニー面積13.3m2
-
築年数2020年1月
(築5年12ヶ月) -
方位南西
-
駐車場専用使用権付駐車場(無料)
-
総戸数100戸
-
所在階
階数11階
14階建 -
物件
タイプ中古マンション -
マンション名オーヴィジョン桜木パークサイド
-
住所山口県周南市桜木1 地図
-
交通JR山陽本線 櫛ケ浜駅 徒歩24分
JR山陽本線 徳山駅 徒歩4.5km
| 借地期間・地代 | - |
|---|---|
| 建物構造 | RC |
| 管理形態 | 委託管理 |
| 維持費等 | - |
| 土地権利 | 所有権 |
| 用途地域 | 近隣商業 |
| 現況 | - |
| 引渡可能年月 | 相談 |
| 情報提供元 | SUUMO [080Z78857139] |
| 情報公開日 | |
| 情報更新日 | |
| 次回更新予定日 | 随時 |
地図
設備など
設備
| バス・トイレ | トイレ、浴室乾燥機、温水洗浄便座、風呂 |
|---|---|
| キッチン | システムキッチン、対面K、IHクッキングヒータ、浄水器、食器洗浄乾燥機 |
| 収納 | 収納スペース |
| セキュリティ | 管理人日勤 |
| 室内設備 | 床暖房、衣類乾燥機 |
| 建物設備 | バルコニー、エレベーター、宅配BOX、省エネ給湯器 |
| 駐車場・駐輪場 | 駐輪場、バイク置き場 |
備考
<物件名>オーヴィジョン桜木パークサイド/<駐車場>専用使用権付駐車場/委託(日勤)/<土地権利>所有権/<間取り>3LDK/<用途地域>1種中高あり/<特徴>築5年オール電化仕様のオーヴィジョンマンションです♪、設計住宅性能評価書・建設住宅性能評価書(新築時)・新築時・増改築時の設計図・省エネルギー対策・省エネ給湯器
販売戸数:1戸/管理費等帯:11800円/修繕積立金帯:6900円
続きを見る
販売戸数:1戸/管理費等帯:11800円/修繕積立金帯:6900円
特記事項
ペット相談可・日当り良好・バリアフリー・管理人日勤・オール電化・設計住宅性能評価取得
省エネ性能
| エネルギー消費性能 | - |
|---|---|
| 断熱性能 | - |
| 目安光熱費 | - |
- お問い合わせ先
- (株)エストラスト不動産販売
不動産会社情報
お問い合わせ先
| 商号 | (株)エストラスト不動産販売 |
|---|---|
| 免許番号 | 山口県知事(1)第003769号 |
| 所在地 | 山口県下関市竹崎町4-1-22 エストラストビル1階 |
| TEL | 083-250-8484 |
| 取引態様 | 専属専任媒介 |
| 管理コード | - |
| 所属協会など | - |
この地域の暮らしデータ
周南市の人口などの統計情報
| 世帯数 | 63198世帯 |
|---|---|
| 人口総数 | 136179人 |
| 転入者数 |
4138人 転入率(人口1000人当たり) 30.39人 |
| 転出者数 |
4736人 転出率(人口1000人当たり) 34.78人 |
| 土地平均価格 |
住宅地 36576円/m2 商業地 60313円/m2 |
周南市の結婚・育児の助成金
| 出産・子育て | |
|---|---|
| 子育て関連の独自の取り組み | (1)妊娠期から社会的自立まで切れ目ない継続的な支援のため、児童福祉と母子保健を統合した課を2022年度に新設 。子ども・子育てに関する総合相談を実施し、児童虐待の早期発見対応できる体制、各関係機関とのネットワークの強化と支援の充実を図る。(2)婚活イベントや子育て支援活動経費の一部を補助。(3)地域がつながる子どもの居場所づくり支援。開設・運営経費の一部を補助。(4)移動式赤ちゃんの駅の無料貸し出し。(5)子育て応援サイト・アプリ「はぴはぐ」運営。(6)子どもの健やかな成長を願い、その最善の利益を大切にしながら、まちづくりに取り組んでいくため、「こどもまんなか宣言」を定めた。 |
| 出産祝い |
あり
|
| 公立保育所数 |
12ヶ所 0歳児保育を実施 11ヶ所 |
| 私立保育所数 |
12ヶ所 0歳児保育を実施 12ヶ所 |
| 保育所入所待機児童数 | 0人 |
| 認定こども園数 | 5園 |
| 預かり保育実施園数-公立 | 1園 |
| 預かり保育実施園数-私立 | 11園 |
| 学校給食 | 【小学校】完全給食【中学校】完全給食 |
| 公立中学校の学校選択制 | 未実施 |
| 子ども・学生等医療費助成<通院>対象年齢 | 18歳3月末まで |
| 子ども・学生等医療費助成<入院>対象年齢 | 18歳3月末まで |
周南市の治安・ごみ収集情報
| 公共料金・インフラ | |
|---|---|
| ガス料金(22m3使用した場合の月額) | 山口合同ガス株式会社6827円 |
| 水道料金(口径20mmで20m3の月額) | 周南市2893円 |
| 下水道料金(20m3を使用した場合の月額) | 周南市3275円 |
| 下水道普及率 | 88.6% |
| 安心・安全 | |
| 建物火災出火件数 |
35件 人口10000人当たり 2.54件 |
| 刑法犯認知件数 |
385件 人口1000人当たり 2.80件 |
| ハザード・防災マップ | あり |
| 医療 | |
| 一般病院総数 | 12ヶ所 |
| 一般診療所総数 | 110ヶ所 |
| 小児科医師数 |
26人 小児人口10000人当たり 17.19人 |
| 産婦人科医師数 |
12人 15~49歳女性人口1万人当たり 5.34人 |
| 介護保険料基準額(月額) | 4960円 |
| ごみ | |
| 家庭ごみ収集(可燃ごみ) |
無料
|
| 家庭ごみの分別方式 | 4分別12種〔可燃ごみ 不燃ごみ 資源物(古紙[新聞紙、段ボール、紙パック、雑誌・雑紙] 衣類 びん・缶類 ペットボトル 容器包装プラスチック その他プラスチック) 処理困難物〕 |
| 家庭ごみの戸別収集 | 未実施 |
| 粗大ごみ収集 |
あり
|
| 生ごみ処理機助成金制度 |
あり 上限金額 15000円 上限比率 50.0% |
周南市の住まいの給付金
暮らしデータ提供元:生活ガイド.com
※行政機関により公表していない地域及びデータがございます。東京23区以外の政令指定都市は、市全体のデータとして表示しています。
※提供データには細心の注意を払っておりますが、調査後に変更がある場合があります。 最新の情報につきましては各市区役所までお問い合わせいただくか、自治体HPなどをご確認ください。
※提供データには細心の注意を払っておりますが、調査後に変更がある場合があります。 最新の情報につきましては各市区役所までお問い合わせいただくか、自治体HPなどをご確認ください。
住宅ローンシミュレーション
月々の返済額からの購入額の計算と、購入額からの返済額の計算ができます。
住宅ローンをお考えの方へ
最もおトクであなたにぴったりな
住宅ローンをみてみよう!
お気に入りの物件を見逃さない!
プッシュ通知で最新の物件情報が届く





