六甲桜丘ハイツ 3階 3LDK
3LDK / 六甲駅
- 情報提供元
- SUUMO
価格2280万円
-
現地(2025年11月)撮影
-
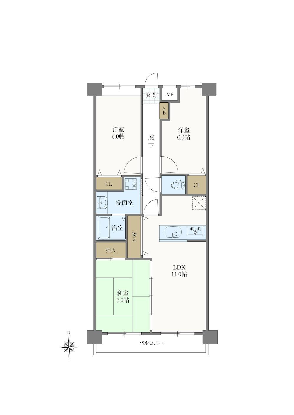
3LDK、価格2280万円、専有面積66m2、バルコニー面積8.25m2 実物との相違点は実物を優先します。
-
共用部
-
室内(2025年11月)撮影
-
室内(2025年11月)撮影
-
室内(2025年11月)撮影
-
室内(2025年11月)撮影
-
室内(2025年11月)撮影
-
阪急「六甲」駅まで1000m
-
室内(2025年11月)撮影
-
高羽小学校まで300m
-
鷹匠中学校まで550m
-
高羽公園まで400m
-
オアシスまで1000m
-
コープミニまで240m
-
この物件が気になりましたか? 物件や周辺施設などの詳しい情報は
問合せをすることで確認できます
- お問い合わせ先
- (株)エスアール・プラス
-
価格返済シミュレーション 2280万円
-
管理費等7300円/月(委託(通勤))
-
修繕
積立金10,300円 -
専有面積66m2(壁芯)
-
間取り3LDK
-
バルコニー面積8.25m2
-
築年数1997年11月
(築28年2ヶ月) -
方位南西
-
駐車場-
-
総戸数86戸
-
所在階
階数3階
9階建 -
物件
タイプ中古マンション -
マンション名六甲桜丘ハイツ
-
住所兵庫県神戸市灘区桜ケ丘町 地図
-
交通阪急神戸線 六甲駅 徒歩13分
| 借地期間・地代 | - |
|---|---|
| 建物構造 | RC |
| 管理形態 | 委託管理 |
| 維持費等 | 特別追加修繕維持積立金(月額)1,500円 |
| 土地権利 | 所有権 |
| 用途地域 | 1種中高 |
| 現況 | - |
| 引渡可能年月 | 即時 |
| 情報提供元 | SUUMO [060Z78865678] |
| 情報公開日 | |
| 情報更新日 | |
| 次回更新予定日 | 随時 |
地図
設備など
設備
| キッチン | 対面K |
|---|---|
| 収納 | 収納スペース |
| セキュリティ | 管理人日勤 |
| 建物設備 | エレベーター、宅配BOX |
備考
<物件名>六甲桜丘ハイツ/委託(日勤)/<土地権利>所有権/<間取り>3LDK/<特徴>高羽小、鷹匠中!阪急六甲まで徒歩13分、陽当り良好。リノベーションにも。、即引渡可・陽当り良好・全居室収納・対面式キッチン・南西向き
販売戸数:1戸/管理費等帯:7300円/修繕積立金帯:10300円
続きを見る
販売戸数:1戸/管理費等帯:7300円/修繕積立金帯:10300円
特記事項
日当り良好・管理人日勤
省エネ性能
| エネルギー消費性能 | - |
|---|---|
| 断熱性能 | - |
| 目安光熱費 | - |
- お問い合わせ先
- (株)エスアール・プラス
不動産会社情報
お問い合わせ先
| 商号 | (株)エスアール・プラス |
|---|---|
| 免許番号 | 兵庫県知事(2)第012197号 |
| 所在地 | 兵庫県神戸市中央区江戸町95 |
| TEL | 0120-938720 |
| 取引態様 | 一般媒介 |
| 管理コード | - |
| 所属協会など | - |
この地域の暮らしデータ
神戸市の人口などの統計情報
| 世帯数 | 734091世帯 |
|---|---|
| 人口総数 | 1500425人 |
| 転入者数 |
75773人 転入率(人口1000人当たり) 50.50人 |
| 転出者数 |
75052人 転出率(人口1000人当たり) 50.02人 |
| 土地平均価格 |
住宅地 196681円/m2 商業地 844842円/m2 |
神戸市の結婚・育児の助成金
| 出産・子育て | |
|---|---|
| 子育て関連の独自の取り組み | (1)妊産婦タクシー利用券。(2)産後ケア事業(32ヶ所)。(3)多胎児家庭支援の充実(多胎児家庭ホームヘルプサービス等)。(4)多様な保育施設で待機児童3年連続ゼロ(保育送迎ステーション等)。(5)病児保育(22ヶ所)。(6)夜間、休日に年中無休で診療する「神戸こども初期急病センター」。(7)天候関係なく無料で遊べる場所の充実(こべっこランド、こども本の森神戸、児童館120ヶ所等)。(8)学童保育希望者全員受入れ。(9)インフルエンザ予防接種費の一部助成(12歳まで)。(10)市民が市内高校に通う通学定期代無料化。(11)子連れ利用可能な無料コワーキングスペース(無料の一時保育付)。(12)大人同伴の小学生以下の市バス・地下鉄の料金が無料。(13)住み替え補助(「住みかえーる」で検索)。 |
| 出産祝い |
あり
|
| 公立保育所数 |
56ヶ所 0歳児保育を実施 45ヶ所 |
| 私立保育所数 |
70ヶ所 0歳児保育を実施 67ヶ所 |
| 保育所入所待機児童数 | 0人 |
| 認定こども園数 | 191園 |
| 預かり保育実施園数-公立 | 28園 |
| 預かり保育実施園数-私立 | 37園 |
| 学校給食 | 【小学校】完全給食【中学校】完全給食 デリバリー形式[運搬:ランチボックス、内容:完全給食]、但し家庭弁当等の持参も可(2024年9月から順次全員喫食制へ移行) |
| 公立中学校の学校選択制 | 一部実施(特定地域選択制) |
| 子ども・学生等医療費助成<通院>対象年齢 | 18歳3月末まで |
| 子ども・学生等医療費助成<入院>対象年齢 | 18歳3月末まで |
神戸市の治安・ごみ収集情報
| 公共料金・インフラ | |
|---|---|
| ガス料金(22m3使用した場合の月額) | 大阪瓦斯株式会社4544円 伊丹産業株式会社7185円 |
| 水道料金(口径20mmで20m3の月額) | 神戸市2926円 |
| 下水道料金(20m3を使用した場合の月額) | 神戸市1760円 |
| 下水道普及率 | 98.7% |
| 安心・安全 | |
| 建物火災出火件数 |
236件 人口10000人当たり 1.55件 |
| 刑法犯認知件数 |
12014件 人口1000人当たり 7.88件 |
| ハザード・防災マップ | あり |
| 医療 | |
| 一般病院総数 | 98ヶ所 |
| 一般診療所総数 | 1643ヶ所 |
| 小児科医師数 |
408人 小児人口10000人当たり 24.03人 |
| 産婦人科医師数 |
190人 15~49歳女性人口1万人当たり 6.47人 |
| 介護保険料基準額(月額) | 6580円 |
| ごみ | |
| 家庭ごみ収集(可燃ごみ) |
無料
|
| 家庭ごみの分別方式 | 5分別〔缶・びん・ペットボトル 容器包装プラスチック 燃えないごみ カセットボンベ・スプレー缶 燃えるごみ〕 拠点回収:使用済小型家電 カセットボンベ・スプレー缶 水銀体温計・温度計・血圧計 蛍光管 乾電池・充電式電池・ボタン電池 |
| 家庭ごみの戸別収集 | 一部実施(【ひまわり収集】クリーンステーションまで、ごみを持ち出すことが困難な高齢者または障害者など一部の対象者に実施) |
| 粗大ごみ収集 |
あり
|
| 生ごみ処理機助成金制度 |
なし 上限金額 - 上限比率 - |
神戸市の住まいの給付金
暮らしデータ提供元:生活ガイド.com
※行政機関により公表していない地域及びデータがございます。東京23区以外の政令指定都市は、市全体のデータとして表示しています。
※提供データには細心の注意を払っておりますが、調査後に変更がある場合があります。 最新の情報につきましては各市区役所までお問い合わせいただくか、自治体HPなどをご確認ください。
※提供データには細心の注意を払っておりますが、調査後に変更がある場合があります。 最新の情報につきましては各市区役所までお問い合わせいただくか、自治体HPなどをご確認ください。
住宅ローンシミュレーション
月々の返済額からの購入額の計算と、購入額からの返済額の計算ができます。
住宅ローンをお考えの方へ
最もおトクであなたにぴったりな
住宅ローンをみてみよう!
お気に入りの物件を見逃さない!
プッシュ通知で最新の物件情報が届く





