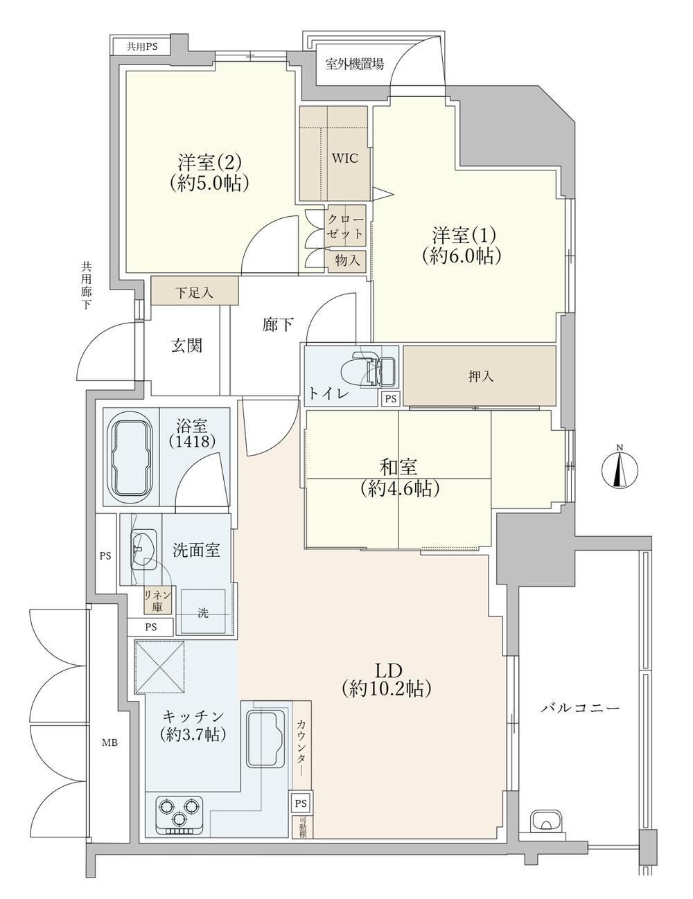
アーバネックスプレミスト田辺 8階 3LDK
3LDK / 田辺駅
- 情報提供元
- SUUMO
価格3980万円
-
現地(2025年11月)撮影
-
3LDK、価格3980万円、専有面積65.81m2、バルコニー面積8.17m2
-
内廊下仕様です。
-
画像
-
画像
-
画像
-
和室
-
段差の少ないフラット設計です。
-
画像
-
画像
-
スロップシンクがございます。
-
バルコニーからの眺望です。
-
画像
-
画像
-
洋室
-
シューズクローゼットや足元の照明がございます。
-
画像
-
画像
-
画像
-
画像
-
この物件が気になりましたか? 物件や周辺施設などの詳しい情報は
問合せをすることで確認できます
- お問い合わせ先
- (株)テイク・ワン
■ペット飼育可能マンションの為、大切なペットとお過ごしいただけます。(管理規約による大きさ・頭数等の制限有)■共用部分が内廊下仕様の為、玄関を出ても天候の影響を受けずホテルライクな生活をお楽しみいただけます。■室内フラット設計の為、小さなお子様がいらっしゃっても安心・安全です。■設備関係も充実しております。・食器洗乾燥機・浴室暖房乾燥機(ミストサウナ機能付き)・LD部分床暖房・ディスポーザー・浄水器・温水洗浄便座・バルコニーにスロップシンク有・TVモニター付きインターホン■室内も大変丁寧に使用されております。ぜひ一度ご見学くださいませ。
-
価格返済シミュレーション 3980万円
-
管理費等9210円/月(委託(通勤))
-
修繕
積立金13,160円 -
専有面積65.81m2(19.90坪)(壁芯)
-
間取り3LDK
-
バルコニー面積8.17m2
-
築年数2012年3月
(築13年10ヶ月) -
方位東
-
駐車場-
-
総戸数49戸
-
所在階
階数8階
13階建 -
物件
タイプ中古マンション -
マンション名アーバネックスプレミスト田辺
-
住所大阪府大阪市東住吉区田辺2 地図
-
交通地下鉄谷町線 田辺駅 徒歩6分
近鉄南大阪線 今川駅 徒歩7分
JR阪和線 南田辺駅 徒歩9分
| 借地期間・地代 | - |
|---|---|
| 建物構造 | RC |
| 管理形態 | 委託管理 |
| 維持費等 | - |
| 土地権利 | 所有権 |
| 用途地域 | 2種中高 |
| 現況 | - |
| 引渡可能年月 | 2026年5月 |
| 情報提供元 | SUUMO [060Z78834206] |
| 情報公開日 | |
| 情報更新日 | |
| 次回更新予定日 | 随時 |
地図
設備など
設備
| バス・トイレ | トイレ、浴室乾燥機、温水洗浄便座、風呂、サウナ |
|---|---|
| キッチン | システムキッチン、対面K、浄水器、食器洗浄乾燥機 |
| 収納 | 収納スペース、ウォークインクローゼット |
| セキュリティ | 管理人日勤、モニタ付インターホン |
| 室内設備 | 洗面所、シャンプードレッサ、床暖房、衣類乾燥機 |
| 建物設備 | バルコニー、エレベーター、宅配BOX |
| 特徴 | リフォーム |
リフォーム履歴
2026年2月完了予定
共用部の大規模修繕工事
その他リフォーム:外壁
※年月は一番古いリフォーム箇所を表します
続きを見る
共用部の大規模修繕工事
その他リフォーム:外壁
※年月は一番古いリフォーム箇所を表します
備考
<物件名>アーバネックスプレミスト田辺/委託(日勤)/<土地権利>所有権/<間取り>3LDK/<リフォーム>●リフォーム:2026年2月完了予定(共用部の大規模修繕工事、その他リフォーム:外壁)※年月は一番古いリフォーム箇所を表します/<特徴>■北・東の角住戸■開放感があり、眺望や陽当たり抜群のお部屋です。、設計住宅性能評価書・2沿線以上利用可・スーパー 徒歩10分以内・システムキッチン・浴室乾燥機
販売戸数:1戸/管理費等帯:9210円/修繕積立金帯:13160円
続きを見る
販売戸数:1戸/管理費等帯:9210円/修繕積立金帯:13160円
特記事項
ペット相談可・日当り良好・閑静な住宅街・角部屋・管理人日勤・設計住宅性能評価取得
省エネ性能
| エネルギー消費性能 | - |
|---|---|
| 断熱性能 | - |
| 目安光熱費 | - |
- お問い合わせ先
- (株)テイク・ワン
不動産会社情報
お問い合わせ先
| 商号 | (株)テイク・ワン |
|---|---|
| 免許番号 | 大阪府知事(1)第063735号 |
| 所在地 | 大阪府大阪市東淀川区東淡路4-18-14 K・K BLDG2階 |
| TEL | 06-6476-9022 |
| 取引態様 | 専任媒介 |
| 管理コード | - |
| 所属協会など | - |
この地域の暮らしデータ
大阪市の人口などの統計情報
| 世帯数 | 1464615世帯 |
|---|---|
| 人口総数 | 2757642人 |
| 転入者数 |
225000人 転入率(人口1000人当たり) 81.59人 |
| 転出者数 |
188180人 転出率(人口1000人当たり) 68.24人 |
| 土地平均価格 |
住宅地 270839円/m2 商業地 1966607円/m2 |
大阪市の結婚・育児の助成金
| 出産・子育て | |
|---|---|
| 子育て関連の独自の取り組み | (1)子ども・子育てプラザ(在宅での子育て家庭や地域での子育て活動を支援し、また乳幼児期の親子や子育て支援者、就学期の子どもが集い交流する機会を提供する等、地域福祉活動の推進を図る)。(2)習い事・塾代助成事業(学習塾や家庭教師、文化・スポーツ教室等学校外教育にかかる費用を、1人当たり月額1万円まで助成。所得制限あり)。 |
| 出産祝い |
なし
|
| 公立保育所数 |
53ヶ所 0歳児保育を実施 52ヶ所 |
| 私立保育所数 |
395ヶ所 0歳児保育を実施 385ヶ所 |
| 保育所入所待機児童数 | 2人 |
| 認定こども園数 | 117園 |
| 預かり保育実施園数-公立 | 52園 |
| 預かり保育実施園数-私立 | - |
| 学校給食 | 【小学校】完全給食【中学校】完全給食 |
| 公立中学校の学校選択制 | 実施 |
| 子ども・学生等医療費助成<通院>対象年齢 | 18歳3月末まで |
| 子ども・学生等医療費助成<入院>対象年齢 | 18歳3月末まで |
大阪市の治安・ごみ収集情報
| 公共料金・インフラ | |
|---|---|
| ガス料金(22m3使用した場合の月額) | 大阪瓦斯株式会社4544円 |
| 水道料金(口径20mmで20m3の月額) | 大阪市2112円 |
| 下水道料金(20m3を使用した場合の月額) | 大阪市1276円 |
| 下水道普及率 | 100.0% |
| 安心・安全 | |
| 建物火災出火件数 |
553件 人口10000人当たり 2.01件 |
| 刑法犯認知件数 |
39408件 人口1000人当たり 14.32件 |
| ハザード・防災マップ | あり |
| 医療 | |
| 一般病院総数 | 170ヶ所 |
| 一般診療所総数 | 3734ヶ所 |
| 小児科医師数 |
659人 小児人口10000人当たり 22.80人 |
| 産婦人科医師数 |
380人 15~49歳女性人口1万人当たり 6.15人 |
| 介護保険料基準額(月額) | 9249円 |
| ごみ | |
| 家庭ごみ収集(可燃ごみ) |
無料
|
| 家庭ごみの分別方式 | 4分別11種〔普通ごみ(普通ごみ、危険ごみ[竹串、ガラス片、カミソリの刃]) 資源ごみ(空き缶・空きびん・金属製の生活用品・ペットボトル、スプレー缶・カセットボンベ) 容器包装プラスチック 古紙・衣類(新聞紙・折込チラシ、段ボール、紙パック、雑誌、衣類、その他の紙類)〕 |
| 家庭ごみの戸別収集 | 一部実施(【ふれあい収集】65歳以上の一人暮らしの高齢者または高齢者だけの世帯、障がいがある方が居住される家庭で、ごみ出しが困難な人が対象) |
| 粗大ごみ収集 |
あり
|
| 生ごみ処理機助成金制度 |
なし 上限金額 - 上限比率 - |
大阪市の住まいの給付金
暮らしデータ提供元:生活ガイド.com
※行政機関により公表していない地域及びデータがございます。東京23区以外の政令指定都市は、市全体のデータとして表示しています。
※提供データには細心の注意を払っておりますが、調査後に変更がある場合があります。 最新の情報につきましては各市区役所までお問い合わせいただくか、自治体HPなどをご確認ください。
※提供データには細心の注意を払っておりますが、調査後に変更がある場合があります。 最新の情報につきましては各市区役所までお問い合わせいただくか、自治体HPなどをご確認ください。
住宅ローンシミュレーション
月々の返済額からの購入額の計算と、購入額からの返済額の計算ができます。
住宅ローンをお考えの方へ
最もおトクであなたにぴったりな
住宅ローンをみてみよう!
お気に入りの物件を見逃さない!
プッシュ通知で最新の物件情報が届く





