グランクール河原町二条 8階 3LDK
3LDK / 京都市役所前駅
- 情報提供元
- SUUMO
価格15980万円
-
画像
-
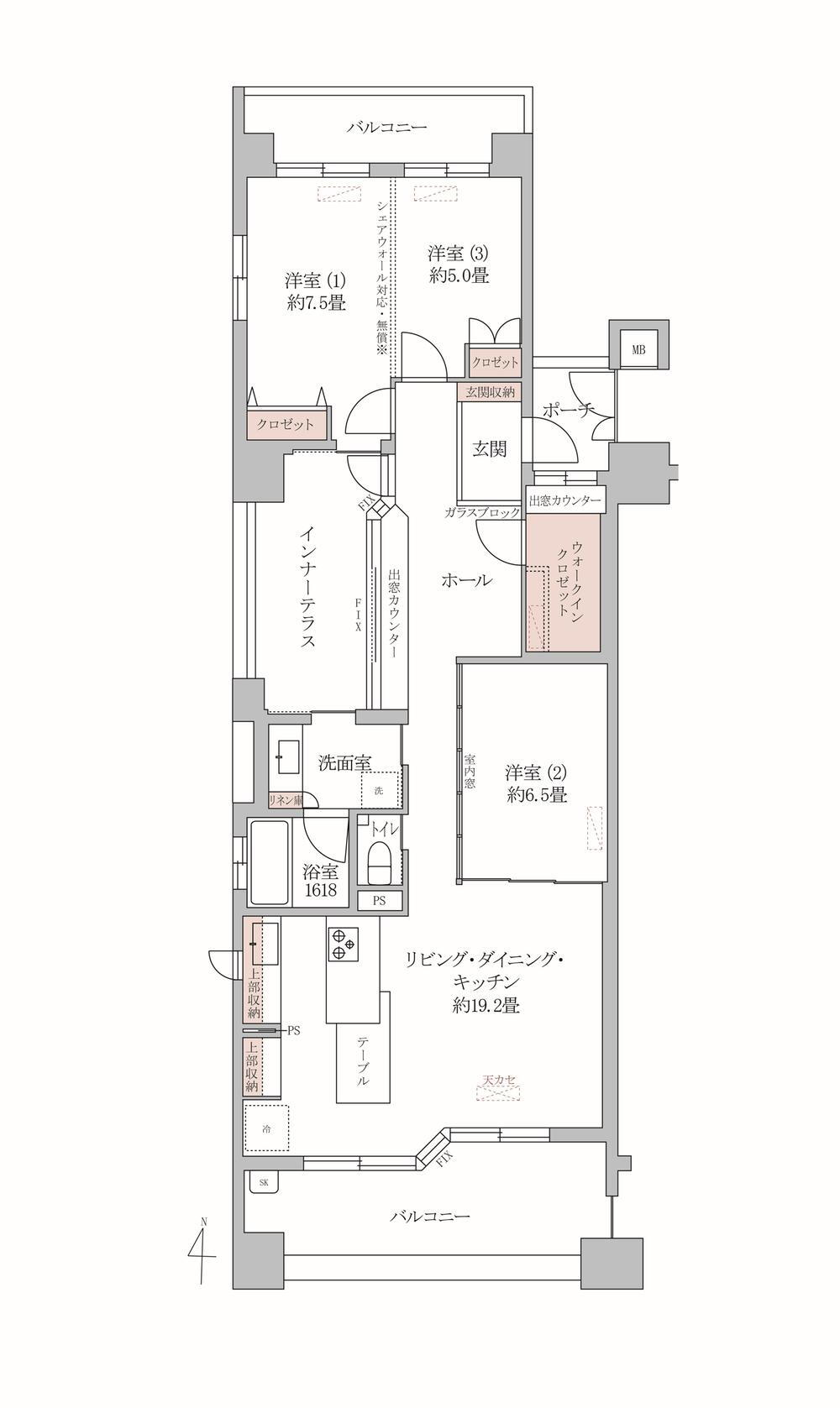
3LDK、価格1億5980万円、専有面積91.8m2、バルコニー面積31.35m2
-
本画像は完成予想イメージです。実際の間取り・内装・設備とは異なる場合があります。
-
本画像は完成予想イメージです。実際の間取り・内装・設備とは異なる場合があります。
-
本画像は完成予想イメージです。実際の間取り・内装・設備とは異なる場合があります。
-
本画像は完成予想イメージです。実際の間取り・内装・設備とは異なる場合があります。
-
本画像は完成予想イメージです。実際の間取り・内装・設備とは異なる場合があります。
-
この物件が気になりましたか? 物件や周辺施設などの詳しい情報は
問合せをすることで確認できます
- お問い合わせ先
- (株)コスモスイニシア京都営業所
〇グッドデザイン賞23回受賞実績のあるコスモスイニシアが手掛けるリノベーション〇河原町通×二条通 鴨川まで徒歩2分〇3面採光、通風に恵まれた南西角住戸〇窓付き浴室、TOTOシンラ採用、浴室サイズ1618〇2LDK→3LDKへ無償変更可能(入居後はお客様にて有償)〇15年アフターサービス【INITIA ID】憧れのホテルのような洗練を、日常の暮らしに取り入れるリノベーションブランド。特別な体験を、毎日の心地よさへ――唯一無二の住まいを提案します。出窓カウンター越しにインナーテラスが広がり、大きな窓から光が差し込む、明るく開放的な住まいです。
-
価格返済シミュレーション 15980万円
-
管理費等8810円/月(委託(通勤))
-
修繕
積立金14,960円 -
専有面積91.8m2(壁芯)
-
間取り3LDK
-
バルコニー面積31.35m2
-
築年数2001年6月
(築24年7ヶ月) -
方位南
-
駐車場敷地内(3000円~1万5000円/月)
-
総戸数173戸
-
所在階
階数8階
地上11階地下1階建 -
物件
タイプ中古マンション -
マンション名グランクール河原町二条
-
住所京都府京都市中京区清水町河原町通二条上る
-
交通地下鉄東西線 京都市役所前駅 徒歩7分
京阪鴨東線 神宮丸太町駅 徒歩8分
京阪本線 三条駅 徒歩9分
| 借地期間・地代 | - |
|---|---|
| 建物構造 | RC |
| 管理形態 | 委託管理 |
| 維持費等 | 町会費500円 |
| 土地権利 | 所有権 |
| 用途地域 | 商業地域 |
| 現況 | - |
| 引渡可能年月 | 相談 |
| 情報提供元 | SUUMO [060Z78822670] |
| 情報公開日 | |
| 情報更新日 | |
| 次回更新予定日 | 随時 |
設備など
設備
| バス・トイレ | トイレ、浴室乾燥機、温水洗浄便座、風呂 |
|---|---|
| キッチン | システムキッチン、浄水器、食器洗浄乾燥機 |
| 収納 | 収納スペース、ウォークインクローゼット |
| セキュリティ | 管理人日勤、モニタ付インターホン |
| 室内設備 | 床暖房、衣類乾燥機 |
| 建物設備 | バルコニー、エレベーター、宅配BOX、2面バルコニー、キッズルーム |
| 駐車場・駐輪場 | 駐輪場、バイク置き場 |
| 特徴 | リノベーション、リフォーム |
リフォーム履歴
2025年12月完了予定
水回り設備交換:キッチン・浴室・トイレ
内装リフォーム:壁・床・全室
※年月は一番古いリフォーム箇所を表します
続きを見る
水回り設備交換:キッチン・浴室・トイレ
内装リフォーム:壁・床・全室
※年月は一番古いリフォーム箇所を表します
備考
<物件名>グランクール河原町二条/<駐車場>敷地内/委託(日勤)/<土地権利>所有権/<間取り>3LDK/<リフォーム>●リフォーム:2025年12月完了予定(水回り設備交換:キッチン・浴室・トイレ、内装リフォーム:壁・床・全室)※年月は一番古いリフォーム箇所を表します/<特徴>古都で始める、もうひとつの人生。南西角住戸×ホテルライク空間、瑕疵保険(国交省指定)保証付・2沿線以上利用可・LDK18畳以上・スーパー 徒歩10分以内・南向き
販売戸数:1戸/管理費等帯:8810円/修繕積立金帯:14960円
続きを見る
販売戸数:1戸/管理費等帯:8810円/修繕積立金帯:14960円
特記事項
角部屋・管理人日勤・浴室1坪以上・瑕疵保険(国交省指定法人)
省エネ性能
| エネルギー消費性能 | - |
|---|---|
| 断熱性能 | - |
| 目安光熱費 | - |
- お問い合わせ先
- (株)コスモスイニシア京都営業所
不動産会社情報
お問い合わせ先
| 商号 | (株)コスモスイニシア京都営業所 |
|---|---|
| 免許番号 | 国土交通大臣(13)第002361号 |
| 所在地 | 京都府京都市中京区烏丸通御池下る虎屋町566-1 井門明治安田生命ビル2階 |
| TEL | 0120-211669 |
| 取引態様 | 売主 |
| 管理コード | MCY004991 |
| 所属協会など | - |
この地域の暮らしデータ
京都市の人口などの統計情報
| 世帯数 | 728744世帯 |
|---|---|
| 人口総数 | 1379529人 |
| 転入者数 |
85315人 転入率(人口1000人当たり) 61.84人 |
| 転出者数 |
80567人 転出率(人口1000人当たり) 58.40人 |
| 土地平均価格 |
住宅地 220880円/m2 商業地 1290411円/m2 |
京都市の結婚・育児の助成金
| 出産・子育て | |
|---|---|
| 子育て関連の独自の取り組み | (1)乳幼児の子育て支援機能や学童クラブ機能等を有する児童館設置。(2)こんにちはプレママ事業。(3)児童虐待未然防止に係る医療機関と子どもはぐくみ室及び京北出張所の連携。(4)子ども保健医療相談・事故防止センター設置。(5)京都はぐくみアプリ配信。(6)子育て支援コンシェルジュ育成。(7)骨髄移植手術等により免疫を喪失した子どもへのワクチン再接種費用助成制度。(8)子どもを共に育む京都市民憲章の制定、憲章の実践・普及の促進。(9)【京都安心すまい応援金】未就学の子どもがいる世帯を対象に、自己居住用として既存住宅を購入し、リフォームを行う場合に、最大200万円の応援金を交付。 |
| 出産祝い |
あり
|
| 公立保育所数 |
14ヶ所 0歳児保育を実施 13ヶ所 |
| 私立保育所数 |
196ヶ所 0歳児保育を実施 188ヶ所 |
| 保育所入所待機児童数 | 0人 |
| 認定こども園数 | 83園 |
| 預かり保育実施園数-公立 | 15園 |
| 預かり保育実施園数-私立 | 81園 |
| 学校給食 | 【小学校】完全給食【中学校】完全給食 家庭弁当等との選択制/デリバリー形式[運搬:ランチボックス、内容:完全給食] 給食なし |
| 公立中学校の学校選択制 | 未実施 |
| 子ども・学生等医療費助成<通院>対象年齢 | 中学校卒業まで |
| 子ども・学生等医療費助成<入院>対象年齢 | 中学校卒業まで |
京都市の治安・ごみ収集情報
| 公共料金・インフラ | |
|---|---|
| ガス料金(22m3使用した場合の月額) | 大阪瓦斯株式会社4544円 |
| 水道料金(口径20mmで20m3の月額) | 京都市3014円 |
| 下水道料金(20m3を使用した場合の月額) | 京都市2013円 |
| 下水道普及率 | 99.5% |
| 安心・安全 | |
| 建物火災出火件数 |
158件 人口10000人当たり 1.08件 |
| 刑法犯認知件数 |
8104件 人口1000人当たり 5.54件 |
| ハザード・防災マップ | あり |
| 医療 | |
| 一般病院総数 | 89ヶ所 |
| 一般診療所総数 | 1622ヶ所 |
| 小児科医師数 |
397人 小児人口10000人当たり 27.26人 |
| 産婦人科医師数 |
201人 15~49歳女性人口1万人当たり 7.16人 |
| 介護保険料基準額(月額) | 7160円 |
| ごみ | |
| 家庭ごみ収集(可燃ごみ) |
有料
|
| 家庭ごみの分別方式 | 5分別8種〔燃やすごみ 缶・びん・ペットボトル プラスチック類 小型金属類・スプレー缶 雑がみ〕 拠点回収:移動式拠点回収):古紙(新聞・ダンボール) 雑がみ 紙パック 使用済てんぷら油 古着類 乾電池 ボタン電池 充電式電池 蛍光管 水銀体温計・水銀血圧計 小型家電 磁気テープ類 インクカートリッジ リユースびん 刃物類 使い捨てライター 陶磁器製の食器 せん定枝木の枝 石油類 医薬品・農薬 化学薬品・塗料・ワックス・絵の具 洗浄剤 |
| 家庭ごみの戸別収集 | 一部実施(原則定点としているが、一部地域で狭路等やむを得ない事情がある場合のみ実施。また、ごみ出しが困難な高齢者や障害のある方などの生活支援の一つとして、御自宅の玄関先までごみの収集に伺う「ごみ収集福祉サービス[まごころ収集]」を実施) |
| 粗大ごみ収集 |
あり
|
| 生ごみ処理機助成金制度 |
なし 上限金額 - 上限比率 - |
京都市の住まいの給付金
暮らしデータ提供元:生活ガイド.com
※行政機関により公表していない地域及びデータがございます。東京23区以外の政令指定都市は、市全体のデータとして表示しています。
※提供データには細心の注意を払っておりますが、調査後に変更がある場合があります。 最新の情報につきましては各市区役所までお問い合わせいただくか、自治体HPなどをご確認ください。
※提供データには細心の注意を払っておりますが、調査後に変更がある場合があります。 最新の情報につきましては各市区役所までお問い合わせいただくか、自治体HPなどをご確認ください。
住宅ローンシミュレーション
月々の返済額からの購入額の計算と、購入額からの返済額の計算ができます。
住宅ローンをお考えの方へ
最もおトクであなたにぴったりな
住宅ローンをみてみよう!
お気に入りの物件を見逃さない!
プッシュ通知で最新の物件情報が届く





