シエリアタワー大阪堀江 23階 2LDK
2LDK / 西長堀駅
- 情報提供元
- SUUMO
価格8990万円
-
【外観】高層部はシンプルなフォルムとモノトーンカラー、基壇部は重厚な天然石とモダンな化粧格子で構成。
-
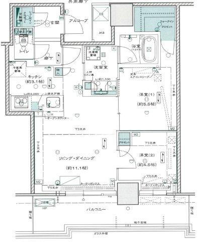
2LDK、価格8990万円、専有面積56.73m2、バルコニー面積11.36m2 【間取り】23階と高層階につき眺望・採光・通風ともに良好です!
-
【リビングダイニング】約11.1帖!おしゃれな幅広フローリングがインテリアや家具を引き立てます!
-
【リビングダイニング】約11.1帖のリビングダイニング!
-
【リビングダイニング】床暖房もあり冬も暖かくお過ごしいただけます◎
-
【キッチン】約3.1帖のキッチン!ディスポーザー付きで家事軽減に役立ちます!
-
【キッチン】HIの三口コンロ!お手入れもラクラクで綺麗を保てます◎
-
【トイレ】タンクレスでお手入れの楽なトイレ◎棚もありすっきりとした印象に!
-
【浴室】浴室暖房乾燥機付きで雨の日もお洗濯いただけます!
-
【独立洗面台】スタイリッシュなデザインで、お手入れもしやすいボウル一体型カウンター!
-
【洋室】約4.5帖の洋室!窓からの採光も良く明るい雰囲気のお部屋です◎
-
【洋室】約5.5帖の洋室!ウォーウインクローゼットもありお部屋を広くお使いいただけます◎
-
【ランドリースペース】
-
【バルコニー】約11.36平米の広々としたバルコニー!眺望・採光・通風ともに良好です◎
-
【物件からの展望】バルコニーからは京セラドームの見える高層階の景色が望めます!
-
【玄関】靴好きにはうれしいシューズインクローゼット付きの玄関!
-
【オーナーズラウンジ】開放感あるガラスウォール越しに眺める緑と、ラグジュアリーなインテリアが魅力的!
-
【ゲストルーム】4階ゲストルーム ~雅~ ラグジュアリーホテルでのステイを思わせる上品なお部屋です!
-
【スカイラウンジ】31階から大阪市内を一望する贅沢!ラグジュアリーホテルのラウンジさながらの空間!
-
【ゲストルーム】4階ゲストルーム ~雅~ 和の趣にあふれた粋な空間デザイン!ゆとりあるツインルーム!
-
ローソン 南堀江四丁目店まで171m
-
この物件が気になりましたか? 物件や周辺施設などの詳しい情報は
問合せをすることで確認できます
- お問い合わせ先
- TOWERZ (株)ES&Company
◇高層階につき眺望・採光・通風良好です!◇関西スーパーまで徒歩1分です!◇ZEH-M対応!◇大林組施工・DFS採用の制震タワー!☆お部屋POINT―――〇リビングダイニング約11.1帖!冬に嬉しい床暖房付き〇キッチンディスポーザー付き〇浴室浴室暖房乾燥機つき!〇収納WIC、SICなど収納充実◎☆共用施設―――1F〇コンシェルジュカウンター〇ラウンジ4F〇ゲストルーム〇スタディルール31F〇スカイラウンジ〇パーティルーム☆特徴・詳細―――〇お買い物施設関西スーパー南堀江店まで徒歩2分KOHYO堀江鮮度館まで徒歩5分
-
価格返済シミュレーション 8990万円
-
管理費等1万9600円/月(委託(通勤))
-
修繕
積立金7,200円 -
専有面積56.73m2(17.16坪)(壁芯)
-
間取り2LDK
-
バルコニー面積11.36m2
-
築年数2024年8月
(築1年4ヶ月) -
方位西
-
駐車場-
-
総戸数500戸
-
所在階
階数23階
46階建 -
物件
タイプ中古マンション -
マンション名シエリアタワー大阪堀江
-
住所大阪府大阪市西区南堀江3 地図
-
交通地下鉄長堀鶴見緑地線 西長堀駅 徒歩4分
地下鉄千日前線 西長堀駅 徒歩4分
南海高野線 汐見橋駅 徒歩4分
| 借地期間・地代 | - |
|---|---|
| 建物構造 | RC |
| 管理形態 | 委託管理 |
| 維持費等 | インターネットに係る費用/定額費用2,189円 |
| 土地権利 | 所有権 |
| 用途地域 | 商業地域 |
| 現況 | - |
| 引渡可能年月 | 相談 |
| 情報提供元 | SUUMO [060Z78308256] |
| 情報公開日 | |
| 情報更新日 | |
| 次回更新予定日 | 随時 |
地図
設備など
設備
| バス・トイレ | トイレ、浴室乾燥機、温水洗浄便座、風呂 |
|---|---|
| キッチン | システムキッチン、対面K、IHクッキングヒータ、浄水器、食器洗浄乾燥機 |
| 収納 | 収納スペース、ウォークインクローゼット、シューズインクローク |
| セキュリティ | 管理人日勤、モニタ付インターホン |
| 室内設備 | 衣類乾燥機 |
| 建物設備 | バルコニー、エレベーター、宅配BOX |
| 駐車場・駐輪場 | 駐輪場、バイク置き場 |
| テレビ・通信 | 高速ネット対応 |
備考
<物件名>シエリアタワー大阪堀江/委託(日勤)/<土地権利>所有権/<間取り>2LDK/<特徴>タワーマンション専門【TOWERZ】◆WICやSICで収納充実の2LDK!、設計住宅性能評価書・建設住宅性能評価書(既存住宅)・即引渡可・2沿線以上利用可・リバーサイド
販売戸数:1戸/管理費等帯:19600円/修繕積立金帯:7200円
続きを見る
販売戸数:1戸/管理費等帯:19600円/修繕積立金帯:7200円
特記事項
ペット相談可・日当り良好・閑静な住宅街・管理人日勤・オール電化・設計住宅性能評価取得・24時間ゴミ出し可
省エネ性能
| エネルギー消費性能 | - |
|---|---|
| 断熱性能 | - |
| 目安光熱費 | - |
- お問い合わせ先
- TOWERZ (株)ES&Company
不動産会社情報
お問い合わせ先
商号: TOWERZ (株)ES&Company
免許番号:国土交通大臣(1)第010312号
所在地:大阪府大阪市中央区淡路町3-6-3 御堂筋MTRビル1階
TEL:0120-905323
取引態様:媒介
管理コード:42589 この会社の他の物件情報を見る この不動産会社に相談したい
免許番号:国土交通大臣(1)第010312号
所在地:大阪府大阪市中央区淡路町3-6-3 御堂筋MTRビル1階
TEL:0120-905323
取引態様:媒介
管理コード:42589 この会社の他の物件情報を見る この不動産会社に相談したい
この地域の暮らしデータ
大阪市の人口などの統計情報
| 世帯数 | 1464615世帯 |
|---|---|
| 人口総数 | 2757642人 |
| 転入者数 |
225000人 転入率(人口1000人当たり) 81.59人 |
| 転出者数 |
188180人 転出率(人口1000人当たり) 68.24人 |
| 土地平均価格 |
住宅地 270839円/m2 商業地 1966607円/m2 |
大阪市の結婚・育児の助成金
| 出産・子育て | |
|---|---|
| 子育て関連の独自の取り組み | (1)子ども・子育てプラザ(在宅での子育て家庭や地域での子育て活動を支援し、また乳幼児期の親子や子育て支援者、就学期の子どもが集い交流する機会を提供する等、地域福祉活動の推進を図る)。(2)習い事・塾代助成事業(学習塾や家庭教師、文化・スポーツ教室等学校外教育にかかる費用を、1人当たり月額1万円まで助成。所得制限あり)。 |
| 出産祝い |
なし
|
| 公立保育所数 |
53ヶ所 0歳児保育を実施 52ヶ所 |
| 私立保育所数 |
395ヶ所 0歳児保育を実施 385ヶ所 |
| 保育所入所待機児童数 | 2人 |
| 認定こども園数 | 117園 |
| 預かり保育実施園数-公立 | 52園 |
| 預かり保育実施園数-私立 | - |
| 学校給食 | 【小学校】完全給食【中学校】完全給食 |
| 公立中学校の学校選択制 | 実施 |
| 子ども・学生等医療費助成<通院>対象年齢 | 18歳3月末まで |
| 子ども・学生等医療費助成<入院>対象年齢 | 18歳3月末まで |
大阪市の治安・ごみ収集情報
| 公共料金・インフラ | |
|---|---|
| ガス料金(22m3使用した場合の月額) | 大阪瓦斯株式会社4544円 |
| 水道料金(口径20mmで20m3の月額) | 大阪市2112円 |
| 下水道料金(20m3を使用した場合の月額) | 大阪市1276円 |
| 下水道普及率 | 100.0% |
| 安心・安全 | |
| 建物火災出火件数 |
553件 人口10000人当たり 2.01件 |
| 刑法犯認知件数 |
39408件 人口1000人当たり 14.32件 |
| ハザード・防災マップ | あり |
| 医療 | |
| 一般病院総数 | 170ヶ所 |
| 一般診療所総数 | 3734ヶ所 |
| 小児科医師数 |
659人 小児人口10000人当たり 22.80人 |
| 産婦人科医師数 |
380人 15~49歳女性人口1万人当たり 6.15人 |
| 介護保険料基準額(月額) | 9249円 |
| ごみ | |
| 家庭ごみ収集(可燃ごみ) |
無料
|
| 家庭ごみの分別方式 | 4分別11種〔普通ごみ(普通ごみ、危険ごみ[竹串、ガラス片、カミソリの刃]) 資源ごみ(空き缶・空きびん・金属製の生活用品・ペットボトル、スプレー缶・カセットボンベ) 容器包装プラスチック 古紙・衣類(新聞紙・折込チラシ、段ボール、紙パック、雑誌、衣類、その他の紙類)〕 |
| 家庭ごみの戸別収集 | 一部実施(【ふれあい収集】65歳以上の一人暮らしの高齢者または高齢者だけの世帯、障がいがある方が居住される家庭で、ごみ出しが困難な人が対象) |
| 粗大ごみ収集 |
あり
|
| 生ごみ処理機助成金制度 |
なし 上限金額 - 上限比率 - |
大阪市の住まいの給付金
暮らしデータ提供元:生活ガイド.com
※行政機関により公表していない地域及びデータがございます。東京23区以外の政令指定都市は、市全体のデータとして表示しています。
※提供データには細心の注意を払っておりますが、調査後に変更がある場合があります。 最新の情報につきましては各市区役所までお問い合わせいただくか、自治体HPなどをご確認ください。
※提供データには細心の注意を払っておりますが、調査後に変更がある場合があります。 最新の情報につきましては各市区役所までお問い合わせいただくか、自治体HPなどをご確認ください。
この物件を見た人はこんな物件も
見ています
住宅ローンシミュレーション
月々の返済額からの購入額の計算と、購入額からの返済額の計算ができます。
住宅ローンをお考えの方へ
最もおトクであなたにぴったりな
住宅ローンをみてみよう!
お気に入りの物件を見逃さない!
プッシュ通知で最新の物件情報が届く






