グローリオ西新井 10階 3LDK
3LDK / 梅島駅
- 情報提供元
- SUUMO
価格5680万円
-
■東武伊勢崎「梅島」駅徒歩19分
■ペット飼育可(細則有)
*外観(2025年6月)撮影 -
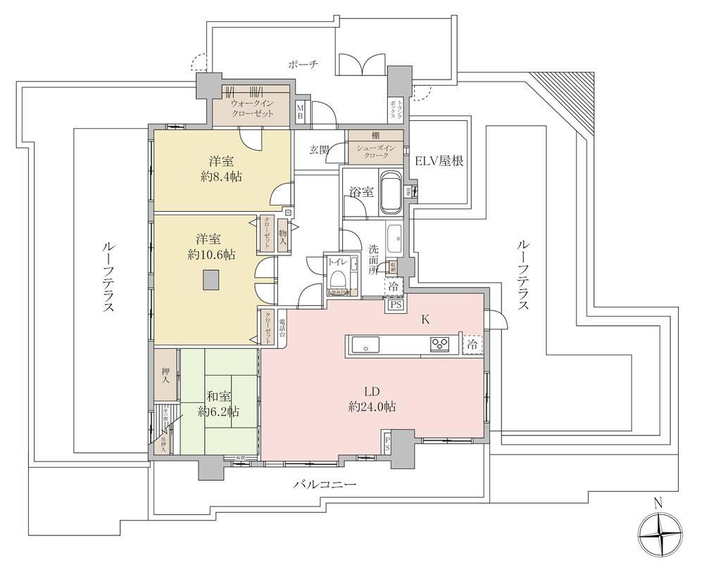
3LDK、価格5680万円、専有面積113.51m2、バルコニー面積19.4m2 ■LDK約24帖
■大型バルコニー -
■約24帖
*リビング/ダイニング(2025年6月)撮影 -
ルーフバルコニー西側(2025年6月)撮影
-
■開放感のある玄関
*玄関(2025年6月)撮影 -
リビング24帖(2025年6月)撮影
-
■備付食器棚
*キッチン(2025年6月)撮影 -
ルーフバルコニー西側(2025年6月)撮影
-
■約6.2帖
*和室(2025年6月)撮影 -
■洗面台横に収納あり
洗面台(2025年6月)撮影 -
■浴室乾燥機付き
*バスルーム(2025年6月)撮影 -
シューズインクローク
*玄関(2025年6月)撮影 -
■玄関ポーチ
*玄関(2025年6月)撮影 -
バルコニーからの眺望 南側
*バルコニー(2025年6月)撮影 -
駐車場 空きあり
-
中島根小学校まで140m
-
六月中学校まで750m
-
西友足立島根店まで550m
-
ウエルシア足立島根店まで600m
-
ファミリーマート島根二丁目店まで220m
-
中島根保育園まで220m
-
この物件が気になりましたか? 物件や周辺施設などの詳しい情報は
問合せをすることで確認できます
- お問い合わせ先
- (株)中央住宅ポラス住まいの情報館竹ノ塚営業所
【ポラスの仲介】■大型LDK(約24帖)窓が多く室内が非常に明るいです■10階は2住戸のみ 壁で接していないのでプライバシー性が高い仕様■ペットとともに暮らせます(細則有)■三面バルコニー■全居室6帖以上■ゲストルーム完備 リビングと和室がありゆったりとご利用できます。■徒歩で梅島・西新井駅、バス便で北千住・竹ノ塚・六町駅の利用も可能です!ご希望ありましたらリフォームプランのご紹介いたします。物件の詳細・ご自宅の売却やローンのご相談は担当:杉山(すぎやま)までお気軽にお問い合わせください。
-
価格返済シミュレーション 5680万円
-
管理費等1万7600円/月(委託(通勤))
-
修繕
積立金23,837円 -
専有面積113.51m2(壁芯)
-
間取り3LDK
-
バルコニー面積19.4m2
-
築年数2002年3月
(築23年8ヶ月) -
方位西
-
駐車場敷地内(1万円/月)
-
総戸数115戸
-
所在階
階数10階
10階建 -
物件
タイプ中古マンション -
マンション名グローリオ西新井
-
住所東京都足立区島根2 地図
-
交通東武伊勢崎線 梅島駅 徒歩18分
東武伊勢崎線 西新井駅 徒歩19分
| 借地期間・地代 | - |
|---|---|
| 建物構造 | RC |
| 管理形態 | 委託管理 |
| 維持費等 | - |
| 土地権利 | 所有権 |
| 用途地域 | 1種中高 |
| 現況 | - |
| 引渡可能年月 | 相談 |
| 情報提供元 | SUUMO [030Z77857016] |
| 情報公開日 | |
| 情報更新日 | |
| 次回更新予定日 | 随時 |
地図
設備など
設備
| バス・トイレ | 風呂 |
|---|---|
| キッチン | システムキッチン、対面K |
| 収納 | シューズインクローク |
| セキュリティ | 管理人日勤 |
| 建物設備 | バルコニー、ルーフバルコニー、2面バルコニー |
備考
<物件名>グローリオ西新井/<駐車場>敷地内/委託(日勤)/<土地権利>所有権/<間取り>3LDK/<用途地域>1種住居あり/<特徴>最上階×大型ルーフバルコニー(約63㎡)×4方向開口の角住戸、LDK20畳以上・スーパー 徒歩10分以内・システムキッチン・角住戸・陽当り良好
販売戸数:1戸/管理費等帯:17600円/修繕積立金帯:23837円
続きを見る
販売戸数:1戸/管理費等帯:17600円/修繕積立金帯:23837円
特記事項
ペット相談可・日当り良好・角部屋・管理人日勤・最上階
省エネ性能
| エネルギー消費性能 | - |
|---|---|
| 断熱性能 | - |
| 目安光熱費 | - |
- お問い合わせ先
- (株)中央住宅ポラス住まいの情報館竹ノ塚営業所
不動産会社情報
お問い合わせ先
商号: (株)中央住宅ポラス住まいの情報館竹ノ塚営業所
免許番号:国土交通大臣(13)第002401号
所在地:東京都足立区竹の塚6-11-1 Tキューブ2階
TEL:0120-988740
取引態様:専任媒介 この会社の他の物件情報を見る この不動産会社に相談したい
免許番号:国土交通大臣(13)第002401号
所在地:東京都足立区竹の塚6-11-1 Tキューブ2階
TEL:0120-988740
取引態様:専任媒介 この会社の他の物件情報を見る この不動産会社に相談したい
この地域の暮らしデータ
足立区の人口などの統計情報
| 世帯数 | 345010世帯 |
|---|---|
| 人口総数 | 693223人 |
| 転入者数 |
44256人 転入率(人口1000人当たり) 63.84人 |
| 転出者数 |
35899人 転出率(人口1000人当たり) 51.79人 |
| 土地平均価格 |
住宅地 371926円/m2 商業地 646909円/m2 |
足立区の結婚・育児の助成金
| 出産・子育て | |
|---|---|
| 子育て関連の独自の取り組み | (1)病児保育(在宅型)利用料金の助成。(2)あだちはじめてえほん事業。(3)あだち幼保小接続期カリキュラム。(4)あだちっ子歯科健診。(5)保育士・幼稚園教諭奨学金返済支援事業補助金。(6)保育士・幼稚園教諭住居借上げ支援事業補助金。(7)保育従事者永年勤続褒賞。(8)足立区教育・保育の質ガイドライン。(9)病児保育(施設型)。 |
| 出産祝い |
あり
|
| 公立保育所数 |
40ヶ所 0歳児保育を実施 21ヶ所 |
| 私立保育所数 |
113ヶ所 0歳児保育を実施 106ヶ所 |
| 保育所入所待機児童数 | 5人 |
| 認定こども園数 | 7園 |
| 預かり保育実施園数-公立 | - |
| 預かり保育実施園数-私立 | 45園 |
| 学校給食 | 【小学校】完全給食【中学校】完全給食 |
| 公立中学校の学校選択制 | 実施(自由選択制) |
| 子ども・学生等医療費助成<通院>対象年齢 | 18歳3月末まで |
| 子ども・学生等医療費助成<入院>対象年齢 | 18歳3月末まで |
足立区の治安・ごみ収集情報
| 公共料金・インフラ | |
|---|---|
| ガス料金(22m3使用した場合の月額) | 東京瓦斯株式会社(東京地区等)3926円 |
| 水道料金(口径20mmで20m3の月額) | 東京都水道局2816円 |
| 下水道料金(20m3を使用した場合の月額) | 東京都下水道局2068円 |
| 下水道普及率 | 99.9% |
| 安心・安全 | |
| 建物火災出火件数 |
142件 人口10000人当たり 2.04件 |
| 刑法犯認知件数 |
4222件 人口1000人当たり 6.07件 |
| ハザード・防災マップ | あり |
| 医療 | |
| 一般病院総数 | 54ヶ所 |
| 一般診療所総数 | 454ヶ所 |
| 小児科医師数 |
144人 小児人口10000人当たり 19.86人 |
| 産婦人科医師数 |
26人 15~49歳女性人口1万人当たり 1.79人 |
| 介護保険料基準額(月額) | 6750円 |
| ごみ | |
| 家庭ごみ収集(可燃ごみ) |
無料
|
| 家庭ごみの分別方式 | 3分別10種〔可燃ごみ 不燃ごみ 資源(古紙[新聞、雑誌類、雑がみ、段ボール、紙パック]、びん、缶、ペットボトル)〕千住、新田、宮城・小台のみ4分別12種〔可燃ごみ 不燃ごみ 資源(古紙[新聞、雑誌類、雑がみ、段ボール、紙パック]、びん、缶、ペットボトル) プラスチック(プラスチック製容器包装、製品プラスチック)〕 |
| 家庭ごみの戸別収集 | 一部実施(次のいずれか位に該当する者のみで構成される世帯で、世帯員が集積所までごみを持ち出すことが困難であり、かつ、世帯員以外の者の協力を得ることが出来ない方。[1]要介護2以上に認定されている者。[2]身体障害者手帳1級又は2級に認定されている者。[3]その他自ら集積所にごみを出すことが困難であると区長が認める者) |
| 粗大ごみ収集 |
あり
|
| 生ごみ処理機助成金制度 |
あり 上限金額 20000円 上限比率 50.0% |
足立区の住まいの給付金
暮らしデータ提供元:生活ガイド.com
※行政機関により公表していない地域及びデータがございます。東京23区以外の政令指定都市は、市全体のデータとして表示しています。
※提供データには細心の注意を払っておりますが、調査後に変更がある場合があります。 最新の情報につきましては各市区役所までお問い合わせいただくか、自治体HPなどをご確認ください。
※提供データには細心の注意を払っておりますが、調査後に変更がある場合があります。 最新の情報につきましては各市区役所までお問い合わせいただくか、自治体HPなどをご確認ください。
この物件を見た人はこんな物件も
見ています
住宅ローンシミュレーション
月々の返済額からの購入額の計算と、購入額からの返済額の計算ができます。
住宅ローンをお考えの方へ
最もおトクであなたにぴったりな
住宅ローンをみてみよう!
お気に入りの物件を見逃さない!
プッシュ通知で最新の物件情報が届く






