クレストフォルム上野グランステージ 2階 2SLDK
2SLDK / 上野駅
- 情報提供元
- SUUMO
価格11198万円
-
外観
-
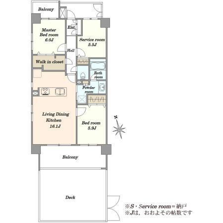
2LDK+S、価格1億1198万円、専有面積75.87m2、バルコニー面積15.5m2 間取り図
-
LDK
-
LDK
-
浴室
-
キッチン
-
洋室
-
洗面所
-
トイレ
-
エントランス
-
山手線「上野」駅まで400m 徒歩6分
-
サービスルーム(納戸)
-
デッキ
-
LDK
-
洋室
-
エントランス
-
上野マルイまで900m 写真中央の施設
-
サービスルーム(納戸)
-
LDK
-
エントランス
-
KINOKUNIYA entr?e ecute上野店まで650m
-
この物件が気になりましたか? 物件や周辺施設などの詳しい情報は
問合せをすることで確認できます
- お問い合わせ先
- 野村の仲介+上野センター野村不動産ソリューションズ(株)
┏┓┗□ ◇【おすすめポイント】◇ ━━━━━━━━━━━━━━━━━━━━━・南・西角住戸、日照・通風良好 ………………………………………………………………………・リフォーム済み物件(リフォーム内容別途記載)………………………………………………………………………・約24.4m2のガーデンデッキ有………………………………………………………………………・ペット飼育可(飼育細則有)
-
価格返済シミュレーション 11198万円
-
管理費等1万5500円/月(委託(通勤))
-
修繕
積立金15,170円 -
専有面積75.87m2(壁芯)
-
間取り2SLDK
-
バルコニー面積15.5m2
-
築年数2001年11月
(築24年) -
方位南西
-
駐車場-
-
総戸数156戸
-
所在階
階数2階
14階建 -
物件
タイプ中古マンション -
マンション名クレストフォルム上野グランステージ
-
住所東京都台東区上野7 地図
-
交通JR山手線 上野駅 徒歩6分
東京メトロ日比谷線 上野駅 徒歩6分
| 借地期間・地代 | - |
|---|---|
| 建物構造 | SRC |
| 管理形態 | 委託管理 |
| 維持費等 | - |
| 土地権利 | 所有権 |
| 用途地域 | 商業地域 |
| 現況 | - |
| 引渡可能年月 | 相談 |
| 情報提供元 | SUUMO [030Z77840116] |
| 情報公開日 | |
| 情報更新日 | |
| 次回更新予定日 | 随時 |
地図
設備など
設備
| セキュリティ | 管理人日勤、モニタ付インターホン |
|---|---|
| 建物設備 | 宅配BOX |
備考
<物件名>クレストフォルム上野グランステージ/委託(日勤)/<土地権利>所有権の共有/<間取り>2LDK+S(納戸)/<特徴>◆JR山手線 他各線「上野」駅 徒歩6分の交通利便 、2沿線以上利用可・角住戸・TVモニタ付インターホン・南西向き・宅配ボックス
販売戸数:1戸/管理費等帯:15500円/修繕積立金帯:15170円
法令等制限:ガーデンデッキ使用料:1200円/月 ポーチ面積:5.20m2
続きを見る
販売戸数:1戸/管理費等帯:15500円/修繕積立金帯:15170円
法令等制限:ガーデンデッキ使用料:1200円/月 ポーチ面積:5.20m2
特記事項
角部屋・管理人日勤
省エネ性能
| エネルギー消費性能 | - |
|---|---|
| 断熱性能 | - |
| 目安光熱費 | - |
- お問い合わせ先
- 野村の仲介+上野センター野村不動産ソリューションズ(株)
不動産会社情報
お問い合わせ先
商号: 野村の仲介+上野センター野村不動産ソリューションズ(株)
免許番号:国土交通大臣(5)第006101号
所在地:東京都台東区上野2-7-13 THE PARK 6階
TEL:0120-689-715
取引態様:専任媒介
管理コード:ED616014 この会社の他の物件情報を見る この不動産会社に相談したい
免許番号:国土交通大臣(5)第006101号
所在地:東京都台東区上野2-7-13 THE PARK 6階
TEL:0120-689-715
取引態様:専任媒介
管理コード:ED616014 この会社の他の物件情報を見る この不動産会社に相談したい
この地域の暮らしデータ
台東区の人口などの統計情報
| 世帯数 | 121557世帯 |
|---|---|
| 人口総数 | 212388人 |
| 転入者数 |
25608人 転入率(人口1000人当たり) 120.57人 |
| 転出者数 |
19506人 転出率(人口1000人当たり) 91.84人 |
| 土地平均価格 |
住宅地 741667円/m2 商業地 1973458円/m2 |
台東区の結婚・育児の助成金
| 出産・子育て | |
|---|---|
| 子育て関連の独自の取り組み | (1)弱視等治療用眼鏡助成(9歳未満の児童が弱視等の治療用眼鏡を修理した場合及び保険で認められない期間に買い換えた場合、当該費用の一部を助成)。(2)にぎやか家庭応援プラン(第3子以降のお子さんの出生、小学校・中学校入学時に3万円相当のお祝品を贈呈)。(3)バスレクリエーション(ひとり親家庭を対象に日帰りのバスハイクを年2回実施)。 |
| 出産祝い |
あり
|
| 公立保育所数 |
11ヶ所 0歳児保育を実施 8ヶ所 |
| 私立保育所数 |
36ヶ所 0歳児保育を実施 26ヶ所 |
| 保育所入所待機児童数 | 0人 |
| 認定こども園数 | 5園 |
| 預かり保育実施園数-公立 | 10園 |
| 預かり保育実施園数-私立 | 7園 |
| 学校給食 | 【小学校】完全給食【中学校】完全給食 |
| 公立中学校の学校選択制 | 実施 |
| 子ども・学生等医療費助成<通院>対象年齢 | 18歳3月末まで |
| 子ども・学生等医療費助成<入院>対象年齢 | 18歳3月末まで |
台東区の治安・ごみ収集情報
| 公共料金・インフラ | |
|---|---|
| ガス料金(22m3使用した場合の月額) | 東京瓦斯株式会社(東京地区等)3926円 |
| 水道料金(口径20mmで20m3の月額) | 東京都水道局2816円 |
| 下水道料金(20m3を使用した場合の月額) | 東京都下水道局2068円 |
| 下水道普及率 | 100.0% |
| 安心・安全 | |
| 建物火災出火件数 |
65件 人口10000人当たり 3.07件 |
| 刑法犯認知件数 |
2805件 人口1000人当たり 13.27件 |
| ハザード・防災マップ | あり |
| 医療 | |
| 一般病院総数 | 7ヶ所 |
| 一般診療所総数 | 277ヶ所 |
| 小児科医師数 |
28人 小児人口10000人当たり 15.85人 |
| 産婦人科医師数 |
16人 15~49歳女性人口1万人当たり 3.13人 |
| 介護保険料基準額(月額) | 6900円 |
| ごみ | |
| 家庭ごみ収集(可燃ごみ) |
無料
|
| 家庭ごみの分別方式 | 3分別10種〔可燃ごみ 不燃ごみ 資源(新聞、雑誌・雑がみ、段ボール、紙パック、ペットボトル、缶、びん、食品発泡トレイ・カップ)〕 拠点回収:古布 ビデオテープ類 乾電池 廃食油 紙パック 小型家電 蛍光灯 |
| 家庭ごみの戸別収集 | 実施 |
| 粗大ごみ収集 |
あり
|
| 生ごみ処理機助成金制度 |
なし 上限金額 - 上限比率 - |
台東区の住まいの給付金
暮らしデータ提供元:生活ガイド.com
※行政機関により公表していない地域及びデータがございます。東京23区以外の政令指定都市は、市全体のデータとして表示しています。
※提供データには細心の注意を払っておりますが、調査後に変更がある場合があります。 最新の情報につきましては各市区役所までお問い合わせいただくか、自治体HPなどをご確認ください。
※提供データには細心の注意を払っておりますが、調査後に変更がある場合があります。 最新の情報につきましては各市区役所までお問い合わせいただくか、自治体HPなどをご確認ください。
この物件を見た人はこんな物件も
見ています
住宅ローンシミュレーション
月々の返済額からの購入額の計算と、購入額からの返済額の計算ができます。
住宅ローンをお考えの方へ
最もおトクであなたにぴったりな
住宅ローンをみてみよう!
お気に入りの物件を見逃さない!
プッシュ通知で最新の物件情報が届く






