北斗シティB棟 6階 2LDK
2LDK / 北34条駅
- 情報提供元
- SUUMO
価格1790万円
-
外観
-
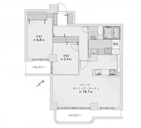
2LDK、価格1790万円、専有面積73.3m2、バルコニー面積11.58m2
-
外観
-
画像
-
画像
-
画像
-
画像
-
画像
-
画像
-
画像
-
画像
-
画像
-
画像
-
画像
-
画像
-
画像
-
画像
-
画像
-
画像
-
この物件が気になりましたか? 物件や周辺施設などの詳しい情報は
問合せをすることで確認できます
- お問い合わせ先
- ジン不動産販売(株)
■地下鉄南北線「北34条」駅徒歩12分、JR札沼線「新川」駅徒歩12分■2025年11月内装リノベーション(システムキッチン、ユニットバス、シャワー付洗面化粧台、防水パン、温水洗浄便座付トイレ、照明器具、建具、床、壁・天井クロス、室内クリーニング等)■8階建て6階部分南東向きで日当たり良好■トランクルーム空有(1600円/月)■ローソン北30条西11丁目店徒歩2分、ココカラファイン北28条店徒歩5分、マックスバリュ北32条店徒歩9分
-
価格返済シミュレーション 1790万円
-
管理費等9090円/月(委託(通勤))
-
修繕
積立金11,360円 -
専有面積73.3m2(壁芯)
-
間取り2LDK
-
バルコニー面積11.58m2
-
築年数1983年8月
(築42年5ヶ月) -
方位南東
-
駐車場空無
-
総戸数101戸
-
所在階
階数6階
8階建 -
物件
タイプ中古マンション -
マンション名北斗シティB棟
-
住所北海道札幌市北区北三十一条西11 地図
-
交通地下鉄南北線 北34条駅 徒歩12分
JR札沼線 新川駅 徒歩12分
| 借地期間・地代 | - |
|---|---|
| 建物構造 | SRC |
| 管理形態 | 委託管理 |
| 維持費等 | 町会費300円 |
| 土地権利 | 所有権 |
| 用途地域 | 2種中高 |
| 現況 | - |
| 引渡可能年月 | 相談 |
| 情報提供元 | SUUMO [010Z78698852] |
| 情報公開日 | |
| 情報更新日 | |
| 次回更新予定日 | 随時 |
地図
設備など
設備
| バス・トイレ | トイレ、浴室乾燥機、温水洗浄便座、風呂 |
|---|---|
| キッチン | システムキッチン、対面K、浄水器、食器洗浄乾燥機 |
| 収納 | 収納スペース |
| セキュリティ | 管理人日勤、モニタ付インターホン |
| 室内設備 | 衣類乾燥機 |
| 建物設備 | エレベーター |
| 特徴 | リフォーム |
リフォーム履歴
2025年11月完了
水回り設備交換:キッチン・浴室・トイレ
内装リフォーム:壁・床
※年月は一番古いリフォーム箇所を表します
続きを見る
水回り設備交換:キッチン・浴室・トイレ
内装リフォーム:壁・床
※年月は一番古いリフォーム箇所を表します
備考
<物件名>北斗シティB棟/<駐車場>空無/委託(日勤)/<土地権利>所有権/<間取り>2LDK/<リフォーム>●リフォーム:2025年11月完了(水回り設備交換:キッチン・浴室・トイレ、内装リフォーム:壁・床)※年月は一番古いリフォーム箇所を表します/<特徴>総戸数101戸のビックコミュニティ。南東向き6階で陽当・眺望良好な2LDK。、2沿線以上利用可・LDK18畳以上・スーパー 徒歩10分以内・内装リフォーム・システムキッチン
販売戸数:1戸/管理費等帯:9090円/修繕積立金帯:11360円
続きを見る
販売戸数:1戸/管理費等帯:9090円/修繕積立金帯:11360円
特記事項
管理人日勤
省エネ性能
| エネルギー消費性能 | - |
|---|---|
| 断熱性能 | - |
| 目安光熱費 | - |
- お問い合わせ先
- ジン不動産販売(株)
不動産会社情報
お問い合わせ先
| 商号 | ジン不動産販売(株) |
|---|---|
| 免許番号 | 北海道知事石狩(10)第003900号 |
| 所在地 | 北海道札幌市南区澄川四条1-1-40 |
| TEL | 0120-329033 |
| 取引態様 | 媒介 |
| 管理コード | 13741306 |
| 所属協会など | - |
この地域の暮らしデータ
札幌市の人口などの統計情報
| 世帯数 | 967372世帯 |
|---|---|
| 人口総数 | 1956928人 |
| 転入者数 |
121035人 転入率(人口1000人当たり) 61.85人 |
| 転出者数 |
109861人 転出率(人口1000人当たり) 56.14人 |
| 土地平均価格 |
住宅地 107466円/m2 商業地 594868円/m2 |
札幌市の結婚・育児の助成金
| 出産・子育て | |
|---|---|
| 子育て関連の独自の取り組み | (1)交通事故・労働災害およびその他不慮の災害により、父、または母等を失った(重度障がいとなった場合を含む)義務教育終了前の遺児を扶養する方に遺児1人につき月額4,000円を支給するとともに、手当の対象となる遺児が小・中学校および高等学校等に入学する際または中学校卒業後、就職する際に遺児1人につき2万円を支給。(2)認可保育所等における第2子以降の保育料について、世帯年収や兄弟姉妹の年齢差に関わらず無償化。 |
| 出産祝い |
なし
|
| 公立保育所数 |
20ヶ所 0歳児保育を実施 14ヶ所 |
| 私立保育所数 |
182ヶ所 0歳児保育を実施 182ヶ所 |
| 保育所入所待機児童数 | 0人 |
| 認定こども園数 | 238園 |
| 預かり保育実施園数-公立 | 9園 |
| 預かり保育実施園数-私立 | 49園 |
| 学校給食 | 【小学校】完全給食【中学校】完全給食 |
| 公立中学校の学校選択制 | 一部実施(小規模特認校) |
| 子ども・学生等医療費助成<通院>対象年齢 | 中学校卒業まで |
| 子ども・学生等医療費助成<入院>対象年齢 | 中学校卒業まで |
札幌市の治安・ごみ収集情報
| 公共料金・インフラ | |
|---|---|
| ガス料金(22m3使用した場合の月額) | 北海道瓦斯株式会社5118円 |
| 水道料金(口径20mmで20m3の月額) | 札幌市3652円 |
| 下水道料金(20m3を使用した場合の月額) | 札幌市1397円 |
| 下水道普及率 | 99.9% |
| 安心・安全 | |
| 建物火災出火件数 |
286件 人口10000人当たり 1.45件 |
| 刑法犯認知件数 |
11263件 人口1000人当たり 5.71件 |
| ハザード・防災マップ | あり |
| 医療 | |
| 一般病院総数 | 172ヶ所 |
| 一般診療所総数 | 1433ヶ所 |
| 小児科医師数 |
371人 小児人口10000人当たり 17.99人 |
| 産婦人科医師数 |
203人 15~49歳女性人口1万人当たり 5.12人 |
| 介護保険料基準額(月額) | 5773円 |
| ごみ | |
| 家庭ごみ収集(可燃ごみ) |
有料
|
| 家庭ごみの分別方式 | 9分別〔燃やせるごみ 燃やせないごみ スプレー缶・カセットボンベ 筒型乾電池 加熱式たばこ・電子たばこ・ライター 容器包装プラスチック びん・缶・ペットボトル 枝・葉・草 雑がみ〕 拠点回収:新聞 雑誌 ダンボール 紙パック 雑がみ びん・缶・ペットボトル 一升びん・ビールびん 容器包装プラスチック 古着 古布 毛布 小物金属類 小型家電 蛍光管 水銀体温計・水銀血圧計・水銀温度計 筒型乾電池 小型充電式電池 廃食油 生ごみ堆肥 枝・葉・草 使用済みインクカートリッジ スプレー缶・カセットボンベ ライター |
| 家庭ごみの戸別収集 | 一部実施(【さわやか収集】一定の要件に該当する要介護者や障がい者に対し、玄関先からのごみの収集や大型ごみの家屋内からの運び出しの支援を実施) |
| 粗大ごみ収集 |
あり
|
| 生ごみ処理機助成金制度 |
あり 上限金額 10000円 上限比率 50.0% |
札幌市の住まいの給付金
暮らしデータ提供元:生活ガイド.com
※行政機関により公表していない地域及びデータがございます。東京23区以外の政令指定都市は、市全体のデータとして表示しています。
※提供データには細心の注意を払っておりますが、調査後に変更がある場合があります。 最新の情報につきましては各市区役所までお問い合わせいただくか、自治体HPなどをご確認ください。
※提供データには細心の注意を払っておりますが、調査後に変更がある場合があります。 最新の情報につきましては各市区役所までお問い合わせいただくか、自治体HPなどをご確認ください。
住宅ローンシミュレーション
月々の返済額からの購入額の計算と、購入額からの返済額の計算ができます。
住宅ローンをお考えの方へ
最もおトクであなたにぴったりな
住宅ローンをみてみよう!
お気に入りの物件を見逃さない!
プッシュ通知で最新の物件情報が届く






