アムール CUORE 門真南駅 1K 賃貸(賃貸マンション・アパート)
1K / 門真南駅
- 情報提供元
- LIFULL HOME'S
賃料4.95万円 / 管理費等4500円
-
外観
-
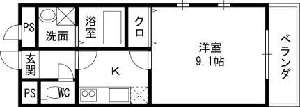
間取り
-
外観
-
外観
-
外観
-
外観
-
その他周辺施設
-
その他周辺施設
-
居間
-
居間
-
キッチン
-
風呂
-
トイレ
-
洗面
-
設備
-
この物件が気になりましたか? 最新の空室状況は
問合せをすることで確認できます
- お問い合わせ先
- アパマンショップ阪急高槻店 株式会社宝不動産
宅配ボックス設置済み!留守中のお荷物も安心してお受け取り頂け
-
交通大阪市長堀鶴見緑地 門真南駅 徒歩14分
京阪電気鉄道京阪線 古川橋駅 徒歩29分
| 敷引・償却 | - |
|---|---|
| 更新料 | - |
| 契約期間 | 2年 |
| カード決済 | - |
| 建物名 | アムール CUORE |
| 建物構造 | 木造 |
| 駐車場 | 有 9,900円 物件からの距離0m |
| 現況 | |
| 入居可能時期 | 2026年2月上旬 |
| 住宅保険 | 要 |
| 情報提供元 | LIFULL HOME'S[31029040203245] |
| 情報公開日 | |
| 情報更新日 | |
| 次回更新予定日 | 2025年12月7日 |
地図
設備など
- バス・トイレ別
- 2階以上
- ペット相談可
-
駐車場
(近隣含) -
室内洗濯機
置き場 - エアコン
- 洗面所独立
- 追焚機能
- オートロック
設備
| バス・トイレ | バス・トイレ別、シャワー、浴室乾燥機 |
|---|---|
| キッチン | システムキッチン |
| 収納 | クローゼット |
| セキュリティ | モニタ付インターホン |
| 室内設備 | エアコン、フローリング、照明器具、シャンプードレッサ、洗面所独立、室内洗濯機置き場 |
| 建物設備 | 給湯、バルコニー、プロパンガス |
| 駐車場・駐輪場 | 駐輪場 |
| テレビ・通信 | インターネット対応 |
備考
[退去時費用 退去費用実費精算※故意・過失等別途実費] 【設備・特記事項備考】ルームシェア不可/木下の消毒サービス/カギ交換代 53900円/木下の賃貸 友の会費 2530円/賃貸戸数:8戸
続きを見る
特記事項
保証人不要/代行 ・最上階
省エネ性能
| エネルギー消費性能 | - |
|---|---|
| 断熱性能 | - |
| 目安光熱費 | - |
- お問い合わせ先
- アパマンショップ阪急高槻店 株式会社宝不動産
※0037で始まる電話番号に携帯電話からお問合せいただいた方には、ショートメッセージ(SMS)によるお問合せ完了通知をお届けする場合があります。
不動産会社情報
お問い合わせ先
| 商号 | アパマンショップ阪急高槻店 株式会社宝不動産 |
|---|---|
| 免許番号 | 大阪府知事(10)第25952号 |
| 所在地 | 大阪府高槻市城北町2丁目3-3第五誠ビル |
| TEL | 072-675-7070 |
| 取引態様 | 仲介 |
| 管理コード | 203245 |
| 所属協会など | 所属団体未加入 |
この地域の暮らしデータ
門真市の人口などの統計情報
| 世帯数 | 57320世帯 |
|---|---|
| 人口総数 | 117139人 |
| 転入者数 |
5487人 転入率(人口1000人当たり) 46.84人 |
| 転出者数 |
5252人 転出率(人口1000人当たり) 44.84人 |
| 土地平均価格 |
住宅地 135000円/m2 商業地 189000円/m2 |
門真市の結婚・育児の助成金
| 出産・子育て | |
|---|---|
| 子育て関連の独自の取り組み | (1)市独自で3~5歳児の認定児のうち、国の免除対象者以外(年収360万円以上相当世帯の第1子・第2子)にかかる副食費を園に補助している。上限は月額4,700円で申請等保護者が行う手続きはない。(2)2021年度より病児・病後児保育室の利用において保護者の負担を減らすため、利用料金を2,000円から500円(差額は市が負担)とし、利用しやすい環境を構築する。(3)2023年度に引き続き、学校給食費の無償化を実施し、子育て世帯への負担軽減を図る。 |
| 出産祝い |
あり
|
| 公立保育所数 |
1ヶ所 0歳児保育を実施 1ヶ所 |
| 私立保育所数 |
4ヶ所 0歳児保育を実施 4ヶ所 |
| 保育所入所待機児童数 | 0人 |
| 認定こども園数 | 15園 |
| 預かり保育実施園数-公立 | 1園 |
| 預かり保育実施園数-私立 | 4園 |
| 学校給食 | 【小学校】完全給食【中学校】完全給食 |
| 公立中学校の学校選択制 | 未実施 |
| 子ども・学生等医療費助成<通院>対象年齢 | 18歳3月末まで |
| 子ども・学生等医療費助成<入院>対象年齢 | 18歳3月末まで |
門真市の治安・ごみ収集情報
| 公共料金・インフラ | |
|---|---|
| ガス料金(22m3使用した場合の月額) | 大阪瓦斯株式会社4544円 |
| 水道料金(口径20mmで20m3の月額) | 門真市2723円 |
| 下水道料金(20m3を使用した場合の月額) | 門真市2420円 |
| 下水道普及率 | 97.9% |
| 安心・安全 | |
| 建物火災出火件数 |
17件 人口10000人当たり 1.42件 |
| 刑法犯認知件数 |
1406件 人口1000人当たり 11.74件 |
| ハザード・防災マップ | あり |
| 医療 | |
| 一般病院総数 | 5ヶ所 |
| 一般診療所総数 | 115ヶ所 |
| 小児科医師数 |
18人 小児人口10000人当たり 16.83人 |
| 産婦人科医師数 |
12人 15~49歳女性人口1万人当たり 5.60人 |
| 介護保険料基準額(月額) | 8749円 |
| ごみ | |
| 家庭ごみ収集(可燃ごみ) |
無料
|
| 家庭ごみの分別方式 | 6分別12種〔普通ごみ プラスチック製容器 ビン・カン類(ビン・カン、スプレー缶・簡易ガスボンベ) ペットボトル 古紙・古布(新聞紙、ダンボール、雑誌・紙袋、チラシ、牛乳パック、古布) 小型ごみ〕 |
| 家庭ごみの戸別収集 | 一部実施(一部地域では自治会と協議を行い、戸別収集を実施している。また高齢者、障がい者を対象としたさわやか訪問収集・ふれあいサポート収集を実施) |
| 粗大ごみ収集 |
あり
|
| 生ごみ処理機助成金制度 |
なし 上限金額 - 上限比率 - |
暮らしデータ提供元:生活ガイド.com
※行政機関により公表していない地域及びデータがございます。東京23区以外の政令指定都市は、市全体のデータとして表示しています。
※提供データには細心の注意を払っておりますが、調査後に変更がある場合があります。 最新の情報につきましては各市区役所までお問い合わせいただくか、自治体HPなどをご確認ください。
※提供データには細心の注意を払っておりますが、調査後に変更がある場合があります。 最新の情報につきましては各市区役所までお問い合わせいただくか、自治体HPなどをご確認ください。
お気に入りの物件を見逃さない!
プッシュ通知で最新の物件情報が届く




