愛知県名古屋市中区葵1丁目 新栄町駅 1K 賃貸(賃貸マンション・アパート)
1K / 新栄町駅
- 情報提供元
- LIFULL HOME'S
賃料6.55万円 / 管理費等7530円
-
外観
-
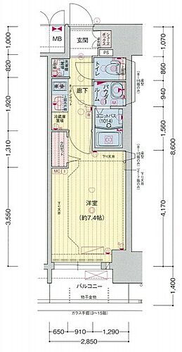
間取り
-
バロー 車道店(652m)
-
ファミリーマート 広小路葵店(190m)
-
V・drug 新栄店(393m)
-
名古屋新栄郵便局(159m)
-
中警察署 新栄交番(620m)
-
名古屋市医師会健診センター健診受付(372m)
-
Maxvalu(マックスバリュ) 代官店(1016m)
-
オアシス21(1156m)
-
玄関
-
内装
-
内装
-
キッチン
-
キッチン
-
内装
-
内装
-
バスルーム
-
トイレ
-
洗面所
-
クローゼット
-
浴室乾燥
-
バルコニー
-
モニター付きインターホン
-
シューズボックス
-
エアコン
-
給湯器
-
この物件が気になりましたか? 最新の空室状況は
問合せをすることで確認できます
- お問い合わせ先
- 株式会社EIGHT スタイルエステート池下支店
2口コンロ,3点給湯,BS,CATV,CATVインターネット,CS,TVインターホン,エアコン,ガス
-
交通名古屋市東山線 新栄町駅 徒歩1分
名古屋市東山線 千種駅 徒歩10分
| 敷引・償却 | - |
|---|---|
| 更新料 | 11000円 |
| 契約期間 | 1年 |
| カード決済 | 初期費用カード決済可 |
| 建物名 | |
| 建物構造 | RC |
| 駐車場 | 有 15,000円 |
| 現況 | |
| 入居可能時期 | 2026年1月下旬 |
| 住宅保険 | 要 |
| 情報提供元 | LIFULL HOME'S[1557550002555] |
| 情報公開日 | |
| 情報更新日 | |
| 次回更新予定日 | 2025年12月10日 |
地図
設備など
- バス・トイレ別
- 2階以上
- ペット相談可
-
駐車場
(近隣含) -
室内洗濯機
置き場 - エアコン
- 洗面所独立
- 追焚機能
- オートロック
設備
| バス・トイレ | バス・トイレ別、シャワー、浴室乾燥機、温水洗浄便座 |
|---|---|
| キッチン | ガスコンロ可、システムキッチン、コンロ2口以上 |
| 収納 | クローゼット、シューズボックス |
| セキュリティ | オートロック、モニタ付インターホン、防犯カメラ |
| 室内設備 | エアコン、フローリング、洗面所独立、室内洗濯機置き場 |
| 建物設備 | 給湯、バルコニー、エレベーター、都市ガス、宅配BOX |
| 駐車場・駐輪場 | 駐輪場、バイク置き場 |
| テレビ・通信 | CATV、BS端子、CS、インターネット無料、光ファイバー(ブロードバンド) |
| その他 | 本下水 |
備考
駐車場の空き状況は別途お問い合わせ下さい。 【設備・特記事項備考】専用バス・専用トイレ/プレサポ安心24 990円/賃貸戸数:280戸/保証会社の利用:加入要/保証会社費用:初回保証料月額総賃料の50%。月額保証料月額賃料の1.5%/月。/管理人勤務形態:巡回
続きを見る
特記事項
保証人不要/代行 ・デザイナーズ物件・初期費用カード決済可
省エネ性能
| エネルギー消費性能 | - |
|---|---|
| 断熱性能 | - |
| 目安光熱費 | - |
- お問い合わせ先
- 株式会社EIGHT スタイルエステート池下支店
※0037で始まる電話番号に携帯電話からお問合せいただいた方には、ショートメッセージ(SMS)によるお問合せ完了通知をお届けする場合があります。
不動産会社情報
お問い合わせ先
| 商号 | 株式会社EIGHT スタイルエステート池下支店 |
|---|---|
| 免許番号 | 愛知県知事(01)第026135号 |
| 所在地 | 愛知県名古屋市千種区池下1丁目4-18 井上ビル1A |
| TEL | 052-751-8800 |
| 取引態様 | 仲介 |
| 管理コード | 2555 |
| 所属協会など | 東海不動産公正取引協議会、(公社)愛知県宅地建物取引業協会 |
この地域の暮らしデータ
名古屋市の人口などの統計情報
| 世帯数 | 1119847世帯 |
|---|---|
| 人口総数 | 2297745人 |
| 転入者数 |
168667人 転入率(人口1000人当たり) 73.41人 |
| 転出者数 |
154544人 転出率(人口1000人当たり) 67.26人 |
| 土地平均価格 |
住宅地 223115円/m2 商業地 1106619円/m2 |
名古屋市の結婚・育児の助成金
| 出産・子育て | |
|---|---|
| 子育て関連の独自の取り組み | (1)なごや子育てアプリ「NAGOMii(なごみー)」による子育て支援情報の提供。(2)子育て家庭優待カード「ぴよか」の交付。(3)子どもを出産、育児する家庭に5万ポイント(5万円相当)分のカタログギフトを進呈する、ナゴヤわくわくプレゼント事業の実施。 |
| 出産祝い |
あり
|
| 公立保育所数 |
84ヶ所 0歳児保育を実施 84ヶ所 |
| 私立保育所数 |
367ヶ所 0歳児保育を実施 365ヶ所 |
| 保育所入所待機児童数 | 0人 |
| 認定こども園数 | 107園 |
| 預かり保育実施園数-公立 | 20園 |
| 預かり保育実施園数-私立 | - |
| 学校給食 | 【小学校】完全給食【中学校】家庭弁当等との選択制/デリバリー形式[運搬:食缶等、内容:完全給食(献立選択制)] |
| 公立中学校の学校選択制 | 未実施 |
| 子ども・学生等医療費助成<通院>対象年齢 | 18歳3月末まで |
| 子ども・学生等医療費助成<入院>対象年齢 | 18歳3月末まで |
名古屋市の治安・ごみ収集情報
| 公共料金・インフラ | |
|---|---|
| ガス料金(22m3使用した場合の月額) | 東邦瓦斯株式会社5307円 |
| 水道料金(口径20mmで20m3の月額) | 名古屋市2915円 |
| 下水道料金(20m3を使用した場合の月額) | 名古屋市1804円 |
| 下水道普及率 | 99.4% |
| 安心・安全 | |
| 建物火災出火件数 |
355件 人口10000人当たり 1.52件 |
| 刑法犯認知件数 |
19857件 人口1000人当たり 8.51件 |
| ハザード・防災マップ | あり |
| 医療 | |
| 一般病院総数 | 110ヶ所 |
| 一般診療所総数 | 2272ヶ所 |
| 小児科医師数 |
770人 小児人口10000人当たり 28.40人 |
| 産婦人科医師数 |
319人 15~49歳女性人口1万人当たり 6.72人 |
| 介護保険料基準額(月額) | 6951円 |
| ごみ | |
| 家庭ごみ収集(可燃ごみ) |
無料
|
| 家庭ごみの分別方式 | 5分別9種〔可燃ごみ 不燃ごみ 発火性危険物 電池類 資源(プラスチック資源、紙製容器包装・雑がみ、ペットボトル、空きびん、空き缶)〕 拠点回収:資源(ペットボトル 紙パック 食用油 小型家電 充電式家電 蛍光管・水銀体温計・水銀温度計) |
| 家庭ごみの戸別収集 | 実施(可燃ごみ、不燃ごみ、発火性危険物、電池類、プラスチック資源のみ。紙製容器包装・雑がみ、ペットボトル、空きびん、空き缶はステーション収集) |
| 粗大ごみ収集 |
あり
|
| 生ごみ処理機助成金制度 |
なし 上限金額 - 上限比率 - |
暮らしデータ提供元:生活ガイド.com
※行政機関により公表していない地域及びデータがございます。東京23区以外の政令指定都市は、市全体のデータとして表示しています。
※提供データには細心の注意を払っておりますが、調査後に変更がある場合があります。 最新の情報につきましては各市区役所までお問い合わせいただくか、自治体HPなどをご確認ください。
※提供データには細心の注意を払っておりますが、調査後に変更がある場合があります。 最新の情報につきましては各市区役所までお問い合わせいただくか、自治体HPなどをご確認ください。
お気に入りの物件を見逃さない!
プッシュ通知で最新の物件情報が届く




