レオパレス康徳ハイツ 摂津市駅 1DK 賃貸(賃貸マンション・アパート)
1DK / 摂津市駅
- 情報提供元
- LIFULL HOME'S
賃料7.7万円 / 管理費等7500円
-
外観
-
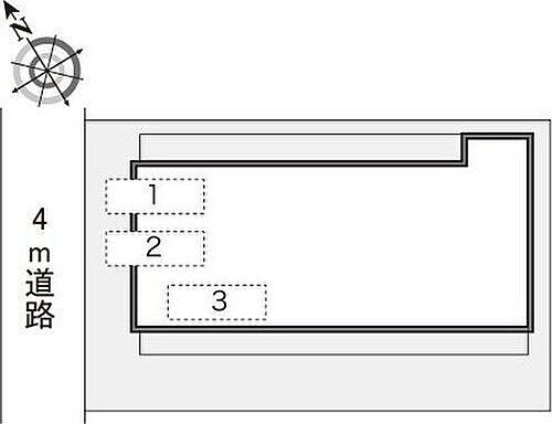
間取り
-
はなまるうどん摂津千里丘店 徒歩13分。 1030m
-
フォルテ摂津 徒歩14分。 1110m
-
岩倉公園 徒歩49分。 3860m
-
たかぎこどもクリニック 徒歩18分。 1390m
-
セブンイレブン 千里丘4丁目店 徒歩6分。 440m
-
コノミヤ摂津市駅前店 徒歩11分。 880m
-
私立立命館大学大阪いばらきキャンパス 徒歩46分。 3630m
-
吹田税務署 徒歩46分。 3680m
-
内装
-
玄関
-
玄関
-
玄関
-
玄関
-
玄関
-
玄関
-
玄関
-
玄関
-
玄関
-
玄関
-
居間
-
キッチン
-
風呂
-
トイレ
-
洗面
-
設備
-
エントランス
-
画像
-
画像
-
この物件が気になりましたか? 最新の空室状況は
問合せをすることで確認できます
- お問い合わせ先
- 株式会社エリッツ 阪急茨木市店
家具家電が備え付けの為、新生活の初期費用を節約できます。
-
交通阪急電鉄京都線 摂津市駅 徒歩11分
東海道本線 千里丘駅 徒歩13分
| 敷引・償却 | - |
|---|---|
| 更新料 | 16500円 |
| 契約期間 | 2年 |
| カード決済 | 初期費用カード決済可 |
| 建物名 | レオパレス康徳ハイツ |
| 建物構造 | RC |
| 駐車場 | 有 16,500円 物件からの距離0m |
| 現況 | 居住中 |
| 入居可能時期 | 2026年1月下旬 |
| 住宅保険 | 要 |
| 情報提供元 | LIFULL HOME'S[1453120073676] |
| 情報公開日 | |
| 情報更新日 | |
| 次回更新予定日 | 2025年12月3日 |
地図
設備など
- バス・トイレ別
- 2階以上
- ペット相談可
-
駐車場
(近隣含) -
室内洗濯機
置き場 - エアコン
- 洗面所独立
- 追焚機能
- オートロック
設備
| バス・トイレ | バス・トイレ別 |
|---|---|
| キッチン | システムキッチン |
| 室内設備 | エアコン、家具付き、室内洗濯機置き場 |
| 建物設備 | 給湯、バルコニー、都市ガス |
| 駐車場・駐輪場 | 駐輪場 |
| テレビ・通信 | CATV、インターネット対応 |
| その他 | 上水道 |
備考
家具家電が備え付けの為、新生活の初期費用を節約できます。 【設備・特記事項備考】専用トイレ/入居者サポートシステムプラス(任意) 18975円/環境維持費/月 550円/引落手数料/月 524円/賃貸戸数:8戸/保証会社の利用:加入要/保証会社名:その他/保証会社費用:利用料の100%~120%(契約時)/10、000円(2年目以降・年毎)/鍵交換費用:16500円/室内清掃費用:41800円
続きを見る
特記事項
角部屋・初期費用カード決済可
省エネ性能
| エネルギー消費性能 | - |
|---|---|
| 断熱性能 | - |
| 目安光熱費 | - |
- お問い合わせ先
- 株式会社エリッツ 阪急茨木市店
※0037で始まる電話番号に携帯電話からお問合せいただいた方には、ショートメッセージ(SMS)によるお問合せ完了通知をお届けする場合があります。
不動産会社情報
お問い合わせ先
| 商号 | 株式会社エリッツ 阪急茨木市店 |
|---|---|
| 免許番号 | 国土交通大臣免許(07)第005206号 |
| 所在地 | 大阪府茨木市永代町5番 ソシオ1 104号 |
| TEL | 0120-948-951 |
| 取引態様 | 仲介 |
| 管理コード | 73676 |
| 所属協会など | (公社)近畿地区不動産公正取引協議会、(一社)大阪府宅地建物取引業協会 |
この地域の暮らしデータ
摂津市の人口などの統計情報
| 世帯数 | 40206世帯 |
|---|---|
| 人口総数 | 86351人 |
| 転入者数 |
4806人 転入率(人口1000人当たり) 55.66人 |
| 転出者数 |
4638人 転出率(人口1000人当たり) 53.71人 |
| 土地平均価格 |
住宅地 161500円/m2 商業地 165000円/m2 |
摂津市の結婚・育児の助成金
| 出産・子育て | |
|---|---|
| 子育て関連の独自の取り組み | 新小学校1年生にランドセルの配付。 |
| 出産祝い |
なし
|
| 公立保育所数 |
0ヶ所 0歳児保育を実施 - |
| 私立保育所数 |
6ヶ所 0歳児保育を実施 6ヶ所 |
| 保育所入所待機児童数 | 23人 |
| 認定こども園数 | 18園 |
| 預かり保育実施園数-公立 | - |
| 預かり保育実施園数-私立 | 3園 |
| 学校給食 | 【小学校】完全給食【中学校】家庭弁当等との選択制/デリバリー形式[運搬:ランチボックス、内容:完全給食] |
| 公立中学校の学校選択制 | 未実施 |
| 子ども・学生等医療費助成<通院>対象年齢 | 18歳3月末まで |
| 子ども・学生等医療費助成<入院>対象年齢 | 18歳3月末まで |
摂津市の治安・ごみ収集情報
| 公共料金・インフラ | |
|---|---|
| ガス料金(22m3使用した場合の月額) | 大阪瓦斯株式会社4544円 |
| 水道料金(口径20mmで20m3の月額) | 摂津市2778円 |
| 下水道料金(20m3を使用した場合の月額) | 摂津市2299円 |
| 下水道普及率 | 99.3% |
| 安心・安全 | |
| 建物火災出火件数 |
13件 人口10000人当たり 1.49件 |
| 刑法犯認知件数 |
613件 人口1000人当たり 7.01件 |
| ハザード・防災マップ | あり |
| 医療 | |
| 一般病院総数 | 4ヶ所 |
| 一般診療所総数 | 58ヶ所 |
| 小児科医師数 |
13人 小児人口10000人当たり 12.18人 |
| 産婦人科医師数 |
2人 15~49歳女性人口1万人当たり 1.13人 |
| 介護保険料基準額(月額) | 6490円 |
| ごみ | |
| 家庭ごみ収集(可燃ごみ) |
無料
|
| 家庭ごみの分別方式 | 12分別〔普通ごみ 複雑ごみ 指定ごみ ペットボトル 食品トレイ ビン色つき ビン透明 カン 雑誌 古着・古布 新聞 ダンボール〕 拠点回収:使用済小型家電 |
| 家庭ごみの戸別収集 | 実施(一部狭隘地域についてはステーション収集を実施) |
| 粗大ごみ収集 |
なし
|
| 生ごみ処理機助成金制度 |
なし 上限金額 - 上限比率 - |
暮らしデータ提供元:生活ガイド.com
※行政機関により公表していない地域及びデータがございます。東京23区以外の政令指定都市は、市全体のデータとして表示しています。
※提供データには細心の注意を払っておりますが、調査後に変更がある場合があります。 最新の情報につきましては各市区役所までお問い合わせいただくか、自治体HPなどをご確認ください。
※提供データには細心の注意を払っておりますが、調査後に変更がある場合があります。 最新の情報につきましては各市区役所までお問い合わせいただくか、自治体HPなどをご確認ください。
お気に入りの物件を見逃さない!
プッシュ通知で最新の物件情報が届く




