新潟県新潟市中央区東万代町 新潟駅 2LDK 賃貸(賃貸マンション・アパート)
2LDK / 新潟駅
- 情報提供元
- LIFULL HOME'S
賃料13.4万円 / 管理費等16000円
-
外観・土地
-
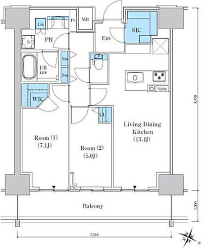
間取図
-
ラブラ2 836m
-
ラブラ万代 934m
-
伊勢丹 1091m
-
新潟中央郵便局 321m
-
新潟市立中央図書館 550m
-
リビング
-
キッチン
-
バス
-
洗面所
-
収納
-
セキュリティ
-
共用設備
-
バルコニー
-
エントランス
-
エントランス
-
ロビー
-
部屋画像_その他
-
洋室
-
景色
-
配置図
-
敷地内/建物
-
この物件が気になりましたか? 最新の空室状況は
問合せをすることで確認できます
- お問い合わせ先
- 株式会社リビングギャラリー 新潟中央センター店
【新潟駅まで徒歩10分】共用設備充実の賃貸レジデンス★
-
交通上越新幹線 新潟駅 徒歩10分
越後線 上所駅 徒歩30分
| 敷引・償却 | - |
|---|---|
| 更新料 | 新賃料の1ヶ月分 |
| 契約期間 | 2年 |
| カード決済 | 初期費用カード決済可 |
| 建物名 | |
| 建物構造 | RC |
| 駐車場 | 有 14,300円 |
| 現況 | 空 |
| 入居可能時期 | 即時 |
| 住宅保険 | 要 |
| 情報提供元 | LIFULL HOME'S[1106760066478] |
| 情報公開日 | |
| 情報更新日 | |
| 次回更新予定日 | 2025年12月2日 |
地図
設備など
- バス・トイレ別
- 2階以上
- ペット相談可
-
駐車場
(近隣含) -
室内洗濯機
置き場 - エアコン
- 洗面所独立
- 追焚機能
- オートロック
設備
| バス・トイレ | バス・トイレ別、シャワー、追焚機能、浴室乾燥機、温水洗浄便座 |
|---|---|
| キッチン | ガスコンロ可、システムキッチン、カウンターキッチン、コンロ2口以上 |
| 収納 | ウォークインクローゼット、クローゼット、シューズボックス、シューズインクローク |
| セキュリティ | オートロック、防犯カメラ |
| 室内設備 | エアコン、フローリング、照明器具、シャンプードレッサ、床暖房、家具付き、洗面所独立、室内洗濯機置き場 |
| 建物設備 | 給湯、バルコニー、エレベーター、都市ガス、宅配BOX |
| 駐車場・駐輪場 | 駐輪場 |
| テレビ・通信 | BS端子、インターネット無料 |
| その他 | 上水道、本下水 |
備考
ネット無料★セキュリティシステム付きなので防犯面も安心です!コンシェルジュ付き!大浴場・ゲストルームあり!充実設備! ※保証会社の月額総賃料等とは、賃料及び共益費(管理費)・駐車場料金・町会費・水道光熱費・物置使用料・冷暖房器具リース料※その他、保証会社が代位弁済した際、月額保証料が変動する場合もございます。物件により対象項目が異なるため、店舗までお問い合わせください。 【設備・特記事項備考】事務所不可・ペット不可・専用バス・専用トイレ・フロントサービス・セキュリティ会社加入済み ・全居室収納 【駐車場備考】屋根有14、300円/月(税込)、屋根無9、900円/月(税込)空き状況要確認 駐1台 屋内 自走式 /DーroomCardキー料金 9900円/投てき消火剤/1本【任意】 7150円/賃貸戸数:326戸/保証会社の利用:加入要/保証会社名:D-サポート?/保証会社費用:初回保証料:月額総賃料×60% (保証更新料10、000円/年)
続きを見る
特記事項
見学予約可・二人入居可・保証人不要/代行 ・24時間ゴミ出し可・初期費用カード決済可
省エネ性能
| エネルギー消費性能 | - |
|---|---|
| 断熱性能 | - |
| 目安光熱費 | - |
- お問い合わせ先
- 株式会社リビングギャラリー 新潟中央センター店
※0037で始まる電話番号に携帯電話からお問合せいただいた方には、ショートメッセージ(SMS)によるお問合せ完了通知をお届けする場合があります。
不動産会社情報
お問い合わせ先
商号:株式会社リビングギャラリー 新潟中央センター店
免許番号:国土交通大臣(6)第5854号
所在地:新潟県新潟市中央区米山2丁目6−3
TEL:025-241-3222
取引態様:仲介
管理コード:66478
所属協会など:(公社)首都圏不動産公正取引協議会、(公社)新潟県宅地建物取引業協会 会社情報 この会社の他の物件情報を見る
免許番号:国土交通大臣(6)第5854号
所在地:新潟県新潟市中央区米山2丁目6−3
TEL:025-241-3222
取引態様:仲介
管理コード:66478
所属協会など:(公社)首都圏不動産公正取引協議会、(公社)新潟県宅地建物取引業協会 会社情報 この会社の他の物件情報を見る
この地域の暮らしデータ
新潟市の人口などの統計情報
| 世帯数 | 330697世帯 |
|---|---|
| 人口総数 | 767565人 |
| 転入者数 |
28151人 転入率(人口1000人当たり) 36.68人 |
| 転出者数 |
28261人 転出率(人口1000人当たり) 36.82人 |
| 土地平均価格 |
住宅地 51505円/m2 商業地 152371円/m2 |
新潟市の結婚・育児の助成金
| 出産・子育て | |
|---|---|
| 子育て関連の独自の取り組み | (1)企業と行政の連携による「にいがたっ子すこやかパスポート」事業。(2)男性の育児休業取得促進事業。(3)子育て応援アプリ及び新潟市公式LINEアカウントによる情報発信。(4)保育園等に文庫を開設し絵本を貸出。(5)子育て相談を受けコーディネートする機能を持った相談窓口の運営支援。(6)食と花、動物とのふれあい、創作活動等を一体的に学べる「いくとぴあ食花」の設置運営。(7)新潟市子ども条例(2022年4月施行)に基づく、子どもの権利の周知・啓発、子どもの意見表明・社会参加の促進、子どもの権利侵害に係る相談・救済活動等の取組。 |
| 出産祝い |
なし
|
| 公立保育所数 |
80ヶ所 0歳児保育を実施 80ヶ所 |
| 私立保育所数 |
47ヶ所 0歳児保育を実施 47ヶ所 |
| 保育所入所待機児童数 | 0人 |
| 認定こども園数 | 131園 |
| 預かり保育実施園数-公立 | 2園 |
| 預かり保育実施園数-私立 | 4園 |
| 学校給食 | 【小学校】完全給食【中学校】完全給食 家庭弁当等との選択制/デリバリー形式[運搬:ランチボックス及び食缶、内容:完全給食] |
| 公立中学校の学校選択制 | 未実施 |
| 子ども・学生等医療費助成<通院>対象年齢 | 18歳3月末まで |
| 子ども・学生等医療費助成<入院>対象年齢 | 18歳3月末まで |
新潟市の治安・ごみ収集情報
| 公共料金・インフラ | |
|---|---|
| ガス料金(22m3使用した場合の月額) | 北陸瓦斯株式会社(新潟地区)3473円 新発田ガス株式会社(新発田地区)3505円 越後天然ガス株式会社3241円 蒲原瓦斯株式会社3186円 白根瓦斯株式会社(新潟南地区)3215円 白根瓦斯株式会社(燕地区)2916円 |
| 水道料金(口径20mmで20m3の月額) | 新潟市4400円 |
| 下水道料金(20m3を使用した場合の月額) | 新潟市3047円 |
| 下水道普及率 | 87.3% |
| 安心・安全 | |
| 建物火災出火件数 |
103件 人口10000人当たり 1.30件 |
| 刑法犯認知件数 |
3979件 人口1000人当たり 5.04件 |
| ハザード・防災マップ | あり |
| 医療 | |
| 一般病院総数 | 35ヶ所 |
| 一般診療所総数 | 651ヶ所 |
| 小児科医師数 |
155人 小児人口10000人当たり 17.83人 |
| 産婦人科医師数 |
65人 15~49歳女性人口1万人当たり 4.54人 |
| 介護保険料基準額(月額) | 6880円 |
| ごみ | |
| 家庭ごみ収集(可燃ごみ) |
有料
|
| 家庭ごみの分別方式 | 3分別12種〔燃やすごみ 燃やさないごみ 資源物(プラマーク容器包装、ペットボトル、古紙類[新聞、雑誌・雑紙、ダンボール、紙パック]、飲食用・化粧品びん、飲食用缶、枝葉・草、特定5品目)〕 |
| 家庭ごみの戸別収集 | 未実施(高齢者や障がい者などごみ出しが困難な世帯に対して、有償ボランティア等によるごみ出し支援を行う団体に対し支援金を交付) |
| 粗大ごみ収集 |
あり
|
| 生ごみ処理機助成金制度 |
あり 上限金額 20000円 上限比率 50.0% |
暮らしデータ提供元:生活ガイド.com
※行政機関により公表していない地域及びデータがございます。東京23区以外の政令指定都市は、市全体のデータとして表示しています。
※提供データには細心の注意を払っておりますが、調査後に変更がある場合があります。 最新の情報につきましては各市区役所までお問い合わせいただくか、自治体HPなどをご確認ください。
※提供データには細心の注意を払っておりますが、調査後に変更がある場合があります。 最新の情報につきましては各市区役所までお問い合わせいただくか、自治体HPなどをご確認ください。
お気に入りの物件を見逃さない!
プッシュ通知で最新の物件情報が届く




