二条城南東のマチナカ京町家 二条城前駅 2LDK 賃貸(賃貸マンション・アパート)
2LDK / 二条城前駅
- 情報提供元
- SUUMO
賃料15.5万円 / 管理費等なし
-
外観
-
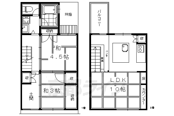
間取り
-
外観
-
フレスコプチ新町御池店(スーパー)まで402m
-
ローソン三条堀川店(コンビニ)まで130m
-
京都逓信病院(病院)まで426m
-
京都西洞院三条郵便局(郵便局)まで250m
-
京都中央信用金庫西御池支店(銀行)まで218m
-
中京警察署(警察署・交番)まで733m
-
画像
-
画像
-
画像
-
画像
-
画像
-
この物件が気になりましたか? 最新の空室状況は
問合せをすることで確認できます
- お問い合わせ先
- (株)京都ライフ伏見桃山店
二条城近く、京町家。 フルリノベーション京町家。 物件情報からエリア情報まで京都の賃貸物件紹介はお任せください!
-
交通地下鉄東西線 二条城前駅 徒歩5分
地下鉄烏丸線 烏丸御池駅 徒歩10分
地下鉄烏丸線 四条駅 徒歩15分
| 敷引・償却 | - |
|---|---|
| 更新料 | - |
| 契約期間 | 定期借家 3年 |
| カード決済 | - |
| 建物名 | 二条城南東のマチナカ京町家 |
| 建物構造 | 木造 |
| 駐車場 | 無 |
| 現況 | |
| 入居可能時期 | 即時 |
| 住宅保険 | あり |
| 情報提供元 | SUUMO[060H100476187261] |
| 情報公開日 | |
| 情報更新日 | |
| 次回更新予定日 | 随時 |
地図
設備など
- バス・トイレ別
- 2階以上
- ペット相談可
-
駐車場
(近隣含) -
室内洗濯機
置き場 - エアコン
- 洗面所独立
- 追焚機能
- オートロック
設備
| バス・トイレ | バス・トイレ別、トイレ、温水洗浄便座、浴トイレ別 |
|---|---|
| キッチン | カウンターキッチン、対面K、IHクッキングヒータ、コンロ2口以上 |
| 収納 | 収納スペース |
| 室内設備 | 冷房、暖房、エアコン、洗濯機置場、洗面所、洗面所独立、室内洗濯機置き場 |
| 建物設備 | バルコニー、都市ガス、専用庭 |
| 駐車場・駐輪場 | 駐輪場 |
備考
損保要/定期借家3年00ヶ月/更新料:無/バストイレ別/バルコニー/エアコン/室内洗濯置/温水洗浄便座/脱衣所/洗面所独立/2口コンロ/駐輪場/押入/即入居可/対面式キッチン/IHクッキングヒーター/電気コンロ/敷金1ヶ月/二人入居相談/専用庭/3駅以上利用可/駅徒歩5分以内/和室/都市ガス/礼金1ヶ月/IT重説 対応物件/ローソン三条堀川店(コンビニ)まで130m/京都中央信用金庫西御池支店(銀行)まで218m/京都西洞院三条郵便局(郵便局)まで250m/フレスコプチ新町御池店(スーパー)まで402m/京都逓信病院(病院)まで426m/中京警察署(警察署・交番)まで733m/阪急京都線烏丸駅徒歩15分/賃貸戸数:1戸
続きを見る
特記事項
省エネ性能
| エネルギー消費性能 | - |
|---|---|
| 断熱性能 | - |
| 目安光熱費 | - |
- お問い合わせ先
- (株)京都ライフ伏見桃山店
不動産会社情報
お問い合わせ先
| 商号 | (株)京都ライフ伏見桃山店 |
|---|---|
| 免許番号 | 京都府知事(11)第6353号 |
| 所在地 | 京都府京都市伏見区観音寺町 215-1 CONNECT桃山2階 |
| TEL | 075-644-5463 |
| 取引態様 | 仲介 |
| 管理コード | K69387-A |
| 所属協会など | (公社)近畿地区不動産公正取引協議会加盟、(公社)京都府宅地建物取引業協会会員 |
この地域の暮らしデータ
京都市の人口などの統計情報
| 世帯数 | 728744世帯 |
|---|---|
| 人口総数 | 1379529人 |
| 転入者数 |
85315人 転入率(人口1000人当たり) 61.84人 |
| 転出者数 |
80567人 転出率(人口1000人当たり) 58.40人 |
| 土地平均価格 |
住宅地 220880円/m2 商業地 1290411円/m2 |
京都市の結婚・育児の助成金
| 出産・子育て | |
|---|---|
| 子育て関連の独自の取り組み | (1)乳幼児の子育て支援機能や学童クラブ機能等を有する児童館設置。(2)こんにちはプレママ事業。(3)児童虐待未然防止に係る医療機関と子どもはぐくみ室及び京北出張所の連携。(4)子ども保健医療相談・事故防止センター設置。(5)京都はぐくみアプリ配信。(6)子育て支援コンシェルジュ育成。(7)骨髄移植手術等により免疫を喪失した子どもへのワクチン再接種費用助成制度。(8)子どもを共に育む京都市民憲章の制定、憲章の実践・普及の促進。(9)【京都安心すまい応援金】未就学の子どもがいる世帯を対象に、自己居住用として既存住宅を購入し、リフォームを行う場合に、最大200万円の応援金を交付。 |
| 出産祝い |
あり
|
| 公立保育所数 |
14ヶ所 0歳児保育を実施 13ヶ所 |
| 私立保育所数 |
196ヶ所 0歳児保育を実施 188ヶ所 |
| 保育所入所待機児童数 | 0人 |
| 認定こども園数 | 83園 |
| 預かり保育実施園数-公立 | 15園 |
| 預かり保育実施園数-私立 | 81園 |
| 学校給食 | 【小学校】完全給食【中学校】完全給食 家庭弁当等との選択制/デリバリー形式[運搬:ランチボックス、内容:完全給食] 給食なし |
| 公立中学校の学校選択制 | 未実施 |
| 子ども・学生等医療費助成<通院>対象年齢 | 中学校卒業まで |
| 子ども・学生等医療費助成<入院>対象年齢 | 中学校卒業まで |
京都市の治安・ごみ収集情報
| 公共料金・インフラ | |
|---|---|
| ガス料金(22m3使用した場合の月額) | 大阪瓦斯株式会社4544円 |
| 水道料金(口径20mmで20m3の月額) | 京都市3014円 |
| 下水道料金(20m3を使用した場合の月額) | 京都市2013円 |
| 下水道普及率 | 99.5% |
| 安心・安全 | |
| 建物火災出火件数 |
158件 人口10000人当たり 1.08件 |
| 刑法犯認知件数 |
8104件 人口1000人当たり 5.54件 |
| ハザード・防災マップ | あり |
| 医療 | |
| 一般病院総数 | 89ヶ所 |
| 一般診療所総数 | 1622ヶ所 |
| 小児科医師数 |
397人 小児人口10000人当たり 27.26人 |
| 産婦人科医師数 |
201人 15~49歳女性人口1万人当たり 7.16人 |
| 介護保険料基準額(月額) | 7160円 |
| ごみ | |
| 家庭ごみ収集(可燃ごみ) |
有料
|
| 家庭ごみの分別方式 | 5分別8種〔燃やすごみ 缶・びん・ペットボトル プラスチック類 小型金属類・スプレー缶 雑がみ〕 拠点回収:移動式拠点回収):古紙(新聞・ダンボール) 雑がみ 紙パック 使用済てんぷら油 古着類 乾電池 ボタン電池 充電式電池 蛍光管 水銀体温計・水銀血圧計 小型家電 磁気テープ類 インクカートリッジ リユースびん 刃物類 使い捨てライター 陶磁器製の食器 せん定枝木の枝 石油類 医薬品・農薬 化学薬品・塗料・ワックス・絵の具 洗浄剤 |
| 家庭ごみの戸別収集 | 一部実施(原則定点としているが、一部地域で狭路等やむを得ない事情がある場合のみ実施。また、ごみ出しが困難な高齢者や障害のある方などの生活支援の一つとして、御自宅の玄関先までごみの収集に伺う「ごみ収集福祉サービス[まごころ収集]」を実施) |
| 粗大ごみ収集 |
あり
|
| 生ごみ処理機助成金制度 |
なし 上限金額 - 上限比率 - |
暮らしデータ提供元:生活ガイド.com
※行政機関により公表していない地域及びデータがございます。東京23区以外の政令指定都市は、市全体のデータとして表示しています。
※提供データには細心の注意を払っておりますが、調査後に変更がある場合があります。 最新の情報につきましては各市区役所までお問い合わせいただくか、自治体HPなどをご確認ください。
※提供データには細心の注意を払っておりますが、調査後に変更がある場合があります。 最新の情報につきましては各市区役所までお問い合わせいただくか、自治体HPなどをご確認ください。
お気に入りの物件を見逃さない!
プッシュ通知で最新の物件情報が届く



