コンフォリア・リヴ北浜高麗橋 北浜駅 1LDK 賃貸(賃貸マンション・アパート)
1LDK / 北浜駅
- 情報提供元
- SUUMO
賃料12.8万円 / 管理費等12000円
-
大阪市立西天満小学校(小学校)まで1057m
-
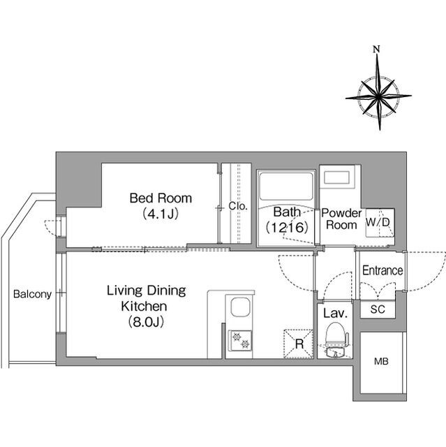
間取り
-
大阪市立堀川小学校(小学校)まで1277m
-
大阪市立開平小学校(小学校)まで105m
-
滝川公園.(公園)まで1034m
-
東横堀緑道(公園)まで212m
-
ドトールコーヒーショップ 高麗橋店(飲食店)まで342m
-
この物件が気になりましたか? 最新の空室状況は
問合せをすることで確認できます
- お問い合わせ先
- ミニミニFC肥後橋店大阪ハウスコム(株)
成約者特典BOOKOFF買取価格10%UP(景品限度額内) 室内設備は洗面所独立・浴室乾燥機などが揃っているので、快適に過ごしやすいお部屋になります。セキュリティ面は、オートロック・TVインターホンなど充実しているので、防犯対策もばっちりです。
-
交通地下鉄堺筋線 北浜駅 徒歩3分
地下鉄御堂筋線 淀屋橋駅 徒歩10分
地下鉄谷町線 天満橋駅 徒歩12分
| 敷引・償却 | - |
|---|---|
| 更新料 | - |
| 契約期間 | |
| カード決済 | - |
| 建物名 | コンフォリア・リヴ北浜高麗橋 |
| 建物構造 | RC |
| 駐車場 | 無 |
| 現況 | |
| 入居可能時期 | 2026年1月下旬 |
| 住宅保険 | あり 2年 16550円 |
| 情報提供元 | SUUMO[060H100471790390] |
| 情報公開日 | |
| 情報更新日 | |
| 次回更新予定日 | 随時 |
地図
設備など
- バス・トイレ別
- 2階以上
- ペット相談可
-
駐車場
(近隣含) -
室内洗濯機
置き場 - エアコン
- 洗面所独立
- 追焚機能
- オートロック
設備
| バス・トイレ | バス・トイレ別、トイレ、浴室乾燥機、温水洗浄便座、浴トイレ別 |
|---|---|
| キッチン | システムキッチン、カウンターキッチン、対面K |
| セキュリティ | オートロック、モニタ付インターホン、防犯カメラ |
| 室内設備 | 冷房、暖房、エアコン、洗面所、衣類乾燥機、洗面所独立 |
| 建物設備 | バルコニー、エレベーター、宅配BOX |
| 駐車場・駐輪場 | 駐輪場、バイク置き場 |
| テレビ・通信 | インターネット無料、インターネット対応 |
備考
駐輪場ステッカー0.044万円 エアコン清掃費: 退去時固定1.65万円 鍵交換代2.2万円/更新料 30000円 室内清掃費用 38500円 バイク置場1650円/月 駐輪場165円/月/保証会社利用必:保証料:賃料等の50%(最低2万)、月額保証料:賃料等の1%(更新料無)/飼育可:※2・3階限定※敷金1ヶ月及び共益費3 000円積増/バストイレ別/バルコニー/エアコン/TVインターホン/浴室乾燥機/オートロック/システムキッチン/温水洗浄便座/エレベーター/洗面所独立/駐輪場/宅配ボックス/対面式キッチン/防犯カメラ/バイク置場/ネット使用料不要/IT重説 対応物件/大阪市立西天満小学校(小学校)まで1057m/大阪市立堀川小学校(小学校)まで1277m/ドトールコーヒーショップ 高麗橋店(飲食店)まで342m/大阪市立開平小学校(小学校)まで105m/滝川公園.(公園)まで1034m/東横堀緑道(公園)まで212m/賃貸戸数:44戸
続きを見る
特記事項
省エネ性能
| エネルギー消費性能 | - |
|---|---|
| 断熱性能 | - |
| 目安光熱費 | - |
- お問い合わせ先
- ミニミニFC肥後橋店大阪ハウスコム(株)
不動産会社情報
お問い合わせ先
| 商号 | ミニミニFC肥後橋店大阪ハウスコム(株) |
|---|---|
| 免許番号 | 国土交通大臣(3)第8685号 |
| 所在地 | 大阪府大阪市西区江戸堀1-13-17 |
| TEL | 0800-1237261 |
| 取引態様 | 仲介 |
| 管理コード | HC2-5230475-703-0252 |
| 所属協会など | (公社)首都圏不動産公正取引協議会加盟、(公財)日本賃貸住宅管理協会会員 |
この地域の暮らしデータ
大阪市の人口などの統計情報
| 世帯数 | 1464615世帯 |
|---|---|
| 人口総数 | 2757642人 |
| 転入者数 |
225000人 転入率(人口1000人当たり) 81.59人 |
| 転出者数 |
188180人 転出率(人口1000人当たり) 68.24人 |
| 土地平均価格 |
住宅地 270839円/m2 商業地 1966607円/m2 |
大阪市の結婚・育児の助成金
| 出産・子育て | |
|---|---|
| 子育て関連の独自の取り組み | (1)子ども・子育てプラザ(在宅での子育て家庭や地域での子育て活動を支援し、また乳幼児期の親子や子育て支援者、就学期の子どもが集い交流する機会を提供する等、地域福祉活動の推進を図る)。(2)習い事・塾代助成事業(学習塾や家庭教師、文化・スポーツ教室等学校外教育にかかる費用を、1人当たり月額1万円まで助成。所得制限あり)。 |
| 出産祝い |
なし
|
| 公立保育所数 |
53ヶ所 0歳児保育を実施 52ヶ所 |
| 私立保育所数 |
395ヶ所 0歳児保育を実施 385ヶ所 |
| 保育所入所待機児童数 | 2人 |
| 認定こども園数 | 117園 |
| 預かり保育実施園数-公立 | 52園 |
| 預かり保育実施園数-私立 | - |
| 学校給食 | 【小学校】完全給食【中学校】完全給食 |
| 公立中学校の学校選択制 | 実施 |
| 子ども・学生等医療費助成<通院>対象年齢 | 18歳3月末まで |
| 子ども・学生等医療費助成<入院>対象年齢 | 18歳3月末まで |
大阪市の治安・ごみ収集情報
| 公共料金・インフラ | |
|---|---|
| ガス料金(22m3使用した場合の月額) | 大阪瓦斯株式会社4544円 |
| 水道料金(口径20mmで20m3の月額) | 大阪市2112円 |
| 下水道料金(20m3を使用した場合の月額) | 大阪市1276円 |
| 下水道普及率 | 100.0% |
| 安心・安全 | |
| 建物火災出火件数 |
553件 人口10000人当たり 2.01件 |
| 刑法犯認知件数 |
39408件 人口1000人当たり 14.32件 |
| ハザード・防災マップ | あり |
| 医療 | |
| 一般病院総数 | 170ヶ所 |
| 一般診療所総数 | 3734ヶ所 |
| 小児科医師数 |
659人 小児人口10000人当たり 22.80人 |
| 産婦人科医師数 |
380人 15~49歳女性人口1万人当たり 6.15人 |
| 介護保険料基準額(月額) | 9249円 |
| ごみ | |
| 家庭ごみ収集(可燃ごみ) |
無料
|
| 家庭ごみの分別方式 | 4分別11種〔普通ごみ(普通ごみ、危険ごみ[竹串、ガラス片、カミソリの刃]) 資源ごみ(空き缶・空きびん・金属製の生活用品・ペットボトル、スプレー缶・カセットボンベ) 容器包装プラスチック 古紙・衣類(新聞紙・折込チラシ、段ボール、紙パック、雑誌、衣類、その他の紙類)〕 |
| 家庭ごみの戸別収集 | 一部実施(【ふれあい収集】65歳以上の一人暮らしの高齢者または高齢者だけの世帯、障がいがある方が居住される家庭で、ごみ出しが困難な人が対象) |
| 粗大ごみ収集 |
あり
|
| 生ごみ処理機助成金制度 |
なし 上限金額 - 上限比率 - |
暮らしデータ提供元:生活ガイド.com
※行政機関により公表していない地域及びデータがございます。東京23区以外の政令指定都市は、市全体のデータとして表示しています。
※提供データには細心の注意を払っておりますが、調査後に変更がある場合があります。 最新の情報につきましては各市区役所までお問い合わせいただくか、自治体HPなどをご確認ください。
※提供データには細心の注意を払っておりますが、調査後に変更がある場合があります。 最新の情報につきましては各市区役所までお問い合わせいただくか、自治体HPなどをご確認ください。
お気に入りの物件を見逃さない!
プッシュ通知で最新の物件情報が届く




