京都府京都市上京区浮田町 丸太町駅 1K 賃貸(賃貸マンション・アパート)
1K / 丸太町駅
- 情報提供元
- SUUMO
賃料7.48万円 / 管理費等7200円
-
2024年完成、大手ハウスメーカー施工のデザイナーズアパート
-
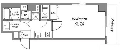
間取り
-
8.7帖◎白基調の明るいお部屋♪レイアウトしやすい間取り◎
-
IH対応♪2口コンロ付きシステムキッチン◎
-
浴室乾燥機付き。カラーパネル採用でお洒落なバスルームです。
-
ウォシュレット対応のWCです
-
幅広クローゼット。上部には便利な棚がございます!
-
独立洗面台。シャワーヘッドタイプで洗髪や手入れに◎です
-
南向きバルコニーで日当たり抜群♪是非ご見学下さいませ!
-
録画機能付きTVモニターホンで外出時の訪問者も確認できます!
-
快適に過ごして頂ける省エネエアコン完備♪
-
姿見付シューズボックス付きの玄関♪
-
フレスコ堀川店(スーパー)まで250m
-
セブンイレブン二条城北店(コンビニ)まで308m
-
ファミリーマート丸太町猪熊店(コンビニ)まで344m
-
ウエルシア京都智恵光院店(ドラッグストア)まで227m
-
京都大宮丸太町郵便局(郵便局)まで299m
-
京都信用金庫丸太町支店(銀行)まで521m
-
オートロック対応・エレベーター・宅配ボックス付きです♪
-
敷地内駐輪スペース◎バイクは原付のみOKです♪
-
この物件が気になりましたか? 最新の空室状況は
問合せをすることで確認できます
- お問い合わせ先
- アリア(株)京都店
【築浅】分譲仕様のハイクラス|年内入居可能◎ 【現地・最寄駅・ご指定先のお待合せにて内覧可能◎】当店のポイント(1)定休日無し時間外対応可(2)公式LINEでやり取り可(3)初期費用分割あと払いサービス(4)Google口コミ★5.0高評価(5)気になる物件の持込可
-
交通地下鉄烏丸線 丸太町駅 徒歩15分
地下鉄東西線 二条城前駅 徒歩15分
地下鉄東西線 二条駅 徒歩20分
| 敷引・償却 | - |
|---|---|
| 更新料 | - |
| 契約期間 | |
| カード決済 | 初期費用カード決済可 |
| 建物名 | |
| 建物構造 | RC |
| 駐車場 | 近有 19,000円 |
| 現況 | |
| 入居可能時期 | 2025年12月下旬 |
| 住宅保険 | あり 2年 22000円 |
| 情報提供元 | SUUMO[060H100466039860] |
| 情報公開日 | |
| 情報更新日 | |
| 次回更新予定日 | 随時 |
地図
設備など
- バス・トイレ別
- 2階以上
- ペット相談可
-
駐車場
(近隣含) -
室内洗濯機
置き場 - エアコン
- 洗面所独立
- 追焚機能
- オートロック
設備
| バス・トイレ | バス・トイレ別、トイレ、浴室乾燥機、温水洗浄便座、浴トイレ別 |
|---|---|
| キッチン | システムキッチン、IHクッキングヒータ、コンロ2口以上 |
| 収納 | 収納スペース、クローゼット、シューズボックス |
| セキュリティ | オートロック、モニタ付インターホン、ディンプルキー、防犯カメラ |
| 室内設備 | 冷房、暖房、エアコン、洗濯機置場、洗面所、フローリング、照明器具、シャンプードレッサ、衣類乾燥機、洗面所独立、室内洗濯機置き場 |
| 建物設備 | バルコニー、エレベーター、都市ガス、宅配BOX、複層ガラス |
| 駐車場・駐輪場 | 駐輪場、バイク置き場 |
| テレビ・通信 | CATV、BS端子、CS、インターネット無料、インターネット対応 |
備考
安心サポート1320円(月額) 小型犬・猫どちらか1匹迄可※飼育時敷金として賃料の1ヶ月要/保証会社利用必:初回保証料:総賃料30%/単身者可/ペット相談/当社掲載物件情報をご閲覧を頂き、誠にありがとうございます。当店は、京都・滋賀の新築や築浅物件のご紹介に特化したお部屋探し専門店です。当社LINE公式アカウントより「ご相談、ご見学予約、お見積り、WEB申込」を24時間受付中、迅速なご対応を行なっています。【 取り扱い店舗 青文字のアリア(株)京都店 をタップ→青文字の LINEでお問合せ♪無料 】にて受付可能です!お問合せお待ちしております!/バストイレ別/バルコニー/エアコン/クロゼット/フローリング/シャワー付洗面台/TVインターホン/浴室乾燥機/オートロック/室内洗濯置/シューズボックス/システムキッチン/角住戸/温水洗浄便座/脱衣所/エレベーター/洗面所独立/洗面化粧台/2口コンロ/駐輪場/宅配ボックス/CATV/最上階/BS・CS/防犯カメラ/ペット相談/IHクッキングヒーター/照明付/保証人不要/単身者相談/バイク置場/全居室フローリング/デザイナーズ/ディンプルキー/ネット専用回線/駅まで平坦/ネット使用料不要/ダブルロックキー/築2年以内/24時間換気システム/複層ガラス/平坦地/学生相談/人感照明センサー/3方角住戸/耐震構造/準耐火構造/敷地内ごみ置き場/全居室8畳以上/キッチン未使用/都市ガス/洗面所にドア/縦型照明付洗面化粧台/ダウンライト/LAN/年度内入居可/敷金・礼金不要/IT重説 対応物件/初期費用カード決済可/通風良好/巡回管理/フレスコ堀川店(スーパー)まで250m/セブンイレブン二条城北店(コンビニ)まで308m/ファミリーマート丸太町猪熊店(コンビニ)まで344m/ウエルシア京都智恵光院店(ドラッグストア)まで227m/京都大宮丸太町郵便局(郵便局)まで299m/京都信用金庫丸太町支店(銀行)まで521m/賃貸戸数:8戸
続きを見る
特記事項
ペット相談可・角部屋・管理人巡回・最上階・デザイナーズ物件・保証人不要/代行 ・初期費用カード決済可
省エネ性能
| エネルギー消費性能 | - |
|---|---|
| 断熱性能 | - |
| 目安光熱費 | - |
- お問い合わせ先
- アリア(株)京都店
不動産会社情報
お問い合わせ先
| 商号 | アリア(株)京都店 |
|---|---|
| 免許番号 | 国土交通大臣(1)第10561号 |
| 所在地 | 京都府京都市下京区朱雀正会町 1-1 KYOCAFoodLaboratory507 |
| TEL | 075-353-2753 |
| 取引態様 | 仲介 |
| 管理コード | |
| 所属協会など | (公社)近畿地区不動産公正取引協議会加盟、(公社)全日本不動産協会京都府本部会員 |
この地域の暮らしデータ
京都市の人口などの統計情報
| 世帯数 | 728744世帯 |
|---|---|
| 人口総数 | 1379529人 |
| 転入者数 |
85315人 転入率(人口1000人当たり) 61.84人 |
| 転出者数 |
80567人 転出率(人口1000人当たり) 58.40人 |
| 土地平均価格 |
住宅地 220880円/m2 商業地 1290411円/m2 |
京都市の結婚・育児の助成金
| 出産・子育て | |
|---|---|
| 子育て関連の独自の取り組み | (1)乳幼児の子育て支援機能や学童クラブ機能等を有する児童館設置。(2)こんにちはプレママ事業。(3)児童虐待未然防止に係る医療機関と子どもはぐくみ室及び京北出張所の連携。(4)子ども保健医療相談・事故防止センター設置。(5)京都はぐくみアプリ配信。(6)子育て支援コンシェルジュ育成。(7)骨髄移植手術等により免疫を喪失した子どもへのワクチン再接種費用助成制度。(8)子どもを共に育む京都市民憲章の制定、憲章の実践・普及の促進。(9)【京都安心すまい応援金】未就学の子どもがいる世帯を対象に、自己居住用として既存住宅を購入し、リフォームを行う場合に、最大200万円の応援金を交付。 |
| 出産祝い |
あり
|
| 公立保育所数 |
14ヶ所 0歳児保育を実施 13ヶ所 |
| 私立保育所数 |
196ヶ所 0歳児保育を実施 188ヶ所 |
| 保育所入所待機児童数 | 0人 |
| 認定こども園数 | 83園 |
| 預かり保育実施園数-公立 | 15園 |
| 預かり保育実施園数-私立 | 81園 |
| 学校給食 | 【小学校】完全給食【中学校】完全給食 家庭弁当等との選択制/デリバリー形式[運搬:ランチボックス、内容:完全給食] 給食なし |
| 公立中学校の学校選択制 | 未実施 |
| 子ども・学生等医療費助成<通院>対象年齢 | 中学校卒業まで |
| 子ども・学生等医療費助成<入院>対象年齢 | 中学校卒業まで |
京都市の治安・ごみ収集情報
| 公共料金・インフラ | |
|---|---|
| ガス料金(22m3使用した場合の月額) | 大阪瓦斯株式会社4544円 |
| 水道料金(口径20mmで20m3の月額) | 京都市3014円 |
| 下水道料金(20m3を使用した場合の月額) | 京都市2013円 |
| 下水道普及率 | 99.5% |
| 安心・安全 | |
| 建物火災出火件数 |
158件 人口10000人当たり 1.08件 |
| 刑法犯認知件数 |
8104件 人口1000人当たり 5.54件 |
| ハザード・防災マップ | あり |
| 医療 | |
| 一般病院総数 | 89ヶ所 |
| 一般診療所総数 | 1622ヶ所 |
| 小児科医師数 |
397人 小児人口10000人当たり 27.26人 |
| 産婦人科医師数 |
201人 15~49歳女性人口1万人当たり 7.16人 |
| 介護保険料基準額(月額) | 7160円 |
| ごみ | |
| 家庭ごみ収集(可燃ごみ) |
有料
|
| 家庭ごみの分別方式 | 5分別8種〔燃やすごみ 缶・びん・ペットボトル プラスチック類 小型金属類・スプレー缶 雑がみ〕 拠点回収:移動式拠点回収):古紙(新聞・ダンボール) 雑がみ 紙パック 使用済てんぷら油 古着類 乾電池 ボタン電池 充電式電池 蛍光管 水銀体温計・水銀血圧計 小型家電 磁気テープ類 インクカートリッジ リユースびん 刃物類 使い捨てライター 陶磁器製の食器 せん定枝木の枝 石油類 医薬品・農薬 化学薬品・塗料・ワックス・絵の具 洗浄剤 |
| 家庭ごみの戸別収集 | 一部実施(原則定点としているが、一部地域で狭路等やむを得ない事情がある場合のみ実施。また、ごみ出しが困難な高齢者や障害のある方などの生活支援の一つとして、御自宅の玄関先までごみの収集に伺う「ごみ収集福祉サービス[まごころ収集]」を実施) |
| 粗大ごみ収集 |
あり
|
| 生ごみ処理機助成金制度 |
なし 上限金額 - 上限比率 - |
暮らしデータ提供元:生活ガイド.com
※行政機関により公表していない地域及びデータがございます。東京23区以外の政令指定都市は、市全体のデータとして表示しています。
※提供データには細心の注意を払っておりますが、調査後に変更がある場合があります。 最新の情報につきましては各市区役所までお問い合わせいただくか、自治体HPなどをご確認ください。
※提供データには細心の注意を払っておりますが、調査後に変更がある場合があります。 最新の情報につきましては各市区役所までお問い合わせいただくか、自治体HPなどをご確認ください。
お気に入りの物件を見逃さない!
プッシュ通知で最新の物件情報が届く




