プルーリオン亀岡 亀岡駅 3LDK 賃貸(賃貸マンション・アパート)
3LDK / 亀岡駅
- 情報提供元
- SUUMO
賃料6.4万円 / 管理費等4000円
-
外観
-
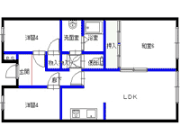
間取り
-
室内
-
室内
-
室内
-
室内
-
室内
-
室内
-
室内
-
室内
-
室内
-
室内
-
マックハウス亀岡市役所前店(ショッピングセンター)まで1371m
-
フレッシュバザール亀岡大井店(スーパー)まで320m
-
スーパーマツモト荒塚店(スーパー)まで1429m
-
ローソンガレリアかめおか前店(コンビニ)まで973m
-
ジョーシン亀岡店(ホームセンター)まで948m
-
亀岡市役所(役所)まで1500m
-
画像
-
画像
-
この物件が気になりましたか? 最新の空室状況は
問合せをすることで確認できます
- お問い合わせ先
- (株)ヴァリエンテバルコ京都支店
南向きバルコニーで日当たり良好!スーパーも近くに有! 南向きバルコニーで日当たり良好!スーパーも近く(徒歩3分)にありますので利便性はいいエリアですね!是非お問い合わせくださいませ!
-
交通JR山陰本線 亀岡駅 徒歩20分
JR山陰本線 並河駅 徒歩23分
JR山陰本線 馬堀駅 徒歩3.6km
| 敷引・償却 | - |
|---|---|
| 更新料 | - |
| 契約期間 | |
| カード決済 | 初期費用カード決済可 |
| 建物名 | プルーリオン亀岡 |
| 建物構造 | RC |
| 駐車場 | 有 7,700円 |
| 現況 | |
| 入居可能時期 | 即時 |
| 住宅保険 | あり 2年 20000円 |
| 情報提供元 | SUUMO[060H100441360068] |
| 情報公開日 | |
| 情報更新日 | |
| 次回更新予定日 | 随時 |
地図
設備など
- バス・トイレ別
- 2階以上
- ペット相談可
-
駐車場
(近隣含) -
室内洗濯機
置き場 - エアコン
- 洗面所独立
- 追焚機能
- オートロック
設備
| バス・トイレ | バス・トイレ別、トイレ、浴トイレ別 |
|---|---|
| キッチン | ガスコンロ可 |
| 収納 | 収納スペース、クローゼット、シューズボックス |
| セキュリティ | 防犯カメラ |
| 室内設備 | 冷房、暖房、エアコン、洗濯機置場、洗面所、フローリング、シャンプードレッサ、洗面所独立、室内洗濯機置き場 |
| 建物設備 | バルコニー、エレベーター、プロパンガス |
| 駐車場・駐輪場 | 駐輪場 |
| テレビ・通信 | BS端子、インターネット対応 |
備考
退去時清掃費特約有り 駐車場契約時手数料1ヶ月+プレート 第1650円要 更新事務手数料2.2万円(税込)/保証会社利用必:お問い合わせください。/普通借家2年/二人入居可/子供可/短期解約違約金あり。/バストイレ別/バルコニー/エアコン/ガスコンロ対応/クロゼット/フローリング/シャワー付洗面台/室内洗濯置/陽当り良好/シューズボックス/南向き/脱衣所/エレベーター/洗面所独立/洗面化粧台/駐輪場/光ファイバー/即入居可/敷金不要/防犯カメラ/保証金不要/南面リビング/平面駐車場/プロパンガス/南面バルコニー/BS/初期費用カード決済可/フレッシュバザール亀岡大井店まで320m/ファミリーマート亀岡河原町店まで360m/フレッシュバザール亀岡大井店(スーパー)まで320m/マックハウス亀岡市役所前店(ショッピングセンター)まで1371m/ローソンガレリアかめおか前店(コンビニ)まで973m/ジョーシン亀岡店(ホームセンター)まで948m/スーパーマツモト荒塚店(スーパー)まで1429m/亀岡市役所(役所)まで1500m/賃貸戸数:48戸
続きを見る
特記事項
二人入居可・日当り良好・初期費用カード決済可
省エネ性能
| エネルギー消費性能 | - |
|---|---|
| 断熱性能 | - |
| 目安光熱費 | - |
- お問い合わせ先
- (株)ヴァリエンテバルコ京都支店
不動産会社情報
お問い合わせ先
| 商号 | (株)ヴァリエンテバルコ京都支店 |
|---|---|
| 免許番号 | 国土交通大臣(1)第10806号 |
| 所在地 | 京都府亀岡市追分町馬場通 9 |
| TEL | 0771-25-7575 |
| 取引態様 | 仲介 |
| 管理コード | |
| 所属協会など | (公社)近畿地区不動産公正取引協議会加盟、(公社)京都府宅地建物取引業協会会員 |
この地域の暮らしデータ
亀岡市の人口などの統計情報
| 世帯数 | 34370世帯 |
|---|---|
| 人口総数 | 86765人 |
| 転入者数 |
2841人 転入率(人口1000人当たり) 32.74人 |
| 転出者数 |
2615人 転出率(人口1000人当たり) 30.14人 |
| 土地平均価格 |
住宅地 73709円/m2 商業地 111100円/m2 |
亀岡市の結婚・育児の助成金
| 出産・子育て | |
|---|---|
| 子育て関連の独自の取り組み | (1)子どもと子育てを頑張る人を本気で応援する「子どもファースト」を宣言し、こども医療費18歳まで拡大と無償化、保育料第2子以降全て無償化、保育所(園)・幼稚園・こども園でおむつの提供・処理の無償化、放課後児童クラブの一家庭2人目以降無償化・平日午後7時まで延長・土日祝日の実施について、所得制限なく実施。(2)生涯学習施設ガレリアかめおか内に、室内あそびば「かめまるランド」と屋外あそびば「芝生ひろば」「あおぞらひろば」を備えた「ガレリアあそびの森」を、亀岡駅北のサンガスタジアムbyKYOCERA内に、木育ひろば「KIRInoKO」を開設するなど、多様な子どもファースト事業を展開。 |
| 出産祝い |
あり
|
| 公立保育所数 |
5ヶ所 0歳児保育を実施 4ヶ所 |
| 私立保育所数 |
6ヶ所 0歳児保育を実施 6ヶ所 |
| 保育所入所待機児童数 | 10人 |
| 認定こども園数 | 6園 |
| 預かり保育実施園数-公立 | 1園 |
| 預かり保育実施園数-私立 | 4園 |
| 学校給食 | 【小学校】完全給食【中学校】家庭弁当等との選択制/デリバリー形式[運搬:ランチボックス] |
| 公立中学校の学校選択制 | 未実施 |
| 子ども・学生等医療費助成<通院>対象年齢 | 18歳3月末まで |
| 子ども・学生等医療費助成<入院>対象年齢 | 18歳3月末まで |
亀岡市の治安・ごみ収集情報
| 公共料金・インフラ | |
|---|---|
| ガス料金(22m3使用した場合の月額) | 大阪瓦斯株式会社4544円 |
| 水道料金(口径20mmで20m3の月額) | 亀岡市2310円 |
| 下水道料金(20m3を使用した場合の月額) | 亀岡市2970円 |
| 下水道普及率 | 86.8% |
| 安心・安全 | |
| 建物火災出火件数 |
10件 人口10000人当たり 1.16件 |
| 刑法犯認知件数 |
222件 人口1000人当たり 2.58件 |
| ハザード・防災マップ | あり |
| 医療 | |
| 一般病院総数 | 4ヶ所 |
| 一般診療所総数 | 65ヶ所 |
| 小児科医師数 |
16人 小児人口10000人当たり 15.49人 |
| 産婦人科医師数 |
3人 15~49歳女性人口1万人当たり 1.91人 |
| 介護保険料基準額(月額) | 5800円 |
| ごみ | |
| 家庭ごみ収集(可燃ごみ) |
有料
|
| 家庭ごみの分別方式 | 3分別17種〔可燃ごみ 埋立てごみ 資源ごみ(プラスチック、ペットボトル、ライター、乾電池、空きカン・スプレー缶、空きビン[無色、茶色、その他の色]、紙類[新聞紙、雑誌、段ボール、雑紙、シュレッダー紙]、草・木類、小型金属類)〕 拠点回収:使用済小型家電 インクカートリッジ 水銀体温計 水銀血圧計 ステンレスボトル 蛍光灯 アルミ付紙パック |
| 家庭ごみの戸別収集 | 一部実施(亀岡市ふれあい収集事業[高齢者等向け事業]を実施) |
| 粗大ごみ収集 |
あり
|
| 生ごみ処理機助成金制度 |
あり 上限金額 20000円 上限比率 50.0% |
暮らしデータ提供元:生活ガイド.com
※行政機関により公表していない地域及びデータがございます。東京23区以外の政令指定都市は、市全体のデータとして表示しています。
※提供データには細心の注意を払っておりますが、調査後に変更がある場合があります。 最新の情報につきましては各市区役所までお問い合わせいただくか、自治体HPなどをご確認ください。
※提供データには細心の注意を払っておりますが、調査後に変更がある場合があります。 最新の情報につきましては各市区役所までお問い合わせいただくか、自治体HPなどをご確認ください。
お気に入りの物件を見逃さない!
プッシュ通知で最新の物件情報が届く




