愛知県名古屋市中川区高畑1 高畑駅 1K 賃貸(賃貸マンション・アパート)
1K / 高畑駅
- 情報提供元
- SUUMO
賃料5.43万円 / 管理費等7250円
-
外観
-
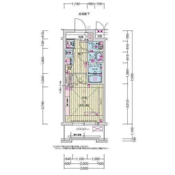
間取り
-
名古屋市立一柳中学校(中学校)まで1392m
-
名古屋市立野田小学校(小学校)まで1148m
-
たかばた保育園(幼稚園・保育園)まで336m
-
医療法人純正会名古屋西病院(病院)まで401m
-
名古屋荒子郵便局(郵便局)まで284m
-
名古屋市中川図書館(図書館)まで813m
-
この物件が気になりましたか? 最新の空室状況は
問合せをすることで確認できます
- お問い合わせ先
- (株)ミニミニ高畑店
アクセスのよい高畑駅徒歩3分なので、買い物もしやすい立地です 配達状況を気にせず外出できる宅配BOX付で、その上電気水道と同様のインフラとなったインターネット使用料無料なので、毎月の通信費を気にせず楽しめ便利です。
-
交通地下鉄東山線 高畑駅 徒歩3分
あおなみ線 荒子駅 徒歩9分
地下鉄東山線 八田駅 徒歩13分
| 敷引・償却 | - |
|---|---|
| 更新料 | - |
| 契約期間 | |
| カード決済 | - |
| 建物名 | |
| 建物構造 | RC |
| 駐車場 | 無 |
| 現況 | |
| 入居可能時期 | 2026年2月下旬 |
| 住宅保険 | あり 1年 11000円 |
| 情報提供元 | SUUMO[050H100469966595] |
| 情報公開日 | |
| 情報更新日 | |
| 次回更新予定日 | 随時 |
地図
設備など
- バス・トイレ別
- 2階以上
- ペット相談可
-
駐車場
(近隣含) -
室内洗濯機
置き場 - エアコン
- 洗面所独立
- 追焚機能
- オートロック
設備
| バス・トイレ | バス・トイレ別、トイレ、追焚機能、浴室乾燥機、温水洗浄便座、風呂、浴トイレ別 |
|---|---|
| 収納 | 収納スペース、クローゼット、シューズボックス |
| セキュリティ | オートロック、モニタ付インターホン、防犯カメラ |
| 室内設備 | 冷房、暖房、エアコン、洗濯機置場、洗面所、照明器具、シャンプードレッサ、衣類乾燥機、洗面所独立、室内洗濯機置き場 |
| 建物設備 | バルコニー、エレベーター、都市ガス、宅配BOX |
| テレビ・通信 | BS端子 |
備考
カギ調整代2.2万円/防災セット1.44万円/ファイテック消火剤0.48万円/消毒料1.76万円/プレサポ24990円/保証会社利用必:株式会社プレサンスギャランティ保証 家賃保証会社 初回保証料50% 毎月賃料等請求金額の合計1.5%/バストイレ別/バルコニー/エアコン/クロゼット/シャワー付洗面台/TVインターホン/浴室乾燥機/オートロック/室内洗濯置/シューズボックス/追焚機能浴室/温水洗浄便座/エレベーター/洗面所独立/洗面化粧台/宅配ボックス/敷金不要/防犯カメラ/照明付/2沿線利用可/駅まで平坦/築2年以内/24時間換気システム/平坦地/始発駅/駅前/駅徒歩5分以内/駅徒歩10分以内/都市ガス/BS/IT重説 対応物件/名古屋市立野田小学校(小学校)まで1148m/名古屋市立一柳中学校(中学校)まで1392m/たかばた保育園(幼稚園・保育園)まで336m/名古屋荒子郵便局(郵便局)まで284m/名古屋市中川図書館(図書館)まで813m/医療法人純正会名古屋西病院(病院)まで401m/賃貸戸数:57戸
続きを見る
特記事項
省エネ性能
| エネルギー消費性能 | - |
|---|---|
| 断熱性能 | - |
| 目安光熱費 | - |
- お問い合わせ先
- (株)ミニミニ高畑店
不動産会社情報
お問い合わせ先
| 商号 | (株)ミニミニ高畑店 |
|---|---|
| 免許番号 | 国土交通大臣(6)第5631号 |
| 所在地 | 愛知県名古屋市中川区高畑1-241 ケイツーホソノ2階 |
| TEL | 052-363-3200 |
| 取引態様 | 仲介 |
| 管理コード | 18021889-1493 |
| 所属協会など | - |
この地域の暮らしデータ
名古屋市の人口などの統計情報
| 世帯数 | 1119847世帯 |
|---|---|
| 人口総数 | 2297745人 |
| 転入者数 |
168667人 転入率(人口1000人当たり) 73.41人 |
| 転出者数 |
154544人 転出率(人口1000人当たり) 67.26人 |
| 土地平均価格 |
住宅地 223115円/m2 商業地 1106619円/m2 |
名古屋市の結婚・育児の助成金
| 出産・子育て | |
|---|---|
| 子育て関連の独自の取り組み | (1)なごや子育てアプリ「NAGOMii(なごみー)」による子育て支援情報の提供。(2)子育て家庭優待カード「ぴよか」の交付。(3)子どもを出産、育児する家庭に5万ポイント(5万円相当)分のカタログギフトを進呈する、ナゴヤわくわくプレゼント事業の実施。 |
| 出産祝い |
あり
|
| 公立保育所数 |
84ヶ所 0歳児保育を実施 84ヶ所 |
| 私立保育所数 |
367ヶ所 0歳児保育を実施 365ヶ所 |
| 保育所入所待機児童数 | 0人 |
| 認定こども園数 | 107園 |
| 預かり保育実施園数-公立 | 20園 |
| 預かり保育実施園数-私立 | - |
| 学校給食 | 【小学校】完全給食【中学校】家庭弁当等との選択制/デリバリー形式[運搬:食缶等、内容:完全給食(献立選択制)] |
| 公立中学校の学校選択制 | 未実施 |
| 子ども・学生等医療費助成<通院>対象年齢 | 18歳3月末まで |
| 子ども・学生等医療費助成<入院>対象年齢 | 18歳3月末まで |
名古屋市の治安・ごみ収集情報
| 公共料金・インフラ | |
|---|---|
| ガス料金(22m3使用した場合の月額) | 東邦瓦斯株式会社5307円 |
| 水道料金(口径20mmで20m3の月額) | 名古屋市2915円 |
| 下水道料金(20m3を使用した場合の月額) | 名古屋市1804円 |
| 下水道普及率 | 99.4% |
| 安心・安全 | |
| 建物火災出火件数 |
355件 人口10000人当たり 1.52件 |
| 刑法犯認知件数 |
19857件 人口1000人当たり 8.51件 |
| ハザード・防災マップ | あり |
| 医療 | |
| 一般病院総数 | 110ヶ所 |
| 一般診療所総数 | 2272ヶ所 |
| 小児科医師数 |
770人 小児人口10000人当たり 28.40人 |
| 産婦人科医師数 |
319人 15~49歳女性人口1万人当たり 6.72人 |
| 介護保険料基準額(月額) | 6951円 |
| ごみ | |
| 家庭ごみ収集(可燃ごみ) |
無料
|
| 家庭ごみの分別方式 | 5分別9種〔可燃ごみ 不燃ごみ 発火性危険物 電池類 資源(プラスチック資源、紙製容器包装・雑がみ、ペットボトル、空きびん、空き缶)〕 拠点回収:資源(ペットボトル 紙パック 食用油 小型家電 充電式家電 蛍光管・水銀体温計・水銀温度計) |
| 家庭ごみの戸別収集 | 実施(可燃ごみ、不燃ごみ、発火性危険物、電池類、プラスチック資源のみ。紙製容器包装・雑がみ、ペットボトル、空きびん、空き缶はステーション収集) |
| 粗大ごみ収集 |
あり
|
| 生ごみ処理機助成金制度 |
なし 上限金額 - 上限比率 - |
暮らしデータ提供元:生活ガイド.com
※行政機関により公表していない地域及びデータがございます。東京23区以外の政令指定都市は、市全体のデータとして表示しています。
※提供データには細心の注意を払っておりますが、調査後に変更がある場合があります。 最新の情報につきましては各市区役所までお問い合わせいただくか、自治体HPなどをご確認ください。
※提供データには細心の注意を払っておりますが、調査後に変更がある場合があります。 最新の情報につきましては各市区役所までお問い合わせいただくか、自治体HPなどをご確認ください。
お気に入りの物件を見逃さない!
プッシュ通知で最新の物件情報が届く




