S-RESIDENCE今池beleta 吹上駅 1K 賃貸(賃貸マンション・アパート)
1K / 吹上駅
- 情報提供元
- SUUMO
賃料7.25万円 / 管理費等8000円
-
外観
-
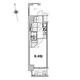
間取り
-
室内
-
室内
-
室内
-
室内
-
室内
-
室内
-
室内
-
室内
-
ピアゴラフーズコア今池店(スーパー)まで505m
-
イオン今池店(スーパー)まで552m
-
味仙 今池本店(飲食店)まで550m
-
ミスタードーナツ 今池ショップ(飲食店)まで384m
-
ドン・キホーテ 名古屋今池店(その他)まで576m
-
画像
-
画像
-
画像
-
画像
-
この物件が気になりましたか? 最新の空室状況は
問合せをすることで確認できます
- お問い合わせ先
- ハウスコム東海(株)星ヶ丘店
成約者特典BOOKOFF買取価格10%UP(景品限度額内) 室内設備は浴室乾燥機・洗面所独立など豊富に揃っており、過ごしやすいお部屋になっております。収納はシューズボックス・クロゼットなど豊富なので、広々と空間を利用することも可能です。
-
交通地下鉄桜通線 吹上駅 徒歩9分
地下鉄東山線 今池駅 徒歩10分
JR中央本線 千種駅 徒歩15分
| 敷引・償却 | - |
|---|---|
| 更新料 | - |
| 契約期間 | |
| カード決済 | - |
| 建物名 | S-RESIDENCE今池beleta |
| 建物構造 | RC |
| 駐車場 | 有 19,800円 |
| 現況 | |
| 入居可能時期 | 即時 |
| 住宅保険 | あり 2年 18000円 |
| 情報提供元 | SUUMO[050H100447846079] |
| 情報公開日 | |
| 情報更新日 | |
| 次回更新予定日 | 随時 |
地図
設備など
- バス・トイレ別
- 2階以上
- ペット相談可
-
駐車場
(近隣含) -
室内洗濯機
置き場 - エアコン
- 洗面所独立
- 追焚機能
- オートロック
設備
| バス・トイレ | バス・トイレ別、トイレ、浴室乾燥機、温水洗浄便座、浴トイレ別 |
|---|---|
| キッチン | ガスコンロ可、システムキッチン、コンロ2口以上 |
| 収納 | 収納スペース、ウォークインクローゼット、クローゼット、シューズボックス |
| セキュリティ | オートロック、モニタ付インターホン |
| 室内設備 | 冷房、暖房、エアコン、洗濯機置場、洗面所、フローリング、衣類乾燥機、洗面所独立、室内洗濯機置き場 |
| 建物設備 | バルコニー、エレベーター、都市ガス、宅配BOX |
| 駐車場・駐輪場 | 駐輪場 |
| テレビ・通信 | CATV、インターネット無料、インターネット対応 |
備考
更新料 賃料1.00ヶ月分/保証会社利用必:初回保証料:50% 年間1万2千円 手数料:330円/※短期解約違約金1年未満1ヶ月(賃料+共益費) カギ交換費用 解約時 33 000円(税込) ハウスクリーニング費用 解約時 33 000円(税込)/バストイレ別/バルコニー/エアコン/ガスコンロ対応/フローリング/TVインターホン/浴室乾燥機/オートロック/室内洗濯置/シューズボックス/システムキッチン/南向き/角住戸/温水洗浄便座/エレベーター/洗面所独立/洗面化粧台/2口コンロ/駐輪場/宅配ボックス/CATV/即入居可/礼金不要/敷金不要/ウォークインクロゼット/2沿線利用可/ネット使用料不要/平坦地/2駅利用可/駅徒歩10分以内/敷地内ごみ置き場/都市ガス/敷金・礼金不要/IT重説 対応物件/味仙 今池本店(飲食店)まで550m/ミスタードーナツ 今池ショップ(飲食店)まで384m/ピアゴラフーズコア今池店(スーパー)まで505m/イオン今池店(スーパー)まで552m/ファミリーマート 千種今池南店(スーパー)まで316m/ドン・キホーテ 名古屋今池店(その他)まで576m/賃貸戸数:58戸
続きを見る
特記事項
角部屋
省エネ性能
| エネルギー消費性能 | - |
|---|---|
| 断熱性能 | - |
| 目安光熱費 | - |
- お問い合わせ先
- ハウスコム東海(株)星ヶ丘店
不動産会社情報
お問い合わせ先
商号:ハウスコム東海(株)星ヶ丘店
免許番号:国土交通大臣(1)第10227号
所在地:愛知県名古屋市千種区井上町 129-1 エストレヤビル1階
TEL:0800-1703331
取引態様:仲介
管理コード:HC2-5001055-606-0103
所属協会など:(公社)首都圏不動産公正取引協議会加盟、(公財)日本賃貸住宅管理協会会員 この会社の他の物件情報を見る
免許番号:国土交通大臣(1)第10227号
所在地:愛知県名古屋市千種区井上町 129-1 エストレヤビル1階
TEL:0800-1703331
取引態様:仲介
管理コード:HC2-5001055-606-0103
所属協会など:(公社)首都圏不動産公正取引協議会加盟、(公財)日本賃貸住宅管理協会会員 この会社の他の物件情報を見る
この地域の暮らしデータ
名古屋市の人口などの統計情報
| 世帯数 | 1119847世帯 |
|---|---|
| 人口総数 | 2297745人 |
| 転入者数 |
168667人 転入率(人口1000人当たり) 73.41人 |
| 転出者数 |
154544人 転出率(人口1000人当たり) 67.26人 |
| 土地平均価格 |
住宅地 223115円/m2 商業地 1106619円/m2 |
名古屋市の結婚・育児の助成金
| 出産・子育て | |
|---|---|
| 子育て関連の独自の取り組み | (1)なごや子育てアプリ「NAGOMii(なごみー)」による子育て支援情報の提供。(2)子育て家庭優待カード「ぴよか」の交付。(3)子どもを出産、育児する家庭に5万ポイント(5万円相当)分のカタログギフトを進呈する、ナゴヤわくわくプレゼント事業の実施。 |
| 出産祝い |
あり
|
| 公立保育所数 |
84ヶ所 0歳児保育を実施 84ヶ所 |
| 私立保育所数 |
367ヶ所 0歳児保育を実施 365ヶ所 |
| 保育所入所待機児童数 | 0人 |
| 認定こども園数 | 107園 |
| 預かり保育実施園数-公立 | 20園 |
| 預かり保育実施園数-私立 | - |
| 学校給食 | 【小学校】完全給食【中学校】家庭弁当等との選択制/デリバリー形式[運搬:食缶等、内容:完全給食(献立選択制)] |
| 公立中学校の学校選択制 | 未実施 |
| 子ども・学生等医療費助成<通院>対象年齢 | 18歳3月末まで |
| 子ども・学生等医療費助成<入院>対象年齢 | 18歳3月末まで |
名古屋市の治安・ごみ収集情報
| 公共料金・インフラ | |
|---|---|
| ガス料金(22m3使用した場合の月額) | 東邦瓦斯株式会社5307円 |
| 水道料金(口径20mmで20m3の月額) | 名古屋市2915円 |
| 下水道料金(20m3を使用した場合の月額) | 名古屋市1804円 |
| 下水道普及率 | 99.4% |
| 安心・安全 | |
| 建物火災出火件数 |
355件 人口10000人当たり 1.52件 |
| 刑法犯認知件数 |
19857件 人口1000人当たり 8.51件 |
| ハザード・防災マップ | あり |
| 医療 | |
| 一般病院総数 | 110ヶ所 |
| 一般診療所総数 | 2272ヶ所 |
| 小児科医師数 |
770人 小児人口10000人当たり 28.40人 |
| 産婦人科医師数 |
319人 15~49歳女性人口1万人当たり 6.72人 |
| 介護保険料基準額(月額) | 6951円 |
| ごみ | |
| 家庭ごみ収集(可燃ごみ) |
無料
|
| 家庭ごみの分別方式 | 5分別9種〔可燃ごみ 不燃ごみ 発火性危険物 電池類 資源(プラスチック資源、紙製容器包装・雑がみ、ペットボトル、空きびん、空き缶)〕 拠点回収:資源(ペットボトル 紙パック 食用油 小型家電 充電式家電 蛍光管・水銀体温計・水銀温度計) |
| 家庭ごみの戸別収集 | 実施(可燃ごみ、不燃ごみ、発火性危険物、電池類、プラスチック資源のみ。紙製容器包装・雑がみ、ペットボトル、空きびん、空き缶はステーション収集) |
| 粗大ごみ収集 |
あり
|
| 生ごみ処理機助成金制度 |
なし 上限金額 - 上限比率 - |
暮らしデータ提供元:生活ガイド.com
※行政機関により公表していない地域及びデータがございます。東京23区以外の政令指定都市は、市全体のデータとして表示しています。
※提供データには細心の注意を払っておりますが、調査後に変更がある場合があります。 最新の情報につきましては各市区役所までお問い合わせいただくか、自治体HPなどをご確認ください。
※提供データには細心の注意を払っておりますが、調査後に変更がある場合があります。 最新の情報につきましては各市区役所までお問い合わせいただくか、自治体HPなどをご確認ください。
お気に入りの物件を見逃さない!
プッシュ通知で最新の物件情報が届く




