コスモ新潟寄居おぎの通り 白山駅 3LDK 賃貸(賃貸マンション・アパート)
3LDK / 白山駅
- 情報提供元
- SUUMO
賃料9.5万円 / 管理費等なし
-
外観
-
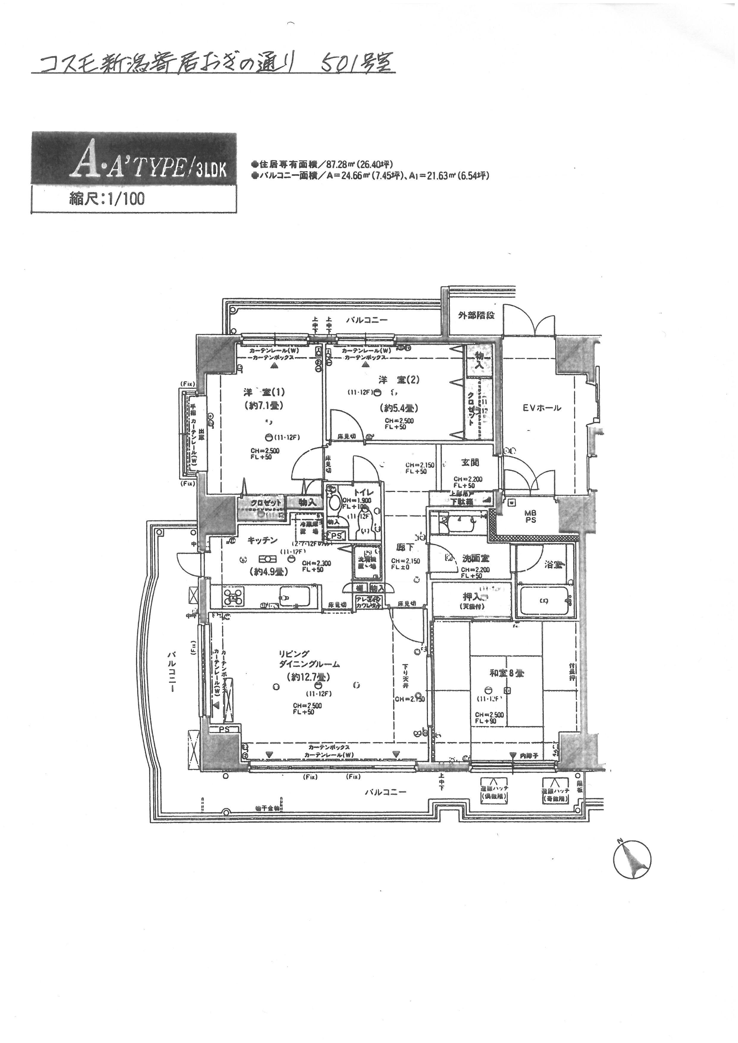
間取り
-
この物件が気になりましたか? 最新の空室状況は
問合せをすることで確認できます
- お問い合わせ先
- (株)千歳
大型分譲物件 南東向き5階 3方角部屋 LDK17帖超 大型分譲物件 南東向き5階 3方角部屋 H24.8内装リフォーム済 LDK17帖超 オートロック 管理人常駐 TVモニターホン ディンプルキー
-
交通JR越後線 白山駅 徒歩22分
JR越後線 上所駅 徒歩30分
JR信越本線 新潟駅 徒歩32分
| 敷引・償却 | - |
|---|---|
| 更新料 | - |
| 契約期間 | |
| カード決済 | - |
| 建物名 | コスモ新潟寄居おぎの通り |
| 建物構造 | SRC |
| 駐車場 | 無 |
| 現況 | |
| 入居可能時期 | 2025年11月下旬 |
| 住宅保険 | あり 2年 25000円 |
| 情報提供元 | SUUMO[040H100472299623] |
| 情報公開日 | |
| 情報更新日 | |
| 次回更新予定日 | 随時 |
地図
設備など
- バス・トイレ別
- 2階以上
- ペット相談可
-
駐車場
(近隣含) -
室内洗濯機
置き場 - エアコン
- 洗面所独立
- 追焚機能
- オートロック
設備
| バス・トイレ | バス・トイレ別、トイレ、温水洗浄便座、浴トイレ別 |
|---|---|
| キッチン | ガスコンロ可、システムキッチン、コンロ2口以上 |
| 収納 | 収納スペース、クローゼット、シューズボックス |
| セキュリティ | オートロック、管理人常駐、管理人日勤、ディンプルキー |
| 室内設備 | 洗濯機置場、洗面所、シャンプードレッサ、洗面所独立、室内洗濯機置き場 |
| 建物設備 | バルコニー、エレベーター、都市ガス、2面バルコニー、3面バルコニー |
| 駐車場・駐輪場 | 駐輪場 |
| 特徴 | リフォーム |
| テレビ・通信 | インターネット対応 |
備考
町内費500円/月/仲介手数料1.1ヶ月/普通借家2年0ヶ月/バストイレ別/バルコニー/ガスコンロ対応/シャワー付洗面台/オートロック/室内洗濯置/陽当り良好/シューズボックス/システムキッチン/角住戸/温水洗浄便座/エレベーター/洗面所独立/駐輪場/押入/光ファイバー/閑静な住宅地/3口以上コンロ/全居室収納/分譲賃貸/グリル付/南西角住戸/玄関ホール/3面採光/クッションフロア/LDK15畳以上/ディンプルキー/内装リフォーム済/敷金2ヶ月/眺望良好/1フロア2住戸/クロゼット2ヶ所/収納2間半/南面2室/南面リビング/3面バルコニー/3方角住戸/タワー型マンション/敷地内ごみ置き場/専有面積25坪以上/南西向き/日勤管理/リビングの隣和室/和室/和室8畳以上/都市ガス/洗面所にドア/L字型バルコニー/南面バルコニー/玄関収納/年内入居可/礼金1ヶ月/通風良好/常駐管理/リフォーム:平成24年8月床は、絨毯及び水回りをクッションフロアに改装(クロス及び床)/CiiNA CiiNA丸大新潟(ショッピングセンター)まで851m/セブンイレブン新潟寄居町店(コンビニ)まで224m/国立新潟大学医学部(大学・短大)まで675m/新潟市立寄居中学校(中学校)まで534m/新潟市立新潟小学校(小学校)まで327m/新潟中央警察署(警察署・交番)まで147m
続きを見る
特記事項
分譲タイプ・角部屋・管理人常駐・管理人日勤・日当り良好・閑静な住宅街
省エネ性能
| エネルギー消費性能 | - |
|---|---|
| 断熱性能 | - |
| 目安光熱費 | - |
- お問い合わせ先
- (株)千歳
不動産会社情報
お問い合わせ先
商号:(株)千歳
免許番号:新潟県知事(13)第1162号
所在地:新潟県新潟市中央区西堀通6番町 876
TEL:025-222-8940
取引態様:仲介
管理コード:
所属協会など:(公社)首都圏不動産公正取引協議会加盟、(公社)新潟県宅地建物取引業協会会員 この会社の他の物件情報を見る
免許番号:新潟県知事(13)第1162号
所在地:新潟県新潟市中央区西堀通6番町 876
TEL:025-222-8940
取引態様:仲介
管理コード:
所属協会など:(公社)首都圏不動産公正取引協議会加盟、(公社)新潟県宅地建物取引業協会会員 この会社の他の物件情報を見る
この地域の暮らしデータ
新潟市の人口などの統計情報
| 世帯数 | 330697世帯 |
|---|---|
| 人口総数 | 767565人 |
| 転入者数 |
28151人 転入率(人口1000人当たり) 36.68人 |
| 転出者数 |
28261人 転出率(人口1000人当たり) 36.82人 |
| 土地平均価格 |
住宅地 51505円/m2 商業地 152371円/m2 |
新潟市の結婚・育児の助成金
| 出産・子育て | |
|---|---|
| 子育て関連の独自の取り組み | (1)企業と行政の連携による「にいがたっ子すこやかパスポート」事業。(2)男性の育児休業取得促進事業。(3)子育て応援アプリ及び新潟市公式LINEアカウントによる情報発信。(4)保育園等に文庫を開設し絵本を貸出。(5)子育て相談を受けコーディネートする機能を持った相談窓口の運営支援。(6)食と花、動物とのふれあい、創作活動等を一体的に学べる「いくとぴあ食花」の設置運営。(7)新潟市子ども条例(2022年4月施行)に基づく、子どもの権利の周知・啓発、子どもの意見表明・社会参加の促進、子どもの権利侵害に係る相談・救済活動等の取組。 |
| 出産祝い |
なし
|
| 公立保育所数 |
80ヶ所 0歳児保育を実施 80ヶ所 |
| 私立保育所数 |
47ヶ所 0歳児保育を実施 47ヶ所 |
| 保育所入所待機児童数 | 0人 |
| 認定こども園数 | 131園 |
| 預かり保育実施園数-公立 | 2園 |
| 預かり保育実施園数-私立 | 4園 |
| 学校給食 | 【小学校】完全給食【中学校】完全給食 家庭弁当等との選択制/デリバリー形式[運搬:ランチボックス及び食缶、内容:完全給食] |
| 公立中学校の学校選択制 | 未実施 |
| 子ども・学生等医療費助成<通院>対象年齢 | 18歳3月末まで |
| 子ども・学生等医療費助成<入院>対象年齢 | 18歳3月末まで |
新潟市の治安・ごみ収集情報
| 公共料金・インフラ | |
|---|---|
| ガス料金(22m3使用した場合の月額) | 北陸瓦斯株式会社(新潟地区)3473円 新発田ガス株式会社(新発田地区)3505円 越後天然ガス株式会社3241円 蒲原瓦斯株式会社3186円 白根瓦斯株式会社(新潟南地区)3215円 白根瓦斯株式会社(燕地区)2916円 |
| 水道料金(口径20mmで20m3の月額) | 新潟市4400円 |
| 下水道料金(20m3を使用した場合の月額) | 新潟市3047円 |
| 下水道普及率 | 87.3% |
| 安心・安全 | |
| 建物火災出火件数 |
103件 人口10000人当たり 1.30件 |
| 刑法犯認知件数 |
3979件 人口1000人当たり 5.04件 |
| ハザード・防災マップ | あり |
| 医療 | |
| 一般病院総数 | 35ヶ所 |
| 一般診療所総数 | 651ヶ所 |
| 小児科医師数 |
155人 小児人口10000人当たり 17.83人 |
| 産婦人科医師数 |
65人 15~49歳女性人口1万人当たり 4.54人 |
| 介護保険料基準額(月額) | 6880円 |
| ごみ | |
| 家庭ごみ収集(可燃ごみ) |
有料
|
| 家庭ごみの分別方式 | 3分別12種〔燃やすごみ 燃やさないごみ 資源物(プラマーク容器包装、ペットボトル、古紙類[新聞、雑誌・雑紙、ダンボール、紙パック]、飲食用・化粧品びん、飲食用缶、枝葉・草、特定5品目)〕 |
| 家庭ごみの戸別収集 | 未実施(高齢者や障がい者などごみ出しが困難な世帯に対して、有償ボランティア等によるごみ出し支援を行う団体に対し支援金を交付) |
| 粗大ごみ収集 |
あり
|
| 生ごみ処理機助成金制度 |
あり 上限金額 20000円 上限比率 50.0% |
暮らしデータ提供元:生活ガイド.com
※行政機関により公表していない地域及びデータがございます。東京23区以外の政令指定都市は、市全体のデータとして表示しています。
※提供データには細心の注意を払っておりますが、調査後に変更がある場合があります。 最新の情報につきましては各市区役所までお問い合わせいただくか、自治体HPなどをご確認ください。
※提供データには細心の注意を払っておりますが、調査後に変更がある場合があります。 最新の情報につきましては各市区役所までお問い合わせいただくか、自治体HPなどをご確認ください。
お気に入りの物件を見逃さない!
プッシュ通知で最新の物件情報が届く




