ランドフォレスト横浜蒔田 蒔田駅 1LDK 賃貸(賃貸マンション・アパート)
1LDK / 蒔田駅
- 情報提供元
- SUUMO
賃料7.5万円 / 管理費等5000円
-
外観
-
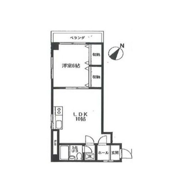
間取り
-
室内
-
室内
-
室内
-
室内
-
室内
-
室内
-
室内
-
室内
-
室内
-
室内
-
室内
-
ビエラ蒔田(ショッピングセンター)まで577m
-
まいばすけっと東蒔田町店(スーパー)まで546m
-
ローソンストア100横浜宮元町店(コンビニ)まで22m
-
ファミリーマート横浜宿町店(コンビニ)まで167m
-
ハックドラッグ横浜南太田店(ドラッグストア)まで755m
-
画像
-
この物件が気になりましたか? 最新の空室状況は
問合せをすることで確認できます
- お問い合わせ先
- (株)マインズクリエイト本店
mo3354・ブルーライン蒔田駅徒歩5分 ★☆ネット掲載以外にも最新情報のご提案や他社様の気になる物件も合わせてご紹介・ご案内可能です♪【045-410-3522】までお気軽にお問い合わせください♪ご納得のいくお部屋探しを致します☆★
-
交通ブルーライン 蒔田駅 徒歩5分
京急本線 南太田駅 徒歩10分
| 敷引・償却 | - |
|---|---|
| 更新料 | - |
| 契約期間 | |
| カード決済 | - |
| 建物名 | ランドフォレスト横浜蒔田 |
| 建物構造 | 鉄骨 |
| 駐車場 | 無 |
| 現況 | |
| 入居可能時期 | 即時 |
| 住宅保険 | あり 2年 22000円 |
| 情報提供元 | SUUMO[030H100475029985] |
| 情報公開日 | |
| 情報更新日 | |
| 次回更新予定日 | 随時 |
地図
設備など
- バス・トイレ別
- 2階以上
- ペット相談可
-
駐車場
(近隣含) -
室内洗濯機
置き場 - エアコン
- 洗面所独立
- 追焚機能
- オートロック
設備
| キッチン | ガスコンロ可、コンロ2口以上 |
|---|---|
| 収納 | 収納スペース、クローゼット |
| セキュリティ | モニタ付インターホン |
| 室内設備 | 冷房、暖房、エアコン、洗濯機置場、フローリング、室内洗濯機置き場 |
| 建物設備 | バルコニー、エレベーター、都市ガス、宅配BOX |
備考
24時間・サポート:12000円(税別)・ クリーニング費用:54000円(税別・預り)・鍵交換費用:有 22000円~/保証会社利用必:初回:総賃料の50%/事務所利用相談/★事務所使用可★二人入居可★2面採光★■□■物件の詳細はマインズクリエイト【045-410-3522】 までお気軽にお問い合わせ下さいませ♪♪その他の物件もご紹介可能です♪♪ご納得のいくお部屋探しを致します!!■□■/バルコニー/エアコン/ガスコンロ対応/クロゼット/フローリング/TVインターホン/室内洗濯置/エレベーター/2口コンロ/宅配ボックス/即入居可/2面採光/グリル付/全居室洋室/二人入居相談/ガスレンジ付/2沿線利用可/駅まで平坦/収納2間/事務所相談/クロゼット2ヶ所/平坦地/2駅利用可/都市ガス/敷金・礼金不要/ビエラ蒔田(ショッピングセンター)まで577m/まいばすけっと東蒔田町店(スーパー)まで546m/ローソンストア100横浜宮元町店(コンビニ)まで22m/ファミリーマート横浜宿町店(コンビニ)まで167m/ハックドラッグ横浜南太田店(ドラッグストア)まで755m
続きを見る
特記事項
事務所使用可
省エネ性能
| エネルギー消費性能 | - |
|---|---|
| 断熱性能 | - |
| 目安光熱費 | - |
- お問い合わせ先
- (株)マインズクリエイト本店
不動産会社情報
お問い合わせ先
| 商号 | (株)マインズクリエイト本店 |
|---|---|
| 免許番号 | 神奈川県知事(6)第22430号 |
| 所在地 | 神奈川県横浜市西区南幸2-11-1横浜エム・エス7F |
| TEL | 045-410-3522 |
| 取引態様 | 仲介 |
| 管理コード | mo3354 |
| 所属協会など | (公社)首都圏不動産公正取引協議会加盟、(公社)全日本不動産協会神奈川県本部会員 |
この地域の暮らしデータ
横浜市の人口などの統計情報
| 世帯数 | 1744208世帯 |
|---|---|
| 人口総数 | 3752969人 |
| 転入者数 |
217258人 転入率(人口1000人当たり) 57.89人 |
| 転出者数 |
201570人 転出率(人口1000人当たり) 53.71人 |
| 土地平均価格 |
住宅地 254434円/m2 商業地 1043863円/m2 |
横浜市の結婚・育児の助成金
| 出産・子育て | |
|---|---|
| 子育て関連の独自の取り組み | 横浜市私立幼稚園等預かり保育事業(横浜市が定めた基準(実施日、時間、職員配置等)を満たし、横浜市の認定を受けた幼稚園・認定こども園が実施する事業。市内在住の園児の保護者が就労や病気等で、園の正規教育時間の前後に家庭で保育ができない場合に、利用可能。3歳児~5歳児は無料、満3歳児は(a)私学助成を受ける幼稚園の場合、月額9,000円、(b)新制度に移行した園の場合、0円~9,000円)。 |
| 出産祝い |
あり
|
| 公立保育所数 |
56ヶ所 0歳児保育を実施 41ヶ所 |
| 私立保育所数 |
813ヶ所 0歳児保育を実施 716ヶ所 |
| 保育所入所待機児童数 | 5人 |
| 認定こども園数 | 70園 |
| 預かり保育実施園数-公立 | - |
| 預かり保育実施園数-私立 | 213園 |
| 学校給食 | 【小学校】完全給食【中学校】家庭弁当等・業者弁当との選択制/デリバリー形式[運搬:ランチボックス、内容:完全給食] |
| 公立中学校の学校選択制 | 一部実施(特定地域選択制[特別調整通学区域]) |
| 子ども・学生等医療費助成<通院>対象年齢 | 中学校卒業まで |
| 子ども・学生等医療費助成<入院>対象年齢 | 中学校卒業まで |
横浜市の治安・ごみ収集情報
| 公共料金・インフラ | |
|---|---|
| ガス料金(22m3使用した場合の月額) | 東京瓦斯株式会社(東京地区等)3926円 |
| 水道料金(口径20mmで20m3の月額) | 横浜市3017円 |
| 下水道料金(20m3を使用した場合の月額) | 横浜市2035円 |
| 下水道普及率 | 100.0% |
| 安心・安全 | |
| 建物火災出火件数 |
438件 人口10000人当たり 1.16件 |
| 刑法犯認知件数 |
16059件 人口1000人当たり 4.25件 |
| ハザード・防災マップ | あり |
| 医療 | |
| 一般病院総数 | 113ヶ所 |
| 一般診療所総数 | 3201ヶ所 |
| 小児科医師数 |
682人 小児人口10000人当たり 15.98人 |
| 産婦人科医師数 |
346人 15~49歳女性人口1万人当たり 4.58人 |
| 介護保険料基準額(月額) | 6620円 |
| ごみ | |
| 家庭ごみ収集(可燃ごみ) |
無料
|
| 家庭ごみの分別方式 | 7分別9種〔燃やすごみ 燃えないごみ スプレー缶 乾電池 プラスチック製容器包装 缶・びん・ペットボトル(缶、びん、ペットボトル) 小さな金属類〕 |
| 家庭ごみの戸別収集 | 一部実施(【ふれあい収集】家庭ごみ・粗大ごみを集積場所まで持ち出すことができない高齢者や障害のある方などを対象にごみ出しの支援を実施。【狭あい道路収集】道路が狭く収集車が通行することができないため、集積場所が自宅近くに設けられない地域において、軽四輪車でごみを収集) |
| 粗大ごみ収集 |
あり
|
| 生ごみ処理機助成金制度 |
なし 上限金額 - 上限比率 - |
暮らしデータ提供元:生活ガイド.com
※行政機関により公表していない地域及びデータがございます。東京23区以外の政令指定都市は、市全体のデータとして表示しています。
※提供データには細心の注意を払っておりますが、調査後に変更がある場合があります。 最新の情報につきましては各市区役所までお問い合わせいただくか、自治体HPなどをご確認ください。
※提供データには細心の注意を払っておりますが、調査後に変更がある場合があります。 最新の情報につきましては各市区役所までお問い合わせいただくか、自治体HPなどをご確認ください。
お気に入りの物件を見逃さない!
プッシュ通知で最新の物件情報が届く



