メイクスアート五反野 五反野駅 2LDK 賃貸(賃貸マンション・アパート)
2LDK / 五反野駅
- 情報提供元
- SUUMO
賃料14.7万円 / 管理費等12000円
-
9階建ての賃貸マンション
-
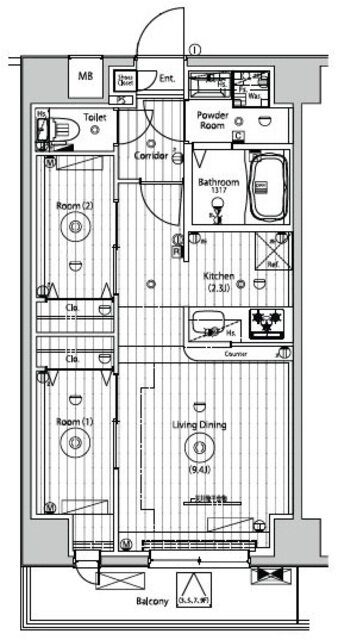
間取り
-
リビング
-
システムキッチン
-
バスルーム
-
シャワートイレ
-
シューズボックス
-
洋室
-
パウダールーム
-
エアコン
-
玄関
-
マックスバリュエクスプレス梅島店(スーパー)まで809m
-
マルエツプチ五反野駅店(スーパー)まで840m
-
ファミリーマート足立五反野駅前店(コンビニ)まで698m
-
どらっぐぱぱすカリブ梅島店(ドラッグストア)まで819m
-
どらっぐぱぱす五反野駅前店(ドラッグストア)まで831m
-
COCO’S足立五反野店(飲食店)まで572m
-
エントランス部分
-
駐車場
-
すき家800m
-
この物件が気になりましたか? 最新の空室状況は
問合せをすることで確認できます
- お問い合わせ先
- (株)クリエイト錦糸町本店
ネット無料・オートロック・バストイレ別・独立洗面台・エアコン この物件は初期費用分割できます。空室確認即時返答します。まずはお電話下さい。メール問い合わせも即時対応致します。
-
交通東武伊勢崎線 五反野駅 徒歩10分
東武伊勢崎線 小菅駅 徒歩16分
JR常磐線 北千住駅 徒歩26分
| 敷引・償却 | - |
|---|---|
| 更新料 | - |
| 契約期間 | |
| カード決済 | 初期費用カード決済可 |
| 建物名 | メイクスアート五反野 |
| 建物構造 | RC |
| 駐車場 | 近有 30,000円 |
| 現況 | |
| 入居可能時期 | 即時 |
| 住宅保険 | あり |
| 情報提供元 | SUUMO[030H100467217794] |
| 情報公開日 | |
| 情報更新日 | |
| 次回更新予定日 | 随時 |
地図
設備など
- バス・トイレ別
- 2階以上
- ペット相談可
-
駐車場
(近隣含) -
室内洗濯機
置き場 - エアコン
- 洗面所独立
- 追焚機能
- オートロック
設備
| バス・トイレ | バス・トイレ別、トイレ、浴室乾燥機、温水洗浄便座、浴トイレ別 |
|---|---|
| キッチン | ガスコンロ可、システムキッチン、コンロ2口以上 |
| 収納 | 収納スペース、クローゼット、シューズボックス |
| セキュリティ | オートロック、モニタ付インターホン、防犯カメラ |
| 室内設備 | 冷房、暖房、エアコン、洗濯機置場、洗面所、照明器具、衣類乾燥機、洗面所独立、室内洗濯機置き場 |
| 建物設備 | バルコニー、エレベーター、都市ガス、宅配BOX |
| 駐車場・駐輪場 | 駐輪場、バイク置き場 |
| テレビ・通信 | CATV、BS端子、CS、インターネット無料、インターネット対応 |
備考
損保要/ペット飼育の場合敷金2ヶ月(総額)/室内清掃代・エアコン清掃代1台あたり82500円/サポート料(火災保険含む)2200円/口座振替手数料550円/保証会社利用必:総賃料の80%・総賃料の1%/月/普通借家2年/二人入居可/ペット相談/楽器相談/フリーレント1ヶ月/この物件は初期費用分割できます。空室確認即時返答します。まずはお電話下さい。メール問い合わせも即時対応致します。清掃費用は借主負担です(^-^)1年未満解約で総賃料1.5ヵ月分の違約金あり。ペット相談可(小型犬または猫2匹まで):1匹につき敷金1ヵ月追加(償却)あり。/バストイレ別/バルコニー/エアコン/ガスコンロ対応/TVインターホン/浴室乾燥機/オートロック/室内洗濯置/シューズボックス/システムキッチン/温水洗浄便座/脱衣所/エレベーター/洗面所独立/洗面化粧台/駐輪場/宅配ボックス/CATV/光ファイバー/外壁タイル張り/即入居可/BS・CS/3口以上コンロ/防犯カメラ/ペット相談/照明付/グリル付/全居室洋室/保証人不要/敷金1ヶ月/二人入居相談/バイク置場/デザイナーズ/2沿線利用可/ネット専用回線/ネット使用料不要/フリーレント/眺望良好/ダブルロックキー/保証金不要/24時間換気システム/楽器相談/クロゼット2ヶ所/浴室未使用/トイレ未使用/3駅以上利用可/駅徒歩10分以内/24時間ゴミ出し可/敷地内ごみ置き場/キッチン未使用/都市ガス/洗面所にドア/三面鏡付洗面化粧台/高速ネット対応/礼金1ヶ月/初期費用カード決済可/巡回管理/マックスバリュエクスプレス梅島店(スーパー)まで809m/マルエツプチ五反野駅店(スーパー)まで840m/ファミリーマート足立五反野駅前店(コンビニ)まで698m/どらっぐぱぱすカリブ梅島店(ドラッグストア)まで819m/どらっぐぱぱす五反野駅前店(ドラッグストア)まで831m/COCO’S足立五反野店(飲食店)まで572m/賃貸戸数:61戸
続きを見る
特記事項
ペット相談可・楽器相談・二人入居可・外観タイル張り・フリーレント・管理人巡回・デザイナーズ物件・保証人不要/代行 ・初期費用カード決済可
省エネ性能
| エネルギー消費性能 | - |
|---|---|
| 断熱性能 | - |
| 目安光熱費 | - |
- お問い合わせ先
- (株)クリエイト錦糸町本店
不動産会社情報
お問い合わせ先
| 商号 | (株)クリエイト錦糸町本店 |
|---|---|
| 免許番号 | 東京都知事(1)第102042号 |
| 所在地 | 東京都墨田区錦糸3-3-1 太田ビル5階 |
| TEL | 0120-934320 |
| 取引態様 | 仲介 |
| 管理コード | 68098518 |
| 所属協会など | (公社)首都圏不動産公正取引協議会加盟、(公社)東京都宅地建物取引業協会会員 |
この地域の暮らしデータ
足立区の人口などの統計情報
| 世帯数 | 345010世帯 |
|---|---|
| 人口総数 | 693223人 |
| 転入者数 |
44256人 転入率(人口1000人当たり) 63.84人 |
| 転出者数 |
35899人 転出率(人口1000人当たり) 51.79人 |
| 土地平均価格 |
住宅地 371926円/m2 商業地 646909円/m2 |
足立区の結婚・育児の助成金
| 出産・子育て | |
|---|---|
| 子育て関連の独自の取り組み | (1)病児保育(在宅型)利用料金の助成。(2)あだちはじめてえほん事業。(3)あだち幼保小接続期カリキュラム。(4)あだちっ子歯科健診。(5)保育士・幼稚園教諭奨学金返済支援事業補助金。(6)保育士・幼稚園教諭住居借上げ支援事業補助金。(7)保育従事者永年勤続褒賞。(8)足立区教育・保育の質ガイドライン。(9)病児保育(施設型)。 |
| 出産祝い |
あり
|
| 公立保育所数 |
40ヶ所 0歳児保育を実施 21ヶ所 |
| 私立保育所数 |
113ヶ所 0歳児保育を実施 106ヶ所 |
| 保育所入所待機児童数 | 5人 |
| 認定こども園数 | 7園 |
| 預かり保育実施園数-公立 | - |
| 預かり保育実施園数-私立 | 45園 |
| 学校給食 | 【小学校】完全給食【中学校】完全給食 |
| 公立中学校の学校選択制 | 実施(自由選択制) |
| 子ども・学生等医療費助成<通院>対象年齢 | 18歳3月末まで |
| 子ども・学生等医療費助成<入院>対象年齢 | 18歳3月末まで |
足立区の治安・ごみ収集情報
| 公共料金・インフラ | |
|---|---|
| ガス料金(22m3使用した場合の月額) | 東京瓦斯株式会社(東京地区等)3926円 |
| 水道料金(口径20mmで20m3の月額) | 東京都水道局2816円 |
| 下水道料金(20m3を使用した場合の月額) | 東京都下水道局2068円 |
| 下水道普及率 | 99.9% |
| 安心・安全 | |
| 建物火災出火件数 |
142件 人口10000人当たり 2.04件 |
| 刑法犯認知件数 |
4222件 人口1000人当たり 6.07件 |
| ハザード・防災マップ | あり |
| 医療 | |
| 一般病院総数 | 54ヶ所 |
| 一般診療所総数 | 454ヶ所 |
| 小児科医師数 |
144人 小児人口10000人当たり 19.86人 |
| 産婦人科医師数 |
26人 15~49歳女性人口1万人当たり 1.79人 |
| 介護保険料基準額(月額) | 6750円 |
| ごみ | |
| 家庭ごみ収集(可燃ごみ) |
無料
|
| 家庭ごみの分別方式 | 3分別10種〔可燃ごみ 不燃ごみ 資源(古紙[新聞、雑誌類、雑がみ、段ボール、紙パック]、びん、缶、ペットボトル)〕千住、新田、宮城・小台のみ4分別12種〔可燃ごみ 不燃ごみ 資源(古紙[新聞、雑誌類、雑がみ、段ボール、紙パック]、びん、缶、ペットボトル) プラスチック(プラスチック製容器包装、製品プラスチック)〕 |
| 家庭ごみの戸別収集 | 一部実施(次のいずれか位に該当する者のみで構成される世帯で、世帯員が集積所までごみを持ち出すことが困難であり、かつ、世帯員以外の者の協力を得ることが出来ない方。[1]要介護2以上に認定されている者。[2]身体障害者手帳1級又は2級に認定されている者。[3]その他自ら集積所にごみを出すことが困難であると区長が認める者) |
| 粗大ごみ収集 |
あり
|
| 生ごみ処理機助成金制度 |
あり 上限金額 20000円 上限比率 50.0% |
暮らしデータ提供元:生活ガイド.com
※行政機関により公表していない地域及びデータがございます。東京23区以外の政令指定都市は、市全体のデータとして表示しています。
※提供データには細心の注意を払っておりますが、調査後に変更がある場合があります。 最新の情報につきましては各市区役所までお問い合わせいただくか、自治体HPなどをご確認ください。
※提供データには細心の注意を払っておりますが、調査後に変更がある場合があります。 最新の情報につきましては各市区役所までお問い合わせいただくか、自治体HPなどをご確認ください。
お気に入りの物件を見逃さない!
プッシュ通知で最新の物件情報が届く


