広島県福山市野上町1丁目 福山駅 6LK 賃貸(賃貸マンション・アパート)
6LK / 福山駅
- 情報提供元
- アットホーム
賃料7.5万円 / 管理費等なし
-
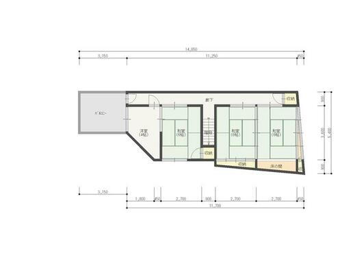
2F間取図
-
1F間取図
-
外観
-
この物件が気になりましたか? 最新の空室状況は
問合せをすることで確認できます
- お問い合わせ先
- 福山元町地所(株)
-
交通JR山陽本線 福山駅 バス6分/「商工中金前」バス停 停歩2分
| 敷引・償却 | - |
|---|---|
| 更新料 | 新賃料の1ヶ月分 |
| 契約期間 | 2年 |
| カード決済 | - |
| 建物名 | |
| 建物構造 | 木造 |
| 駐車場 | 有 無料 |
| 現況 | 空 |
| 入居可能時期 | 即時 |
| 住宅保険 | あり |
| 情報提供元 | アットホーム[6985123346] |
| 情報公開日 | |
| 情報更新日 | - |
| 次回更新予定日 | 随時 |
地図
設備など
- バス・トイレ別
- 2階以上
- ペット相談可
-
駐車場
(近隣含) -
室内洗濯機
置き場 - エアコン
- 洗面所独立
- 追焚機能
- オートロック
設備
| バス・トイレ | バス・トイレ別、トイレ、シャワー |
|---|---|
| キッチン | システムキッチン、IHクッキングヒータ |
| 収納 | 収納スペース、シューズボックス |
| 室内設備 | エアコン、洗面台 |
| 建物設備 | バルコニー |
| 駐車場・駐輪場 | 駐輪場、バイク置き場 |
備考
駐車場は物件の道を挟んだ反対側の駐車場です ・賃貸保証等:加入要(フォーシーズ株式会社の賃貸保証に加入頂きます。 初回保証委託料は賃料1ヶ月分お支払頂きます。)・土間付き物件!店舗としても活用可 倉庫・屋内駐輪場としても利用可!部屋数多い6LK・バイク置場:有(無料)・駐輪場:有(無料)
続きを見る
特記事項
省エネ性能
| エネルギー消費性能 | - |
|---|---|
| 断熱性能 | - |
| 目安光熱費 | - |
- お問い合わせ先
- 福山元町地所(株)
アピールポイント
福山駅前通りへのアクセスがよく、公共施設やお買い物にも便利な環境です
不動産会社情報
お問い合わせ先
| 商号 | 福山元町地所(株) |
|---|---|
| 免許番号 | 広島県知事免許(5)第8976号 |
| 所在地 | 福山市元町15-22 |
| TEL | 084-920-1458 |
| 取引態様 | 仲介 |
| 管理コード | - |
| 所属協会など | (公社)広島県宅地建物取引業協会会員、中国地区不動産公正取引協議会加盟 |
この地域の暮らしデータ
福山市の人口などの統計情報
| 世帯数 | 192976世帯 |
|---|---|
| 人口総数 | 458192人 |
| 転入者数 |
14811人 転入率(人口1000人当たり) 32.32人 |
| 転出者数 |
14463人 転出率(人口1000人当たり) 31.57人 |
| 土地平均価格 |
住宅地 46179円/m2 商業地 128765円/m2 |
福山市の結婚・育児の助成金
| 出産・子育て | |
|---|---|
| 子育て関連の独自の取り組み | (1)妊娠・出産・子育てに関する総合相談窓口(福山ネウボラ相談窓口「愛称:あのね」)を13ヶ所開設。(2)市の子育て支援施策を網羅したガイドを作成。(3)インフルエンザ予防接種費用の一部助成。 |
| 出産祝い |
あり
|
| 公立保育所数 |
43ヶ所 0歳児保育を実施 19ヶ所 |
| 私立保育所数 |
20ヶ所 0歳児保育を実施 20ヶ所 |
| 保育所入所待機児童数 | 0人 |
| 認定こども園数 | 56園 |
| 預かり保育実施園数-公立 | 7園 |
| 預かり保育実施園数-私立 | - |
| 学校給食 | 【小学校】完全給食【中学校】完全給食 |
| 公立中学校の学校選択制 | 実施(新入学時のみ) |
| 子ども・学生等医療費助成<通院>対象年齢 | 中学校卒業まで |
| 子ども・学生等医療費助成<入院>対象年齢 | 中学校卒業まで |
福山市の治安・ごみ収集情報
| 公共料金・インフラ | |
|---|---|
| ガス料金(22m3使用した場合の月額) | 広島ガス株式会社5505円 福山瓦斯株式会社5279円 |
| 水道料金(口径20mmで20m3の月額) | 福山市2761円 |
| 下水道料金(20m3を使用した場合の月額) | 福山市2926円 |
| 下水道普及率 | 76.3% |
| 安心・安全 | |
| 建物火災出火件数 |
49件 人口10000人当たり 1.06件 |
| 刑法犯認知件数 |
2653件 人口1000人当たり 5.76件 |
| ハザード・防災マップ | あり |
| 医療 | |
| 一般病院総数 | 35ヶ所 |
| 一般診療所総数 | 344ヶ所 |
| 小児科医師数 |
81人 小児人口10000人当たり 14.00人 |
| 産婦人科医師数 |
44人 15~49歳女性人口1万人当たり 5.13人 |
| 介護保険料基準額(月額) | 6483円 |
| ごみ | |
| 家庭ごみ収集(可燃ごみ) |
無料
|
| 家庭ごみの分別方式 | 9分別13種〔燃やせるごみ 不燃(破砕)ごみ 容器包装プラスチックごみ 資源ごみ(ガラスビン類・金属類・缶類・ストーブ類、スプレー缶・カセットボンベ) 蛍光灯 使用済み乾電池(乾電池、充電式電池) ビデオテープ類 ライター類 紙類(新聞、雑誌、段ボール)〕 |
| 家庭ごみの戸別収集 | 未実施 |
| 粗大ごみ収集 |
あり
|
| 生ごみ処理機助成金制度 |
なし 上限金額 - 上限比率 - |
暮らしデータ提供元:生活ガイド.com
※行政機関により公表していない地域及びデータがございます。東京23区以外の政令指定都市は、市全体のデータとして表示しています。
※提供データには細心の注意を払っておりますが、調査後に変更がある場合があります。 最新の情報につきましては各市区役所までお問い合わせいただくか、自治体HPなどをご確認ください。
※提供データには細心の注意を払っておりますが、調査後に変更がある場合があります。 最新の情報につきましては各市区役所までお問い合わせいただくか、自治体HPなどをご確認ください。
お気に入りの物件を見逃さない!
プッシュ通知で最新の物件情報が届く



