賃貸マンション

物件詳細

情報提供元
スモッカ
賃料 7.3万円  (管理費等:3000円)
礼金・敷金 7.3万円 / 7.3万円 保証金/敷引・償却 なし / -
交通
  • 東京メトロ南北線 本駒込駅 徒歩1分
  • 都営地下鉄三田線 白山駅 徒歩4分
所在地 東京都文京区本駒込1丁目
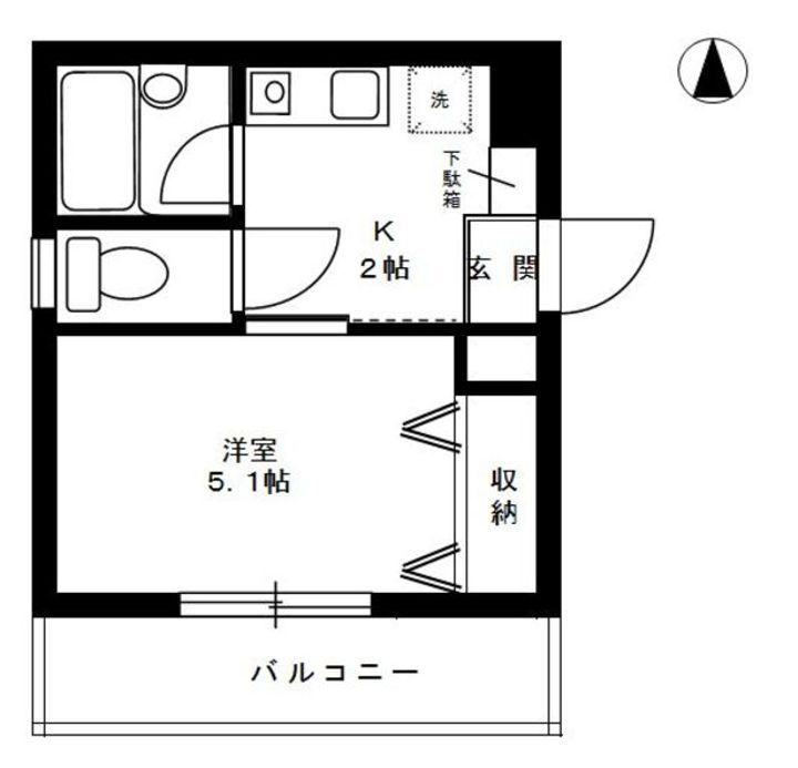
間取り 1K 専有面積 18.67m2
築年月 1997年6月 築年数 築28年7ヶ月
おすすめポイント
2階以上の物件・最上階・角部屋・南向き

詳細情報

賃料 7.3万円 管理費等 3000円
敷金 7.3万円 礼金 7.3万円
保証金 なし 敷引・償却 -
更新料 - 契約期間 定期借家 1年
カード決済 -
所在地 東京都文京区本駒込1丁目
交通
  • 東京メトロ南北線 本駒込駅 徒歩1分
  • 都営地下鉄三田線 白山駅 徒歩4分
建物名  
間取り 1K(K 2.0帖、洋室 5.1帖) 築年月(築年数) 1997年6月(築28年7ヶ月)
専有面積 18.67㎡ 所在階/階数 4階/4階建
建物構造 鉄骨  方位 南 
現況   駐車場
入居可能時期 相談 住宅保険 あり住宅保険
情報提供元 スモッカ[housecom2_HC5-883774-402-0046] 情報公開日
情報更新日 - 次回更新予定日 随時

設備など

2階以上 最上階 角部屋
駐車場(近隣含) - エアコン付き バス・トイレ別
室内洗濯機置き場 追焚機能 - オートロック付き -
モニタ付インターホン - フローリング バルコニー
ガスコンロ可 - 浴室乾燥機 - 24時間セキュリティ -
宅配ボックス - ペット相談可 - 二人入居可 -
設備 ガスコンロ・バス・トイレ別・エアコン・フローリング・室内洗濯機置き場・バルコニー・都市ガス 
リフォーム履歴 -
リノベーション履歴 -
備考 Art Club 1320円  鍵交換費:22,000円 その他費用(諸費用:0.33万円/町内会費:0.18万円):5,100円 更新料:0.5ヶ月 保証会社:利用必須  ※月額費用の50%(スカイレント加入料下限20000円)月額保証料1000円 駐車場備考:無し 
特記事項 2階以上の物件・最上階・角部屋・南向き

不動産会社情報

お問い合わせ先 商号:ハウスコム東東京株式会社 日暮里店
免許番号:東京都知事免許(1)第108283号
所在地:東京都荒川区西日暮里2丁目25-1 ステーションガーデンタワー 1階
TEL:0800-170-0543
取引態様:仲介
管理コード:HC5-883774-402-0046
所属協会など:公益社団法人 首都圏不動産公正取引協議会
共有する
QRコード
  • QRコードからスマートフォン・ケータイでも物件情報を見ることができます。

文京区の暮らしデータ

人口などの統計情報

世帯数 133564世帯
人口総数 232177人
転入者数 23087人
転入率(人口1000人当たり)
99.44人
転出者数 20326人
転出率(人口1000人当たり)
87.55人
土地平均価格
住宅地
1119571円/m2
商業地
1933636円/m2

文京区の治安・ごみ収集情報

公共料金・インフラ

ガス料金(22m3使用した場合の月額) -
水道料金(口径20mmで20m3の月額) -
下水道料金(20m3を使用した場合の月額) -
下水道普及率 100.0%

安心・安全

建物火災出火件数 61件
人口10000人当たり
2.54件
刑法犯認知件数 1104件
人口1000人当たり
4.60件
ハザード・防災マップ あり

医療

一般病院総数 9ヶ所
一般診療所総数 309ヶ所
小児科医師数 253人
小児人口10000人当たり
85.84人
産婦人科医師数 159人
15~49歳女性人口1万人当たり
27.49人
介護保険料基準額(月額) 6107円

ごみ

家庭ごみ収集(可燃ごみ) 無料
備考
1回当たりに45リットル袋で4袋を超えるごみは有料。
家庭ごみの分別方式 3分別9種〔可燃ごみ 不燃ごみ 資源(新聞、雑誌、ダンボール、雑がみ、ビン、カン、ペットボトル)〕 拠点回収:資源(紙パック 乾電池 発泡スチロール食品トレイ 衣類 プラスチック製ボトル容器 インクカートリッジ 蛍光管 水銀使用計器類、携帯電話、スマートフォン)
家庭ごみの戸別収集 一部実施(訪問収集)
粗大ごみ収集 あり
備考
有料。事前申込制。
生ごみ処理機助成金制度 あり
上限金額
20000円
上限比率
50.0%
暮らしデータ提供元:生活ガイド.com
※行政機関により公表していない地域及びデータがございます。東京23区以外の政令指定都市は、市全体のデータとして表示しています。
※提供データには細心の注意を払っておりますが、調査後に変更がある場合があります。 最新の情報につきましては各市区役所までお問い合わせいただくか、自治体HPなどをご確認ください。
アプリで簡単 物件探し 大手不動産サイトの情報から一括検!プッシュ通知で物件を見逃さない
App Storeからダウンロード Google Playで手に入れよう QRコード