
 
| 賃料 | 6.52万円 (管理費等:5800円) | ||
|---|---|---|---|
| 礼金・敷金 | なし / 2ヶ月 | 保証金/敷引・償却 | なし / - | 
| 交通 | 
 | ||
| 所在地 | 愛知県小牧市城山1丁目 | ||
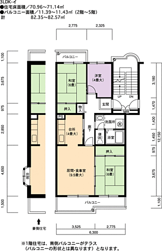
| 間取り | 3LDK | 専有面積 | 71.14m2 | 
| 築年月 | 1993年12月 | 築年数 | 築31年11ヶ月 | 
| 賃料 | 6.52万円 | 管理費等 | 5800円 | 
|---|---|---|---|
| 敷金 | 2ヶ月 | 礼金 | なし | 
| 保証金 | なし | 敷引・償却 | - | 
| 更新料 | 更新料なし | 契約期間 | 1年 | 
| カード決済 | - | ||
| 所在地 | 愛知県小牧市城山1丁目 | ||
| 交通 | 
 | ||
| 建物名 | URコンフォール城山 | ||
| 間取り | 3LDK(和 6.0・6.0・6.0 洋 4.0 K 4.0 LD 9.5) | 築年月(築年数) | 1993年12月(築31年11ヶ月) | 
| 専有面積 | 71.14㎡ | 所在階/階数 | 2階/5階建 | 
| 建物構造 | RC | 方位 | 南 | 
| 現況 | 空 | 駐車場 | 有 6,050円 | 
| 入居可能時期 | 即時 | 住宅保険 | なし | 
| 情報提供元 | LIFULL HOME'S[1269610008024] | 情報公開日 | |
| 情報更新日 | 次回更新予定日 | 随時 | |

| 2階以上 | ○ | 最上階 | - | 角部屋 | ○ | 
|---|---|---|---|---|---|
| 駐車場(近隣含) | ○ | エアコン付き | - | バス・トイレ別 | ○ | 
| 室内洗濯機置き場 | ○ | 追焚機能 | ○ | オートロック付き | - | 
| モニタ付インターホン | - | フローリング | - | バルコニー | ○ | 
| ガスコンロ可 | - | 浴室乾燥機 | - | 24時間セキュリティ | - | 
| 宅配ボックス | - | ペット相談可 | - | 二人入居可 | - | 
| 設備 | 都市ガス・バス・トイレ別・給湯・追焚機能・室内洗濯機置き場・CATV・BS端子・バルコニー・駐輪場・光ファイバー(ブロードバンド)・洗面所独立 | ||||
| リフォーム履歴 | - | ||||
| リノベーション履歴 | - | ||||
| 備考 | 【設備・特記事項備考】単身者希望/賃貸戸数:30戸 | ||||
| 特記事項 | 駐車場3台分以上・見学予約可・保証人不要/代行 ・角部屋 | ||||
| エネルギー消費性能 | - | 
|---|---|
| 断熱性能 | - | 
| 目安光熱費 | - | 
| お問い合わせ先 | 商号:独立行政法人都市再生機構 UR高蔵寺営業センター 免許番号:- 所在地:愛知県春日井市中央台1丁目2-2 「サンマルシェ南館」内 TEL:0568-91-6112 取引態様:貸主 管理コード:8024 所属協会など:所属団体未加入 | 共有する | 
 | 
|---|

| 世帯数 | 62568世帯 | 
|---|---|
| 人口総数 | 149715人 | 
| 転入者数 | 7746人 
 | 
| 転出者数 | 7677人 
 | 
| 土地平均価格 | 
 | 
| ガス料金(22m3使用した場合の月額) | - | 
|---|---|
| 水道料金(口径20mmで20m3の月額) | - | 
| 下水道料金(20m3を使用した場合の月額) | - | 
| 下水道普及率 | 78.3% | 
| 建物火災出火件数 | 33件 
 | 
|---|---|
| 刑法犯認知件数 | 951件 
 | 
| ハザード・防災マップ | あり | 
| 一般病院総数 | 3ヶ所 | 
|---|---|
| 一般診療所総数 | 103ヶ所 | 
| 小児科医師数 | 39人 
 | 
| 産婦人科医師数 | 10人 
 | 
| 介護保険料基準額(月額) | 4906円 | 
| 家庭ごみ収集(可燃ごみ) | 無料 
 | 
|---|---|
| 家庭ごみの分別方式 | 3分別17種〔燃やすごみ 破砕ごみ 資源ごみ(プラスチック類、空きびん、空き缶、ペットボトル、金属類、危険ごみ、古紙[雑誌、新聞紙、段ボール、飲料用紙パック]、雑がみ、古布類、蛍光管類、剪定枝類)〕 拠点回収:廃食用油 剪定枝類 家庭系パソコン 携帯電話 ※羽毛ふとん(ダウン50%以上)は拠点回収場所に持ち込んだものは資源ごみ | 
| 家庭ごみの戸別収集 | 一部実施(こまやか収集[一部地域のみ実施]) | 
| 粗大ごみ収集 | あり 
 | 
| 生ごみ処理機助成金制度 | あり 
 |