| 賃料 |
5.8万円 (管理費等:8000円) |
| 礼金・敷金 |
なし / なし |
保証金/敷引・償却 |
なし / - |
| 交通 |
- 名古屋市鶴舞線 鶴舞駅 徒歩6分
- 中央本線 鶴舞駅 徒歩6分
- 名古屋市東山線 新栄町駅 徒歩16分
|
| 所在地 |
愛知県名古屋市中区千代田5丁目 |
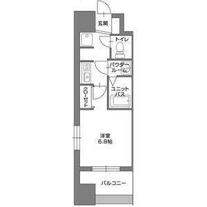
| 間取り |
1K |
専有面積 |
24.25m2 |
| 築年月 |
2008年6月 |
築年数 |
築17年7ヶ月 |
- おすすめポイント
- 角部屋・管理人巡回・24時間換気システム・デザイナーズ物件・保証人不要/代行 ・初期費用カード決済可
詳細情報
| 賃料 |
5.8万円 |
管理費等 |
8000円 |
| 敷金 |
なし |
礼金 |
なし |
| 保証金 |
なし |
敷引・償却 |
- |
| 更新料 |
新賃料の0.5ヶ月分 |
契約期間 |
2年 |
| カード決済 |
初期費用カード決済可 |
| 所在地 |
愛知県名古屋市中区千代田5丁目 |
| 交通 |
- 名古屋市鶴舞線 鶴舞駅 徒歩6分
- 中央本線 鶴舞駅 徒歩6分
- 名古屋市東山線 新栄町駅 徒歩16分
|
| 建物名 |
インプルーブ鶴舞 |
| 間取り |
1K(洋室6.8畳) |
築年月(築年数) |
2008年6月(築17年7ヶ月)
|
| 専有面積 |
24.25㎡ |
所在階/階数 |
12階/14階建
|
| 建物構造 |
RC |
方位 |
南 |
| 現況 |
空 |
駐車場 |
近有 19,800円 |
| 入居可能時期 |
即時 |
住宅保険 |
あり |
| 情報提供元 |
アットホーム[1179624811] |
情報公開日 |
|
| 情報更新日 |
- |
次回更新予定日 |
随時 |
設備など
| 2階以上 |
○ |
最上階 |
- |
角部屋 |
○ |
| 駐車場(近隣含) |
○ |
エアコン付き |
○ |
バス・トイレ別 |
○ |
| 室内洗濯機置き場 |
○ |
追焚機能 |
- |
オートロック付き |
○ |
| モニタ付インターホン |
○ |
フローリング |
○ |
バルコニー |
○ |
| ガスコンロ可 |
- |
浴室乾燥機 |
○ |
24時間セキュリティ |
- |
| 宅配ボックス |
○ |
ペット相談可 |
- |
二人入居可 |
- |
| 設備 |
冷房・暖房・エアコン・給湯・オートロック・バルコニー・バス・トイレ別・トイレ・収納スペース・洗濯機置場・室内洗濯機置き場・シャワー・エレベーター・CATV・BS端子・都市ガス・洗面台・フローリング・浴室乾燥機・シャンプードレッサ・温水洗浄便座・システムキッチン・モニタ付インターホン・宅配BOX・駐輪場・クローゼット・CS・防犯カメラ・洗面所独立・バイク置き場・コンロ2口以上・シューズボックス・光ファイバー(ブロードバンド)・インターネット対応・インターネット無料 |
| リフォーム履歴 |
- |
| リノベーション履歴 |
- |
| 備考 |
LINE・メール・お電話でのやり取りも可・維持費等:フェニックスプライム2,200円/月・管理形態/管理員の勤務形態:巡回・☆お部屋探しはスタイルエステート金山支店☆・バイク置場:有・駐輪場:有/鍵交換代 27500円 |
| 特記事項 |
角部屋・管理人巡回・24時間換気システム・デザイナーズ物件・保証人不要/代行 ・初期費用カード決済可 |
アピールポイント
LINE・メール・お電話でのやり取りも可能!!名古屋市内でのお部屋探しはスタイルエステート金山支店にお任せ下さい!☆経験豊富なルームアドバイザーがお客様に最適のお部屋をご紹介いたします☆
不動産会社情報
| お問い合わせ先 |
商号:(株)エムホームエステート スタイルエステート金山支店 免許番号:愛知県知事免許(3)第22094号 所在地:名古屋市中区金山2丁目1-21アサック店舗1階 TEL:052-321-9800 取引態様:仲介 管理コード:1101733194950000575295 所属協会など:(公社)愛知県宅地建物取引業協会会員、東海不動産公正取引協議会加盟
|
共有する |
- QRコードからスマートフォン・ケータイでも物件情報を見ることができます。
|
名古屋市中区の暮らしデータ
人口などの統計情報
| 世帯数 |
1119847世帯 |
| 人口総数 |
2297745人 |
| 転入者数 |
168667人
- 転入率(人口1000人当たり)
- 73.41人
|
| 転出者数 |
154544人
- 転出率(人口1000人当たり)
- 67.26人
|
| 土地平均価格 |
- 住宅地
- 223115円/m2
- 商業地
- 1106619円/m2
|
名古屋市中区の治安・ごみ収集情報
公共料金・インフラ
| ガス料金(22m3使用した場合の月額) |
- |
| 水道料金(口径20mmで20m3の月額) |
- |
| 下水道料金(20m3を使用した場合の月額) |
- |
| 下水道普及率 |
99.4% |
安心・安全
| 建物火災出火件数 |
355件
- 人口10000人当たり
- 1.52件
|
| 刑法犯認知件数 |
19857件
- 人口1000人当たり
- 8.51件
|
| ハザード・防災マップ |
あり |
医療
| 一般病院総数 |
110ヶ所 |
| 一般診療所総数 |
2272ヶ所 |
| 小児科医師数 |
770人
- 小児人口10000人当たり
- 28.40人
|
| 産婦人科医師数 |
319人
- 15~49歳女性人口1万人当たり
- 6.72人
|
| 介護保険料基準額(月額) |
6951円 |
ごみ
| 家庭ごみ収集(可燃ごみ) |
無料
|
| 家庭ごみの分別方式 |
5分別9種〔可燃ごみ 不燃ごみ 発火性危険物 電池類 資源(プラスチック資源、紙製容器包装・雑がみ、ペットボトル、空きびん、空き缶)〕 拠点回収:資源(ペットボトル 紙パック 食用油 小型家電 充電式家電 蛍光管・水銀体温計・水銀温度計) |
| 家庭ごみの戸別収集 |
実施(可燃ごみ、不燃ごみ、発火性危険物、電池類、プラスチック資源のみ。紙製容器包装・雑がみ、ペットボトル、空きびん、空き缶はステーション収集) |
| 粗大ごみ収集 |
あり
|
| 生ごみ処理機助成金制度 |
なし
- 上限金額
- -
- 上限比率
- -
|
暮らしデータ提供元:生活ガイド.com
※行政機関により公表していない地域及びデータがございます。東京23区以外の政令指定都市は、市全体のデータとして表示しています。
※提供データには細心の注意を払っておりますが、調査後に変更がある場合があります。 最新の情報につきましては各市区役所までお問い合わせいただくか、自治体HPなどをご確認ください。
- ※不動産の賃借に関しては、賃借者ご自身が情報を確認し、各企業より十分な説明を受けて判断してください。
- ※ご利用の環境や設定によっては、A4サイズで印刷できないことがあります。