賃貸アパート

物件詳細

情報提供元
アットホーム
外観
賃料 6.3万円  (管理費等:4000円)
礼金・敷金 1ヶ月 / なし 保証金/敷引・償却 なし / -
交通
  • 名古屋市東山線 中村日赤駅 徒歩8分
  • 名古屋市東山線 中村公園駅 徒歩9分
  • 名古屋市東山線 本陣駅 徒歩16分
所在地 愛知県名古屋市中村区中村町6丁目
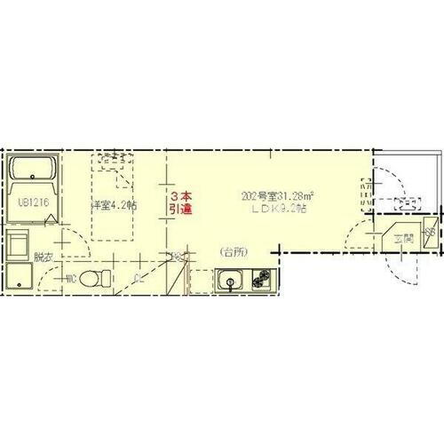
間取り 1LDK 専有面積 31.28m2
築年月 2019年3月 築年数 築6年10ヶ月
おすすめポイント
二人入居可・角部屋・管理人巡回・24時間換気システム・保証人不要/代行 ・初期費用カード決済可

詳細情報

賃料 6.3万円 管理費等 4000円
敷金 なし 礼金 1ヶ月
保証金 なし 敷引・償却 -
更新料 - 契約期間 2年
カード決済 初期費用カード決済可
所在地 愛知県名古屋市中村区中村町6丁目
交通
  • 名古屋市東山線 中村日赤駅 徒歩8分
  • 名古屋市東山線 中村公園駅 徒歩9分
  • 名古屋市東山線 本陣駅 徒歩16分
建物名  
間取り 1LDK(洋室4.2畳/LDK9.2畳) 築年月(築年数) 2019年3月(築6年10ヶ月)
専有面積 31.28㎡ 所在階/階数 2階/3階建
建物構造 木造  方位 北 
現況   駐車場 近有 8,800円
入居可能時期 2025年12月下旬 住宅保険 あり
情報提供元 アットホーム[1047144496] 情報公開日
情報更新日 - 次回更新予定日 随時

設備など

2階以上 最上階 - 角部屋
駐車場(近隣含) エアコン付き バス・トイレ別
室内洗濯機置き場 追焚機能 オートロック付き
モニタ付インターホン フローリング バルコニー
ガスコンロ可 - 浴室乾燥機 24時間セキュリティ -
宅配ボックス ペット相談可 - 二人入居可
設備 冷房・暖房・エアコン・給湯・オートロック・バルコニー・バス・トイレ別・トイレ・収納スペース・洗濯機置場・室内洗濯機置き場・シャワー・追焚機能・プロパンガス・洗面台・フローリング・浴室乾燥機・温水洗浄便座・システムキッチン・モニタ付インターホン・宅配BOX・クローゼット・洗面所独立・コンロ2口以上・シューズボックス・光ファイバー(ブロードバンド)・インターネット対応・インターネット無料 
リフォーム履歴 -
リノベーション履歴 -
備考 駐車場の空き状況は別途お問い合わせ下さい24時間換気システム,2口コンロ,3点給湯,TVインターホン,エアコン,ガスキッチン,ガスコンロ設置・賃貸保証等:加入要(連帯保証人有りの場合、初回保証料30,000円。更新料10,000円/1年。連帯保証人無しの場合、初回保証料50,000円。更新料10,000円/1年。)・維持費等:町内会費300円/月・管理形態/管理員の勤務形態:巡回・24時間換気システム,2口コンロ,3点給湯,TVインターホン,エアコン,ガスキッチン,ガスコンロ設置済,ガス給湯,クローゼット,システムキッチン,シャワー,シューズボックス,トイレ有,ネット使用料不要/退去時クリーニング代 46200円 /インターネット開通サービス 16500円 /鍵交換代 22000円  
特記事項 二人入居可・角部屋・管理人巡回・24時間換気システム・保証人不要/代行 ・初期費用カード決済可

省エネ性能

エネルギー消費性能 -
断熱性能 -
目安光熱費 -

不動産会社情報

お問い合わせ先 商号:スタイルエステート 名古屋駅前支店 (株)エムホームエステート
免許番号:愛知県知事免許(3)第22094号
所在地:名古屋市中村区太閤1丁目22-13恒川ビル2F
TEL:052-459-0500
取引態様:仲介
管理コード:1101733194950000318653
所属協会など:(公社)愛知県宅地建物取引業協会会員、東海不動産公正取引協議会加盟
共有する
QRコード
  • QRコードからスマートフォン・ケータイでも物件情報を見ることができます。

名古屋市中村区の暮らしデータ

人口などの統計情報

世帯数 1119847世帯
人口総数 2297745人
転入者数 168667人
転入率(人口1000人当たり)
73.41人
転出者数 154544人
転出率(人口1000人当たり)
67.26人
土地平均価格
住宅地
223115円/m2
商業地
1106619円/m2

名古屋市中村区の治安・ごみ収集情報

公共料金・インフラ

ガス料金(22m3使用した場合の月額) -
水道料金(口径20mmで20m3の月額) -
下水道料金(20m3を使用した場合の月額) -
下水道普及率 99.4%

安心・安全

建物火災出火件数 355件
人口10000人当たり
1.52件
刑法犯認知件数 19857件
人口1000人当たり
8.51件
ハザード・防災マップ あり

医療

一般病院総数 110ヶ所
一般診療所総数 2272ヶ所
小児科医師数 770人
小児人口10000人当たり
28.40人
産婦人科医師数 319人
15~49歳女性人口1万人当たり
6.72人
介護保険料基準額(月額) 6951円

ごみ

家庭ごみ収集(可燃ごみ) 無料
備考
指定ごみ袋制だが、袋代にごみ収集・処理料金等を含まず。
家庭ごみの分別方式 5分別9種〔可燃ごみ 不燃ごみ 発火性危険物 電池類 資源(プラスチック資源、紙製容器包装・雑がみ、ペットボトル、空きびん、空き缶)〕 拠点回収:資源(ペットボトル 紙パック 食用油 小型家電 充電式家電 蛍光管・水銀体温計・水銀温度計)
家庭ごみの戸別収集 実施(可燃ごみ、不燃ごみ、発火性危険物、電池類、プラスチック資源のみ。紙製容器包装・雑がみ、ペットボトル、空きびん、空き缶はステーション収集)
粗大ごみ収集 あり
備考
有料。各戸収集。事前申込制。月1回収集で手数料(品目ごとに250円、500円、1,000円、1,500円)が必要。粗大ごみ受付センターにインターネットもしくは電話にて申し込み。
生ごみ処理機助成金制度 なし
上限金額
-
上限比率
-
暮らしデータ提供元:生活ガイド.com
※行政機関により公表していない地域及びデータがございます。東京23区以外の政令指定都市は、市全体のデータとして表示しています。
※提供データには細心の注意を払っておりますが、調査後に変更がある場合があります。 最新の情報につきましては各市区役所までお問い合わせいただくか、自治体HPなどをご確認ください。
アプリで簡単 物件探し 大手不動産サイトの情報から一括検!プッシュ通知で物件を見逃さない
App Storeからダウンロード Google Playで手に入れよう QRコード