賃貸マンション

物件詳細

情報提供元
アットホーム
ルインズⅡ
賃料 5.7万円  (管理費等:4000円)
礼金・敷金 なし / なし 保証金/敷引・償却 なし / -
交通
  • JR御殿場線 長泉なめり駅 徒歩19分
所在地 静岡県裾野市伊豆島田
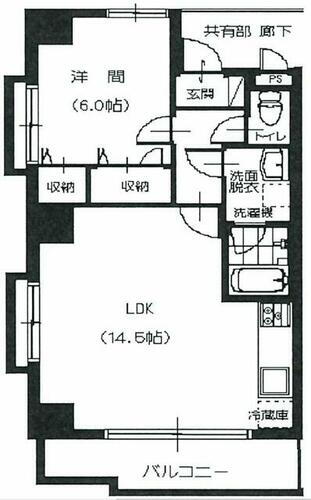
間取り 1LDK 専有面積 47.16m2
築年月 2005年10月 築年数 築20年3ヶ月

詳細情報

賃料 5.7万円 管理費等 4000円
敷金 なし 礼金 なし
保証金 なし 敷引・償却 -
更新料 10000円 契約期間 2年
カード決済 -
所在地 静岡県裾野市伊豆島田
交通
  • JR御殿場線 長泉なめり駅 徒歩19分
建物名 ルインズⅡ 
間取り 1LDK(洋 6 LDK 14.5) 築年月(築年数) 2005年10月(築20年3ヶ月)
専有面積 47.16㎡ 所在階/階数 3階/4階建
建物構造 RC  方位  
現況 空  駐車場 有 5,500円
入居可能時期 即時 住宅保険 あり家財 2年 15400円
情報提供元 アットホーム[6977125560] 情報公開日
情報更新日 - 次回更新予定日 随時

設備など

2階以上 最上階 - 角部屋 -
駐車場(近隣含) エアコン付き バス・トイレ別
室内洗濯機置き場 - 追焚機能 - オートロック付き
モニタ付インターホン フローリング バルコニー -
ガスコンロ可 - 浴室乾燥機 24時間セキュリティ -
宅配ボックス ペット相談可 - 二人入居可 -
設備 エアコン・給湯・オートロック・バス・トイレ別・トイレ・洗面所・シャワー・エレベーター・CATV・プロパンガス・洗面台・フローリング・浴室乾燥機・照明器具・シャンプードレッサ・温水洗浄便座・システムキッチン・モニタ付インターホン・宅配BOX・駐輪場・複層ガラス・シューズボックス・インターネット無料 
リフォーム履歴 -
リノベーション履歴 -
備考 駐車場は屋根付き(一部屋根なし)・賃貸保証等:加入要(初回50%、月額手数料:総家賃の1%)・維持費等:町会費500円/月・CATV2,000円/月・広々延床面積47.16㎡で居住スペースにゆとり充分。・駐輪場:有(無料)/修繕負担金 77000円  
特記事項

省エネ性能

エネルギー消費性能 -
断熱性能 -
目安光熱費 -

不動産会社情報

お問い合わせ先 商号:(株)アオノ建物管理
免許番号:静岡県知事免許(2)第13961号
所在地:三島市中央町3-13トラストBLD101号
TEL:055-994-9095
取引態様:仲介
管理コード:
所属協会など:(公社)静岡県宅地建物取引業協会会員、東海不動産公正取引協議会加盟
共有する
QRコード
  • QRコードからスマートフォン・ケータイでも物件情報を見ることができます。

裾野市の暮らしデータ

人口などの統計情報

世帯数 20694世帯
人口総数 49225人
転入者数 2090人
転入率(人口1000人当たり)
42.46人
転出者数 2401人
転出率(人口1000人当たり)
48.78人
土地平均価格
住宅地
74113円/m2
商業地
118000円/m2

裾野市の治安・ごみ収集情報

公共料金・インフラ

ガス料金(22m3使用した場合の月額) -
水道料金(口径20mmで20m3の月額) -
下水道料金(20m3を使用した場合の月額) -
下水道普及率 48.3%

安心・安全

建物火災出火件数 9件
人口10000人当たり
1.77件
刑法犯認知件数 183件
人口1000人当たり
3.59件
ハザード・防災マップ あり

医療

一般病院総数 2ヶ所
一般診療所総数 32ヶ所
小児科医師数 6人
小児人口10000人当たり
9.92人
産婦人科医師数 3人
15~49歳女性人口1万人当たり
3.33人
介護保険料基準額(月額) 5700円

ごみ

家庭ごみ収集(可燃ごみ) 無料
備考
-
家庭ごみの分別方式 19分別21種〔燃えるごみ 埋立ごみ プラスチック製容器包装ごみ 新聞 雑誌 雑紙 段ボール 牛乳パック 缶類 その他の金属 スプレー缶 生きビン 色別ビン(無色、茶、その他の色) 天ぷら油 乾電池・充電池 ボタン電池 カミソリ ライター 蛍光灯〕 拠点回収:ペットボトル 衣類等 小型家電(パソコン 携帯電話)
家庭ごみの戸別収集 未実施
粗大ごみ収集 あり
備考
ステーション収集。年2回収集。
生ごみ処理機助成金制度 なし
上限金額
-
上限比率
-
暮らしデータ提供元:生活ガイド.com
※行政機関により公表していない地域及びデータがございます。東京23区以外の政令指定都市は、市全体のデータとして表示しています。
※提供データには細心の注意を払っておりますが、調査後に変更がある場合があります。 最新の情報につきましては各市区役所までお問い合わせいただくか、自治体HPなどをご確認ください。
アプリで簡単 物件探し 大手不動産サイトの情報から一括検!プッシュ通知で物件を見逃さない
App Storeからダウンロード Google Playで手に入れよう QRコード