区分マンション グリーンコーポ多摩センター~オーナーチェンジ~ 収益物件・投資物件
- 情報提供元
- LIFULL HOME'S
-
図面と現況が異なる場合は現況優先とします。
-
外観
-
外観
-
外観
-
外観
-
外観
-
駐車場
-
画像
-
画像
-
この物件が気になりましたか? 物件や周辺施設などの詳しい情報は
問合せをすることで確認できます
- お問い合わせ先
- 株式会社Mスタイルプランニング
京王相模原線・小田急多摩線「多摩センター駅」まで徒歩6分と便利な立地の投資用マンションです。
-
価格返済シミュレーション 3,050万円
-
表面利回り-
-
種別区分マンション
-
管理費等19,130円
-
修繕
積立金10,350円 -
年間予定収入- 周辺の家賃相場
-
建物名グリーンコーポ多摩センター~オーナーチェンジ~
-
住所東京都多摩市鶴牧1丁目6番地1 地図
-
交通多摩モノレール 多摩センター駅 徒歩6分
京王電鉄相模原線 京王多摩センター駅 徒歩10分
| 土地面積 | - |
|---|---|
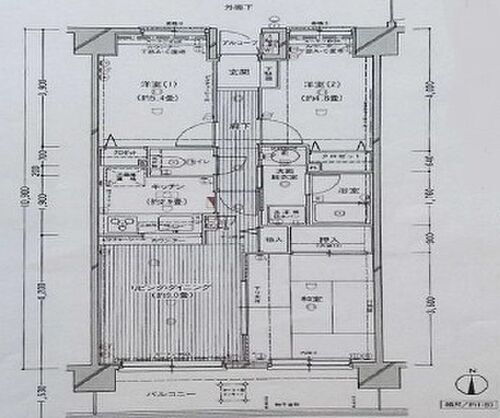
| 専有面積 | 58.93m2 |
| 間取り | 3LDK |
| バルコニー面積 | 8.87m2 |
| 駐車場 | 空無 |
| 管理形態 | - |
| 築年月 | 1994年10月(築31年2ヶ月) |
| 総戸数 | 29戸 |
| 接道状況 | - |
| 私道面積 | - |
| 敷地権利 | 所有権 |
| 借地期間・地代 | - |
| 建物構造 | RC |
| 所在階/階建て | 9階 / 10階建 |
| 都市計画 | - |
| 建ぺい率・容積率 | -・- |
| 用途地域 | 近隣商業 |
| 地目 | - |
| 現況 | 賃貸中 |
| 条件等 | - |
| 引渡し | 相談 |
| 国土法 | - |
| 情報提供元 | LIFULL HOME'S [1493740006812] |
| 情報公開日 | |
| 情報更新日 | |
| 次回更新予定日 | 2025年11月14日 |
地図
表面利回り:満室時表面利回り(年)=賃料×12ヶ月/購入価格※賃料は周辺相場を元に満室時を想定して算出。利回りとは、当該不動産の1年間の予定賃料収入の不動産取得対価に対する割合であり、公租公課・共益費など、その他当該物件を維持するために必要な費用の控除する前の収入で算出しています。また、想定賃料が将来にわたり確実に得られる保証はございません。
設備など
- お問い合わせ先
- 株式会社Mスタイルプランニング
※0037で始まる電話番号に携帯電話からお問合せいただいた方には、ショートメッセージ(SMS)によるお問合せ完了通知をお届けする場合があります。
不動産会社情報
お問い合わせ先
商号:株式会社Mスタイルプランニング
免許番号:神奈川県知事(01)第031506号
所在地:神奈川県相模原市中央区鹿沼台2丁目11-6 淵野辺サトウビル1階
取引態様:媒介
管理コード:6812
所属協会など:(公財)東日本不動産流通機構 会社情報 この会社の他の物件情報を見る
免許番号:神奈川県知事(01)第031506号
所在地:神奈川県相模原市中央区鹿沼台2丁目11-6 淵野辺サトウビル1階
取引態様:媒介
管理コード:6812
所属協会など:(公財)東日本不動産流通機構 会社情報 この会社の他の物件情報を見る
この地域の暮らしデータ
多摩市の人口などの統計情報
| 世帯数 | 68354世帯 |
|---|---|
| 人口総数 | 147776人 |
| 転入者数 |
7082人 転入率(人口1000人当たり) 47.92人 |
| 転出者数 |
6512人 転出率(人口1000人当たり) 44.07人 |
| 土地平均価格 |
住宅地 181714円/m2 商業地 428500円/m2 |
多摩市の結婚・育児の助成金
| 出産・子育て | |
|---|---|
| 子育て関連の独自の取り組み | ブックスタート、多摩市絵本かたりかけ事業(市立健康センターで月2回実施する乳児[3~4ヶ月児]健康診査に、「絵本を通して親子のコミュニケーションが深まることの大切さ」を伝え、図書館から絵本、ブックリスト、図書館案内等を配付)。 |
| 出産祝い |
あり
|
| 公立保育所数 |
1ヶ所 0歳児保育を実施 1ヶ所 |
| 私立保育所数 |
21ヶ所 0歳児保育を実施 21ヶ所 |
| 保育所入所待機児童数 | 7人 |
| 認定こども園数 | 3園 |
| 預かり保育実施園数-公立 | - |
| 預かり保育実施園数-私立 | 6園 |
| 学校給食 | 【小学校】完全給食【中学校】完全給食 |
| 公立中学校の学校選択制 | 未実施 |
| 子ども・学生等医療費助成<通院>対象年齢 | 18歳3月末まで |
| 子ども・学生等医療費助成<入院>対象年齢 | 18歳3月末まで |
多摩市の治安・ごみ収集情報
| 公共料金・インフラ | |
|---|---|
| ガス料金(22m3使用した場合の月額) | 東京瓦斯株式会社(東京地区等)3926円 |
| 水道料金(口径20mmで20m3の月額) | 東京都水道局2816円 |
| 下水道料金(20m3を使用した場合の月額) | 多摩市2068円 |
| 下水道普及率 | 100.0% |
| 安心・安全 | |
| 建物火災出火件数 |
26件 人口10000人当たり 1.77件 |
| 刑法犯認知件数 |
674件 人口1000人当たり 4.59件 |
| ハザード・防災マップ | あり |
| 医療 | |
| 一般病院総数 | 5ヶ所 |
| 一般診療所総数 | 114ヶ所 |
| 小児科医師数 |
43人 小児人口10000人当たり 27.67人 |
| 産婦人科医師数 |
23人 15~49歳女性人口1万人当たり 8.24人 |
| 介護保険料基準額(月額) | 5817円 |
| ごみ | |
| 家庭ごみ収集(可燃ごみ) |
有料
|
| 家庭ごみの分別方式 | 4分別11種〔可燃ごみ 不燃ごみ 資源(びん、缶・ペットボトル、雑誌・雑紙、新聞、古布、ダンボール、プラスチック、小型家電・金属類) 有害性ごみ〕 拠点回収:白色トレイ 集団回収:新聞紙、雑誌・雑紙、ダンボール、紙パック、アルミ缶、スチール缶、びん、古繊維、ペットボトル |
| 家庭ごみの戸別収集 | 実施(集合住宅は建物敷地内の専用集積所) |
| 粗大ごみ収集 |
あり
|
| 生ごみ処理機助成金制度 |
なし 上限金額 - 上限比率 - |
暮らしデータ提供元:生活ガイド.com
※行政機関により公表していない地域及びデータがございます。東京23区以外の政令指定都市は、市全体のデータとして表示しています。
※提供データには細心の注意を払っておりますが、調査後に変更がある場合があります。 最新の情報につきましては各市区役所までお問い合わせいただくか、自治体HPなどをご確認ください。
※提供データには細心の注意を払っておりますが、調査後に変更がある場合があります。 最新の情報につきましては各市区役所までお問い合わせいただくか、自治体HPなどをご確認ください。
家賃相場情報
多摩モノレール 多摩センター駅の家賃相場
| 間取り | 家賃相場 | |
|---|---|---|
| ワンルーム | 4.01万円 | |
| 1K・1DK | 5.02万円 | |
| 1LDK・2K・2DK | 8.51万円 | |
| 2LDK・3K・3DK | 8.29万円 | |
| 3LDK・4K・4LDK | 11.43万円 | |
住宅ローンシミュレーション
月々の返済額からの購入額の計算と、購入額からの返済額の計算ができます。
住宅ローンをお考えの方へ
最もおトクであなたにぴったりな
住宅ローンをみてみよう!




