ウエディングパレスかねすい 二本松駅 貸店舗
3098.8m2 / 二本松駅
- 情報提供元
- アットホーム
賃料80万円 / 管理費等なし
-
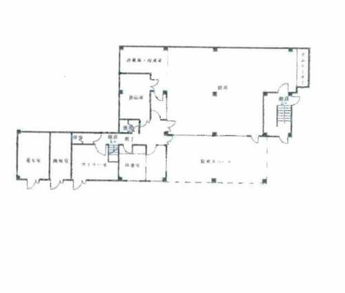
1階の厨房機器等のフロア図面です。
-
2階平面図 駐車場側から入ると1階正面のフロアです。
-
3階平面図 駐車場側から入ると2階となります。
-
外観
-
室内
-
駐車場には約100台駐車可能です。
-
駐車場には約100台駐車可能です。
-
図面上は2階フロアのエントランス
-
画像
-
2階から3階へ上がる階段です。
-
画像
-
この物件が気になりましたか? 最新の空室状況は
問合せをすることで確認できます
- お問い合わせ先
- (同)あだたら不動産
-
交通JR東北本線 二本松駅 徒歩16分
| 物件タイプ | 貸店舗 |
|---|---|
| 敷引・償却 | - |
| 坪単価 | 0.09万円 |
| その他一時金 | |
| 権利金 | - |
| その他費用 | |
| 維持費等 | |
| 都市計画 | |
| 用途地域 | 準工業 |
| 接道状況 | |
| 地目 | |
| 建物名 | ウエディングパレスかねすい |
| 条件等 | |
| 現況 | 空 |
| 情報提供元 | アットホーム [6977612385] |
| 情報公開日 | |
| 情報更新日 | - |
| 次回更新予定日 | 随時 |
地図
設備など
- お問い合わせ先
- (同)あだたら不動産
アピールポイント
駐車場台数約100台以上のロードサイド店舗。以前は結婚式場やイベントスペースとして利用されておりました。店舗等としてのお貸出しのため用途などなどご希望があれば大家さんと協議致しますので何なりとご相談ください。
不動産会社情報
お問い合わせ先
| 商号 | (同)あだたら不動産 |
|---|---|
| 免許番号 | 福島県知事免許(2)第3417号 |
| 所在地 | 二本松市金色406番地13 |
| TEL | 0243-24-8777 |
| 取引態様 | 仲介 |
| 管理コード | - |
| 所属協会など | (公社)福島県宅地建物取引業協会会員、東北地区不動産公正取引協議会加盟 |
この地域の暮らしデータ
二本松市の人口などの統計情報
| 世帯数 | 19359世帯 |
|---|---|
| 人口総数 | 51263人 |
| 転入者数 |
1306人 転入率(人口1000人当たり) 25.48人 |
| 転出者数 |
1507人 転出率(人口1000人当たり) 29.40人 |
| 土地平均価格 |
住宅地 17992円/m2 商業地 37750円/m2 |
二本松市の治安・ごみ収集情報
| 公共料金・インフラ | |
|---|---|
| ガス料金(22m3使用した場合の月額) | - |
| 水道料金(口径20mmで20m3の月額) | 二本松市(二本松上水)3883円 二本松市(安達上水)4103円 二本松市(岩代 簡易水道)4631円 二本松市(岳上水)3751円 二本松市(東和 簡易水道)3896円 |
| 下水道料金(20m3を使用した場合の月額) | 二本松市(二本松処理区)2200円 二本松市(安達処理区)3382円 二本松市(岩代処理区)3080円 二本松市(岳処理区)2090円 |
| 下水道普及率 | 38.4% |
| 安心・安全 | |
| 建物火災出火件数 |
16件 人口10000人当たり 2.99件 |
| 刑法犯認知件数 |
172件 人口1000人当たり 3.21件 |
| ハザード・防災マップ | あり |
| 医療 | |
| 一般病院総数 | 3ヶ所 |
| 一般診療所総数 | 38ヶ所 |
| 小児科医師数 |
9人 小児人口10000人当たり 17.48人 |
| 産婦人科医師数 |
5人 15~49歳女性人口1万人当たり 6.04人 |
| 介護保険料基準額(月額) | 6500円 |
| ごみ | |
| 家庭ごみ収集(可燃ごみ) |
無料
|
| 家庭ごみの分別方式 | 18分別〔可燃ごみ プラスチック製容器包装 ビニール・プラスチックごみ 破砕するごみ 埋立ごみ 生きびん 無色透明びん 茶色びん 青・緑びん 黒びん あき缶 ペットボトル 使用済乾電池 新聞紙・チラシ 図書・雑誌類 ダンボール 紙パック 衣類・布製品〕 |
| 家庭ごみの戸別収集 | 一部実施(二本松市ごみ出し支援戸別収集事業) |
| 粗大ごみ収集 |
あり
|
| 生ごみ処理機助成金制度 |
あり 上限金額 40000円 上限比率 66.7% |
暮らしデータ提供元:生活ガイド.com
※行政機関により公表していない地域及びデータがございます。東京23区以外の政令指定都市は、市全体のデータとして表示しています。
※提供データには細心の注意を払っておりますが、調査後に変更がある場合があります。 最新の情報につきましては各市区役所までお問い合わせいただくか、自治体HPなどをご確認ください。
※提供データには細心の注意を払っておりますが、調査後に変更がある場合があります。 最新の情報につきましては各市区役所までお問い合わせいただくか、自治体HPなどをご確認ください。



